Хрущевка с раздельными комнатами планировка. Планировки серий домов раннего строительства
- Хрущевка с раздельными комнатами планировка. Планировки серий домов раннего строительства
- Планировка хрущевки 1 комната. Хрущевки. Типовые планировки
- Планировка хрущевки 2 комнаты 44 м. Типы исходной планировки с вариантами улучшений
- Планировка хрущевки 5 этажей. Планировка «хрущевка»: история «хрущевской» планировки квартир
- Планировка хрущевки 2 комнаты смежные. Допустимые и запрещенные действия при перепланировке квартир
- Планировка хрущевки 2 комнаты с кладовкой. Дизайн 2х комнатной хрущевки: проекты, перепланировка, лучшие фото идеи дизайна
- Планировка хрущевки 3 комнаты. Варианты расположения комнат в трехкомнатной хрущевке
- Планировка хрущевки 2 комнаты угловая. Популярные варианты
Хрущевка с раздельными комнатами планировка. Планировки серий домов раннего строительства
Итак, какие же разновидности малометражек существовали в Советском Союзе и существуют по сей день? Первая, и самая популярная серия жилья возводилась под номером 1-464. Все квартиры этой серии оборудованы балконами и небольшими кладовыми, но в подъездах отсутствует лифт и мусоропровод. В таких домах были двухкомнатные, трехкомнатные и однокомнатные квартиры. На площадке четыре двери. Начиная с 1963 года на протяжении четырех лет активно строились малометражки серии 1-335. Здесьуже больше на 4 см, а размер столовой зоны достигает 6,2 квадрата. Даже планировка 1-комнатной хрущевки этой серии предполагает наличие. На площадку выходят четыре двери, максимальный размер — трешки. Четырехкомнатных квартир в типовых домах не было.
Планировка хрущевки 1 комната. Хрущевки. Типовые планировки
Массовое строительство хрущевок началось в 1958 году и длилось до 1985. В то время тысячи семей получили собственное жилье в 4-5-ти этажных панельных и кирпичных домах. Комнаты были очень маленькими и в большинстве случаев проходными, коридоры были узкими и темными, а санузлы сразу были совместными. Высота потолков составляла 2.48 м, в редких случаях – 2.7 м. Площадь однокомнатных квартир не превышала 29-33 кв.м. из которых 5.8-6.2 метра отводились под кухню, от 15.9 до 20.7 метров – под гостиную. Остальную площадь занимал коридор и ванная комната. Размеры помещений зависели от года постройки и серии и имели следующие типовые планировки:

Примечательно, что практически все однушки имели балкон и почти одинаковое расположение комнат. Прежде чем приступить к каким-то радикальным мерам , необходимо четко знать:
- Точное количество проживающих. Ведь одно дело проводить работы по организации комфортного проживания для одного человека, и совсем другое – для молодой семьи с ребенком. Требования будут кардинально отличаться, разделение площади будет совсем иным;
- Без каких функциональных зон вы точно не сможете прожить. Речь идет о таких «помещениях», как рабочий кабинет или полноценная изолированная спальня. Ведь некоторые люди запросто используют диван в гостиной для ежедневного сна и чувствуют себя при этом абсолютно нормально, а на других такая открытость действует угнетающе;

От двух вышеперечисленных факторов будет зависеть объем работ, которые нам предстоит распланировать, необходимость сноса межкомнатных перегородок или, наоборот, возведения дополнительных. Не удивляйтесь. Но действительно не все дизайнеры рекомендуют делать из однушки квартиру-студию . Для того, чтобы жилье отвечало всем требованиям хозяев, иногда устанавливаются полноценные глухие перестенки из легких материалов – гипсокартона или газобетона. Поэтому, предварительно рекомендуют составить список из обязательных пунктов, которые вы хотите иметь. Это может быть что угодно – раковина напротив окна в кухне, стеллаж под личную библиотеку, бытовая техника, от которой вы не в силах отказаться и т.д. На основании этого списка нужно планировать дизайн интерьера и перераспределять пространство между зонами.

Планировка хрущевки 2 комнаты 44 м. Типы исходной планировки с вариантами улучшений
Базовая планировка 2-комнатной хрущевки определяется не только размером свободной площади, но еще и характером расположения жилых комнат. В этом плане есть несколько вариантов, и мы пробежимся по самым популярным из них — со вполне конкретным предложением по кардинальным преобразованиям к каждому.
«Распашонка»
Примерно одинаковые по площади жилые комнаты (16-17 кв.метров) расположены по левую и правую стороны от прихожей и изолированы друг от друга. Между ними располагается санузел и небольшая кухня примерно на 5 кв. метров.

Что можно сделать:
Самое слабое звено в этой схеме — скромная кухня, и ее можно увеличить за счет одной из комнат.

Планировка распашонкой для 2-комнатной хрущевки смотрится одним из самых удачных решений, так как позволяет обойтись минимумом потраченных усилий для придания квартирному пространству более современного вида.

«Книжка»
Две жилые комнаты является смежными — их разделяет одна длинная стена. Кухня на 4-5 кв.метра и санузел располагаются по левую-правую сторону от коридора.


Что можно сделать:
- увеличить кухню за счет объединения с прилегающей к ней комнатой;
- продлить коридор и сделать пространство при входе более свободным.



Мини-улучшенка
2 жилые комнаты изолированы друг от друга. Вход в каждую оформлен через прихожую. Выделяется гостиная с прилегающим балконом — примерно на 20 кв. метров. Вторая комната поменьше, на 10-11 квадратов: за ней расположена очень маленькая кухня. Такая планировка 2-комнатной хрущевки занимает в общей сложности 45 кв. метров и признается одной из лучших среди квартир советского типа.
Что можно сделать:
- сделать более просторной кухню за счет объединения с малой комнатой или прихожей;
- убрать перегородку между гостиной и балконом;
- объединить туалет и ванную комнату.

Трамвай
Прихожую в хрущевках такого типа венчает вход в большую гостиную, к которой примыкает вторая аналогичная по размеру смежная комната. Справа от прихожей располагается раздельный на туалет и ванную санузел.


Это очень выгодная планировка, так как кухня при такой схеме имеет вполне комфортные размеры.
Планировка хрущевки 5 этажей. Планировка «хрущевка»: история «хрущевской» планировки квартир
Крупнопанельная планировка Хрущевки серии 1-335 самая распространенная планировка домов на территории России. Самое большое их количество было построено в Санкт-Петербурге, теперь же по количеству эксплуатируемых домов этой планировки лидирует Омск.
Данная планировка домов предусматривает также утепленные минватой дома, которые внешне отличаются отделкой фасада мелкой керамической плиткой и имеют сине-голубой цвет. Данное отличие делает их немного более привлекательнее внешне, но внутри они обычные «хрущевки».
Планировка дома «хрущевки» серии 1-335 имеет внешнее сходство с серией домов 1- 507, которые имеют народное наименование «брежневки», с более удачной планировкой квартир и кухней, площадью около 7 кв. метров.
Что примечательно, начавшееся в 1959 году строительство «хрущевок», которые были предназначены для Москвы и Питера, в 1966 году было приостановлено, в виду несоответствия климатическим условиям. Но как ни странно, это не помешало модернизировать эти серии домов (1-335АК и 1-335Д, 1-335К, 1-335А) и возводить их по всей стране, независимо от климатических условий вплоть до окончания 1980-ых годов.
В настоящее время в той же Москве, по мнениям некоторых экспертов снос домов «хрущевок» будет завершен примерно в 2015 или в 2017 гг. В соседнем Санкт-Петербурге производят капитальные ремонты домов этой серии, некоторые тоже отправляют под снос.
Что касается Хабаровска, то скорее всего планировка квартир данного типа останется актуальной еще достаточное количество времени, ведь сносить их дело невыгодное…
Расположение домов в Хабаровске с планировкой «хрущевка»
В планировке квартир «хрущевка» тоже присутствует и самая, пожалуй плотная застройка на территории 1-го Микрорайона. Имеются также на ДОСах, в районе Хабаровск-2, районе 38 и 51 школы, в Южном микрорайоне и других.
Планировка хрущевки 2 комнаты смежные. Допустимые и запрещенные действия при перепланировке квартир
Хотя так называемые «хрущевки» и отличаются небольшой площадью комнат, у них есть свои положительные стороны, которые можно использовать при перепланировке. Это связано с тем, что все внутренние стены в квартирах этой серии не являются несущими, и их скорее можно назвать перегородками. При постройке домов подобного типа возведение внутренних стен осуществлялось из различных, относительно легких материалов – чаще всего это были гипсоволоконные, гипсоцементные или гипсовые плиты. Иногда перегородки даже сооружались из бруса, выступающего в качестве каркасной конструкции, которая обшивалась затем с двух сторон обычными досками. Чтобы на дощатой стене лучше держалась штукатурка, на доски прибивалась дранка.

Нередко под слоем штукатурки на внутренних перегородках «хрущевки» скрывается вот такая картина – демонтаж не должен составить особых сложностей
Удаление таких стен никак не отразится на общей конструкции дома, так как они, по сути, не выполняют никакой несущей функции. Однако, это вовсе не означает, что подобные перегородки можно переставлять как угодно. На этот счет имеются действующие установленные требования, которых следует придерживаться.
Чтобы избежать проблем, любые переделки в квартире многоэтажного дома необходимо узаконить в жилищной инспекции, и чтобы не терять время на походы и очереди, лучше всего отправляться туда с готовым проектом перепланировки.

Исходным документом для дальнейших «походов по инстанциям» должен служить продуманный план желаемой перепланировки квартиры
Предварительные наброски такого проекта можно составить и самостоятельно, опираясь на план квартиры, который входит в кадастровый паспорт. Сделав с этого документа ксерокопии, на них указывают, какие стены планируется удалить, и в каких местах установить новые перегородки.
1. К действиям, которые возможны при перепланировке «хрущевки», можно отнести:
- Демонтаж перегородки между ванной комнатой и туалетом , то есть их объединение, а при необходимости – даже расширение получившегося помещения за счет коридора.

Уборная и ванная объединены в один санузел, который даже получил дополнительную площадь за счет коридора
- Расширение или удлинение жилой комнаты за счет ее соединения с коридором или его частью.
- Соединение кухонного помещения и смежную с ней жилой комнаты проходом, то есть превращение их в общую кухню-столовую, но лишь в том случае, если на кухне установлена электрическая плита.
- Проделывание дверных проемов в удобном для хозяев месте – допускается на стенах, не являющихся несущими, какими обычно оказываются все внутренние перегородки в квартирах-«хрущевках».
- Демонтаж антресолей, ниш, кладовых и иных подсобных помещений, за счет которых есть возможность увеличить помещения квартиры.
- Установка второй входной двери, с обустройством тамбура между ними, при условии, если сделать это позволяет площадь коридора.
- При утеплении и объединении комнаты с балконом — демонтаж части внешней стены, расположенной под оконным проемом.
2. Недопустимые действия при переделке планировки квартиры, которые не могут быть утверждены жилищной инспекцией:
- Объединение кухни, оснащенной газовой плитой, котлом или проточным водонагревателем – колонкой, с жилым помещением.

Кухня с установленными на ней газовыми приборами обязательно должна иметь закрывающуюся дверь в жилую зону
Если все же планируется произвести такой вариант объединения, то придется сделать между помещениями, по крайней мере, раздвижную перегородку, или же заменить газовую плиту электрическим вариантом, а колонку перенести в санузел. Перенос водонагревателя, кстати, будет возможен, если позволяет конструкция и пропускающая способность вентиляционных каналов. Но с этим параметром смогут определиться только специалисты.

Для переноса газового водонагревателя в санузел потребуется отдельный проект, с учетом возможностей надлежащего оборудования систем отвода продуктов сгорания и вентиляции
- Расширение кухни и санузла за счет жилых помещений.
- Расширение жилых комнат, а также объединение кухни с балконом или лоджией, путем полного демонтажа несущей стены между ними.
- Перепланировка, которая предполагает перекрытие доступа к центральным коммуникациям.
- Объединение санузла с жилыми помещениями или кухней.
- Перенос радиаторов центрального отопления на балкон или лоджию.
- Демонтаж вентиляционных каналов или коробов, замуровывание вентиляционных отдушин.
- Если квартира оборудована автономным отоплением – самовольная смена места установки газового котла.
- Объединение квартир, расположенных на смежных этажах, с демонтажем, частичным или полностью, межэтажного перекрытия.
- Самовольное возведение пристроек к квартирам, расположенным на первых этажах и обустройство в них жилых комнаты, подвалов и погребов.
- Демонтаж или переустановка стояков коммуникаций общего пользования и газовых труб.
- Возведение межкомнатных перегородок из тяжелых строительных материалов, например, из бетона или железобетона.
- Однозначно не будет утвержден план перепланировки в жилье, которое официально признано аварийным.
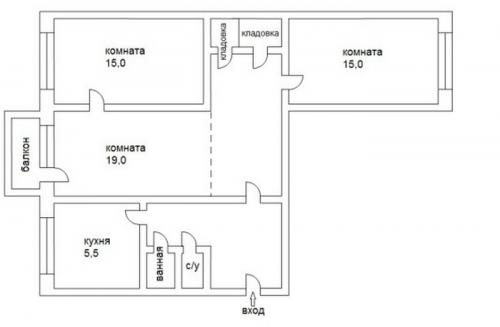
Планировка хрущевки 2 комнаты с кладовкой. Дизайн 2х комнатной хрущевки: проекты, перепланировка, лучшие фото идеи дизайна
Миллионы людей живут в малогабаритных квартирах с типовой планировкой. Мечтая о современном и удобном жилье, одни владельцы задумываются о переезде. Другие же устраивают ремонт в хрущевке 2-х комнатной, фото которой после проведенных работ едва ли выдает время постройки дома. Благодаря огромному ассортименту строительных материалов и безграничным вариациям готовых дизайнерских решений, сегодня можно реализовать любые желания. Главное не пренебрегать советами специалистов.

Хрущевки — первые многоэтажные дома массовой застройки. Во времена СССР квартиры в них раздавали практически бесплатно, что решило вопрос острой нехватки жилья. Небольшая площадь, проходные комнаты, неудобное расположение дверей отличает их от “сталинок” и других домов. Есть и другие, не менее значимые недостатки: низкая шумоизоляция, невысокие потолки, маленькие прихожая и кухня, отсутствие балкона на первом этаже. На нынешнем рынке такая недвижимость мало ценится.

Несмотря на очевидные минусы, плюсы здесь тоже есть. В каждом жилище времен Хрущева Н. С. предусмотрены кладовки. Санузел обычно совмещен, что экономит место. А варианты дизайна таких помещений безграничны. Зачем покупать типовую мебель и жертвовать большой ванной, если даже в советской двушке реально осуществить любые идеи?


Планировка хрущевок, состоящих из 2 комнат, бывает 4 видов:
Трамвай | около 47 кв. м | Две комнаты в такой квартире имеют одну, смежную стену. Гостиная обычно угловая. |
Бабочка | 46 кв. м | Кухня располагается между двумя комнатами. |

“Книжка” достаточно неудобная, как в первоначальном виде, так и в измененном. Так как комнаты следуют друг за другом, сделать радикальное перепроектирование помещения невозможно.

Объединение комнат
При входе в дом первое, что бросается в глаза — прихожая. В хрущёвке она маленькая, узкая и темная. Если увеличить дверной проем в комнате, коридор станет светлее и визуально больше. С этого обычно и начинается составление плана ремонта 2-комнатной квартиры. Что касается радикального сноса стен, чаще всего объединяют:
- Кухню и зал. На месте убранной стены устанавливается барная стойка или стол с мягким диваном.
- Зал и спальню. Подходит для семьи без детей. При наличии ребенка детская в хрущевке оформляется путем зонирования помещения.
- Зал и кабинет. Для создания рабочего пространства подойдет стеллаж или мобильные ширмы. Иногда дизайнеры используют невысокий подиум.
- Спальню и кабинет. Комната разделяется на 2 функциональные зоны, стол для работы ставится около окна.

Зонирование
Перестройка малогабаритной квартиры 40 кв. м или другой площади не обходится без зонирования. Каждому члену семьи необходима личная зона в квартире. При этом нельзя уменьшать и без того маленький размер кухни. Рабочее место должно быть вместительным. Для разделения разных участков используются:
- гипсокартонные фальшстены;
- передвижные перегородки;
- занавески, шторы;
- диваны, шкафы, другие предметы мебели;
- разноуровневые потолок и пол.

Раздвижные двери — лучшая альтернатива распашным. Они удобны в обращении и стильно смотрятся.

Отделка
Эффективным способом зрительного увеличения пространства любой дизайнер назовет использование светлых оттенков. Но это утверждение нельзя воспринимать буквально, иначе ремонт в 2х комнатной хрущевке по фото будет напоминать больничную палату. То же касается и 1х, 3х комнатных квартир. Удачное сочетание цветов приведет к успешному обновлению интерьера.

Полы
Единственное строгое требование к выбору напольного покрытия — табу на темные оттенки. В домах небольшого размера пол является фоном для других предметов и не должен привлекать внимание. Лучшие цвета: серый, бежевый, молочный. Также уместна имитация фактуры дерева или сам натуральный материал. Ламинат, паркетная доска, линолеум, ковролин, плитка — любое покрытие эффектно дополнит дизайн, если учтены требования к цвету.

Потолки
Чем ярче освещение в маленькой комнате, тем лучше. В дополнение к люстре рекомендованы точечные светильники, расположенные по периметру. Скрыть все неровности и дефекты на потолке поможет натяжной вариант. Не менее выгодно смотрится многоуровневый верх.

Стены
Прежде чем приступить к отделке стен, в 9 случаях из 10 их придется выровнять. В панельных домах, как и кирпичных, разница в высоте или наклоне разных стен достигает 2-3 см. Даже если кривизна не бросается в глаза, она создаст большие проблемы при ремонтных работах. Поверхность выравнивается шпаклевкой или гипсокартоном. По окончании подготовки комната оформляется обоями, например:
- флизелиновыми, виниловыми, акриловыми с вертикальным рисунком;
- фотообоями с городским пейзажем или природой;
- жидкими бесшовными обоями.

Цвет стен должен гармонировать с задуманным дизайном хрущевки, состоящей из 2 комнат. Правило “чем выше цена, тем лучше” работает не всегда. Даже самая дорогая шелкография подходит далеко не к каждому интерьеру.
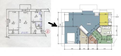
Планировка хрущевки 3 комнаты. Варианты расположения комнат в трехкомнатной хрущевке
При разработке планов расположения помещений важно учесть образ жизни всех членов семьи и проанализировать их основные перемещения по квартире. Возможно все жильцы встают рано и также рано вместе уходят на работу в офисы, а затем возвращаются домой примерно в одно и тоже время. В этом случае стоит подумать о широком коридоре и раздельном санузле.

Расширить коридор можно визуально с помощью светлой отделки стен либо посредством перепланировки, передвинув перегородку между прихожей и гостиной

Замена громоздкой ванны на компактный душ решит проблему экономии места в маленьком санузле
Может быть, наоборот, у всех жильцов разный график – молодежь работает удаленно дома в своих комнатах, просыпается поздно, только один взрослый просыпается рано и сразу уходит на работу, а пожилая бабушка постоянно хлопочет по хозяйству. Тут имеет смысл расширить кухню за счет соседней комнаты и сделать красивую столовую.

Для разделения кухни-гостиной на зоны часто используют барную стойку
Популярные варианты расположения комнат:
- Трамвайчиком.
- Распашонкой.
- Мини-улучшенка.
- Книжкой.
Трамвайчиком называют вытянутую планировку, где все помещения и проходы к ним крепятся один к другому. Такое расположение считается очень неудобным. Здесь изолированным пространством становится только самое последнее помещение. В кухню обычно можно попасть через коридор, в гостиную через кухню, в другие комнаты через гостиную. Получается, что каждый раз нужно проходить всю квартиру подряд. Неудобство можно исправить, расположив все комнаты вдоль одного коридора. Можно также гостиную объединить с кухней, что добавит простора в квартиру.

Планировка трехкомнатной хрущевки “трамвайчиком”
Планировка распашонкой считается наиболее удачной. При распашонке коридор находится в центре квартиры, а по разные стороны от него расположены комнаты. Таким образом все комнаты являются изолированными друг от друга, и выходят на разные стороны света. Разная освещенность в помещениях делает квартиру более уютной и психологически комфортной. Минусами таких планировок могут быть неоправданно большие коридоры, за счет которых можно увеличить пространство комнат. Зачастую в таких квартирах еще бывают маленькие неудобные кухоньки. Эту проблему можно решить опять же за счет объединения кухни с ближайшим помещением.

Планировка трехкомнатной хрущевки “распашонки”
С точки зрения фэн-шуй такое расположение является не очень удачным, так как здесь центральным помещением становится коридор – то есть проходное пространство. Чтобы сбалансировать расположение зон имеет смысл увеличить одну комнату сделав ее центральной. Это может быть гостиная, столовая или жилое помещение главы семейства. Таким образом энергия будет концентрировать именно в этой зоне.
Планировка хрущевки 2 комнаты угловая. Популярные варианты
Практика показывает, что реконструкции хрущевок дают потрясающий результат – при совмещении санузла освобождается место для стиральной машинки; при сносе перегородки между комнатой и кухней появляется пространство для обеденного стола. На приведенных ниже схемах показано еще несколько способов повысить комфорт двухкомнатных хрущевок.
2 смежные комнаты в хрущевке
Смежными называются помещения, имеющие общую стену. Планировка со смежными комнатами и разными входами называется "мини-улучшенка". Если в квартире есть кладовка , за счет нее можно увеличить площадь кухни: кладовая разбирается, санузел переносится на ее место, а к площади кухни прибавляется 3 кв метра.

На фото увеличенная кухня в двухкомнатной хрущевке, где нашлось место обеденному столу.
Без перегородки между кухней хрущевка превратится в евродвушку, а владелец получит просторную кухню-гостиную. Если кухня газифицирована, проем необходимо оборудовать раздвижной перегородкой. Лоджию можно утеплить и использовать в качестве кабинета .