4 Варианта перепланировки 2-х комнатной хрущевки. Варианты перепланировки 1-комнатной хрущевки
- 4 Варианта перепланировки 2-х комнатной хрущевки. Варианты перепланировки 1-комнатной хрущевки
- Перепланировка 2-х комнатной хрущевки вагончик. Внутри квартиры нет несущих стен.
- Планировка хрущевки 2 комнаты 44 м. Типы исходной планировки с вариантами улучшений
- Перепланировка 2х комнатной хрущевки. Правовые аспекты перепланировки
- Перепланировка 4 комнатной квартиры 62 кв м. Юридический центр «ГРАД»
- Хрущевка планировка 2-х комнатная угловая. Отличительные черты планировки хрущевок в кирпичных домах
- Перепланировка двухкомнатной хрущевки в трехкомнатную. Любое ли жилье подлежит переделке?
4 Варианта перепланировки 2-х комнатной хрущевки. Варианты перепланировки 1-комнатной хрущевки
Несмотря на скромные габариты, существует ряд возможных примеров трансформации однушки.
Хрущевка с двумя окнами
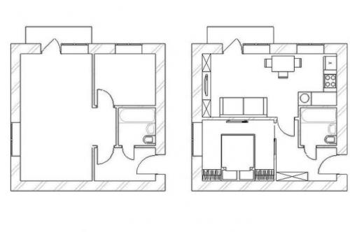
Квартира с балконом и двумя окнами, является угловой. Хрущевка с подобной планировкой может представлять собой не самый лучший вариант или наоборот, предоставить большое количество интересных идей перепланировки.



На фото пример перепланировки угловой хрущевки однушки с двумя окнами.
Хрущевка с одним окном
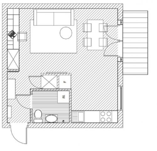
Однушки, имеющие одно окно и балкон, встречаются в кирпичных домах серии 1-511, в панельных застройках серии 1-515 и прочих. В таких квартирах присутствует раздельный санузел и коридор. В хрущевках с другой планировкой данное пространство представляет жилую комнату, что создает ограничение при переделке жилья.



На фото перепланировка однокомнатной квартиры хрущевки 30 кв с одним оконным проемом.
Перепланировка из 1-комнатной в двухкомнатную хрущевку
Самый простой и бюджетный способ перепланировки - установить гипсокартонную перегородку и сделать в ней дверной проем. Таким образом получится два небольших помещения с разным функциональным назначением.
Также трансформировать однокомнатную хрущевку в двушку или полуторку можно за счет раздвижных дверей, которые не займут много места и позволят обособить такие комнаты, как детская, спальня или зал.
Немалое значение в дизайне играет выбор мебельных конструкций. Например, сэкономить пространство поможет встроенная бытовая техника в виде уменьшенного холодильника или маленькой плиты.



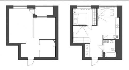
На фото однокомнатная квартира хрущевка с перепланировкой в двушку.



Перепланировка 2-х комнатной хрущевки вагончик. Внутри квартиры нет несущих стен.
Расположение несущих стен в хрущевке.
В 90% случаев внутренние стены квартир в хрущевках являются не несущими перегородками, то есть их можно смело демонтировать при перепланировке без влияния на общее состояние здания. Правда, при этом не следует забывать о требованиях строительных, правовых и санитарно-гигиенических норм, которые необходимо соблюдать.
Даже при затрагивании только не несущих перегородок можно нарушить некоторые законы, о которых мы поговорим ниже. Обычно несущими в хрущевке являются ограждающие стены квартиры, все или только некоторые. Единственное, что может находиться из несущих конструкций внутри квартиры кирпичных домов- это балки, опирающиеся на наружные и внутренние межквартирные несущие стены. Справа на рисунке приведен типичный пример расположения несущих стен в реальной квартире-хрущевке (зелёным отмечены несущие стены и диафрагмы жесткости). Многие, как мы уже упоминали, ошибочно полагают, что если они не затрагивают несущих стен, то согласовывать такую перепланировку не надо. На самом деле, перепланировка квартиры-хрущевки с любым изменением конфигурации перегородок влечёт за собой обязанность внесения этих изменений в документы БТИ на квартиру, а, следовательно, требует и соответствующего согласования. Более того, большинство этих изменений согласовываются по проектам, выполняемых соответствующими организациями с разрешением. Ознакомиться с требованиями к проектам можно здесь .
Более подробно об определении несущих стен в хрущевках Вы можете почитать здесь .
Изменились пункты: Объединять газифицированную кухню с жилым помещением нельзя согласно п. 10.16 Приложения 1 к Постановлению Правительства Москвы № 508 (после введения ППМ №1335 от 19.08.2020, актуального и в 2022 году).
Изменение: теперь выход из помещения с унитазом можно делать в любую комнату, так как отменили СаНПиН, который раньше это запрещал.
Планировка хрущевки 2 комнаты 44 м. Типы исходной планировки с вариантами улучшений
Базовая планировка 2-комнатной хрущевки определяется не только размером свободной площади, но еще и характером расположения жилых комнат. В этом плане есть несколько вариантов, и мы пробежимся по самым популярным из них — со вполне конкретным предложением по кардинальным преобразованиям к каждому.
«Распашонка»
Примерно одинаковые по площади жилые комнаты (16-17 кв.метров) расположены по левую и правую стороны от прихожей и изолированы друг от друга. Между ними располагается санузел и небольшая кухня примерно на 5 кв. метров.

Что можно сделать:
Самое слабое звено в этой схеме — скромная кухня, и ее можно увеличить за счет одной из комнат.

Планировка распашонкой для 2-комнатной хрущевки смотрится одним из самых удачных решений, так как позволяет обойтись минимумом потраченных усилий для придания квартирному пространству более современного вида.

«Книжка»
Две жилые комнаты является смежными — их разделяет одна длинная стена. Кухня на 4-5 кв.метра и санузел располагаются по левую-правую сторону от коридора.


Что можно сделать:
- увеличить кухню за счет объединения с прилегающей к ней комнатой;
- продлить коридор и сделать пространство при входе более свободным.



Мини-улучшенка
2 жилые комнаты изолированы друг от друга. Вход в каждую оформлен через прихожую. Выделяется гостиная с прилегающим балконом — примерно на 20 кв. метров. Вторая комната поменьше, на 10-11 квадратов: за ней расположена очень маленькая кухня. Такая планировка 2-комнатной хрущевки занимает в общей сложности 45 кв. метров и признается одной из лучших среди квартир советского типа.
Что можно сделать:
- сделать более просторной кухню за счет объединения с малой комнатой или прихожей;
- убрать перегородку между гостиной и балконом;
- объединить туалет и ванную комнату.

Трамвай
Прихожую в хрущевках такого типа венчает вход в большую гостиную, к которой примыкает вторая аналогичная по размеру смежная комната. Справа от прихожей располагается раздельный на туалет и ванную санузел.


Это очень выгодная планировка, так как кухня при такой схеме имеет вполне комфортные размеры.
Перепланировка 2х комнатной хрущевки. Правовые аспекты перепланировки
Если владельцы не планируют переносить несущие стены, то ничего оформлять не нужно. Перепланировка двухкомнатной хрущевки происходит в стандартном режиме согласно готовому плану. Однако стоит заранее учесть, не находится ли здание в предаварийном состоянии, не были ли нарушены законодательные акты предыдущими хозяевами.

Перед началом перепланировки квартиры необходимо позаботиться о её согласовании
В случаях, если планируется переносить несущие стены или были замечены грубые ошибки при прежних владельцах, необходимо сделать следующее:
- подготовить проект;
- предоставить его в местную архитектурную администрацию;
- далее документы попадают в суд, остается его только выиграть.
На всю процедуру может уйти несколько месяцев. Чтобы не тратить личное время на сбор, можно обратиться сразу в специализирующуюся на таких вопросах компанию. За небольшое вознаграждение сотрудники сами соберут все необходимые документы.
В панельном доме
Чаще всего в панельных домах расширяют санузел, кухню и коридор. Способов сделать это достаточно много. Для этого необходимо обратиться к специалисту, который занимается проектированием. Дополнительно может понадобиться разрешение со стороны управляющей компании, самовольный снос стен в таких домах может оказаться под запретом.

Раздельные ванна и туалет в хрущевках отличаются очень маленькой площадью, снос перегородки между ними позволяет получить довольно просторный санузел
В кирпичном доме
Из кирпича обычно строили дома до революции. Таких зданий осталось немного, большая часть из них является историческим достоянием. Говоря о хрущевках, стены из кирпича могут быть между комнатами. Сегодня достаточно часто встречаются такие объекты, в планировку которых уже было вмешательство. Работать с такими стенами необходимо крайне аккуратно, так как никогда не знаешь, чего ожидать. Желательно вызвать специалистов, которые смогут заранее предупредить о всех возможных проблемах. Как выглядит перепланировка 2 х комнатной хрущевки квартиры в кирпичном доме можно ознакомиться на фото.

Перепланировка 4 комнатной квартиры 62 кв м. Юридический центр «ГРАД»
Недвижимость и все виды деятельности, связанные с нею — были, есть и будут всегда актуальными. В условиях современности жилищный фонд вторичного жилья представлен квартирами старой планировки, которая отличается нерациональностью использования жилищной площади, требующей совершение перепланировки приобретенного имущества. Перепланировка четырехкомнатной квартиры — это наиболее встречаемый вид работ, встречаемый при обустройстве имущества.
Перепланировка четырехкомнатной квартиры — не простой, как с юридической, так и финансовой стороны вопрос, предусматривающий, помимо правильного оформления необходимой документации и немалых вложений в виде денежных средств, еще и большой объем физических сил и времени.
Преимущества, которые дает перепланировка четырехкомнатной квартиры, заключаются в использовании пространства по назначению согласно требованиям владельца имущества и комфортабельность бытия.
Вся квартира состоит из несущих (капитальных) конструкций, не подлежащих частичной или полной реконструкции и других перегородок, смонтированных из легких листовых строительных материалов, не несущих никаких нагрузок, кроме собственного веса, которые можно демонтировать и видоизменить при желании.
Однако любое действие, характеризуемое как перепланировка четырехкомнатной квартиры, должно быть официально подтверждено соответствующей документацией. Перепланировка и составление проекта должны учитывать, что нельзя затрагивать в реконструкции связанные с коммуникациями инженерные постройки (вентиляционные шахты, каналы, тамбуры, шкафы с коммуникациями), несущие конструкции.
Отсутствие документального сопровождения, коим пренебрегают некоторые граждане, может обернуться судебным разбирательством, штрафными санкциями и невозможностью легализовать последующие сделки с данной недвижимостью.
Именно поэтому перепланировка четырехкомнатной квартиры начинается с создания проекта, который после утверждения в городском отделе архитектуры и выдачи разрешения на соответствующую деятельность необходимо предъявить в бюро технической инвентаризации с целью внесения корректив в техпаспорт имущества.
Далее можно приступать непосредственно к ремонтно — строительным работам в реконструируемой квартире. Облегчение получения разрешения на такой вид деятельности как перепланировка четырехкомнатной квартиры происходит при обращении в компании, специализирующиеся по оказанию данных услуг.
Оформление договора с нами гарантирует качественное и своевременное проведение всех видов работ и получение радующего глаз результата новой обустроенной по желанию заказчика квартиры в минимальные сроки с подтверждением законности всех проведенных работ.
Вы можете заказать предварительную консультацию по телефону +7 (967) 087-44-23 Или воспользоваться формой обратной связи. Мы будем рады помочь Вам в решении любых возникающих вопросов.
Хрущевка планировка 2-х комнатная угловая. Отличительные черты планировки хрущевок в кирпичных домах
При рационализации строительства панельных домов было принято решение заменить железобетонные панели, которые в то время использовались для строительства на силикатный кирпич. Его было удобно перевозить на место стройки. Был заново разработан новый проект, который немного отличался от разработанного до этого для панельных зданий.

Если в двухкомнатной хрущевке проживает пара или семья с ребенком, квартира нуждается в переделке.
Было разработано новое архитектурное новшество, которое подразумевало переделку комнат с использованием продольного расположения. Это уменьшало количество однокомнатных квартир в жилом доме. Изменились также габариты кухни – они стали меньше, но увеличилась площадь, которую занимают кладовки и добавились лоджии.

Если снести все стены (за исключением несущих), получится квартира со свободной планировкой.
Угловая 2 комнатная хрущевка отличается измененной планировкой, которая выводит окна на две стороны, и существует возможность обзора улицы с разных ракурсов. На этом плюсы этой жилплощади заканчиваются. При возведении панельных домов стены делались тонкими, что уменьшало их теплоизоляционные свойства.

Эти квартиры были холоднее по сравнению с другими, которые находились, например, внутри здания.
В кирпичных домах, где стены достаточно толстые (полметра и больше), такая проблема с промерзанием угловых стен не бывает такой актуальной. В таких помещениях намного теплее и комфортнее.
Перепланировка двухкомнатной хрущевки в трехкомнатную. Любое ли жилье подлежит переделке?
Понятно, что без перепланировки двушку в трешку не переделать. Взять, к примеру, хрущевку. Эта квартира изначально не отличалась особым удобством, поэтому из двушки сделать трешку хотелось сразу же после вселения. Но в те времена о комфорте жилья при проектировании строений вообще никто не задумывался. На кону стояло выполнение глобальной задачи обеспечения людей отдельными квартирами, а уж какой планировки – совершенно неважно.
Если в вашем распоряжении оказалось подобное наследие, в принципе нужно радоваться. Хрущевскую двушку в трешку преобразовать будет достаточно легко.
Что можно изменить
Вы думаете, вот так просто взяли и превратили двушку в трешку, снеся все то, что мешало, и добавив то, чего не хватало? Ан, нет! На все есть регулирующие акты, так что прежде чем крушить, следует ознакомиться с буквой закона. Так что же можно корректировать при перепланировке двушки в трешку?
1. Можно сносить разделяющую ванную и санузел перегородку, но только при условии последующего объединения этих двух пространств. Площадь вновь образуемой зоны может быть расширена, но исключительно за счет присоединения квадратуры коридора.
3. Межкомнатные дверные проемы при реорганизации двушки в трешку могут появляться в любом месте, так как перестенки в данной планировке не являются несущими.
4. Если кухня не газифицирована, ее можно объединить со смежной комнатой. Получится просторное многофункциональное пространство.
7. Вход в дом можно обустроить двумя дверями с организацией тамбура между ними.
Что запрещено
Делая из двушки уютную трешку, имейте виду, что законодательством категорически запрещено:
1. Трогать несущие стены.
2. Выполнять работы, которые приведут к перекрытию доступа к коммуникациям.
3. Присоединять санкомнату к кухне или совмещать ее с жилыми площадями.
4. Переносить радиаторы централизованной подачи отопления на лоджии и балконы. И вообще просто их переносить с обозначенного на схеме дома места.
5. Совмещать жилое пространство с кухней, где установлено газовое оборудование, без установки раздвижной или иного типа, закрывающейся.
6. Демонтировать участок несущей стены при попытке из двушки сделать трешку с присоединением балкона.
7. Соединять квартиры со смежных этажей за счет разборки межэтажных перекрытий.
Последний пункт в нашем случае не актуален, но знание этого правила не повредит.
Нюансы согласования перепланировки двушки в трешку
«План преображения двушки в трешку разумнее согласовать до того, как он будет реализован»
Проект ремонтных работ такого уровня согласовывать в соответствующих инстанциях обязательно. Регистрации и одобрению подлежат все нормативные документы, где оговаривается вопрос увеличения количества комнат. Чтобы вы спокойно превратили двушку в трешку и не имели проблем впоследствии, документируйте каждую мелочь, в том числе и тот факт, что планируется реконструировать балкон.
Как показывает практика, план преображения двушки в трешку разумнее согласовать до того, как он будет реализован. Это избавит от больших штрафов и гигантских проблем, которые обязательно нарисуются, если были затронуты и (просто катастрофа!) пострадали общедомовые коммуникации, а также что-то из несущих конструкций.
Но даже если из двушки сделать трешку удалось без эксцессов, неузаконенную переделку невозможно будет:
- ни продать;
- ни подарить;
- ни оставить по наследству.
Никогда не затевайтесь с перепланировкой двушки в трешку в аварийных или слишком ветхих домах. Рабочий проект в этом случае никогда не будет утвержден, так что не тратьте на его разработку ни денег, ни времени.
Куда обращаться
Дать или не дать «добро» на формирование из двушки уютной трешки может районный орган местного самоуправления, на территории которого находится недвижимость.
Адрес учреждения и размах его полномочий могут подсказать в Управляющей компании, обслуживающей ваш дом.