Типовые планировки хрущево. Типовые серии хрущевок. Фото планировок
- Типовые планировки хрущево. Типовые серии хрущевок. Фото планировок
- Планировка хрущевки 3 комнаты. Варианты расположения комнат в трехкомнатной хрущевке
- Планировка хрущевки 5 этажей. Техническое описание 1-335
- Планировка хрущевки 2 комнаты 44 м. Какие могут быть вариации для перепланировки
- Хрущевка планировка размеры. Что представляют собой хрущевки
- Планировки хрущевок 1 комната. Хрущевки. Типовые планировки
- Хрущевка планировка 1 комнатная угловая. Особенности планировки и зонирования
- Планировка хрущевки 2 комнаты. Типовые проекты
- Хрущевка планировка 1 комнатная размеры. Планировка однокомнатной «хрущевки»
Типовые планировки хрущево. Типовые серии хрущевок. Фото планировок
С 1957 года, после принятия закона, который предусматривал устранение излишеств в проектировании домов, в СССР стали возводиться здания нового типа. В народе такие дома получили название «хрущевки» (производное от фамилии генерального секретаря ЦК КПСС Н.С. Хрущева). Такие дома получили второе название – хрущебы, в основном, из-за неудобной и непропорциональной планировки комнат, узких коридоров и пролетов площадок, тонких стен и как результат – ужасной шумоизоляции. В этой статье мы расскажем о том, что такое типовые серии хрущевок, постараемся выделить основные плюсы и минусы этих зданий. Особенности планировки предоставим в виде описаний и фото.
Типовые серии хрущевок: основные плюсы и минусы домов
Давайте рассмотрим основные характеристики квартир и определим особенности каждой серии хрущевок, которые возводились на протяжении 27 лет. Стоит заметить, что изначально хрущевки предполагалось использовать, как временное жилье и эксплуатационный срок здания составлял от 25 до 50 лет. Но, как известно, в таких домах проживают люди и в наше время. К минусам хрущевок можно отнести плохую шумоизоляцию и теплоизоляцию (зимой прохладно, а летом слишком жарко в квартире), не всегда удачную планировку квартиры и подъезда: узкие коридоры, маленькую кухню, отсутствие мусоропровода и очень часто лифта. К основным плюсам таких домов можно отнести невысокую стоимость.
К основным плюсам таких домов можно отнести невысокую стоимость жилья и развитую инфраструктуру вокруг здания. Как правило, недалеко от хрущевок есть садики, школы, магазины и отличная транспортная развязка. Если денежных средств на покупку квартиры мало, то– не самый плохой вариант. Тем более, такие здания в Москве и других городах России, подлежат сносу, в этом случае владельцы получают новенькое жилье, или реконструкции и перепланировке.

Серия 1-464 (1960 – 1967 гг.)
Общий чертеж:

Одной из самых популярных в СССР серий хрущевок стала 1-464 (1960 – 1967 гг.). Это панельный дом с 5 этажами, редко можно встретить 3 и 4 этажные здания. Во всех квартирах есть балконы (также дополнительные кладовки), а вот лифты не предусмотрены и жителям здания приходиться подниматься и спускаться по ступенькам, что достаточно тяжело пожилым людям, семьям с маленькими детьми. Санузлы в квартирах совмещенные, в подъезде нет общего мусоропровода, а количество квартир на площадке составляет 4. Высота потолков в квартирах – 2,5 м2, кухни менее 6 м2, если быть точнее – 5,8 м2. Квартиры 1, 2 и 3-х комнатные.
Картинка – чертеж:
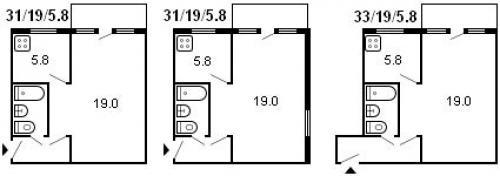
1 комнатная:

2 комнатная:



3 комнатная:

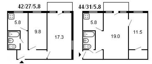
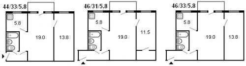
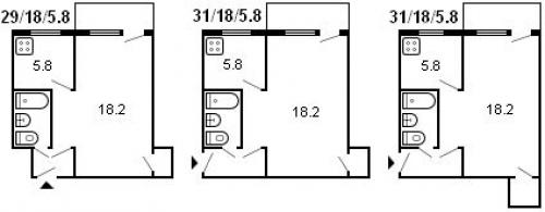
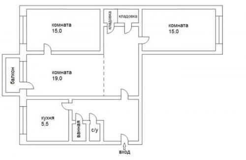
Серия 1-335 (1963 – 1967 гг.)
С 1963 по 1967 гг. территория застраивалась домами серии 1-335. Это тоже панельные здания, с высотой потолков 2,54 м., балконами в каждой квартире, совмещенными санузлами, отсутствием лифта и мусоропровода. Площадь кухни немного больше, чем в предыдущей серии – 6,2 м2, площадь потолков – 2,5 м. На площадке располагается четыре квартиры – от 1 до 3-х комнатной. Помимо балконов в квартирах есть дополнительные кладовки и встроенные шкафы.
1 комнатная:

2 комнатная:

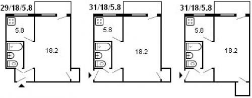
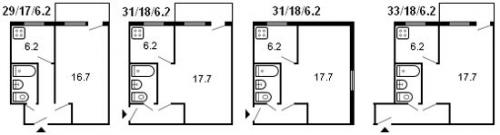
Серия 1-434 (1958 – 1964 гг.)
Эта серия строилась с 1958 года по 1964 год, в различные года застройки немного видоизменялись планировки квартир. Так, например, в зданиях 1958 года в однокомнатных квартирах площадь жилой комнаты составляла 18,6 м2, а в 1959 году она уменьшилась до 18,2 м2, в 1969 г. – площадь комнаты составляла 17,7 м2. И так во всех типах квартир площадь жилых помещений варьировалась в сторону уменьшения и увеличения. А вот площадь кухни осталась неизменной – 5,8 м2, как и высота потолков – 2,5 м. Дома – кирпичные, совмещенные санузлы, а в каждой квартире есть балкон, кладовая и встроенные шкафы.





Планировка хрущевки 3 комнаты. Варианты расположения комнат в трехкомнатной хрущевке
При разработке планов расположения помещений важно учесть образ жизни всех членов семьи и проанализировать их основные перемещения по квартире. Возможно все жильцы встают рано и также рано вместе уходят на работу в офисы, а затем возвращаются домой примерно в одно и тоже время. В этом случае стоит подумать о широком коридоре и раздельном санузле.

Расширить коридор можно визуально с помощью светлой отделки стен либо посредством перепланировки, передвинув перегородку между прихожей и гостиной

Замена громоздкой ванны на компактный душ решит проблему экономии места в маленьком санузле
Может быть, наоборот, у всех жильцов разный график – молодежь работает удаленно дома в своих комнатах, просыпается поздно, только один взрослый просыпается рано и сразу уходит на работу, а пожилая бабушка постоянно хлопочет по хозяйству. Тут имеет смысл расширить кухню за счет соседней комнаты и сделать красивую столовую.

Для разделения кухни-гостиной на зоны часто используют барную стойку
Популярные варианты расположения комнат:
- Трамвайчиком.
- Распашонкой.
- Мини-улучшенка.
- Книжкой.
Трамвайчиком называют вытянутую планировку, где все помещения и проходы к ним крепятся один к другому. Такое расположение считается очень неудобным. Здесь изолированным пространством становится только самое последнее помещение. В кухню обычно можно попасть через коридор, в гостиную через кухню, в другие комнаты через гостиную. Получается, что каждый раз нужно проходить всю квартиру подряд. Неудобство можно исправить, расположив все комнаты вдоль одного коридора. Можно также гостиную объединить с кухней, что добавит простора в квартиру.

Планировка трехкомнатной хрущевки “трамвайчиком”
Планировка распашонкой считается наиболее удачной. При распашонке коридор находится в центре квартиры, а по разные стороны от него расположены комнаты. Таким образом все комнаты являются изолированными друг от друга, и выходят на разные стороны света. Разная освещенность в помещениях делает квартиру более уютной и психологически комфортной. Минусами таких планировок могут быть неоправданно большие коридоры, за счет которых можно увеличить пространство комнат. Зачастую в таких квартирах еще бывают маленькие неудобные кухоньки. Эту проблему можно решить опять же за счет объединения кухни с ближайшим помещением.

Планировка трехкомнатной хрущевки “распашонки”
С точки зрения фэн-шуй такое расположение является не очень удачным, так как здесь центральным помещением становится коридор – то есть проходное пространство. Чтобы сбалансировать расположение зон имеет смысл увеличить одну комнату сделав ее центральной. Это может быть гостиная, столовая или жилое помещение главы семейства. Таким образом энергия будет концентрировать именно в этой зоне.
Планировка хрущевки 5 этажей. Техническое описание 1-335
Здание серии i-335 — это многоэтажный многоквартирный крупнопанельный жилой дом. Несущими элементами являются колонны сечением 300х400мм в центре здания, установленные с шагом 2,6 и 3,2 метра, ригели и наружные стеновые панели, так называемые неполный каркас.
Ригели (длинной 5800, 4800 и 2600мм) расположенные поперек дома опираются с одной стороны на колонны, а с другой на опорные столики наружных стеновых панелей, но начиная с 1963 года из-за обнаруженных проблем в проект был добавлен ряд колон снаружи здания на которые опиралась вторая часть ригеля (полный несущий каркас). При этом наружные панели стали самонесущими и можно сделать их демонтаж при производстве реконструкции дома. Внутренних несущих стен в доме нет кроме диафрагм жесткости.
В литературе иногда встречается написание номера типового проекта в конце с буквой «С». Это означает, что эти дома проектировались для районов с сейсмичностью в 7-8 баллов.
Распространение получили следующие дома 335 й серии
| Номер типового проекта | Этажность (количество этажей) | Количество квартир |
| 1-335-1 | пять этажей | 80 |
| 1-335-1с | пятиэтажный | восемьдесят |
| 1-335-2 | 5 этажей | 60 |
| 1-335-2с | пять | шестьдесят |
| 1-335-3 | четыре этажа | 64 |
| 1-335-3с | Четырехэтажный | шестьдесят четыре |
| 1-335-4 | 4 этажа | 48 |
| 1-335-4с | четыре | сорок восемь |
| 1-335-5 | три этажа | 36 |
| 1-335-6 | трехэтажный | 24 |
| 1-335-7 | 3 этажа | 12 |
| 1-335-8 | двухэтажка | 16 |
| 1-335-9 | два | 8 |
| 1-335-10 | пять | 40 |
| 1-335-11 | четыре | 32 |
| 1-335-30 | Пятиэтажка | 100 |
В 1964г появился дом с эркерами, но в серийное производство не пошел.
В домах, построенных после 1962 с полным каркасом, исключились протечки и промерзания швом в наружных панелях.
Проектом серии i 335 предусмотрено по 4 квартиры на одном этаже.
В таком типе многосекционного дома проектировалось 1-на 2-х и трехкомнатное жилье. При том, что трешки в ряде случаев имели расположение комнат на обе стороны дома (распашонки / бабочки).
Балконы предусмотрены прямоугольной формы в плане. Балконы располагались на всех этажах здания, кроме первого и только по двум длинным сторонам здания серии i-335. На торцевой стене дома окна располагались ближе к углу.
Следует отличать серию домов 1-335 й от серии 1-335А. В них другие планировки и свои особенности.
Особенностью планов всех квартир в советском доме l-335 является наличие объединенного санузла и в угловых комнатах наличие двух окон в одной комнате.
Помещения квартир i-335 представляет собой прямоугольник, только проходная комната неправильной формы.
Наружные стены в здании строительной серии i-335 представляют собой двухслойные стеновые панели, состоящие из несущей железобетонной ребристой тонкостенной скорлупы толщиной 40мм, заполненной внутри пенобетоном 260мм. Общая толщина панели составляет 300 мм.
Толщина торцевых стен при полнокаркасной схеме увеличена до 350 мм.
Внутриквартирные перегородки в здании i-335 времен Советского Союза выполнены из гипсошлаковых панелей толщиной 8 см.
Межквартирные стены запроектированы из гипсобетонных перегородок, выполненных с воздушным зазором 40мм для улучшения шумоизоляции, общей толщиной 200мм.
Туалет и ванная комната в многоэтажном советском доме совмещенные, представляю собой сантехническую кабину, выполненную из железобетона.
Междуэтажные перекрытия — железобетонные панели толщиной 100мм.
Высота потолка — 2,54 метра. Высота этажа ровна 2,7м.
В некоторых квартирах есть антресоль.
Срок службы (эксплуатации) здания разный, не все здания сносятся, в некоторых делается капитальный ремонт.
Проект дома 1-335 й разрабатывался с уменьшением типоразмеров изделий. Их насчитывалось всего 27. Из них можно было собрать только 5 этажей без всяких угловых секций и никаких арок, декора и магазинов на первом этаже. Были также исключены из проекта пандусы, лестницы пожарные, мусоропроводы и лифты.
Помещения в таком типе жилья имеют следующий квадратуру:
- балкон 1,59-1,59м2;
- гостиная 17,12-17,13м. кв.;
- детская 8,48-13,78кв. м.;
- зал/гостиная (проходная) 17,12-19,4кв метр.;
- кладовая / тещина комната 1,59-2,85метр. кв. ;
- комната 18,36-18,37м2;
- комната (проходная) 21,66-22,83 метров;
- кухня 6,3-6,87 квадратов;
- прихожая / коридор 2,89-5,45м2;
- санузел (совмещенный) 2,86-2,95м. кв. ;
- спальня 9,99-13,78кв. м. ;
- шкаф 0,62-0,62 квадратов.
Метраж помещений по каждой отдельной квартире можно увидеть в таблице экспликации помещений 1-335 (на чертежах). Чертежи i-335 содержат длину и ширину помещений, и их квадратуру.












Планировка хрущевки 2 комнаты 44 м. Какие могут быть вариации для перепланировки
В большей части стран миниатюрные «хрущевки» имели статус всего лишь временного жилья. В нашей же стране для многих они смогли стать жильем постоянным. Сегодня жильцы все чаще задумываются об идеях с перепланировкой. А наиболее распространенными вариантами для «двушек» можно считать такие:
- книжка. По праву считается самым неудачным вариантом расположения. Все жилые помещения здесь – проходные, а размеры кухни не превышают шести «квадратов». Основной минус в том, что разделить помещения можно только путем уменьшения габаритов зала и увеличения длины коридора. Есть вариант совмещения комнаты с кухней, но этот способ нельзя назвать стоящим;

- трамвай. Оформление «двушки» с проходной комнатой можно поразительно изменить, если удлинить коридор за счет двух смежных комнат, одна из которых будет угловой. Подобные перемены более функциональны, чем в предыдущем варианте, ведь позволяют не только изолировать пространство, но и добавить в прихожей вместительный гардероб. Вот почему данный вариант перепланировки считается самым востребованным;

- мини-улучшенка. С самого начала санузел и жилые комнаты здесь изолированы, во многих вариантах даже имеется кладовка. Зал можно разделить на две небольшие комнаты, соорудив таким образом «трешку». Однако гораздо чаще изменение планировки хрущевок преследует только одну цель – увеличить масштабы кухни. И действительно, в данном случае, если пожертвовать кладовой, будет несложно добавить кухне пару-тройку метров.

Хрущевка планировка размеры. Что представляют собой хрущевки
В пятидесятых годах прошлого века в стране, немного оправившейся от последствий страшной войны, остро встал вопрос обеспечения жильем ее населения. Основная задача заключалась в предоставлении отдельных квартир семьям, ютившимся в бараках и коммуналках. А таких в государстве, строящим коммунизм, было огромное количество. Ситуация многократно осложнилась из-за значительного разрушения жилого фонда в военные годы.

Планировка хрущевки 2 комнаты — варианты
Необходимо было построить за короткий срок большое количество многоквартирных домов, причем с минимальными финансовыми вложениями. При этом делался упор на функционализм, простоту и строгость форм архитектурных объектов.
Сменились ориентиры градостроительства. Все ресурсы были направлены на создание типовых проектов (с индивидуальным проектированием объектов для жилья в этот период практически было покончено), повышение экономичности и скорости возведения строений.

Одно из самых неоспоримых достижений Советской власти – это массовое строительство бесплатного жилья, начатого вскоре после окончания ВОВ
Новые жилые здания резко контрастировали со сталинской архитектурой, отличавшейся монументальностью и пышностью. Хрущевки получили свое народное название в честь Никиты Сергеевича Хрущева, в период его нахождения у власти, как правило, и возводилось такое жилье.

Хрущевки — основные плюсы и минусы домов
Стиль строившихся по типовым проектам многоквартирных строений относится к функционализму. Возводились как панельные и блочные здания, так и дома из кирпича. Основная масса народного жилья была построены из железобетонных панелей. Такие постройки строились очень быстро, зачастую в ущерб качеству. Они отличались легкостью конструкций, плохой теплоизоляцией и высоким уровнем слышимости в квартирах. Однако по качеству, функциональности и комфортности для проживающих их нельзя было сравнить с двухэтажными деревянными зданиями, строительство которых было популярно при И. В. Сталине. Эксплуатационный ресурс панельных домов был определен в 25 и 50 лет, однако большинство из них до сих пор находятся в жилом фонде.

Хрущевки
При отсутствии в населенных пунктах собственного ДСК предпочтение отдавалось возведению кирпичных зданий. В качестве строительного материала чаще всего использовался дешевый силикатный кирпич и стандартные железобетонные изделия, к которым относятся плиты перекрытия, перемычки, пролеты лестниц и т. д. Кирпичные постройки приписывались к несносимым сериям (срок эксплуатации был определен в полторы сотни лет).

Кирпичная хрущевка
В основном, здания имеют четыре или пять этажей (редко, как правило, в небольших населенных пунктах, строились и строения меньшей этажности). Выше возводить дома без лифта нельзя по существующим нормам. От лифта и мусоропровода отказались опять-таки из-за экономических соображений.
Также снижение себестоимости строительства было достигнуто при помощи рационализации планировок. Нормы жилой площади и габариты квартир были пересмотрены в сторону уменьшений. Высота потолков была ограничена 2,5 метрами (позднее появились серии с более высокими потолками), размер кухни варьировался в пределах 5…6 кв. м. (отдельные модификации серий могли похвастаться и большим метражом этого помещения). Санузлы стали устраивать совмещенными. Комнаты в двухкомнатных квартирах были также не изолированными. Однако для удобства жильцов в квартирах предусматривались небольшая кладовая комната и балконы.

Маленькая кладовка в хрущевке
Все необходимые удобства для проживания были в наличии: центральное отопление, водоснабжение (горячее могло быть как центральным, так и от газовых колонок), системы канализации и вентиляции были при проектировании предусмотрены.
В результате акцент на типовое малогабаритное жилье позволил снизить его себестоимость почти на треть. При этом следует отметить, что для подавляющего количества граждан переселение даже в маленькие квартиры в то время было большим шагом в сторону создания комфортных условий жизни, так как люди получили возможность переехать из коммунальных квартир, бараков и общежитий в отдельное жилье. Тогда собственная квартира, пусть и небольшой площади, представлялась воплощением мечты.
Планировки хрущевок 1 комната. Хрущевки. Типовые планировки
Массовое строительство хрущевок началось в 1958 году и длилось до 1985. В то время тысячи семей получили собственное жилье в 4-5-ти этажных панельных и кирпичных домах. Комнаты были очень маленькими и в большинстве случаев проходными, коридоры были узкими и темными, а санузлы сразу были совместными. Высота потолков составляла 2.48 м, в редких случаях – 2.7 м. Площадь однокомнатных квартир не превышала 29-33 кв.м. из которых 5.8-6.2 метра отводились под кухню, от 15.9 до 20.7 метров – под гостиную. Остальную площадь занимал коридор и ванная комната. Размеры помещений зависели от года постройки и серии и имели следующие типовые планировки:Примечательно, что практически все однушки имели балкон и почти одинаковое расположение комнат. Прежде чем приступить к каким-то радикальным мерам , необходимо четко знать:
- Точное количество проживающих. Ведь одно дело проводить работы по организации комфортного проживания для одного человека, и совсем другое – для молодой семьи с ребенком. Требования будут кардинально отличаться, разделение площади будет совсем иным;
- Без каких функциональных зон вы точно не сможете прожить. Речь идет о таких «помещениях», как рабочий кабинет или полноценная изолированная спальня. Ведь некоторые люди запросто используют диван в гостиной для ежедневного сна и чувствуют себя при этом абсолютно нормально, а на других такая открытость действует угнетающе;
От двух вышеперечисленных факторов будет зависеть объем работ, которые нам предстоит распланировать, необходимость сноса межкомнатных перегородок или, наоборот, возведения дополнительных. Не удивляйтесь. Но действительно не все дизайнеры рекомендуют делать из однушки квартиру-студию . Для того, чтобы жилье отвечало всем требованиям хозяев, иногда устанавливаются полноценные глухие перестенки из легких материалов – гипсокартона или газобетона. Поэтому, предварительно рекомендуют составить список из обязательных пунктов, которые вы хотите иметь. Это может быть что угодно – раковина напротив окна в кухне, стеллаж под личную библиотеку, бытовая техника, от которой вы не в силах отказаться и т.д. На основании этого списка нужно планировать дизайн интерьера и перераспределять пространство между зонами.
Хрущевка планировка 1 комнатная угловая. Особенности планировки и зонирования
Несмотря на то что «хрущевки» – это достаточно маленькие квартиры с низкими потолками, избавившись в них от всего лишнего и используя современные материалы, можно визуально сделать их просторнее и комфортабельнее с минимальными затратами.
Многие профессионалы сходятся во мнении, что в большинстве случаев однокомнатным квартирам может помочь только качественный ремонт и зонирование функциональных зон. Современные перегородки дают возможность расширить пространство жилой зоны , а в некоторых случаях даже создать полноценную квартиру-студию.
В квартире, в которой ей газ, может быть весьма проблематично совместить кухонную, столовую и спальную зону (или гостиную) без соответствующих документов. Как правило, это запрещено. Обычно студию создают только в тех домах, где на кухне плита не газовая, а электрическая.
Не несущие стены сносить можно, однако во многих «хрущевках» они именно таковыми как раз таки являются . Если стена, например, на балкон не несущая, то ее можно снести и расширить пространство кухни, присоединив к нему обеденную зону.
Выделять отдельные функциональные зоны можно при помощи разных настенных и напольных покрытий. Они могут отличаться по цвету и фактуре. В качестве перегородок в помещениях можно использовать ширмы, текстильные перегородки и варианты из стекла, а также шкафы и стеллажи.
Перед началом ремонтных работ неплохо иметь проект будущего интерьера. Его можно сделать на компьютере или просто нарисовать для наглядности на бумаге.
Планировка хрущевки 2 комнаты. Типовые проекты
Итак, у нас есть поэтажный план дома, и на нем мы нашли свою квартиру. Изучим возможности для модернизации. Наша двухкомнатная «хрущевка» имеет стандартный метраж от 30 («полуторка») до 43 кв. м. общей площади. Комнаты, как правило, смежные. Санузел и ванная объединены в одно помещение. Коридор не более 3 кв. м, туда выходит дверь кухни, большой комнаты и ванной. Балкон или лоджия в наличии, если это не первый этаж.
Смежные комнаты располагаются по типу «трамвай»: из зала ведет дверь в узкую и длинную комнату. Здесь удобно продлить коридор за счет большой комнаты, узкую комнату оставить без изменения, в конце коридора расположить шкаф – купе. Таким образом, мы получаем две небольшие изолированные комнаты для взрослых членов семьи и детей.
Для одиноких владельцев можно предложить вариант объединения кухни и зала.
Второй тип планировки: комнаты располагаются друг за другом, зал проходной, между кухней и залом коридор заменяет ниша. Тут уже наличествует объединение функциональных зон, и, однозначно, стена между кухней и смежной комнатой, в которой размещена ниша не является несущей. Здесь можно применить следующие методы переустройства: снести часть стены между кухней и залом, объединив эти две зоны, и оставить простенок, отделяющий входную дверь. Так пространство квартиры будет более уютным и камерным.
Более радикальный способ – сносится вся стена между кухней, залом, прихожей, остается нетронутым сантехнический блок. Современный минимализм в дизайне помещений опирается именно на такие полностью открытые пространства, И, наконец, противоположное решение для изоляции помещения. Ниша достраивается до полноценной стены, делается обычный дверной проем и получается изолированные коридор, кухня, зал. Такой вариант предпочтителен для семей с детьми, где нужно удовлетворить запросы нескольких домочадцев с различными режимами сна и бодрствования.
Третий тип – угловая квартира 2 х комнатной планировки , особенность угловых квартир в том, что в одной из комнат находится два окна. Это, с одной стороны, затрудняет расстановку мебели, а с другой, расширяет возможности для стильного дизайнерского оформления пространства. Если нет препятствий со стороны несущих конструкций, то из этой комнаты можно сделать две маленькие спальни или спальню и кабинет, спальню и детскую. А зал объединить в единое пространство с кухней и прихожей, где сможет собираться вся семья.
Сегодня в дизайне квартир модным направлением является наличие единого пространства без капитальных стен, но с функциональным зонированием с помощью мебели, трансформирующихся систем и отделочных материалов.
Хрущевка планировка 1 комнатная размеры. Планировка однокомнатной «хрущевки»
Чтобы правильно спланировать зоны однокомнатной квартиры, потребуется выполнить перепланировку.
Оптимальным вариантом будет устранение перегородок , поскольку это позволит увеличить площадь комнаты и сформировать очень удобную и современную квартиру-студию.
Убирать перегородки необходимо только те, что можно снести без вреда для конструкции дома. Этот вопрос нужно будет согласовывать со службами БТИ. Запрещено трогать несущие стены, вентиляцию и газопровод, а также располагать санузел над жилой комнатой или кухней соседей. Выполнять данные требования крайне важно, поскольку их нарушение может привести к таким плачевным последствиям, как разрушение дома.
На этапе принятия решения о перепланировке квартиры необходимо принять во внимание такой важный фактор, как количество людей, проживающих в 1-комнатной квартире. К примеру, если в комнате будут жить родители и ребенок, необходимо разграничить пространство на две отдельные спальные зоны, которые можно разделить при помощи перегородки или штор.
При планировке 1-комнатной квартиры, в которой будут проживать родители и двое детей, целесообразно будет предусмотреть установку детской двухъярусной кровати.
Современные модели таких кроваток имеют очень красивый и яркий дизайн , вы можете подобрать двухъярусную кровать с изображением любимых сказочных персонажей деток, тогда они наверняка будут в полном восторге от своих кроватей.
Одна комната размером в 30 кв. м может выступать одновременно и в качестве спальни, и в качестве гостиной, и в качестве детской. Также она может использоваться в качестве личного кабинета, для которого также следует предусмотреть отдельную зону для письменного стола – за ним домочадцы смогут работать и учиться.
В комнате не стоит устанавливать прикроватные тумбочки – они лишь будут отнимать много свободного пространства. А вместо стандартной кровати лучше всего установить диван-трансформер, который очень легко и быстро превращается в удобную и просторную двухспальную кровать.
Стол в комнате можно использовать также раздвижной – это очень удобно для небольших комнат, поскольку в сложенном виде стол будет занимать минимум места, но при необходимости он легко превратится в большой стол, за которым удобно разместятся все ваши гости.
Для небольших квартир оптимально использовать не только диваны-трансформеры, но и кресла, кровати и даже шкафы, в которых прячется спальное место.
Чаще всего владельцы однокомнатных хрущевок объединяют кухню с комнатой. Это очень правильное решение, поскольку кухни в хрущевках очень малы, в них с трудом размещается одновременно даже пара людей. Именно поэтому оптимальным решением станет объединение кухни с залом.
Однако, эти две зоны можно все же немного разграничить – при помощи установки барной стойки или же арки. Если такие варианты зонирования вам не по душе, то разграничить пространство получится при помощи внешнего вида отделки и мебели – используйте для кухни и комнаты напольное покрытие и отделку стен разных цветов. Обозначить различные зоны можно также и при помощи различного освещения.
В квартирах данного типа туалет и ванная обычно раздельные, однако их лучше сделать совмещенными, а также установить вместо громоздкой ванны компактную угловую душевую кабинку. Это позволит слегка увеличить свободное пространство помещений и сделать интерьер более удобным.
С таким вариантом планировки санузла вы сможете даже установить в ванной комнате стиральную машинку, а также выкроить немного места для навесных полочек или шкафчиков, в которых вы сможете хранить различные предметы гигиены.
Еще одна идея, которая в последнее время пользуется огромной популярностью – переделка балкона в просторную застекленную лоджию. Таким образом можно получить дополнительное пространство, где можно расположить еще одно спальное место, или же обустроить там рабочий кабинет.
Самое главное в этом деле – предусмотреть качественное утепление лоджии, на ней должна всегда поддерживаться комфортная температура.
Все советские квартиры-хрущевки были оборудованы небольшими кладовыми, которые теперь можно переделать в удобные и вместительные встроенные шкафы-купе.
Дополнительное место можно выкроить также, если снести перегородку между комнатой и прихожей.


