Планировка квартиры в хрущевке. Хрущевки: описание, типовые планировки с фото
- Планировка квартиры в хрущевке. Хрущевки: описание, типовые планировки с фото
- Планировка хрущевок 2 комнаты. Типы исходной планировки с вариантами улучшений
- Планировка хрущевки 2 комнаты 44 м. Отличительные черты планировки хрущевок в кирпичных домах
- Планировка хрущевки 2 комнаты угловая. Популярные варианты
- Планировка хрущевки 1 комната. Хрущевки. Типовые планировки
- Планировка хрущевки 5 этажей. Планировка «хрущевка»: история «хрущевской» планировки квартир
- Планировка хрущевки 4 квартиры на этаже. Особенности перепланировки 4-комнатной квартиры-хрущевки
- Планировка хрущевки 3 комнаты. Варианты расположения комнат в трехкомнатной хрущевке
Планировка квартиры в хрущевке. Хрущевки: описание, типовые планировки с фото

Введение
Сегодня существует множество многоярусных домов различной планировки, годов постройки и размера жилой площади. В данной статей Мы более подробно рассмотрим основные планировки популярных многоэтажных «Хрущовок», которые можно встретить в каждой стране бывшего СССР. Как правило, это 4-х или 5-ти этажные многоквартирные дома, которые возводились во времена руководства Хрущева Никиты Сергеевича.
«Хрущевки» возводились в период с 1958 до 1985 года, при этом стройка была современного на то время типа, и тысячи семей смогли получить комфортабельные квартиры с проходными комнатами. С 1958 года действует собственный СНиП.
Общие сведенья о хрущевках
Первое поколение 4-х или 5-ти этажных «хрущевок» отличалось небольшой жилой площадью, проходными комнатами. В таких апартаментах высота потолков достигала всего 2,48 метра, в домах блочного типа высота потолка могла достигать 2,7 метра. В «хрущевках» была достаточно слабая звукоизоляция помещений, совмещенный санузел и отсутствовали лифты.
Стоит отметить, что некоторые «хрущевки» относились к временному жилью, которые рассчитывали на эксплуатацию до 25 лет. Однако большая часть, все еще используется гражданами бывших стран СССР. К «хрущевкам» не сносимой серии применялись другие эксплуатационные нормы до 50 лет. В последствие эксперты заявили, что эксплуатационный период можно продлить до 150 лет (в случае капитальных ремонтов согласно нормам). На сегодняшний день «хрущевки» в Москве и Питере подлежат сносу. Однако в Минске, «хрущевкам» выполнили кап. ремонт и утеплили наружные стены.
Основные характеристики «хрущевок»:
- 3-комнатные с общей площадью 55-58 м²;
- 2-комнатные с общей площадью 30-46 м²;
- 1-комнатные с общей площадью 31-33 м².
Жилая площадь комнат:
- Гостиные комнаты – от 14 м²;
- Спальные комнаты – от 8 м²;
- Детские комнаты – от 6 м²;
- Кухни – от 4,5 м².
Виды типовых планировок, серии, фото, описания и годы постройки хрущевок
СЕРИЯ 1-464 – (год постройки 1960-1967)
Пяти ярусные дома панельного типа с четырьмя квартирами на одной площадке.
Особенности:
Высота помещений – 2,5 м;
Санузел совмещенный;
Кухня – 5,8 м²;
Особенности: кладовка, шкафы встроенного типа, балкон.
Площадь гостиной в 1-но комнатных «хрущевках» этого типа составляет 19 м², в 2-х и 3-х комнатных 17,3 м²; 19 м² и 20,4 м² в зависимости от планировки. Кладовая размещается в конце спальни или между 1 и 2 спальней. Выход на балкон из гостиной. Санузел совмещенный рядом с кухней.
СЕРИЯ 1-335 – (год постройки 1963-1967)
Панельные пяти ярусные дома с четырьмя квартирами на одной площадке.
Особенности:
Высота помещений – 2,5 м;
Санузел совмещенный;
Кухня – 6,2 м²;
Особенности: кладовка, шкафы встроенного типа, балкон.
Площадь гостиной в 1-но комнатных «хрущевках» этого типа составляет 18 м², в 2-х и 3-х комнатных 17,1 м²; 18,2 м² и 19,1 м² в зависимости от планировки. Кладовая размещается в конце гостиной или между 1 и 2 спальней. Выход на балкон из гостиной. Санузел совмещенный рядом с кухней.
СЕРИЯ 1-434 – (год постройки 1958-1964)
Панельные пяти ярусные дома с четырьмя квартирами на одной площадке.
Источник: https://360doma.ru/stati/planirovka-kvartiry-v-hrushchevke-vozmozhnye-pereplanirovki
Планировка хрущевок 2 комнаты. Типы исходной планировки с вариантами улучшений
Базовая планировка 2-комнатной хрущевки определяется не только размером свободной площади, но еще и характером расположения жилых комнат. В этом плане есть несколько вариантов, и мы пробежимся по самым популярным из них — со вполне конкретным предложением по кардинальным преобразованиям к каждому.
«Распашонка»
Примерно одинаковые по площади жилые комнаты (16-17 кв.метров) расположены по левую и правую стороны от прихожей и изолированы друг от друга. Между ними располагается санузел и небольшая кухня примерно на 5 кв. метров.

Что можно сделать:
Самое слабое звено в этой схеме — скромная кухня, и ее можно увеличить за счет одной из комнат.

Планировка распашонкой для 2-комнатной хрущевки смотрится одним из самых удачных решений, так как позволяет обойтись минимумом потраченных усилий для придания квартирному пространству более современного вида.

«Книжка»
Две жилые комнаты является смежными — их разделяет одна длинная стена. Кухня на 4-5 кв.метра и санузел располагаются по левую-правую сторону от коридора.


Что можно сделать:
- увеличить кухню за счет объединения с прилегающей к ней комнатой;
- продлить коридор и сделать пространство при входе более свободным.



Мини-улучшенка
2 жилые комнаты изолированы друг от друга. Вход в каждую оформлен через прихожую. Выделяется гостиная с прилегающим балконом — примерно на 20 кв. метров. Вторая комната поменьше, на 10-11 квадратов: за ней расположена очень маленькая кухня. Такая планировка 2-комнатной хрущевки занимает в общей сложности 45 кв. метров и признается одной из лучших среди квартир советского типа.
Что можно сделать:
- сделать более просторной кухню за счет объединения с малой комнатой или прихожей;
- убрать перегородку между гостиной и балконом;
- объединить туалет и ванную комнату.

Трамвай
Прихожую в хрущевках такого типа венчает вход в большую гостиную, к которой примыкает вторая аналогичная по размеру смежная комната. Справа от прихожей располагается раздельный на туалет и ванную санузел.


Это очень выгодная планировка, так как кухня при такой схеме имеет вполне комфортные размеры.
Планировка хрущевки 2 комнаты 44 м. Отличительные черты планировки хрущевок в кирпичных домах
При рационализации строительства панельных домов было принято решение заменить железобетонные панели, которые в то время использовались для строительства на силикатный кирпич. Его было удобно перевозить на место стройки. Был заново разработан новый проект, который немного отличался от разработанного до этого для панельных зданий.

Если в двухкомнатной хрущевке проживает пара или семья с ребенком, квартира нуждается в переделке.
Было разработано новое архитектурное новшество, которое подразумевало переделку комнат с использованием продольного расположения. Это уменьшало количество однокомнатных квартир в жилом доме. Изменились также габариты кухни – они стали меньше, но увеличилась площадь, которую занимают кладовки и добавились лоджии.

Если снести все стены (за исключением несущих), получится квартира со свободной планировкой.
Угловая 2 комнатная хрущевка отличается измененной планировкой, которая выводит окна на две стороны, и существует возможность обзора улицы с разных ракурсов. На этом плюсы этой жилплощади заканчиваются. При возведении панельных домов стены делались тонкими, что уменьшало их теплоизоляционные свойства.

Эти квартиры были холоднее по сравнению с другими, которые находились, например, внутри здания.
В кирпичных домах, где стены достаточно толстые (полметра и больше), такая проблема с промерзанием угловых стен не бывает такой актуальной. В таких помещениях намного теплее и комфортнее.
Планировка хрущевки 2 комнаты угловая. Популярные варианты
Практика показывает, что реконструкции хрущевок дают потрясающий результат – при совмещении санузла освобождается место для стиральной машинки; при сносе перегородки между комнатой и кухней появляется пространство для обеденного стола. На приведенных ниже схемах показано еще несколько способов повысить комфорт двухкомнатных хрущевок.
2 смежные комнаты в хрущевке
Смежными называются помещения, имеющие общую стену. Планировка со смежными комнатами и разными входами называется "мини-улучшенка". Если в квартире есть кладовка , за счет нее можно увеличить площадь кухни: кладовая разбирается, санузел переносится на ее место, а к площади кухни прибавляется 3 кв метра.

На фото увеличенная кухня в двухкомнатной хрущевке, где нашлось место обеденному столу.


Без перегородки между кухней хрущевка превратится в евродвушку, а владелец получит просторную кухню-гостиную. Если кухня газифицирована, проем необходимо оборудовать раздвижной перегородкой. Лоджию можно утеплить и использовать в качестве кабинета .


Планировка хрущевки 1 комната. Хрущевки. Типовые планировки
Массовое строительство хрущевок началось в 1958 году и длилось до 1985. В то время тысячи семей получили собственное жилье в 4-5-ти этажных панельных и кирпичных домах. Комнаты были очень маленькими и в большинстве случаев проходными, коридоры были узкими и темными, а санузлы сразу были совместными. Высота потолков составляла 2.48 м, в редких случаях – 2.7 м. Площадь однокомнатных квартир не превышала 29-33 кв.м. из которых 5.8-6.2 метра отводились под кухню, от 15.9 до 20.7 метров – под гостиную. Остальную площадь занимал коридор и ванная комната. Размеры помещений зависели от года постройки и серии и имели следующие типовые планировки:

Примечательно, что практически все однушки имели балкон и почти одинаковое расположение комнат. Прежде чем приступить к каким-то радикальным мерам , необходимо четко знать:
- Точное количество проживающих. Ведь одно дело проводить работы по организации комфортного проживания для одного человека, и совсем другое – для молодой семьи с ребенком. Требования будут кардинально отличаться, разделение площади будет совсем иным;
- Без каких функциональных зон вы точно не сможете прожить. Речь идет о таких «помещениях», как рабочий кабинет или полноценная изолированная спальня. Ведь некоторые люди запросто используют диван в гостиной для ежедневного сна и чувствуют себя при этом абсолютно нормально, а на других такая открытость действует угнетающе;

От двух вышеперечисленных факторов будет зависеть объем работ, которые нам предстоит распланировать, необходимость сноса межкомнатных перегородок или, наоборот, возведения дополнительных. Не удивляйтесь. Но действительно не все дизайнеры рекомендуют делать из однушки квартиру-студию . Для того, чтобы жилье отвечало всем требованиям хозяев, иногда устанавливаются полноценные глухие перестенки из легких материалов – гипсокартона или газобетона. Поэтому, предварительно рекомендуют составить список из обязательных пунктов, которые вы хотите иметь. Это может быть что угодно – раковина напротив окна в кухне, стеллаж под личную библиотеку, бытовая техника, от которой вы не в силах отказаться и т.д. На основании этого списка нужно планировать дизайн интерьера и перераспределять пространство между зонами.

Планировка хрущевки 5 этажей. Планировка «хрущевка»: история «хрущевской» планировки квартир
Крупнопанельная планировка Хрущевки серии 1-335 самая распространенная планировка домов на территории России. Самое большое их количество было построено в Санкт-Петербурге, теперь же по количеству эксплуатируемых домов этой планировки лидирует Омск.
Данная планировка домов предусматривает также утепленные минватой дома, которые внешне отличаются отделкой фасада мелкой керамической плиткой и имеют сине-голубой цвет. Данное отличие делает их немного более привлекательнее внешне, но внутри они обычные «хрущевки».
Планировка дома «хрущевки» серии 1-335 имеет внешнее сходство с серией домов 1- 507, которые имеют народное наименование «брежневки», с более удачной планировкой квартир и кухней, площадью около 7 кв. метров.
Что примечательно, начавшееся в 1959 году строительство «хрущевок», которые были предназначены для Москвы и Питера, в 1966 году было приостановлено, в виду несоответствия климатическим условиям. Но как ни странно, это не помешало модернизировать эти серии домов (1-335АК и 1-335Д, 1-335К, 1-335А) и возводить их по всей стране, независимо от климатических условий вплоть до окончания 1980-ых годов.
В настоящее время в той же Москве, по мнениям некоторых экспертов снос домов «хрущевок» будет завершен примерно в 2015 или в 2017 гг. В соседнем Санкт-Петербурге производят капитальные ремонты домов этой серии, некоторые тоже отправляют под снос.
Что касается Хабаровска, то скорее всего планировка квартир данного типа останется актуальной еще достаточное количество времени, ведь сносить их дело невыгодное…
Расположение домов в Хабаровске с планировкой «хрущевка»
В планировке квартир «хрущевка» тоже присутствует и самая, пожалуй плотная застройка на территории 1-го Микрорайона. Имеются также на ДОСах, в районе Хабаровск-2, районе 38 и 51 школы, в Южном микрорайоне и других.
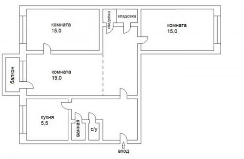
Планировка хрущевки 4 квартиры на этаже. Особенности перепланировки 4-комнатной квартиры-хрущевки
Переделка хрущевки в современных реалиях может стать просто необходимой, ведь бывшей при строительстве надобности поместить в квартиру как можно больше человек уже нет. Да и данные дома больше не позиционируются как временные. Зато появились новые стандарты жилья, и теперь 60 кв м – это размер хорошей двухкомнатной квартиры, а не четырехкомнатной хрущевки с неудачной планировкой.

В большинстве хрущёвок внутренние межкомнатные перегородки не являются несущими, но в четырёхкомнатных квартирах конца 60-х годов такое возможно из-за особенностей планировок.
Дело, конечно, не в количестве квадратных метров, а в правильном их использовании. И в данном случае перепланировка – первый шаг на пути к изменениям.
Особенности квартир старой планировки
Изначально для хрущевок планировка 4х-комнатных квартир не отличалась системностью и особой продуманностью, а потому имеет ряд недостатков:
- узкие подсобные помещения (санузлы, кухни, прихожие, кладовые);
- тесные жилые комнаты с недостаточным освещением из-за узких окон;
- плохая шумо- и теплоизоляция;
- тусклые коридоры;
- мало удобные балконы и кладовые;
- маленькие совмещенные санузлы, в которых недостаточно места для стиральных машинок и иной техники;
- очень маленькие кухни;
- низкие антресоли и потолки;
- узкие проходы;
- непродуманное расположение жилых комнат и находящихся по соседству уборных.

При должном оформлении и продуманном зонировании сделать уютным получится любое жилье.
Источник: https://360doma.ru/stati/hrushchevka-3-kvartiry-na-etazhe-seriya-k-7-1950-e
Планировка хрущевки 3 комнаты. Варианты расположения комнат в трехкомнатной хрущевке
При разработке планов расположения помещений важно учесть образ жизни всех членов семьи и проанализировать их основные перемещения по квартире. Возможно все жильцы встают рано и также рано вместе уходят на работу в офисы, а затем возвращаются домой примерно в одно и тоже время. В этом случае стоит подумать о широком коридоре и раздельном санузле.

Расширить коридор можно визуально с помощью светлой отделки стен либо посредством перепланировки, передвинув перегородку между прихожей и гостиной

Замена громоздкой ванны на компактный душ решит проблему экономии места в маленьком санузле
Может быть, наоборот, у всех жильцов разный график – молодежь работает удаленно дома в своих комнатах, просыпается поздно, только один взрослый просыпается рано и сразу уходит на работу, а пожилая бабушка постоянно хлопочет по хозяйству. Тут имеет смысл расширить кухню за счет соседней комнаты и сделать красивую столовую.

Для разделения кухни-гостиной на зоны часто используют барную стойку
Популярные варианты расположения комнат:
- Трамвайчиком.
- Распашонкой.
- Мини-улучшенка.
- Книжкой.
Трамвайчиком называют вытянутую планировку, где все помещения и проходы к ним крепятся один к другому. Такое расположение считается очень неудобным. Здесь изолированным пространством становится только самое последнее помещение. В кухню обычно можно попасть через коридор, в гостиную через кухню, в другие комнаты через гостиную. Получается, что каждый раз нужно проходить всю квартиру подряд. Неудобство можно исправить, расположив все комнаты вдоль одного коридора. Можно также гостиную объединить с кухней, что добавит простора в квартиру.

Планировка трехкомнатной хрущевки “трамвайчиком”
Планировка распашонкой считается наиболее удачной. При распашонке коридор находится в центре квартиры, а по разные стороны от него расположены комнаты. Таким образом все комнаты являются изолированными друг от друга, и выходят на разные стороны света. Разная освещенность в помещениях делает квартиру более уютной и психологически комфортной. Минусами таких планировок могут быть неоправданно большие коридоры, за счет которых можно увеличить пространство комнат. Зачастую в таких квартирах еще бывают маленькие неудобные кухоньки. Эту проблему можно решить опять же за счет объединения кухни с ближайшим помещением.

Планировка трехкомнатной хрущевки “распашонки”
С точки зрения фэн-шуй такое расположение является не очень удачным, так как здесь центральным помещением становится коридор – то есть проходное пространство. Чтобы сбалансировать расположение зон имеет смысл увеличить одну комнату сделав ее центральной. Это может быть гостиная, столовая или жилое помещение главы семейства. Таким образом энергия будет концентрировать именно в этой зоне.