Однушка в хрущевке планировка. Особенности типовых домов 50-х годов постройки
- Однушка в хрущевке планировка. Особенности типовых домов 50-х годов постройки
- Дизайн однокомнатной хрущевки без перепланировки. Особенности оформления интерьера без перепланировки
- Хрущевка планировка 1 комнатная размеры. Характеристики планировки дома «хрущевка»
- Перепланировка однокомнатной хрущевки с двумя окнами. Перепланировка 1-комнатной квартиры в хрущевке
- Планировка однокомнатной хрущевки без балкона. Особенности планировки и зонирования
- Хрущевка планировка 1 комнатная угловая. Хрущевки. Типовые планировки
- Планировка однокомнатной хрущевки с балконом. Дизайн однокомнатной хрущевки: размеры, ремонт, фото планировок однушки в 30, 40 и более квадратных метров (130 реальных проектов)
Однушка в хрущевке планировка. Особенности типовых домов 50-х годов постройки
По стране часть домов, построенных во второй половине 50-х годов, давно снесена или готовится к этому. «Хрущевок» пока такая участь избегает, поэтому переделка квартир в этих домах до сих пор остается одной из самых актуальных тем на дизайнерских форумах. Самыми распространенными сериями являются: 1-515 (панельные дома), 1-510 (блочные дома), 1-511 и 1-447 (кирпичные дома).
«Хрущевка» по проекту 1-511
Внешние стены домов, в зависимости от проекта, по толщине составляют 30-40 см. Внутренние – 20-30 см, а перегородки – 8 см.
Особенность этих домов состоит в том, что высота потолка составляет 250 см, но в некоторых случаях она могла доходить до 270. Кратность 50-ти сантиметрам позволяет с удобством подбирать некоторые отделочные материалы. Например, 10-ти метровый рулон обоев разрезается ровно на 4 куска.
Однокомнатные квартиры во всех перечисленных сериях планировкой сильно не отличаются – меняются размеры окон, площадь помещений и расположение, балконов, окон и дверей. Балконы есть во всех квартирах, не считая первые этажи.
Внутренние перегородки делались преимущественно из дранки, набитой на доски, и с известковой штукатуркой. Штукатурку не делали, как сейчас, по маякам, из-за чего стены имеют высокую кривизну. Зато перегородки легко разбираются и заменяются на новые, так как не являются несущими.
Стена-дранка со снятой штукатуркой
Внимание! Перед тем как начинать делать перепланировку, необходимо ее согласовать с органами местного самоуправления. В противном случае придется заплатить штраф. Перепланировка может быть выявлена при продаже квартиры.
Теперь рассмотрим несколько вариантов планировок, которые встречаются в хрущевках:
- Первый тип встречается в сериях 1-515/5, 1-447 и 1-511. Дополнительное окно в гостиной устанавливается в угловых квартирах. Недостатком является то, что проход из коридора в кухню идет через зал. Санузел совмещенный. Размер жилой комнаты составляет 17,2 квадратных метра. Подобная планировка может доставить проблемы или открыть перед вами новые возможности — в зависимости от желаемого результата.
Проходной коридор через гостиную в однушке
- Следующий тип бывает в хрущевках серий 1-511 и 1-515. Особым ее преимуществом является раздельный санузел. Так как его пространство не считается жилой площадью, для хозяев открывается больше возможностей при перепланировке. В кухню (вариантыпредставлены в статье) ведет отделенный от комнаты коридор. Размер комнаты точно такой же.
Эта планировка будет выгодной для переноса перегородок
- Следующий вариант планировки ничем не отличается от первого, кроме балкона, вынесенного на длинную стену. Такие квартиры встречаются в сериях 1-510. Планировка эта угловая.
Дизайн однокомнатной хрущевки без перепланировки. Особенности оформления интерьера без перепланировки
Если вариант перепланировки не подходит, и вы не готовы к масштабным изменениям в своем доме. Посмотрите фото дизайна однокомнатной квартиры хрущевки 30 кв. м без перепланировки, они помогут вам определиться с основной идеей оформления, которой стоит придерживаться.

С помощью продуманного дизайна даже скромное по размерам помещение можно сделать удобным, практичным и уютным
Дизайнерские приемы, которые помогут рационально обустроить жилье:
- Расставьте приоритеты функциональных зон. В однокомнатной квартире необходимо поставить кровать или диван как спальное место, оборудовать зону отдыха. Если в вашей семье есть дети, важно определить место детского уголка, где ребенок будет спать, заниматься и играть. Все зависит от количества домочадцев, которые будут проживать в доме.

Вариант оформления детской зоны в интерьере общей комнаты
- Уберите двери в кухню и гостиную и создайте арочные проемы. Это легко можно сделать с помощью гипсокартона. Арка пропускает больше солнечного света в помещение и создает ощущение простора и легкости. В маленькой квартире, при отсутствии хорошей вытяжки на кухне, демонтаж дверей не очень разумная идея. Кухонные запахи будут распространяться по всему дому, в таком случае есть раздвижные варианты дверей. Лучше приобрести модели из прозрачных материалов – это стекло и пластик.

Красиво красить арку можно деревянными наличниками
- Для отделения спального места используйте подиум. Отличная идея зонировать комнату – это создание ниши для кровати и приподнять ее на небольшой подиум. Нишу можно зашторить или поставить перегородку, которая скроет от лишних глаз ваше спальное место. В подиуме монтируются выдвижные ящики, в которых можно хранить вещи и спальные принадлежности.

Выдвижная кровать в подиуме – прекрасное решение экономии площади комнаты
- Используйте подоконники. В таких квартирах они очень широкие. На маленькой кухне подоконник можно задействовать как обеденную зону или установить там раковину для мытья посуды.

Хрущевка планировка 1 комнатная размеры. Характеристики планировки дома «хрущевка»
Широкие двухстворчатые, выглядящие квадратными окна квартир, железная 4-х скатная крыша (что-то вроде техэтажа), также она может быть вообще плоской и без чердака (техэтаж отсутствует), либо плоско-скатной (некий гибрид).
Окна на крайних торцевых панелях. Пожарная лестница, без общего противопожарного балкона, примыкает с торца дома «хрущевки». Планировка дома предусматривает на площадке расположение четырех квартир. Планировка квартир: 1-комнатные, 2-комнатные. 3-комнатные с высотой потолка около 2.55 метра.
Планировка квартиры предусмотрена так, что центральная комната «хрущевки» всегда проходная. Туалет и ванная комната в «хрущевке» совмещены. Теплоснабжение и подача воды — централизованное. Планировка дома не предусматривает наличия мусоропровода и лифта. Этажность «хрущевок» — помимо 5-ти этажей есть еще и 7-ми и 9-ти этажные, реже встречаются дома в 3 и 4 этажа.
В кухнях «хрущевок» установлены газовые плиты, иногда газовые колонки. Вентиляция, предусмотренная планировкой квартир в «хрущевках» естественная вытяжная. В планировке дома присутствуют балконы.
Как достоинство планировки квартиры, помимо балкона, можно считать кладовую. Теплоизоляция не очень хорошая, т.к. панели, из которых собран дом пустотные, заполненные стекловатой. Количество подъездов в доме, предусмотренных планировкой — от трех.
Все квартиры, кроме угловых, согласно планировке дома, выходят на одну сторону. Внешнее оформление дома либо облицовка мелкой керамической плиткой (варианты цветов: бело-голубой, светло-серый), либо не облицованные (варианты цвета: серый, белый, желтый, бежевый).
Внешний вид планировки дома серии 1-335 «хрущевка» фото:
В качестве справки
В советский период, в 1961 году себестоимость возведения крупнопанельных каркасных домов с планировкой «хрущевка» была самая низкая за всю историю и составляла 96 рублей за кв метр.
Планировка домов «хрущевка» серии 1-335 была признана некоторыми специалистами самой неудачной из всех, разрабатываемых при Хрущеве.
Достоинства планировки
- Наличие кладовых и балконов.
На самом деле достоинств может быть и больше, хоть и планировка типовая. но всегда найдется какая-то изюминка.
Этот раздел будет дополняться по мере поступления откликов от читателей, которые проживают в домах и квартирах этой планировки. Уверен им есть что сказать положительного:)
Недостатки планировки
- Очень низкая теплоизоляция стен, особенно чувствительная в нашем климате. Тонкие перегородки между комнатами;
- Потолки тоже обладают небольшой шумоизоляцией;
Кое-что из перечисленных недостатков планировки квартиры в «хрущевке» можно переделать — расширить кухню, сделать комнаты изолированными, если позволит их расположение.
Перепланировка однокомнатной хрущевки с двумя окнами. Перепланировка 1-комнатной квартиры в хрущевке
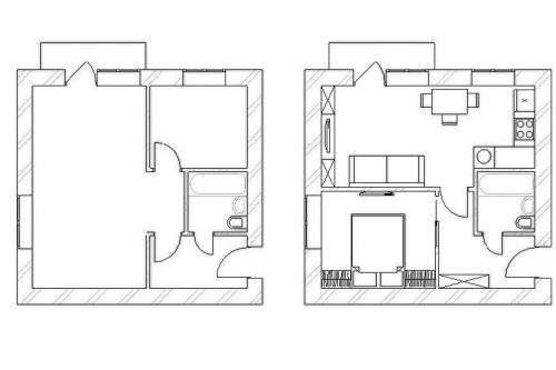
Перепланировка однокомнатной квартиры в хрущевке подразумевает два варианта – либо мы находим способы выкроить дополнительные квадратные метры и делаем пространство максимально свободным, либо делим одну комнату на две. Нередко перепланировка затрагивает балконы и лоджии, присоединяя их к общей полезной площади. В таком случае необходимо буде позаботиться об их дополнительном утеплении.
Проект 1
На сегодняшний день немалой популярностью пользуются квартиры-студии, где отсутствуют практически все внутренние перегородки, за исключением тех, что отделяют санузел. В хрущевках воплотить такой проект проще, чем в панельных домах, так как несущими являются лишь стены по периметру квартиры. В результате демонтажа всех внутренних стен (кроме санузла) получается довольно большое пространство, где с помощью зонирования размещают отдельные функциональные островки. Рабочая зона кухни остается на прежнем месте, так как перенос коммуникаций не целесообразен, на территории комнаты размещаем зону отдыха, а обеденный комплекс можно установить на границе, где ранее находилась стена. По желанию хозяев стену можно не полностью демонтировать, а лишь наполовину, при этом нижняя часть, после проведения отделочных работ, превратиться в барную стойку или обеденный стол.




Проект 2
В данном случае владельцы нашли грамотный выход, как увеличить пространство гостиной и в то же время скрыть часть приватной территории от посторонних глаз. Здесь с помощью гипсокартонной перегородки отделили спальню, а остальное пространство комнаты объединили с кухней, демонтировав разделяющую их стену. Такие способы перепланировки встречаются нередко, по сути, однокомнатная квартира перестраивается в двухкомнатную. Можно также задействовать территорию балкона. Если нет желания или возможности присоединить его к территории квартиры, достаточно застеклить, утеплить стены и сделать эксплуатируемой территорией, установив, например, шкаф или рабочий стол.





Планировка однокомнатной хрущевки без балкона. Особенности планировки и зонирования
Несмотря на то что «хрущевки» – это достаточно маленькие квартиры с низкими потолками, избавившись в них от всего лишнего и используя современные материалы, можно визуально сделать их просторнее и комфортабельнее с минимальными затратами.
Многие профессионалы сходятся во мнении, что в большинстве случаев однокомнатным квартирам может помочь только качественный ремонт и зонирование функциональных зон. Современные перегородки дают возможность расширить пространство жилой зоны , а в некоторых случаях даже создать полноценную квартиру-студию.
В квартире, в которой ей газ, может быть весьма проблематично совместить кухонную, столовую и спальную зону (или гостиную) без соответствующих документов. Как правило, это запрещено. Обычно студию создают только в тех домах, где на кухне плита не газовая, а электрическая.
Не несущие стены сносить можно, однако во многих «хрущевках» они именно таковыми как раз таки являются . Если стена, например, на балкон не несущая, то ее можно снести и расширить пространство кухни, присоединив к нему обеденную зону.
Выделять отдельные функциональные зоны можно при помощи разных настенных и напольных покрытий. Они могут отличаться по цвету и фактуре. В качестве перегородок в помещениях можно использовать ширмы, текстильные перегородки и варианты из стекла, а также шкафы и стеллажи.
Перед началом ремонтных работ неплохо иметь проект будущего интерьера. Его можно сделать на компьютере или просто нарисовать для наглядности на бумаге.


Хрущевка планировка 1 комнатная угловая. Хрущевки. Типовые планировки
Массовое строительство хрущевок началось в 1958 году и длилось до 1985. В то время тысячи семей получили собственное жилье в 4-5-ти этажных панельных и кирпичных домах. Комнаты были очень маленькими и в большинстве случаев проходными, коридоры были узкими и темными, а санузлы сразу были совместными. Высота потолков составляла 2.48 м, в редких случаях – 2.7 м. Площадь однокомнатных квартир не превышала 29-33 кв.м. из которых 5.8-6.2 метра отводились под кухню, от 15.9 до 20.7 метров – под гостиную. Остальную площадь занимал коридор и ванная комната. Размеры помещений зависели от года постройки и серии и имели следующие типовые планировки:

Примечательно, что практически все однушки имели балкон и почти одинаковое расположение комнат. Прежде чем приступить к каким-то радикальным мерам , необходимо четко знать:
- Точное количество проживающих. Ведь одно дело проводить работы по организации комфортного проживания для одного человека, и совсем другое – для молодой семьи с ребенком. Требования будут кардинально отличаться, разделение площади будет совсем иным;
- Без каких функциональных зон вы точно не сможете прожить. Речь идет о таких «помещениях», как рабочий кабинет или полноценная изолированная спальня. Ведь некоторые люди запросто используют диван в гостиной для ежедневного сна и чувствуют себя при этом абсолютно нормально, а на других такая открытость действует угнетающе;

От двух вышеперечисленных факторов будет зависеть объем работ, которые нам предстоит распланировать, необходимость сноса межкомнатных перегородок или, наоборот, возведения дополнительных. Не удивляйтесь. Но действительно не все дизайнеры рекомендуют делать из однушки квартиру-студию . Для того, чтобы жилье отвечало всем требованиям хозяев, иногда устанавливаются полноценные глухие перестенки из легких материалов – гипсокартона или газобетона. Поэтому, предварительно рекомендуют составить список из обязательных пунктов, которые вы хотите иметь. Это может быть что угодно – раковина напротив окна в кухне, стеллаж под личную библиотеку, бытовая техника, от которой вы не в силах отказаться и т.д. На основании этого списка нужно планировать дизайн интерьера и перераспределять пространство между зонами.

Планировка однокомнатной хрущевки с балконом. Дизайн однокомнатной хрущевки: размеры, ремонт, фото планировок однушки в 30, 40 и более квадратных метров (130 реальных проектов)
Новостройки на сегодняшний день являются очень популярными, однако большинство россиян проживает в квартирах, построенных еще при Хрущеве. Отличается подобное жилье малогабаритными кухнями, отдельными ваннами комнатами.
Площадь его, как правило, составляет от 30 до 32 квадратных метров. Это не так много, поэтому жильцам часто хочется как-то увеличить пространство. В данной статье вы узнаете о том, как обустроить однокомнатную хрущевку правильно.

Идеи для дизайна однокомнатной квартиры
Если жилье небольшое, прямо как однокомнатная хрущевка, то жильцы во время ремонта стараются сохранить все свободное место настолько, насколько это возможно.
Они прибегают к разнообразным приемам, позволяющим визуально увеличить пространство.

Помимо этого стоит также знать, какое стилевое направление лучше выбирать, как выполнять отделку и ремонт. При выборе любого материала и способа оформления старайтесь придерживаться как модных тенденций, так и собственных предпочтений и пожеланий.
Выбор стилевого направления
При оформлении небольшой хрущевки выбор стиля может показаться затруднительным. Ведь вам может нравиться какая-то часть от одного стилевого направления, и другая – от второго.
Не стоит бояться смешивания понравившихся стилей, ведь это только придаст оригинальности интерьеру вашего жилища. В маленькой квартирке сложно поддерживать один определенный стиль, поэтому многие совмещают несколько.
Вот некоторые стилевые направления, которыми можно пользоваться при оформлении:
- Классический. Здесь сочетаются традиции, солидность, дорогие и качественные материалы и изделия. Мебельные предметы изготовлены из натуральной древесины, а тканевые обивки состоят из дорогостоящей материи. Оттенки отличаются спокойствием и сдержанностью. Обычно они являются бежевыми, ярко-коричневыми и ярко-зелеными, пастельными. Отлично подходят многообразные картины, вставленные в золотые, дорогие рамки.
- Этнический. Смысл подобного направления заключается в воссоздании стиля какой-то определенной страны. Подобный способ оформления сильно любят путешественники и простые любители традиций других народов. Квартира может быть обустроена по-китайски, по-английски, по-африкански, по-египетски. Кто-то даже смешивает несколько стран в одном помещении. Получается довольно экзотично, необычно и самобытно.
- Современный. Сюда относятся ар-деко, кантри, модернизм, лофт, хай-тек и минималистичный стиль. Здесь отсутствует лишний комфорт, заметно проявляется контраст схожих цветов. В таком помещении присутствует большое количество искусственного освещения, мебель четких форм.



