Двухкомнатная квартира из однокомнатной. Готовые схемы проектов переделки однокомнатной квартиры в двухкомнатную разной площади
Двухкомнатная квартира из однокомнатной. Готовые схемы проектов переделки однокомнатной квартиры в двухкомнатную разной площади
При перепланировке в 38 кв м учитывается все до мелочей. Для такой квартиры лучше всего подойдут такие стили, как хай-тек, скандинавский или кантри. При использовании одного из стилей в квартире будет уютно и просторно. Важно заранее все распланировать, как из однушки сделать двушку и постепенно начать перестройку. Главное, выбрать подходящий вариант и тем самым можно преобразить свою жилплощадь.

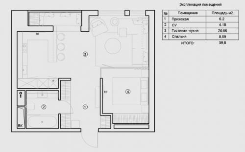
Спальная зона выделена в небольшую, но отдельную комнату. Большая часть пространства досталась кухне-гостиной, в которой раскладной диван служит дополнительным местом для сна
При 40 кв м комнаты могут быть открытыми, что придаст квартире неповторимый вид. При перепланировке в любой интерьер можно внести “изюминку” и тогда все будет смотреться изящно и красиво. Каждому хозяину квартиры можно создать индивидуальный проект и решить как из однушки сделать двушку 40 кв. Разграничивая помещения в квартире нужно сделать так, что все было компактно расставлено.

Приватное место для ночного отдыха размещено за стеклянной перегородкой, что позволило сохранить в спальне естественное освещение
При 43 кв м будет уютно, если разграничить основную комнату перегородкой. У тех, у кого есть дети сделать для них игровую комнату. Если владелец проживает один, то ему можно создать уютное офисное помещение. Все гармонично сочетаться в соответствие с установленными правилами.

Комната с двумя окнами разделена на спальную и гостиную зоны, последняя отделена от кухни барной стойкой
При 45 кв м в одной комнате можно установить кровать и диван без потери основного стиля. Вторая половина может быть занята кухней в американском стиле. Здесь можно все разграничить так, чтобы уместились:
- напольные вешалки;
- небольшие шкафчики;
- напольный торшер;
- столик;
- диван и т.д.

Благодаря перепланировки удалось организовать просторную кухню-гостиную и уютную спальную зону с небольшим гардеробом
При 50 кв м может получиться в одной половине уютная спальня, а в другой отдельный уголок отдыха. В качестве перегородки можно поставить прозрачные. Это придаст помещению современный, презентабельный вид. В квартире может быть объединена кухня с гостиной и отдельная спальня. Все это может быть удобным вариантом для семейной пары.

Функциональный интерьер с достаточно большой спальной комнатой, кухне-гостиной и рабочим кабинетом на утепленной лоджии
При перепланировке 55 кв м можно сделать интерьер в швейцарском стиле, использовав светлые оттенки. Интерьер лучше не перегружать лишними деталями, а повесить украшения на стены и потолок. Если даже дизайн простой, то интерьер может получиться стильный и современный.

Перепланировка евродвушки в двушку. Что такое евродвушка
Простыми словами, евродвушка — это двухкомнатная квартира, где одна комната изолированная и используется как спальня, а вторая совмещена с кухней и выполняет функцию гостиной. По планировке такой формат похож на студию с дополнительной отдельной комнатой для сна.
Исторически сложилось, что кухня — это место приема гостей, задушевных разговоров и посиделок. «Даже при наличии отдельной гостиной друзья и родственники чаще ютятся на кухне. От этого сначала появилась тенденция к объединению кухни и жилой комнаты, а теперь и предложение от застройщиков большой кухни-гостиной в изначальной планировке. Эта идея была подсмотрена на Западе, отсюда евродвушка и получила свое название», — пояснила дизайнер Марина Пахомова.
Евродвушки в Москве
Евродвушки на столичном рынке недвижимости появились в кризис 2014–2015 годов и получили большую популярность, рассказала председатель совета директоров риелторской компании «Бест-Новострой» Ирина Доброхотова.
«Поскольку во многих проектах квартиры такого формата выходили с меньшими площадями и с меньшими ценами, чем классические однушки, двушки и трешки, то были очень востребованы. В кризис многие покупатели были финансово ограничены и стремились приобрести квартиру с наименьшим бюджетом и максимально возможной площадью», — подчеркнула Доброхотова.
На сегодняшний день в зависимости от класса и концепции жилого комплекса квартиры с кухней-гостиной, по оценке «Бест-Новостроя», могут составлять 10–20% от предлагаемого объема. Такой формат присутствует практически во всех сегментах новостроек в столице за исключением высокобюджетной недвижимости.
Популярность евродвушек с каждым годом только увеличивается: в 2020 году спрос на них на 2% превысил аналогичные показатели для лотов с классической планировкой, уточнила управляющий директор компании «Метриум» Надежда Крокка. Это обусловлено в том числе более низкой стоимостью евроформата: такая квартира обойдется в среднем на 15% дешевле, пояснила она.
«Существующее предложение полностью удовлетворяет спрос. Евродвушки чаще всего выбирают те, кому нужна квартира с большой кухней, и те, кто покупает жилье небольшой площади. За счет отсутствия стены между кухней и гостиной квартира визуально выглядит более просторной и светлой», — резюмировала Доброхотова.
Евродвушка из однушки. Houzz тур: Из «однушки» — «евродвушка»
Задействовали каждый сантиметр, чтобы рационально использовать все 45 кв.м общей площади
Victoria Vlasova Interiors Сохранить фото
О проекте
Место: Москва, монолитный дом
Размер: 45 кв.м
Кто здесь живет: молодая женщина,
Автор проекта: Виктория Власова
Фото: Сергей Ананьев
Требовалось превратить бетонную коробку в дизайнерский интерьер за четыре месяца. Включая полную перепланировку и согласование в БТИ.
«Когда в реализации проекта нет сжатых сроков, то можно позволить эксперименты с цветом, выбирать полутона в каталогах и привозить мебель под заказ, — рассказывает Виктория о главных сложностях. — Но и в короткие сроки сделать ремонт реально, если принимать решения быстро».
Сохранить фото
План квартиры
Однокомнатная квартира превратилась в двухкомнатную: в зоне кухни спланировали спальню, а саму кухню расположили в гостиной, присоединив часть холла. Несущая стена между комнатами осталась нетронутой. Межкомнатные перегородки возводили с предельной аккуратностью — просчитывали все до сантиметра, чтобы решить поставленные задачи. Зона кухни при этом получилась немного уже, чем гостиной — это видно на плане, но не ощущается в самом интерьере за счет шкафов.
«Все системы хранения в квартире — встроенные, до потолка — поясняет Виктория. — Так вмещается много вещей, но нет загромождения комнат».
Victoria Vlasova Interiors Сохранить фото
ГОСТИНАЯ
Небольшой размер квартиры требовал декоративных приемов, визуально расширяющих пространство. В первую очередь дизайнер добавила в интерьер зеркала. Одно из них занимает всю стену за диваном, отражая свет из окна, который в свою очередь переотражается в маленьких зеркалах-солнцах на противоположной стене и возвращается в комнату.
Зеркало есть на каждой межкомнатной двери, включая дверь санузла.
Victoria Vlasova Interiors Сохранить фото
Диван и кресла изготовлены на заказ по эскизам дизайнера; зе ркала Crate & Barrel; к овер The Rug Company; к раска на стенах Zoffany
Victoria Vlasova Interiors Сохранить фото
Для отделки пола, потолка и стен дизайнер и заказчица выбрали нейтральные цвета, затем выкрасили в тон всю встроенную мебель, чтобы помещения смотрелись цельно. Акценты расставили с помощью декора и текстиля.
Victoria Vlasova Interiors Сохранить фото
Цвет морской волны, как наиболее подходящий для заказчицы, определил специалист по фэншуй. Прислушавшись к нему, Виктория и хозяйка квартиры выбрали яркий оттенок сине-зеленого для портьер в гостиной и спальне. И подобрали обивку кресел и декоративные подушки того же оттенка.
Victoria Vlasova Interiors Сохранить фото
Кухня и стол сделаны на заказ по эскизам автора
КУХНЯ
Над обеденным столом Виктория сделала стеллаж с книгами и декором, чтобы при входе (а заходим мы сразу в кухню) создавалось в первую очередь ощущение гостиной, а не кухни.
Victoria Vlasova Interiors Сохранить фото
КОРИДОР
За портьерами здесь скрыты системы хранения. Они прячут коллекцию хозяйской одежды и обуви, сохраняя визуальную чистоту пространства.
«Все двери в квартире раздвижные, а не распашные, — рассказывает Виктория. — Это экономит место. В противном случае дверь в ванну открывалась бы прямо в коридор».
Victoria Vlasova Interiors Сохранить фото
СПАЛЬНЯ
Палитра этого интерьера отражает концепцию квартиры: здесь вновь появляется бирюзовый оттенок в текстиле. Но дизайнер ввела еще один цвет, чтобы сделать пространство сложнее.
Victoria Vlasova Interiors Сохранить фото
Кровать, стол, прикроватные столики Zara Home
Для контраста сначала хотели использовать апельсиновый оттенок, но в итоге остановились на фуксии. Кроме спального места, в комнате предусмотрели компактный рабочий стол: модель консольного типа всего 40 см глубиной.
Victoria Vlasova Interiors Сохранить фото
Плитка Atlas Concorde; с антехника Villeroy &Boch
САНУЗЕЛ
Ниши в ванной, образовавшиеся после переноса стен, задействовали под хранение и установку стиральной машинки.
Однокомнатная квартира в девятиэтажке. 111-97
Эту серию разработали в 1971 году. Девятиэтажки по ней строят и сейчас. Собирают их из типовых панелей шириной 3 и 4,5 м, благодаря чему в одном подъезде можно расположить два варианта однокомнатных квартир – 34 и 43 кв. м.
На первых этажах балконов нет, в 4-комнатных квартирах их два. Санузел располагается через перегородку с кухней. Её размер в 1-комнатных квартирах – порядка 9 кв. м, в остальных – 13 квадратов. В подъезде есть мусоропровод и лифт, который ходит только до 8 этажа. На чердаке дома технический этаж.
Типы панельных домов 9 этажей: серия 111-97
Дома этой серии строят не только в 9-этажном исполнении. Пятиэтажка – не менее распространённый вариант, хотя встречаются и другие решения (6, 7, 10 и даже 11 этажей). Но в пяти- и шестиэтажках из-за отсутствия лифта планировка отличается.
Лифты были только в домах выше семи этажей.
Конфигурации здания
В девятиэтажках несколько вариаций расположения подъездов:
| Тип компоновки подъездов, фото | Особенности |
| Одноподъездный | Одноподъездный, секционного типа, с тремя квартирами на этаже: двух, трёх и четырёхкомнатными. |
| Угловой, с поворотом на 90 градусов | 4 квартиры на этаже. |
| Угловой, с поворотом на 30 градусов | 4 квартиры на этаже. |
| Малосемейка | На каждом этаже по 8 квартир, только на первом по 7. |
Модернизация серии: что изменилось в планировке
В нулевых годах нынешнего столетия серия 111-97 подверглась модернизации. Был существенно переработан конструктив наружных стеновых и кровельных панелей, плит перекрытия, увеличена высота чердака.
В результате серые непрезентабельные здания получили эстетичные фасады и более удобные планировки (оможете узнать из статьи на нашем сайте).
Правда, некоторые застройщики отказываются от квартир с четырьмя комнатами из-за трудностей с их продажей.
Тем не менее, в проекте они присутствуют: площадью 78-84 кв. м. А до 90-х годов для многодетных семей были предусмотрены и 5-комнатные по 93-95 квадратов. Площадь двухкомнатных квартир в среднем составляет 53 квадрата, трехкомнатных – 67-70.
Малосемейки обычно состояли из одного-двух подъездов, с несколькими вариантами 1-комнатных квартир: 28, 31 и 39 кв. м, и одним вариантом 2-комнатных – 42 кв. м. Кухни везде шестиметровые.
- схемы и чертежи кухни с учетом размеров
Обеденная зона у окна малосемейки
Дома этой серии, построенные в 70-80 и 90-х годах, не соответствуют нынешним нормам по расчётному сопротивлению ограждающих конструкций теплопередаче.
Именно поэтому проект и решено было модернизировать. Теперь кухни увеличились почти до 16 кв. м, балконы стали большими, расширилась и общая площадь квартир:
- с одной комнатой до 45 кв. м;
- с двумя – до 70 кв. м;
А вот 4-комнатные, если они вообще есть, по размеру остались прежними. В таких домах лифт ходит на последний этаж. Высота потолков в панельном доме 9 этажей после модернизации составляет 3 м, тогда как раньше была 2,64 м.