Перепланировка однокомнатной квартиры в двухкомнатную. Однушку в двушку: популярные варианты перепланировки
- Перепланировка однокомнатной квартиры в двухкомнатную. Однушку в двушку: популярные варианты перепланировки
- Перепланировка 1-комнатной квартиры хрущевка. Возможные перепланировки
- Перепланировка однокомнатной квартиры 40 кв.м в двухкомнатную. Готовые схемы проектов переделки однокомнатной квартиры в двухкомнатную разной площади
- Перепланировка однокомнатной квартиры в панельном доме. Предлагаем рассмотреть все сложности в каждом из случаев
Перепланировка однокомнатной квартиры в двухкомнатную. Однушку в двушку: популярные варианты перепланировки
«Затевать перепланировку однушки в двушку можно и нужно, если общая площадь квартиры насчитывает хотя бы 40 квадратов»
Перекроить однокомнатную квартиру, передвинуть в ней стены, адекватно отделать – даже при наличии утвержденного плана – будет делом нелегким. Малогабаритное жилье в прямом смысле не дает развернуться. Затевать перепланировку однушки в двушку допустимо и нужно, если общая площадь квартиры насчитывает хотя бы 40 квадратов. В меньших пространствах сделать из однушки действительно уютную двушку будет архисложно.
Идей по изменению внутреннего пространства жилья предлагается много, но в основном они отличаются дизайнерским решением. В основу перепланировки заложены стандартные решения. Какое из них будет выбрано – зависит от исходных параметров видоизменяемого жилья.
Вариант 1
Наиболее популярным видом трансформации однушки в двушку является создание квартиры-студии. Особенно нравится подобный подход молодежи, симпатизирующей современным направлениям оформления интерьеров.
Планировка такого жилья предполагает выделение в отдельную комнату спальни и объединение в единое пространство площадей гостиной и кухни. Разделение последней, при перепланировке однушки в двушку, чисто символическое. Без использования раздвижных перегородок и штор. Зоны принято разграничивать: разной фактуры отделкой, игрой цветов, архитектурными элементами. Например, в кухонной части может быть приподнят пол и на входе в нее образована ступенька.
Создавая из однушки уютную двушку-студию, важно использовать только модерновую отделку. В интерьере должна появляться исключительно современная мебель, желательно привлекающая нестандартностью своей конструкции или дизайна.
В такой квартире должен царить абсолютный порядок. Обилие декора и просто бардак лишит интерьер свежести, украдет пространство и вообще сведет его эффектность на нет.
Нужно учитывать, что используя этот вариант преобразования однушки в двушку, жильцам придется терпеть определенные неудобства, а именно – разносящиеся по гостиной запахи кухни. Но если никого из квартирантов это не смущает, то в остальном – решение вполне комфортно.
Вариант 2
Он предлагает из однушки сделать двушку посредством передела комнаты гипсокартонной стеной, с последующим переносом межкомнатных дверей. Об использовании кирпичной кладки речь в квартирах обычно не ведется. Такая стена будет тяжела и усилит нагрузку на межэтажное перекрытие.
Эта идея перепланировки онушки в двушку может и должна быть взята за основу, если комната крупногабаритна и в ней предусмотрено два окна. В этом случае есть шанс получить два полноценных, возможно даже изолированных пространства, площадь которых можно задействовать по своему усмотрению.
В малогабаритных комнатах также можно поставить перегородку, но не гипсокартонную, а преобразовать однушку в двушку при помощи стекла. За стеной из стеклоблоков можно обустроить кабинет или миленькую спальню.
Вместо стационарного перестенка можно установить раздвижные панели из стекла. Удачным дизайнерским ходом будет использование витража.
Наиболее сложна перепланировка квадратной однушки в двушку. Единственное окно и пропорциональные стены очень ограничивают варианты дизайна и организации пространства.
Вариант 3
Менее популярный, но все же пользующийся спросом способ преобразования однушки в двушку – задействование штор. Используя данный прием, можно получить две комнаты без крушения стен и кучи согласований. За плотной тканевой перегородкой можно организовать уютный спальный уголок или комфортную рабочую зону. Текстильная ширма не крадет пространство, зато высоко функциональна и при необходимости может быть убрана одним движением руки.
Перепланировка 1-комнатной квартиры хрущевка. Возможные перепланировки
Хрущевка - это малогабаритная квартира с однотипной планировкой, в которой не совсем удобно расположены комнаты, присутствуют низкие потолки, узкие коридоры, маленькие кухни и ванные. Однако, за счет дизайнерских возможностей, учитывающих все особенности, неудобное жилище можно сделать максимально комфортным и уютным.
Варианты перепланировки 1-комнатной хрущевки
Несмотря на скромные габариты, существует ряд возможных примеров трансформации однушки.
Хрущевка с двумя окнами
Квартира с балконом и двумя окнами, является угловой. Хрущевка с подобной планировкой может представлять собой не самый лучший вариант или наоборот, предоставить большое количество интересных идей перепланировки.



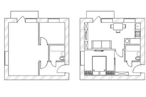
На фото пример перепланировки угловой хрущевки однушки с двумя окнами.
Хрущевка с одним окном
Однушки, имеющие одно окно и балкон, встречаются в кирпичных домах серии 1-511, в панельных застройках серии 1-515 и прочих. В таких квартирах присутствует раздельный санузел и коридор. В хрущевках с другой планировкой данное пространство представляет жилую комнату, что создает ограничение при переделке жилья.



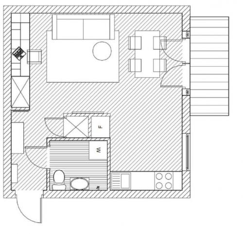
На фото перепланировка однокомнатной квартиры хрущевки 30 кв с одним оконным проемом.
Перепланировка из 1-комнатной в двухкомнатную хрущевку
Самый простой и бюджетный способ перепланировки - установить гипсокартонную перегородку и сделать в ней дверной проем. Таким образом получится два небольших помещения с разным функциональным назначением.
Также трансформировать однокомнатную хрущевку в двушку или полуторку можно за счет раздвижных дверей, которые не займут много места и позволят обособить такие комнаты, как детская, спальня или зал.
Немалое значение в дизайне играет выбор мебельных конструкций. Например, сэкономить пространство поможет встроенная бытовая техника в виде уменьшенного холодильника или маленькой плиты.



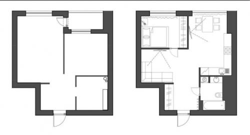
На фото однокомнатная квартира хрущевка с перепланировкой в двушку.



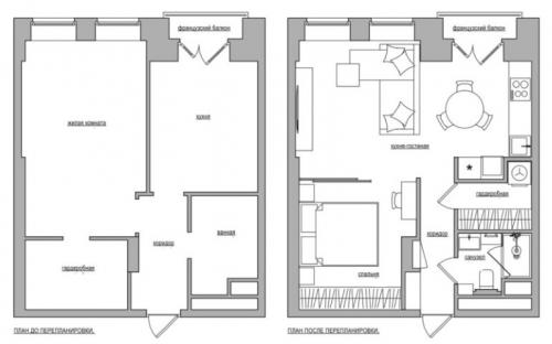
Перепланировка однокомнатной квартиры 40 кв.м в двухкомнатную. Готовые схемы проектов переделки однокомнатной квартиры в двухкомнатную разной площади
При перепланировке в 38 кв м учитывается все до мелочей. Для такой квартиры лучше всего подойдут такие стили, как хай-тек, скандинавский или кантри. При использовании одного из стилей в квартире будет уютно и просторно. Важно заранее все распланировать, как из однушки сделать двушку и постепенно начать перестройку. Главное, выбрать подходящий вариант и тем самым можно преобразить свою жилплощадь.

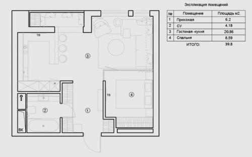
Спальная зона выделена в небольшую, но отдельную комнату. Большая часть пространства досталась кухне-гостиной, в которой раскладной диван служит дополнительным местом для сна
При 40 кв м комнаты могут быть открытыми, что придаст квартире неповторимый вид. При перепланировке в любой интерьер можно внести “изюминку” и тогда все будет смотреться изящно и красиво. Каждому хозяину квартиры можно создать индивидуальный проект и решить как из однушки сделать двушку 40 кв. Разграничивая помещения в квартире нужно сделать так, что все было компактно расставлено.

Приватное место для ночного отдыха размещено за стеклянной перегородкой, что позволило сохранить в спальне естественное освещение
При 43 кв м будет уютно, если разграничить основную комнату перегородкой. У тех, у кого есть дети сделать для них игровую комнату. Если владелец проживает один, то ему можно создать уютное офисное помещение. Все гармонично сочетаться в соответствие с установленными правилами.

Комната с двумя окнами разделена на спальную и гостиную зоны, последняя отделена от кухни барной стойкой
При 45 кв м в одной комнате можно установить кровать и диван без потери основного стиля. Вторая половина может быть занята кухней в американском стиле. Здесь можно все разграничить так, чтобы уместились:
- напольные вешалки;
- небольшие шкафчики;
- напольный торшер;
- столик;
- диван и т.д.

Благодаря перепланировки удалось организовать просторную кухню-гостиную и уютную спальную зону с небольшим гардеробом
При 50 кв м может получиться в одной половине уютная спальня, а в другой отдельный уголок отдыха. В качестве перегородки можно поставить прозрачные. Это придаст помещению современный, презентабельный вид. В квартире может быть объединена кухня с гостиной и отдельная спальня. Все это может быть удобным вариантом для семейной пары.

Функциональный интерьер с достаточно большой спальной комнатой, кухне-гостиной и рабочим кабинетом на утепленной лоджии
При перепланировке 55 кв м можно сделать интерьер в швейцарском стиле, использовав светлые оттенки. Интерьер лучше не перегружать лишними деталями, а повесить украшения на стены и потолок. Если даже дизайн простой, то интерьер может получиться стильный и современный.

Перепланировка однокомнатной квартиры в панельном доме. Предлагаем рассмотреть все сложности в каждом из случаев
Согласование перепланировки в однокомнатных квартирах рассматриваются Жилинспекцией на основании Постановления №508 Правительства Москвы. Все требования повторяют требования к квартирам с большей площадью и количеством комнат. Исключением являются квартиры на первых этажах: под ними расположено нежилое помещение или подвал, что дает больше возможностей при перепланировке. Например, можно перенести кухню в жилую зону.
Перепланировка в однокомнатной квартире в кирпичном доме
Как правило, в кирпичных домах вероятность устройства проемов в несущих стенах выше, чем в панельных и монолитных домах. Основными несущими конструкциями в таком доме обычно являются внешние стенки, также несущими могут быть «средние» стены – эти стены, в основном, разделяют квартиры между собой. Остальные внутренние стены в квартире обычно являются простыми перегородками, снос и перенос которых никак не влияет на общую конструкцию дома. Поэтому, планируя изменения в квартире в кирпичном доме, вы свободны в своих дизайнерских пожеланиях. Единственное, не надо забывать, что, несмотря на все преимущества, перепланировка в кирпичном доме так же, как и в остальных, должна быть законной.
Перепланировка в однокомнатной квартире в доме со свободной планировкой
В первую очередь необходимо сказать о том, что свободной планировки не бывает. Это миф, который придумали риэлторы для быстрой продажи квартир. Если вы возьмёте поэтажный план БТИ, то обнаружите, что планировка вашей квартиры заранее определена. У вас есть границы кухни, границы санузла, граница жилой зоны.
Квартиры со свободной планировкой могут быть намного сложнее в согласовании в сравнении с квартирами в панельных и кирпичных домах, где планировка заранее определена.
Например, перенос санузлов запрещен в квартирах, общая площадь которых 40-60 метров, санузел составляет 6 м2, а площадь кухни – 8-10 м2. Как правило, собственники хотят перенести санузел на площадь, где размещение санузла невозможно. В таких случаях однозначно необходимо обращаться в специализированные организации, у которых есть опыт согласования сложных задач. Рекомендуем собственникам, которые ещё не купили квартиру в доме со свободной планировкой, перед приобретением жилья обратиться сначала за консультацией в компании, которые хорошо проинформированы во всех тонкостях перепланировок в домах со свободной планировкой.
Перепланировка в однокомнатной квартире в старом «сталинском» доме
Однокомнатная квартира в «сталинке» – большая редкость. Обычно большая часть квартир в таком доме двух- или трехкомнатные, общая численность однокомнатных квартир в «сталинке» не больше 4-6 %. Также большинство бывших однокомнатных квартир располагается на первых этажах, которые сегодня выведены из жилого фонда и служат магазинами, офисами, кафе и другими нежилыми помещениями.
Как правило, перегородки внутри квартиры делали не несущие и располагались они под несущим ригелем, что давало возможность устройства проемов без последствий для дома.
Перепланировка в однокомнатной квартире в панельном доме
В панельных домах перепланировки, которые запрашивают собственники, можно поделить на два вида: относительно простые и относительно сложные.
К простым перепланировкам относятся:
- объединение санузла;
- расширение проема в комнату;
- перенос приборов в ванной.
К сложным перепланировкам относятся:
- демонтаж подоконной части для визуального увеличения кухни или комнаты;
- проем между кухней и комнатой, расширение санузла на территорию коридора, который ведет на кухню.
Если речь идет о сложных перепланировках, то процедура оформления перепланировки в панельном доме становится трудной и дорогой. Стоимость оформления такой перепланировки под ключ может превышать 160 тысяч рублей, а срок выполнения занимать 6 -8 месяцев.
Стоимость оформления простого варианта перепланировки начинается от 60 тысяч рублей, сроки выполнения около 6 месяцев.
Перепланировка в однокомнатной квартире хрущевки
Типичная однокомнатная квартира в «хрущёвке» изображена на фотографии. Как правило, несущих стен в распространенных сериях домов нет. Это обстоятельство дает более широкие возможности по демонтажу перегородок или их устройству. Ограничение действует при наличии газовых плит, которые установлены на кухне. Если в квартире есть газовая плита, то сносить стену между кухней и комнатой нельзя. Также коридор, который вел на кухню, невозможно присоединить к санузлу из-за того, что по документам это комната. На фото красный квадрат является частью комнаты.