Планировка хрущевки и варианты ее изменения. Достоинства и недостатки
- Планировка хрущевки и варианты ее изменения. Достоинства и недостатки
- Перепланировка двухкомнатной хрущевки трамвайчика. Двухкомнатная хрущевка: 80+ фото, планировки, идеи дизайна
- Перепланировка хрущевки 3 комнаты. Демонтаж перегородки между кухней и комнатой.
- Планировка хрущевки 2 комнаты распашонка. Варианты расположения комнат
- Перепланировка хрущевки 2 комнаты. Преимущества переобустройства
- Перепланировка хрущевки 1 комната. Перепланировка 1-комнатной хрущевки
Планировка хрущевки и варианты ее изменения. Достоинства и недостатки
При выборе квартир в домах «хрущевках» предпочтение отдается строениям из кирпича. За счет толстых стен они не нагреваются летом, что дает возможность экономить на кондиционерах, и не промерзают зимой. Небольшая площадь квартир легко прогревается чугунными радиаторами.
В отличие от современных монолитно-каркасных и панельных домов, кирпичные пятиэтажки имеют толстые несущие стены, что создает хорошую звукоизоляцию между квартирами. Качество вентиляции «хрущевок» тоже достаточно велико — из нижних квартир не поступают посторонние запахи.

Несмотря на типовые жилые помещения в таких домах, можно подобрать варианты на любой кошелек и вкус. На представленных фото планировок квартир «хрущевок» можно увидеть, что в пределах одного подъезда могут быть представлены и однокомнатные, и двухкомнатные, и трехкомнатные жилища.

Почти во всех квартирах предусмотрен балкон, который, при желании, можно превратить в дополнительное функциональное помещение.

Конструкция зданий предполагает хорошую устойчивость и прочность. Дома надежно стоят на любой почве и не боятся сейсмической активности.

Еще один плюс — квартиру «хрущевского» типа легко перестроить. Любые работы в плане перепланировки можно произвести в короткие сроки и недорого.
Существует немало интересных проектов изменения планировки однокомнатной квартиры в хрущевке и превращения ее в студию. Также есть варианты, при которых планировка двухкомнатной квартиры «хрущевки» превращается в проект современной евро-двушки.

Однако помимо достоинств жилища такого типа имеют и свои недостатки. К их числу относятся слишком низкие потолки, маленькие кухни и тесные прихожие. Чаще всего мебель для этих помещений приходится изготавливать на заказ. Санузел всегда совмещенный, но благодаря этому — достаточно просторный, позволяющий установить стиральную машину.

Гостиная в «хрущевке» всегда проходная, поэтому не может быть превращена в спальню или детскую.
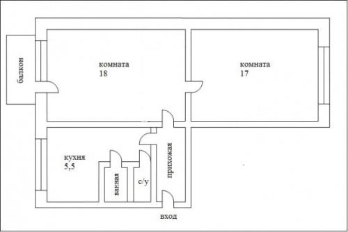
Перепланировка двухкомнатной хрущевки трамвайчика. Двухкомнатная хрущевка: 80+ фото, планировки, идеи дизайна

Планировка 2х комнатной хрущевки
Типовая хрущевка имеет очень маленькую кухню – 5-6 квадратов. Ещё одна особенность – невысокие потолки до 2,7 метров. Двушки без перепланировки зачастую бывают неудобны, особенно, если вторая комната проходная.
Стандартная площадь двухкомнатной хрущевки – около 43-44 кв метров. Дома пятиэтажные. В большинстве своем комнаты смежные, окна выходят на одну сторону (за исключением угловой квартиры с двумя окнами). В качестве достоинств хрущевки можно выделить наличие кладовки и балкона.
Рассмотрим самые распространенные типы планировок подробней.
Книжка
Такая планировка считается самой неудачной: проходная комната с широким дверным проемом играет роль столовой, а в семье с детьми – ещё и спальни. Уединенности в таком пространстве добиться трудно. Чтобы разделить помещения, придется пожертвовать частью комнаты. Без перегородок, на снос которых необходимо получить разрешение, хрущевку можно превратить в просторную студию.



На фото маленькая угловая кухня со встроенным холодильником и столом, вписанным в подоконник.
Трамвайчик
Такое народное название (также употребляется слово «паровозик») планировка получила за расположенные друг за другом комнаты, напоминающие вагоны. Гостиная с балконом является проходной, но переделка решает эту проблему: если отсечь часть комнаты и превратить ее в коридор с двумя входами, в получившейся нише можно организовать систему хранения.



На фото комната в кремовых тонах с акцентной стеной в телевизионной зоне.
Перепланировка хрущевки 3 комнаты. Демонтаж перегородки между кухней и комнатой.
Перепланировка квартиры-хрущевки, как правило, примечательна ещё одним часто встречающимся фактором. В таких квартирах тесными являются не только санузлы и ванные, но и кухня, поэтому вполне логичным решением при перепланировке хрущевки является её расширение. Тут тоже следует знать о некоторых законах:
а) запрещается переносить или расширять кухню за счет территории жилых комнат в соответствии с пунктом 7.21 СП 54.13330.2022.
Согласованная перепланировка двухкомнатной хрущевки.
б) не допускается демонтировать перегородку между кухней, оборудованной газовой плитой, и жилой комнатой согласно п. 9.16 Приложения 1 Постановления №508 Правительства Москвы. И даже устраивать в такой перегородке проём без двери.
К сожалению, почти во всех хрущёвках установлены газовые плиты, а потому желание увеличить маленькие габариты кухни за счёт её присоединения к комнатам натыкается на невозможность осуществления ввиду описанных выше пунктов. Выхода два:
- либо менять газовую плиту на электрическую, что довольно трудозатратно;
- либо отделять жилую комнату от кухни раздвижными перегородками.
Более подробно о таком переустройстве кухонь Вы можете прочесть здесь .
Как видно из всего перечисленного, перепланировка и ремонт хрущевки относятся к достаточно сложным мероприятиям, требующим тщательного планирования и проработки планировки. В целом, к сожалению, такие квартиры, прежде всего из-за своей маленькой площади, дают мало простора для реализации дизайнерской мысли. Безусловно, перепланировка трёхкомнатной хрущевки или перепланировка четырехкомнатной хрущевки в этом плане предоставляют гораздо больше вариантов планировки, чем перепланировка хрущевки с одной или двумя комнатами, что, в общем-то, логично.
Ниже мы решили привести идеи и варианты перепланировки хрущевки , которые были успешно согласованы и на которые были получены соответствующие разрешения (это подтверждается наличием на листе из проекта соответствующего штампа жилищной инспекции). Возможно, некоторые из них совпадают с планировками Ваших квартир, позволят составить мнение о допустимости того или иного переустройства, а, может быть, даже подкинут какую-нибудь стоящую идею к преобразованию Вашей квартиры. На каждой картинке представлен согласованный план перепланировки хрущевки из соответствующего проекта с отметкой демонтируемых и возводимых перегородок. Либо план квартиры до и после переустройства. Демонтируемые перегородки отмечены пунктиром, а возводимые закрашены сплошным цветом. Также советуем Вам прочесть статью о том, как узаконить перепланировку квартиры .
Перепланировка хрущевки: возможности и ограничения
Перепланировка квартиры-хрущевки, как правило, примечательна ещё одним часто встречающимся фактором. В таких квартирах тесными являются не только санузлы и ванные, но и кухня, поэтому вполне логичным решением при перепланировке хрущевки является её расширение.
Однако, при этом необходимо учитывать некоторые ограничения. Например, согласно пункту 7.21 СП 54.13330.2022, запрещается переносить или расширять кухню за счет территории жилых комнат.
Кроме того, согласно пункту 9.16 Приложения 1 Постановления №508 Правительства Москвы, не допускается демонтировать перегородку между кухней, оборудованной газовой плитой, и жилой комнатой. И даже устраивать в такой перегородке проём без двери.
К сожалению, почти во всех хрущёвках установлены газовые плиты, а потому желание увеличить маленькие габариты кухни за счёт её присоединения к комнатам наткнётся на невозможность осуществления ввиду описанных выше пунктов.
Выхода два: либо использовать другие варианты перепланировки, либо отказаться от идеи расширения кухни.
Также, можно прочитать более подробно о перепланировке кухонь здесь.
В целом, к сожалению, такие квартиры, прежде всего из-за своей маленькой площади, дают мало простора для реализации дизайнерской мысли. Безусловно, перепланировка трёхкомнатной хрущевки или перепланировка четырехкомнатной хрущевки в этом плане предоставляют гораздо больше вариантов планировки, чем перепланировка хрущевки с одной или двумя комнатами, что, в общем-то, логично.
Планировка хрущевки 2 комнаты распашонка. Варианты расположения комнат
Светлые оттенки в декоре
Несмотря на сотни отстроенных квартир, планировка в них всегда одинаковая с площадью от 40 до 48 м². Единожды утвержденные планы применялись по всему СССР на территории 16 государств. Все хрущевки объединяют маленькая площадь кухни (6-8 м²), санузлов (2-3 м²), узкие коридоры, небольшие комнаты (либо одна большая, вторая крошечная) и низкие потолки (2,5-2,7 м).
Выделяют несколько видов планировок, причем народ для каждой из них придумал «бытовое» название.
«Распашонка»
Чертеж плана напоминает детскую рубашку, где рукава – это одинаковые по размеру комнаты, а в центре располагаются кухня и санузлы. Вход в комнаты осуществляется из прихожей, из нее же попадают в ванную и туалет, а в кухню ведет узкий коридор. Это самый удачный вариант расположения спальни и гостиной, которые полностью изолированы друг от друга;
Зонирование кухонной зоны в студии
Самым распространенным вариантом перепланировки в такой квартирке является создание кухни-студии. В результате получается просторная гостиная-столовая без узкого коридорчика и лишних стенок. Также востребовано объединение санузлов, что делает их площадь более просторной и избавляет небольшой коридор от обилия дверей.
«Мини-улучшенка»
Это квартира с узким горизонтальным коридором в который выходят все двери остальных помещений. Обычно вход налево (или направо) приводит в большой и просторный зал, а прямо напротив входной двери располагается небольшая спальня. Правее по этой же стенке находится вход в кухню, а справа, напротив зала, располагаются кладовка, туалет и ванная.
«Мини-улучшенка»
В такой квартире обычно увеличивают площадь кухни за счет демонтажа кладовой и сдвига на ее место санузлов с их объединением. Комнаты итак изолированные, что очень удобно для семей с детьми. Любители больших пространств сносят перегородку между кухней и спальней, превращая эту площадь в огромную гостиную.
Все внутренние перегородки в хрущевках обычно не являются несущими конструкциями. Это позволяет безжалостно сносить их и переносить в другое место. Правда присутствуют другие запрещающие аспекты, но об этом ниже.
«Книжка»
Это самый неудачный вид планировки с небольшой площадью и смежными комнатами, одна из которых проходная. Из маленькой прихожей вы попадаете в небольшой зал, а из него ведет вход в примыкающую комнату, которая по площади совсем крошечная. Направо из прихожей ведет узкий коридор в кухню, с дверями в туалет и ванную.
«Книжка» с кухней-студией
В спальне иногда присутствует встроенный шкаф, который многие предпочитают демонтировать, чтобы увеличить размер комнатки. Чтобы изолировать это помещение, многие жертвуют метрами зала, продлевая прихожую вплоть до спальной стены, где прорубается проход.
В такой квартире тоже можно сделать кухню-студию, или объединить санузлы. Если плита газовая, тогда потребуется установить раздвижные перегородки с плотным притвором.
Требование относится ко всем типам хрущевок и любых других квартир. Согласно технике безопасности, запрещается объединять жилую площадь с кухней , в которой находится газопровод. Это связано с тем, что в большом помещении в случае детонации или утечки газа ущерб для здания будет намного выше, чем в небольшом.
«Трамвай»
В такой квартире обычно обе комнаты достаточно большие, что дает простор и почву для фантазии дизайнерам. Если из прихожки повернуть налево (или направо), вы попадаете в коридор до кухни, из которого ведут двери в санузлы. Напротив входной двери находится вход в гостиную, а из нее направо (налево) в спальню.
Перепланировка хрущевки 2 комнаты. Преимущества переобустройства
- Все комнаты расширяются и становятся просторными, за счет чего интерьер кажется максимально жилым и теплым;
- Большинство стеновых перегородок не являются несущими, а поэтому перепланировка 2-комнатных апартаментов осуществляется довольно быстро;
- Благодаря улучшенной обновленной планировке владельцы могут всецело проявить фантазию по обустройству и дизайну, получив в итоге максимально комфортное и стильное жилище.
Недостатками перепланировочных манипуляций являются:
- нужны сложные ремонтные и дизайнерские работы, связанные с демонтажем старых перегородок, переносом дверных проемов и возведением новых простенков на территории квартиры;
- пространство одного из смежных помещений уменьшается из-за разделения;
- переобустройство «хрущевки» требует немалых материальных затрат на демонтажные и дизайнерские манипуляции. Однако при осуществлении работ своими силами получится сэкономить средства;
- предстоят длительные строительные работы, сопровождающиеся повышенной степенью загрязнения мусором и пылевыми образованиями.

Размещение комнат в старых хрущевских квартирах может быть нескольких вариантов, поэтому и способы перепланировки хрущевки 2 комнаты могут быть совершенно различными. Чтобы выбрать самый подходящий вариант, нужно разобраться с особенностями исходного жилища:
- «Книжка» — тип планировки, при которой площадь апартаментов составляет 41 кв. метр, комнаты смежные. Пожалуй, самый неудачный вариант;
- «Трамвай» — площадь 48 кв. метров, опять же смежные помещения, но разделяются они гораздо безболезненнее;
- «Миниулучшенка» — получила свое название из-за практически идентичной планировки с квартирами в 9-этажках. Площадь ее 44,6 кв. метра, комнаты изолированы, смущает лишь небольшой размер кухонного помещения, который можно при желании увеличить до 8 квадратов;
- « Распашонка » — довольно редкий тип планировки площадью 46 кв . метров . Здесь две комнаты расположены симметрично , их размеры достаточно большие . Минус планировки – при увеличении площади кухни придется вторгнуться в комнату .

Перепланировка хрущевки 1 комната. Перепланировка 1-комнатной хрущевки
П ерепланировка в 1-комнатной хрущевке, варианты, фото квартиры.
Почему любимой? Да потому что не смотря на года, квартиры в хрущевках продолжают быть популярными среди покупателей квартир.
Однако после покупки счастье от приобретения квартиры не было бы полным, если дизайн хрущевки не удовлетворял не только потребности проживающих, но и их вкусы и предпочтения.
Чаще всего стандартная планировка квартиры в хрущевке этого не предполагает, поэтому новоиспеченным хозяевам приходится «допиливать» интерьер самостоятельно.
Кстати, вам в помощь могут быть рекомендации грамотного дизайнера интерьера, который с профессионального угла зрения может подсказать по многочисленным нюансам.
Если вы решили пока самостоятельно осмотреться и познакомиться с примерами перепланировки 1-комнатной хрущевки, то я готов предоставить несколько вариантов, о которых речь пойдет ниже. Дойдет дело и до— подпишитесь на новые статьи блога и будьте в курсе свежей информации!
Планировка 1-комнатной хрущевки может быть довольно комфортабельной для проживания одного человека, но чаще всего это первое жилье для молодых семей с ребенком.
Как можно сделать перепланировку квартиры хрущевки, чтобы проживание стало комфортным для молодой семейной пары с ребенком (ребенок грудной)? Задача непростая, но вполне осуществимая.
Да, еще! Не забывайте, что если вы увлечетесь ремонтом и не успеете узаконить перепланировку перед продажей квартиры, то вам пригодиться статья ««.
Что мы имеем в планировке 1-комнатной хрущевке :
- комната хрущевки 17, 7 кв.м.
- кухня — 5, 7 кв.м. (плита газовая);
- коридор 4 кв.м.;
- высота потолков2.5 м;
- одно окно в комнате с балконом или без него.
Перепланировка хрущевки в 1 комнатной квартире: что учесть
- отдельное место для ребенка, желательно спальную зону;
- шкаф для вещей и рабочий столик;
- по возможности не трогать коридор;
- закрыть обзор всей комнаты с входных дверей
Вот первоначальная планировка 1-комнатной хрущевки:
А это первоначальный план перепланировки 1-комнатной хрущевки
вариант 1:
Перепланировка 1-комнатной хрущевки
вариант 2:
В первоначальной перепланировке 1-комнатной квартиры хрущевки поставлена перегородка между спальней родителей и ребенка. Но, на самом деле опыт показывает, что такая планировка квартиры хрущевки не совсем удачна — ребенок вне прямой видимости матери.
Хотя если смотреть на перспективу, тогда перегородка может пригодиться, но она не спасет от шума телевизора или от гостей, которые могут расположиться на угловом диване. К тому же близость расположения дивана для гостей увеличивает вероятность заразить ребенка воздушной инфекцией.
Перепланировка квартиры хрущевки должна учитывать экономию пространства, например, двери на кухне, которые открываются внутрь делают и без того маленькое помещение еще меньше.
К тому же в первом варианте перепланировки хрущевки холодильник стоит в углу у радиатора отопления и при открытой дверце занимает до двух посадочных мест.
Для того, чтобы этого не происходило перепланировка хрущевки должна учитывать расположение холодильника на том месте, где на кухне расположена раковина. Может возникнуть вопрос: как его там расположить, если с этого места осуществляется подводка воды и канализации?
Достаточно просто: Встроенный холодильник располагается во встроенном шкафчике, который, в свою очередь, опирается на ножки, закрытые цокольными планками. Так достигается достаточное пространство для размещения трубы канализации.