Варианты перепланировки двушки хрущевки. Возможные перепланировки
- Варианты перепланировки двушки хрущевки. Возможные перепланировки
- Перепланировка 2х комнатной хрущевки с проходной комнатой. Что нельзя делать в 2-комнатной хрущевке
- Перепланировка 2-комнатной хрущевки в 3-комнатную. Перепланировка 2-комнатной квартиры в хрущевке
- Перепланировка 2-х комнатной хрущевки вагончик. Однокомнатная
- Типовые проекты перепланировки хрущевок. Переделка двухкомнатной хрущевки
- Перепланировка хрущевки распашонки. Учитываем особенности планировки
- Планировка хрущевки 2 комнаты 44 м. Типы исходной планировки с вариантами улучшений
Варианты перепланировки двушки хрущевки. Возможные перепланировки
Хрущевка - это малогабаритная квартира с однотипной планировкой, в которой не совсем удобно расположены комнаты, присутствуют низкие потолки, узкие коридоры, маленькие кухни и ванные. Однако, за счет дизайнерских возможностей, учитывающих все особенности, неудобное жилище можно сделать максимально комфортным и уютным.
Варианты перепланировки 1-комнатной хрущевки
Несмотря на скромные габариты, существует ряд возможных примеров трансформации однушки.
Хрущевка с двумя окнами
Квартира с балконом и двумя окнами, является угловой. Хрущевка с подобной планировкой может представлять собой не самый лучший вариант или наоборот, предоставить большое количество интересных идей перепланировки.



На фото пример перепланировки угловой хрущевки однушки с двумя окнами.
Хрущевка с одним окном
Однушки, имеющие одно окно и балкон, встречаются в кирпичных домах серии 1-511, в панельных застройках серии 1-515 и прочих. В таких квартирах присутствует раздельный санузел и коридор. В хрущевках с другой планировкой данное пространство представляет жилую комнату, что создает ограничение при переделке жилья.



На фото перепланировка однокомнатной квартиры хрущевки 30 кв с одним оконным проемом.
Перепланировка из 1-комнатной в двухкомнатную хрущевку
Самый простой и бюджетный способ перепланировки - установить гипсокартонную перегородку и сделать в ней дверной проем. Таким образом получится два небольших помещения с разным функциональным назначением.
Также трансформировать однокомнатную хрущевку в двушку или полуторку можно за счет раздвижных дверей, которые не займут много места и позволят обособить такие комнаты, как детская, спальня или зал.
Немалое значение в дизайне играет выбор мебельных конструкций. Например, сэкономить пространство поможет встроенная бытовая техника в виде уменьшенного холодильника или маленькой плиты.



На фото однокомнатная квартира хрущевка с перепланировкой в двушку.



Перепланировка 2х комнатной хрущевки с проходной комнатой. Что нельзя делать в 2-комнатной хрущевке
Есть ряд запретов в перепланировке «двушек». Нельзя:
- сносить несущие стены. Можно сделать новый проем, но только после получения разрешения на это у авторов проекта дома или в ГБУ «Экспертный центр»;
- переносить радиаторы отопления на балконы;
- демонтировать или замуровывать вентиляционные каналы;
- обрезать и убирать сантехнические короба, делать в них полки и ниши. Максимум, что разрешено, это установить там проточный водонагреватель или спрятать оборудование для инсталляции;
- расширять санузел, ванную за счет жилой комнаты или кухни;
- переносить кухню в жилую комнату, а также в коридор или в кладовку, если у соседей ниже там находится жилая площадь;
- переносить газовые трубы;
- демонтировать канализационный стояк;
- самовольно пристраивать балконы.
Если вы задумали перепланировку в 2-комнатной хрущевке, но сомневаетесь, можно ли ее проводить, напишите нам. Мы точно скажем, согласуют ли ремонт в вашей квартире и, если да, то сколько это будет стоить:
Сколько будет стоить перепланировка двухкомнатной хрущёвки? Перепланировка 2-х комнатной хрущевки Перепланировка в хрущевке 2 комнатной смежной Как узаконить перепланировку в квартире если она уже сделана 2020
Здравствуйте! Вы можете задать мне любой интересующий вопрос в WhatsApp.
Получите консультацию специалиста или отправьте нам на предварительную оценку необходимые документы.
Частые вопросы нашим экспертам
Сколько будет стоить перепланировка двухкомнатной хрущёвки? Перепланировка 2-х комнатной хрущевки Перепланировка в хрущевке 2 комнатной смежной Как узаконить перепланировку в квартире если она уже сделана 2020
Чтобы задать вопрос в WhatsApp отсканируйте QR-код с телефона. Диалог с экспертом откроется в приложении.
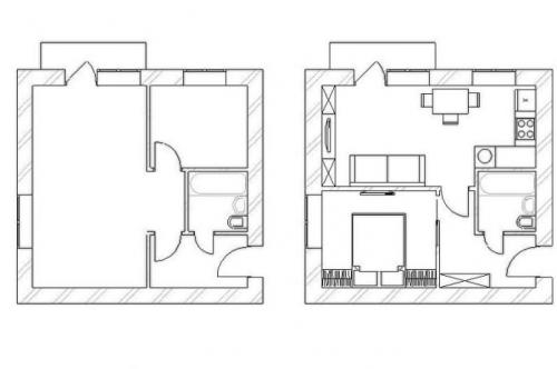
Перепланировка 2-комнатной хрущевки в 3-комнатную. Перепланировка 2-комнатной квартиры в хрущевке
Двухкомнатные хрущевки, в большинстве своем, имеют множество перегородок, ниш, кладовых, которые «крадут» квадратные метры полезной площади. При этом комнаты не могут похвастаться удобной планировкой и выгодным метражом. Зачастую перепланировать и расширить пространство не так уж просто. Одним из выгодных вариантов изначальной планировки квартиры остается так называемая «распашонка», где комнаты расположены по обе стороны от кухни и не являются проходными. Но и перестроить площадь таким образом, чтобы получить третью комнату, не удастся. Даже разделив одну из комнат перегородкой, мы получим два помещения, одно из которых будет без окон, а во второе нужно будет организовать вход с территории и без того маленькой кухни. Поэтому такие квартиры, чаще всего, оставляют в первозданном виде.
Проект 1
Как мы уже говорили, наличие ниш и кладовых вполне можно использовать для увеличения площади. Например, как показано на фото, владельцы одной из квартир решили вопрос расширения кухни за счет смещения санузла в сторону кладовой. При данной планировке можно запросто объединить кухню с прилежащей комнатой и даже прихожей, в результате чего получится просторный зал. Однако нужно учитывать, что, если в квартире проживает полноценная семья с детьми, такая перепланировка окажется не целесообразной, лишая кого-либо из домочадцев личного пространства.


Проект 2
Один из самых неудобных проектов двухкомнатных квартир, именуемый «книжкой», предполагает наличие двух небольших смежных комнат, одна из которых проходная. В данном случае перепланировать обстановку таким образом, чтобы получить две отдельные комнаты, не получится без потери полезной площади одной из них. Здесь оптимальным вариантом выступает продление коридора за счет уменьшения площади проходной комнаты. В то же время, в комнате остается балкон, который можно утеплить и присоединить к полезной площади.


Проект 3
Квартиры типа «трамвай» также подразумевают наличие смежных комнат, но здесь можно разделить их, сохранив большее количество жилой площади. Один из вариантов предлагает попросту продлить коридор, обустроив в тупике гардеробную или кладовую. В таком случае сооружается дополнительная перегородка с дверью, которая отделит комнату. Второй вариант – продлить коридор только до конца дверного проема, ведущего в правую комнату. В данном случае необходимо будет соорудить две небольшие перегородки – одна будет тупиком коридора, а вторая – отделять комнату справа.


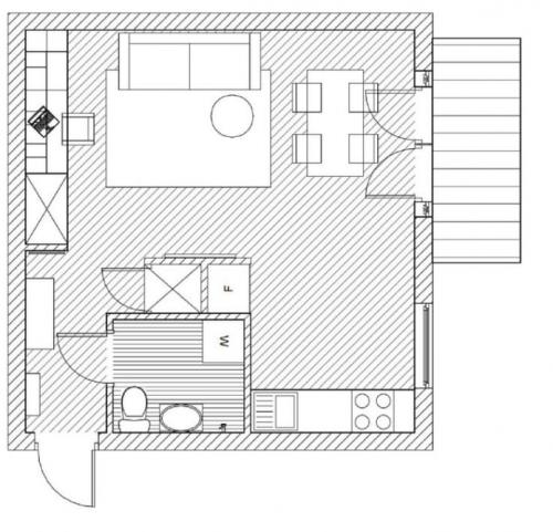
Перепланировка 2-х комнатной хрущевки вагончик. Однокомнатная
Площадь однушки в зависимости от серии дома — от 31 до 33 квадратов. Кухня — от 5,8 до 6,2 кв. м, жилая зона — от 16 до 20. Санузел совмещенный, окна выходят на одну сторону. В целом это неплохой вариант, поскольку единственная комната достаточно просторная, ее можно разбить на несколько функциональных зон. К тому же внутри нет несущих стен, поэтому можно менять конфигурацию помещений. А если кухня не газифицирована, то простор для творчества еще больше.
Есть два варианта перепланировки 1-комнатной хрущевки:
- — подойдет для тех, кто живет один или вдвоем.
- Сделать двушку, разделив большую комнату на две, — подойдет для пар и семей, которым нужно уединение.
Instagram @honeyhouse74
Instagram @honeyhouse74
Instagram @honeyhouse74
Instagram @honeyhouse74
Instagram @honeyhouse74
Instagram @honeyhouse74
Instagram @svetachi_live
Instagram @svetachi_live
Instagram @svetachi_live
Instagram @anna_unschikova
Instagram @anna_unschikova
Instagram @anna_unschikova
Пример 1
Автор этого проекта сделала перепланировку однокомнатной хрущевки для молодой пары, которая много путешествует. Было несколько принципиальных запросов: минимум переносов стен, место для хранения сувениров и.
Передвинули только одну стену — так, что в итоге образовалась уютная ниша для кровати. В итоге не нужно никаких перегородок и простенков, чтобы обособить в общем пространстве спальное место. Зону готовки и совмещенный санузел не трогали, а со стороны прихожей организовали вместительный шкаф для хранения одежды, чтобы не занимать место в.
Пример 2
Здесь мы видим перепланировку 1-комнатной хрущевки 30 кв. м для одного человека. Расположение мебели в жилой зоне очень похоже на первый пример: мягкая группа у окна, кровать , для которой достроили стенку. Основное хранение также находится в прихожей. Зону готовки немного расширили за счет коридора, сделав углубление, а вход сделали из жилой зоны
Интересный момент — то же самое сделали с санузлом, хотя на тот момент по закону вход должен был быть из коридора. Никаких нарушений не было: авторы проекта поделились в своем блоге, что такой вариант согласовали, поскольку удалось доказать, что зал объединен с прихожей. Сейчас же законодательство позволяет делать вход в ванную из жилой зоны.
Типовые проекты перепланировки хрущевок. Переделка двухкомнатной хрущевки
Типовые планировки квартир в хрущевках, которые даже получили свои индивидуальные «народные» названия, в большинстве случаев считаются устаревшими и неудобными. В сравнении с многообразием вариантов расположения комнат в новостройках, они действительно сильно проигрывают. Однако, такое жилье по статистике считается самым продаваемым из-за своей низкой стоимости. Поэтому и спрос на проекты перепланировки для устаревших квартир не снижается.
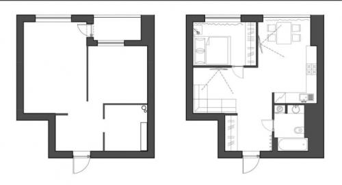
Книжка
Хрущевка «книжка» получила свое название из-за внешнего сходства планировки квартиры с раскрытым фолиантом. Помещения в двухкомнатном жилье располагаются в линию и соединяются между собой дверями. Одна комната становится проходной. Обычно ее используют в качестве зала. По бокам размещается спальня и кухня с санузлом и прихожей. Как правило, к таким квартирам прилагается балкон или лоджия (обычно размещенные в зале). Такой тип планировки считается наиболее неудачным. Переделать что-либо в «книжке» весьма проблематично. Единственное, на что могут рассчитывать хозяева, так это частичный снос стен между залом и прихожей. В увеличившийся коридор выводят двери в гостиную и спальню, оставляя сообщение с кухней нетронутым. Ранее существовавшие входы из зала убирают. Таким образом избавляются от проходного помещения и изолируют каждую комнату, но при этом жертвуют небольшой площадью зала. Также встречает и другой, более трудоемкий вариант. Между кухней и гостиной сносят стену, объединяя два пространства в студию.При этом площадь зала уменьшают, как и в предыдущем варианте. В этом небольшом тупичке удобно обустроить кладовку или гардеробную.
Перепланировка хрущевки распашонки. Учитываем особенности планировки
Типовая хрущевка имеет очень маленькую кухню – 5-6 квадратов. Ещё одна особенность – невысокие потолки до 2,7 метров. Двушки без перепланировки зачастую бывают неудобны, особенно, если вторая комната проходная.
Стандартная площадь двухкомнатной хрущевки – около 43-44 кв метров. Дома пятиэтажные. В большинстве своем комнаты смежные, окна выходят на одну сторону (за исключением угловой квартиры с двумя окнами). В качестве достоинств хрущевки можно выделить наличие кладовки и балкона.
Рассмотрим самые распространенные типы планировок подробней.
Книжка
Такая планировка считается самой неудачной: проходная комната с широким дверным проемом играет роль столовой, а в семье с детьми – ещё и спальни. Уединенности в таком пространстве добиться трудно. Чтобы разделить помещения, придется пожертвовать частью комнаты. Без перегородок, на снос которых необходимо получить разрешение, хрущевку можно превратить в просторную студию.



На фото маленькая угловая кухня со встроенным холодильником и столом, вписанным в подоконник.
Трамвайчик
Такое народное название (также употребляется слово "паровозик") планировка получила за расположенные друг за другом комнаты, напоминающие вагоны. Гостиная с балконом является проходной, но переделка решает эту проблему: если отсечь часть комнаты и превратить ее в коридор с двумя входами, в получившейся нише можно организовать систему хранения.



На фото комната в кремовых тонах с акцентной стеной в телевизионной зоне.
На фото проект двухкомнатной хрущевки 44 кв. м.
Распашонка
Вполне удобная планировка, при которой комнаты разделены кухней и прихожей, но такой тип хрущевки встречается нечасто. Также ее называют "бабочкой" благодаря схожести комнат с симметричными крыльями.



На фото крошечная кухня , где глянцевые белые шкафчики-нивидимки занимают всё межпотолочное пространство.
Планировка хрущевки 2 комнаты 44 м. Типы исходной планировки с вариантами улучшений
Базовая планировка 2-комнатной хрущевки определяется не только размером свободной площади, но еще и характером расположения жилых комнат. В этом плане есть несколько вариантов, и мы пробежимся по самым популярным из них — со вполне конкретным предложением по кардинальным преобразованиям к каждому.
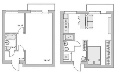
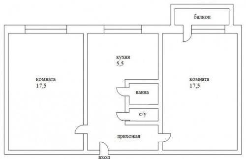
«Распашонка»
Примерно одинаковые по площади жилые комнаты (16-17 кв.метров) расположены по левую и правую стороны от прихожей и изолированы друг от друга. Между ними располагается санузел и небольшая кухня примерно на 5 кв. метров.

Что можно сделать:
Самое слабое звено в этой схеме — скромная кухня, и ее можно увеличить за счет одной из комнат.
Планировка распашонкой для 2-комнатной хрущевки смотрится одним из самых удачных решений, так как позволяет обойтись минимумом потраченных усилий для придания квартирному пространству более современного вида.
«Книжка»
Две жилые комнаты является смежными — их разделяет одна длинная стена. Кухня на 4-5 кв.метра и санузел располагаются по левую-правую сторону от коридора.
Что можно сделать:
- увеличить кухню за счет объединения с прилегающей к ней комнатой;
- продлить коридор и сделать пространство при входе более свободным.
Мини-улучшенка
2 жилые комнаты изолированы друг от друга. Вход в каждую оформлен через прихожую. Выделяется гостиная с прилегающим балконом — примерно на 20 кв. метров. Вторая комната поменьше, на 10-11 квадратов: за ней расположена очень маленькая кухня. Такая планировка 2-комнатной хрущевки занимает в общей сложности 45 кв. метров и признается одной из лучших среди квартир советского типа.
Что можно сделать:
- сделать более просторной кухню за счет объединения с малой комнатой или прихожей;
- убрать перегородку между гостиной и балконом;
- объединить туалет и ванную комнату.
Трамвай
Прихожую в хрущевках такого типа венчает вход в большую гостиную, к которой примыкает вторая аналогичная по размеру смежная комната. Справа от прихожей располагается раздельный на туалет и ванную санузел.
Это очень выгодная планировка, так как кухня при такой схеме имеет вполне комфортные размеры.