Ремонт в хрущевке 2х комнатной. Улучшенка
- Ремонт в хрущевке 2х комнатной. Улучшенка
- Бюджетный ремонт двухкомнатной хрущевки. Дизайн 2х комнатной хрущевки: проекты, перепланировка, лучшие фото идеи дизайна
- Дизайн двухкомнатной хрущевки трамвайчика. Правовые аспекты перепланировки
- Дизайн хрущевки 2 комнаты вагончиком. Варианты расположения комнат
Ремонт в хрущевке 2х комнатной. Улучшенка
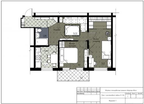
Общая площадь 44,6 квм. Комнаты в ней непроходные, кухня небольшая, санузел может быть совмещенным или раздельным. Имеется маленькая кладовка.
Ремонт и обустройство 2 комнатной хрущевки требуют соблюдения определенных правил и рекомендаций. На стенах не должно быть ковров, которые зрительно уменьшают помещение. Обои необходимо подбирать светлых, пастельных тонов без объемных рисунков и узоров. Привлекательно смотрятся стены, отделанные декоративной штукатуркой, панельные перегородки. Рельефные детали придадут еще большей эстетики.

Светлая отделка стен и потолка способствует визуальному расширению пространства
Пол изначально темно-коричневого цвета. Это зрительно делает потолки низкими. Поэтому финишную напольную поверхность нужно выбирать светлых тонов.
Потолок рекомендуется сделать двухуровневым натяжным. Есть и более бюджетный вариант: подвесная конструкция. Шторы должны быть выполненными из легкой воздушной ткани.

Темные и яркие оттенки уместны лишь в качестве выразительных акцентов
Настенные зеркала зрительно увеличат комнату. Однако их не следует устанавливать напротив спального места или дверей. Мебель желательно приобретать корпусную. Сейчас существует много вариантов для малогабаритного жилья.
Встроенная мебель позволяет максимально рационально задействовать свободное пространство комнаты
Соблюдая эти советы, получится зрительно увеличить жилье и сделать его более комфортным даже без перепланировки.
Бюджетный ремонт двухкомнатной хрущевки. Дизайн 2х комнатной хрущевки: проекты, перепланировка, лучшие фото идеи дизайна
Миллионы людей живут в малогабаритных квартирах с типовой планировкой. Мечтая о современном и удобном жилье, одни владельцы задумываются о переезде. Другие же устраивают ремонт в хрущевке 2-х комнатной, фото которой после проведенных работ едва ли выдает время постройки дома. Благодаря огромному ассортименту строительных материалов и безграничным вариациям готовых дизайнерских решений, сегодня можно реализовать любые желания. Главное не пренебрегать советами специалистов.

Хрущевки — первые многоэтажные дома массовой застройки. Во времена СССР квартиры в них раздавали практически бесплатно, что решило вопрос острой нехватки жилья. Небольшая площадь, проходные комнаты, неудобное расположение дверей отличает их от “сталинок” и других домов. Есть и другие, не менее значимые недостатки: низкая шумоизоляция, невысокие потолки, маленькие прихожая и кухня, отсутствие балкона на первом этаже. На нынешнем рынке такая недвижимость мало ценится.

Несмотря на очевидные минусы, плюсы здесь тоже есть. В каждом жилище времен Хрущева Н. С. предусмотрены кладовки. Санузел обычно совмещен, что экономит место. А варианты дизайна таких помещений безграничны. Зачем покупать типовую мебель и жертвовать большой ванной, если даже в советской двушке реально осуществить любые идеи?


Планировка хрущевок, состоящих из 2 комнат, бывает 4 видов:
Трамвай | около 47 кв. м | Две комнаты в такой квартире имеют одну, смежную стену. Гостиная обычно угловая. |
Бабочка | 46 кв. м | Кухня располагается между двумя комнатами. |

“Книжка” достаточно неудобная, как в первоначальном виде, так и в измененном. Так как комнаты следуют друг за другом, сделать радикальное перепроектирование помещения невозможно.

Объединение комнат
При входе в дом первое, что бросается в глаза — прихожая. В хрущёвке она маленькая, узкая и темная. Если увеличить дверной проем в комнате, коридор станет светлее и визуально больше. С этого обычно и начинается составление плана ремонта 2-комнатной квартиры. Что касается радикального сноса стен, чаще всего объединяют:
- Кухню и зал. На месте убранной стены устанавливается барная стойка или стол с мягким диваном.
- Зал и спальню. Подходит для семьи без детей. При наличии ребенка детская в хрущевке оформляется путем зонирования помещения.
- Зал и кабинет. Для создания рабочего пространства подойдет стеллаж или мобильные ширмы. Иногда дизайнеры используют невысокий подиум.
- Спальню и кабинет. Комната разделяется на 2 функциональные зоны, стол для работы ставится около окна.

Зонирование
Перестройка малогабаритной квартиры 40 кв. м или другой площади не обходится без зонирования. Каждому члену семьи необходима личная зона в квартире. При этом нельзя уменьшать и без того маленький размер кухни. Рабочее место должно быть вместительным. Для разделения разных участков используются:
- гипсокартонные фальшстены;
- передвижные перегородки;
- занавески, шторы;
- диваны, шкафы, другие предметы мебели;
- разноуровневые потолок и пол.

Раздвижные двери — лучшая альтернатива распашным. Они удобны в обращении и стильно смотрятся.

Отделка
Эффективным способом зрительного увеличения пространства любой дизайнер назовет использование светлых оттенков. Но это утверждение нельзя воспринимать буквально, иначе ремонт в 2х комнатной хрущевке по фото будет напоминать больничную палату. То же касается и 1х, 3х комнатных квартир. Удачное сочетание цветов приведет к успешному обновлению интерьера.

Полы
Единственное строгое требование к выбору напольного покрытия — табу на темные оттенки. В домах небольшого размера пол является фоном для других предметов и не должен привлекать внимание. Лучшие цвета: серый, бежевый, молочный. Также уместна имитация фактуры дерева или сам натуральный материал. Ламинат, паркетная доска, линолеум, ковролин, плитка — любое покрытие эффектно дополнит дизайн, если учтены требования к цвету.

Потолки
Чем ярче освещение в маленькой комнате, тем лучше. В дополнение к люстре рекомендованы точечные светильники, расположенные по периметру. Скрыть все неровности и дефекты на потолке поможет натяжной вариант. Не менее выгодно смотрится многоуровневый верх.

Стены
Прежде чем приступить к отделке стен, в 9 случаях из 10 их придется выровнять. В панельных домах, как и кирпичных, разница в высоте или наклоне разных стен достигает 2-3 см. Даже если кривизна не бросается в глаза, она создаст большие проблемы при ремонтных работах. Поверхность выравнивается шпаклевкой или гипсокартоном. По окончании подготовки комната оформляется обоями, например:
- флизелиновыми, виниловыми, акриловыми с вертикальным рисунком;
- фотообоями с городским пейзажем или природой;
- жидкими бесшовными обоями.

Цвет стен должен гармонировать с задуманным дизайном хрущевки, состоящей из 2 комнат. Правило “чем выше цена, тем лучше” работает не всегда. Даже самая дорогая шелкография подходит далеко не к каждому интерьеру.
Источник: https://otoplen-dom.ru/stati/dizayn-dvuhkomnatnoy-kvartiry-v-hrushchevke-pereplanirovka-hrushchevki
Дизайн двухкомнатной хрущевки трамвайчика. Правовые аспекты перепланировки
Если владельцы не планируют переносить несущие стены, то ничего оформлять не нужно. Перепланировка двухкомнатной хрущевки происходит в стандартном режиме согласно готовому плану. Однако стоит заранее учесть, не находится ли здание в предаварийном состоянии, не были ли нарушены законодательные акты предыдущими хозяевами.

Перед началом перепланировки квартиры необходимо позаботиться о её согласовании
В случаях, если планируется переносить несущие стены или были замечены грубые ошибки при прежних владельцах, необходимо сделать следующее:
- подготовить проект;
- предоставить его в местную архитектурную администрацию;
- далее документы попадают в суд, остается его только выиграть.
На всю процедуру может уйти несколько месяцев. Чтобы не тратить личное время на сбор, можно обратиться сразу в специализирующуюся на таких вопросах компанию. За небольшое вознаграждение сотрудники сами соберут все необходимые документы.
В панельном доме
Чаще всего в панельных домах расширяют санузел, кухню и коридор. Способов сделать это достаточно много. Для этого необходимо обратиться к специалисту, который занимается проектированием. Дополнительно может понадобиться разрешение со стороны управляющей компании, самовольный снос стен в таких домах может оказаться под запретом.

Раздельные ванна и туалет в хрущевках отличаются очень маленькой площадью, снос перегородки между ними позволяет получить довольно просторный санузел
В кирпичном доме
Из кирпича обычно строили дома до революции. Таких зданий осталось немного, большая часть из них является историческим достоянием. Говоря о хрущевках, стены из кирпича могут быть между комнатами. Сегодня достаточно часто встречаются такие объекты, в планировку которых уже было вмешательство. Работать с такими стенами необходимо крайне аккуратно, так как никогда не знаешь, чего ожидать. Желательно вызвать специалистов, которые смогут заранее предупредить о всех возможных проблемах. Как выглядит перепланировка 2 х комнатной хрущевки квартиры в кирпичном доме можно ознакомиться на фото.

Дизайн хрущевки 2 комнаты вагончиком. Варианты расположения комнат

Светлые оттенки в декоре
Несмотря на сотни отстроенных квартир, планировка в них всегда одинаковая с площадью от 40 до 48 м². Единожды утвержденные планы применялись по всему СССР на территории 16 государств. Все хрущевки объединяют маленькая площадь кухни (6-8 м²), санузлов (2-3 м²), узкие коридоры, небольшие комнаты (либо одна большая, вторая крошечная) и низкие потолки (2,5-2,7 м).
Выделяют несколько видов планировок, причем народ для каждой из них придумал «бытовое» название.
«Распашонка»
Чертеж плана напоминает детскую рубашку, где рукава – это одинаковые по размеру комнаты, а в центре располагаются кухня и санузлы. Вход в комнаты осуществляется из прихожей, из нее же попадают в ванную и туалет, а в кухню ведет узкий коридор. Это самый удачный вариант расположения спальни и гостиной, которые полностью изолированы друг от друга;

Зонирование кухонной зоны в студии
Самым распространенным вариантом перепланировки в такой квартирке является создание кухни-студии. В результате получается просторная гостиная-столовая без узкого коридорчика и лишних стенок. Также востребовано объединение санузлов, что делает их площадь более просторной и избавляет небольшой коридор от обилия дверей.
«Мини-улучшенка»
Это квартира с узким горизонтальным коридором в который выходят все двери остальных помещений. Обычно вход налево (или направо) приводит в большой и просторный зал, а прямо напротив входной двери располагается небольшая спальня. Правее по этой же стенке находится вход в кухню, а справа, напротив зала, располагаются кладовка, туалет и ванная.

«Мини-улучшенка»
В такой квартире обычно увеличивают площадь кухни за счет демонтажа кладовой и сдвига на ее место санузлов с их объединением. Комнаты итак изолированные, что очень удобно для семей с детьми. Любители больших пространств сносят перегородку между кухней и спальней, превращая эту площадь в огромную гостиную.
Все внутренние перегородки в хрущевках обычно не являются несущими конструкциями. Это позволяет безжалостно сносить их и переносить в другое место. Правда присутствуют другие запрещающие аспекты, но об этом ниже.
«Книжка»
Это самый неудачный вид планировки с небольшой площадью и смежными комнатами, одна из которых проходная. Из маленькой прихожей вы попадаете в небольшой зал, а из него ведет вход в примыкающую комнату, которая по площади совсем крошечная. Направо из прихожей ведет узкий коридор в кухню, с дверями в туалет и ванную.

«Книжка» с кухней-студией
В спальне иногда присутствует встроенный шкаф, который многие предпочитают демонтировать, чтобы увеличить размер комнатки. Чтобы изолировать это помещение, многие жертвуют метрами зала, продлевая прихожую вплоть до спальной стены, где прорубается проход.
В такой квартире тоже можно сделать кухню-студию, или объединить санузлы. Если плита газовая, тогда потребуется установить раздвижные перегородки с плотным притвором.
Требование относится ко всем типам хрущевок и любых других квартир. Согласно технике безопасности, запрещается объединять жилую площадь с кухней , в которой находится газопровод. Это связано с тем, что в большом помещении в случае детонации или утечки газа ущерб для здания будет намного выше, чем в небольшом.
«Трамвай»
В такой квартире обычно обе комнаты достаточно большие, что дает простор и почву для фантазии дизайнерам. Если из прихожки повернуть налево (или направо), вы попадаете в коридор до кухни, из которого ведут двери в санузлы. Напротив входной двери находится вход в гостиную, а из нее направо (налево) в спальню.

Квартира типа “трамвай”
Одинаковые прямоугольные жилые комнаты при взгляде сверху напоминают вагоны трамвая. Как и в предыдущем варианте, здесь можно возвести перегородку, продлив коридор на всю ширину зала, завершив его шкафом-купе. Так помещения станут изолированными, а в квартире появится вместительная кладовая.