Схема хрущевки 2 комнаты с размерами. Учитываем особенности планировки
- Схема хрущевки 2 комнаты с размерами. Учитываем особенности планировки
- Планировка хрущевки 2 комнаты 44 м с размерами. Типы исходной планировки с вариантами улучшений
- Планировка хрущевки 2 комнаты угловая. Типовые планировки хрущевки 1,2,3,4 -комнатных квартир с размерами
- План хрущевки 3 комнаты с размерами. Типичный проект 3-комнатной квартиры
- Планировка хрущевки 2 комнаты с кладовкой. Варианты планировки
- Перепланировка 2-х комнатной хрущевки вагончик. Что нельзя делать в 2-комнатной хрущевке
- Перепланировка 2х комнатной хрущевки с проходной комнатой. Перепланировка 2-комнатной квартиры в хрущевке
- Хрущевка 2-х комнатная. Дизайн 2х комнатной хрущевки: проекты, перепланировка, лучшие фото идеи дизайна
Схема хрущевки 2 комнаты с размерами. Учитываем особенности планировки
Типовая хрущевка имеет очень маленькую кухню – 5-6 квадратов. Ещё одна особенность – невысокие потолки до 2,7 метров. Двушки без перепланировки зачастую бывают неудобны, особенно, если вторая комната проходная.
Стандартная площадь двухкомнатной хрущевки – около 43-44 кв метров. Дома пятиэтажные. В большинстве своем комнаты смежные, окна выходят на одну сторону (за исключением угловой квартиры с двумя окнами). В качестве достоинств хрущевки можно выделить наличие кладовки и балкона.
Рассмотрим самые распространенные типы планировок подробней.
Книжка
Такая планировка считается самой неудачной: проходная комната с широким дверным проемом играет роль столовой, а в семье с детьми – ещё и спальни. Уединенности в таком пространстве добиться трудно. Чтобы разделить помещения, придется пожертвовать частью комнаты. Без перегородок, на снос которых необходимо получить разрешение, хрущевку можно превратить в просторную студию.



На фото маленькая угловая кухня со встроенным холодильником и столом, вписанным в подоконник.
Трамвайчик
Такое народное название (также употребляется слово "паровозик") планировка получила за расположенные друг за другом комнаты, напоминающие вагоны. Гостиная с балконом является проходной, но переделка решает эту проблему: если отсечь часть комнаты и превратить ее в коридор с двумя входами, в получившейся нише можно организовать систему хранения.



На фото комната в кремовых тонах с акцентной стеной в телевизионной зоне.
На фото проект двухкомнатной хрущевки 44 кв. м.
Распашонка
Вполне удобная планировка, при которой комнаты разделены кухней и прихожей, но такой тип хрущевки встречается нечасто. Также ее называют "бабочкой" благодаря схожести комнат с симметричными крыльями.



На фото крошечная кухня , где глянцевые белые шкафчики-нивидимки занимают всё межпотолочное пространство.
Планировка хрущевки 2 комнаты 44 м с размерами. Типы исходной планировки с вариантами улучшений
Базовая планировка 2-комнатной хрущевки определяется не только размером свободной площади, но еще и характером расположения жилых комнат. В этом плане есть несколько вариантов, и мы пробежимся по самым популярным из них — со вполне конкретным предложением по кардинальным преобразованиям к каждому.
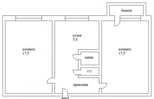
«Распашонка»
Примерно одинаковые по площади жилые комнаты (16-17 кв.метров) расположены по левую и правую стороны от прихожей и изолированы друг от друга. Между ними располагается санузел и небольшая кухня примерно на 5 кв. метров.

Что можно сделать:
Самое слабое звено в этой схеме — скромная кухня, и ее можно увеличить за счет одной из комнат.

Планировка распашонкой для 2-комнатной хрущевки смотрится одним из самых удачных решений, так как позволяет обойтись минимумом потраченных усилий для придания квартирному пространству более современного вида.

«Книжка»
Две жилые комнаты является смежными — их разделяет одна длинная стена. Кухня на 4-5 кв.метра и санузел располагаются по левую-правую сторону от коридора.


Что можно сделать:
- увеличить кухню за счет объединения с прилегающей к ней комнатой;
- продлить коридор и сделать пространство при входе более свободным.



Мини-улучшенка
2 жилые комнаты изолированы друг от друга. Вход в каждую оформлен через прихожую. Выделяется гостиная с прилегающим балконом — примерно на 20 кв. метров. Вторая комната поменьше, на 10-11 квадратов: за ней расположена очень маленькая кухня. Такая планировка 2-комнатной хрущевки занимает в общей сложности 45 кв. метров и признается одной из лучших среди квартир советского типа.
Что можно сделать:
- сделать более просторной кухню за счет объединения с малой комнатой или прихожей;
- убрать перегородку между гостиной и балконом;
- объединить туалет и ванную комнату.

Трамвай
Прихожую в хрущевках такого типа венчает вход в большую гостиную, к которой примыкает вторая аналогичная по размеру смежная комната. Справа от прихожей располагается раздельный на туалет и ванную санузел.


Это очень выгодная планировка, так как кухня при такой схеме имеет вполне комфортные размеры.
Планировка хрущевки 2 комнаты угловая. Типовые планировки хрущевки 1,2,3,4 -комнатных квартир с размерами
Особенности «хрущевок»
Строительство таких домов началось в 1958 году и продолжалось до 1985 года. В то время остро стояла проблема обеспечения жильем огромного количества людей по всей стране. Нужен был простой проект, который мог бы решить эту проблему в кратчайшие сроки.
Компактные жилые дома строились быстро и не требовали больших затрат. Впоследствии они получили прозвище «хрущевки», так как были построены в то время, когда главой государства был Никита Сергеевич Хрущев.
Квартиры в этих домах отличались небольшой площадью квадратных метров, проходными комнатами, низкими потолками, совмещенными санузлами и подъездами без лифта. Было несколько наборов типовых планировок квартир в хрущевских домах, отличавшихся:
- материал стен;
- расположение кладовой;
- варианты расположения комнат относительно гостиной;
- площади кухни и комнат.



Выделяют четыре серии типовых домов типа «хрущевки:
- 1-464 серия (годы постройки 1960—1967);
- 1-335 серии (1963—1967 годов постройки);
- 1-434 серии (1958—1964 годов постройки);
- серия 1-434С (1958—1964 годов постройки).

Изначально дома этого типа считались временным жильем. Они были построены для быстрого решения жилищной проблемы и рассчитаны на срок не более 25 лет. Впоследствии срок был увеличен до 50 лет и более.

На данный момент «хрущевки» столицы и Санкт-Петербурга сносят, но в других регионах продолжают активно эксплуатировать. Особой популярностью пользуются кирпичные постройки. У них толстые стены, удобные холодильники под подоконником, просторные кладовые.

Планировки кирпичных квартир «Хрущевки» легко меняются, превращая стандартные квартиры в современные и стильные.

Характеристика планировки
Планировка хрущевки очень неудобная и непропорциональная. В типовых панельных, кирпичных или блочных многоквартирных домах бывают узкие пролеты, узкие коридоры и тонкие стены, для которых характерна плохая звукоизоляция. Из-за ряда недостатков и небольших размеров современные постройки того времени получили другое название — Krusciobs.

Функции:
- На каждом этаже по 3 квартиры — однокомнатные, двухкомнатные и трехкомнатные.
- Также существует измененная конструкция с четырьмя планировками комнат.
Типовые серии хрущевок
В России представлены проекты многоэтажных кирпичных или панельных домов высотой от 2 до 5 этажей, которые были построены во времена правления Никиты Сергеевича Хрущева, а точнее в 1959-985 годах.
План хрущевки 3 комнаты с размерами. Типичный проект 3-комнатной квартиры
В хрущевские времена сталинки сменили застройки нового типа, они стали появляться в конце 50-х и до 80-х гг. прошлого века. Высота 5 этажного дома, как правило, была 15-метровой. В это время архитекторы совершенствовали проекты и подгоняли их под современные требования. Изначально планировка 3 -шки была неудобной: маленькие комнаты, невысокие потолки, недостаточно освещенные и узкие прихожие.
Гостиная, как правило, находилась неподалеку от кладовки. В строениях панельного типа стены были плохо теплоизолированными.

Место, отведенное для кухни, тоже было небольшим. При ремонте мастера часто используют разные перегородки, чтобы визуально объединить или зонировать пространство. Типовая планировка 3 –комнатном жилье пространство распределяется по-разному, и отдельные варианты вполне комфортны (например, две маленьких комнаты и одна большая).

Одно пространство может быть изолированным, а два – смежными. Эта схема получила название «самолет» (окна выходят по обе стороны здания).
Оптимальный вариант – план хрущевки, в котором предусмотрены изолированные комнаты. Дизайнеры считают, что стандартная трехкомнатная квартира с кладовкой может быть переоборудована: здесь многие делают гардеробную. В семьях с детьми все распределяют следующим образом: делают детскую, спальню и гостиную. План трехкомнатной квартиры предусматривает наличие раздельного санузла. При этом ванная и туалет находятся от лестничной площадки и лифта на максимально удаленном расстоянии.

Источник: https://360doma.ru/stati/hrushchevka-3-kvartiry-na-etazhe-seriya-k-7-1950-e
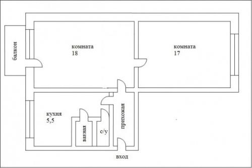
Планировка хрущевки 2 комнаты с кладовкой. Варианты планировки
Существуют варианты планировка хрущевки с размерами 2 комнат . Разновидности плана типовой хрущевки можно расположить следующим образом в порядке убывания удобства.
Для распашонки
Две изолированные комнаты приличной площади (чаще всего — одинаковой). Они расположены по разные стороны квартиры, между ними — прихожая, санузел, ванная и кухня. Этот проект во многом предпочтительнее и удобнее, чем распространенный трехкомнатный вариант с проходной комнатой.
Несмотря на преимущество планировки и выигрышную жилую площадь, площадь кухни типична для домов рассматриваемого типа и составляет 5,5 квадратных метров. При этом планировка практически не оставляет возможностей для ее увеличения. Чаще рассматривается вариант увеличения площади кухни за счет одной из комнат, но в этом случае уменьшаемая комната примет неправильную форму.

Комнаты в мини-улучшенке
Комнаты изолированные, одна — весьма неплохой площади, другая — довольно маленькая, расположены рядом, за маленькой комнатой расположена кухня. Общая площадь квартиры 44,6 квадратных метров. Главный недостаток — небольшая площадь кухни: 5,2 м2. В основном работы по перепланировке касаются увеличения площади кухни (есть возможность увеличить до 8 метров за счет прихожей и кладовки).

Трамвай
Комнаты в квартире такого типа смежные, стыкуются между собой узкими стенами. Общая площадь квартиры — 48 квадратных метров. Разделение комнат весьма удачно. В этом случае прихожая продлевается в глубину прилегающей к ней комнаты настолько, насколько это продиктовано интересами хозяина.
Перепланировка 2-х комнатной хрущевки вагончик. Что нельзя делать в 2-комнатной хрущевке
Есть ряд запретов в перепланировке «двушек». Нельзя:
- сносить несущие стены. Можно сделать новый проем, но только после получения разрешения на это у авторов проекта дома или в ГБУ «Экспертный центр»;
- переносить радиаторы отопления на балконы;
- демонтировать или замуровывать вентиляционные каналы;
- обрезать и убирать сантехнические короба, делать в них полки и ниши. Максимум, что разрешено, это установить там проточный водонагреватель или спрятать оборудование для инсталляции;
- расширять санузел, ванную за счет жилой комнаты или кухни;
- переносить кухню в жилую комнату, а также в коридор или в кладовку, если у соседей ниже там находится жилая площадь;
- переносить газовые трубы;
- демонтировать канализационный стояк;
- самовольно пристраивать балконы.
Если вы задумали перепланировку в 2-комнатной хрущевке, но сомневаетесь, можно ли ее проводить, напишите нам. Мы точно скажем, согласуют ли ремонт в вашей квартире и, если да, то сколько это будет стоить:
Сколько будет стоить перепланировка двухкомнатной хрущёвки? Перепланировка 2-х комнатной хрущевки Перепланировка в хрущевке 2 комнатной смежной Как узаконить перепланировку в квартире если она уже сделана 2020
Здравствуйте! Вы можете задать мне любой интересующий вопрос в WhatsApp.
Получите консультацию специалиста или отправьте нам на предварительную оценку необходимые документы.
Частые вопросы нашим экспертам
Сколько будет стоить перепланировка двухкомнатной хрущёвки? Перепланировка 2-х комнатной хрущевки Перепланировка в хрущевке 2 комнатной смежной Как узаконить перепланировку в квартире если она уже сделана 2020
Чтобы задать вопрос в WhatsApp отсканируйте QR-код с телефона. Диалог с экспертом откроется в приложении.
Перепланировка 2х комнатной хрущевки с проходной комнатой. Перепланировка 2-комнатной квартиры в хрущевке
Двухкомнатные хрущевки, в большинстве своем, имеют множество перегородок, ниш, кладовых, которые «крадут» квадратные метры полезной площади. При этом комнаты не могут похвастаться удобной планировкой и выгодным метражом. Зачастую перепланировать и расширить пространство не так уж просто. Одним из выгодных вариантов изначальной планировки квартиры остается так называемая «распашонка», где комнаты расположены по обе стороны от кухни и не являются проходными. Но и перестроить площадь таким образом, чтобы получить третью комнату, не удастся. Даже разделив одну из комнат перегородкой, мы получим два помещения, одно из которых будет без окон, а во второе нужно будет организовать вход с территории и без того маленькой кухни. Поэтому такие квартиры, чаще всего, оставляют в первозданном виде.
Проект 1
Как мы уже говорили, наличие ниш и кладовых вполне можно использовать для увеличения площади. Например, как показано на фото, владельцы одной из квартир решили вопрос расширения кухни за счет смещения санузла в сторону кладовой. При данной планировке можно запросто объединить кухню с прилежащей комнатой и даже прихожей, в результате чего получится просторный зал. Однако нужно учитывать, что, если в квартире проживает полноценная семья с детьми, такая перепланировка окажется не целесообразной, лишая кого-либо из домочадцев личного пространства.

Проект 2
Один из самых неудобных проектов двухкомнатных квартир, именуемый «книжкой», предполагает наличие двух небольших смежных комнат, одна из которых проходная. В данном случае перепланировать обстановку таким образом, чтобы получить две отдельные комнаты, не получится без потери полезной площади одной из них. Здесь оптимальным вариантом выступает продление коридора за счет уменьшения площади проходной комнаты. В то же время, в комнате остается балкон, который можно утеплить и присоединить к полезной площади.
Проект 3
Квартиры типа «трамвай» также подразумевают наличие смежных комнат, но здесь можно разделить их, сохранив большее количество жилой площади. Один из вариантов предлагает попросту продлить коридор, обустроив в тупике гардеробную или кладовую. В таком случае сооружается дополнительная перегородка с дверью, которая отделит комнату. Второй вариант – продлить коридор только до конца дверного проема, ведущего в правую комнату. В данном случае необходимо будет соорудить две небольшие перегородки – одна будет тупиком коридора, а вторая – отделять комнату справа.
Хрущевка 2-х комнатная. Дизайн 2х комнатной хрущевки: проекты, перепланировка, лучшие фото идеи дизайна
Миллионы людей живут в малогабаритных квартирах с типовой планировкой. Мечтая о современном и удобном жилье, одни владельцы задумываются о переезде. Другие же устраивают ремонт в хрущевке 2-х комнатной, фото которой после проведенных работ едва ли выдает время постройки дома. Благодаря огромному ассортименту строительных материалов и безграничным вариациям готовых дизайнерских решений, сегодня можно реализовать любые желания. Главное не пренебрегать советами специалистов.
Хрущевки — первые многоэтажные дома массовой застройки. Во времена СССР квартиры в них раздавали практически бесплатно, что решило вопрос острой нехватки жилья. Небольшая площадь, проходные комнаты, неудобное расположение дверей отличает их от “сталинок” и других домов. Есть и другие, не менее значимые недостатки: низкая шумоизоляция, невысокие потолки, маленькие прихожая и кухня, отсутствие балкона на первом этаже. На нынешнем рынке такая недвижимость мало ценится.
Несмотря на очевидные минусы, плюсы здесь тоже есть. В каждом жилище времен Хрущева Н. С. предусмотрены кладовки. Санузел обычно совмещен, что экономит место. А варианты дизайна таких помещений безграничны. Зачем покупать типовую мебель и жертвовать большой ванной, если даже в советской двушке реально осуществить любые идеи?
Планировка хрущевок, состоящих из 2 комнат, бывает 4 видов:
Трамвай | около 47 кв. м | Две комнаты в такой квартире имеют одну, смежную стену. Гостиная обычно угловая. |
Бабочка | 46 кв. м | Кухня располагается между двумя комнатами. |
“Книжка” достаточно неудобная, как в первоначальном виде, так и в измененном. Так как комнаты следуют друг за другом, сделать радикальное перепроектирование помещения невозможно.
Объединение комнат
При входе в дом первое, что бросается в глаза — прихожая. В хрущёвке она маленькая, узкая и темная. Если увеличить дверной проем в комнате, коридор станет светлее и визуально больше. С этого обычно и начинается составление плана ремонта 2-комнатной квартиры. Что касается радикального сноса стен, чаще всего объединяют:
- Кухню и зал. На месте убранной стены устанавливается барная стойка или стол с мягким диваном.
- Зал и спальню. Подходит для семьи без детей. При наличии ребенка детская в хрущевке оформляется путем зонирования помещения.
- Зал и кабинет. Для создания рабочего пространства подойдет стеллаж или мобильные ширмы. Иногда дизайнеры используют невысокий подиум.
- Спальню и кабинет. Комната разделяется на 2 функциональные зоны, стол для работы ставится около окна.
Зонирование
Перестройка малогабаритной квартиры 40 кв. м или другой площади не обходится без зонирования. Каждому члену семьи необходима личная зона в квартире. При этом нельзя уменьшать и без того маленький размер кухни. Рабочее место должно быть вместительным. Для разделения разных участков используются:
- гипсокартонные фальшстены;
- передвижные перегородки;
- занавески, шторы;
- диваны, шкафы, другие предметы мебели;
- разноуровневые потолок и пол.
Раздвижные двери — лучшая альтернатива распашным. Они удобны в обращении и стильно смотрятся.
Отделка
Эффективным способом зрительного увеличения пространства любой дизайнер назовет использование светлых оттенков. Но это утверждение нельзя воспринимать буквально, иначе ремонт в 2х комнатной хрущевке по фото будет напоминать больничную палату. То же касается и 1х, 3х комнатных квартир. Удачное сочетание цветов приведет к успешному обновлению интерьера.
Полы
Единственное строгое требование к выбору напольного покрытия — табу на темные оттенки. В домах небольшого размера пол является фоном для других предметов и не должен привлекать внимание. Лучшие цвета: серый, бежевый, молочный. Также уместна имитация фактуры дерева или сам натуральный материал. Ламинат, паркетная доска, линолеум, ковролин, плитка — любое покрытие эффектно дополнит дизайн, если учтены требования к цвету.
Потолки
Чем ярче освещение в маленькой комнате, тем лучше. В дополнение к люстре рекомендованы точечные светильники, расположенные по периметру. Скрыть все неровности и дефекты на потолке поможет натяжной вариант. Не менее выгодно смотрится многоуровневый верх.
Стены
Прежде чем приступить к отделке стен, в 9 случаях из 10 их придется выровнять. В панельных домах, как и кирпичных, разница в высоте или наклоне разных стен достигает 2-3 см. Даже если кривизна не бросается в глаза, она создаст большие проблемы при ремонтных работах. Поверхность выравнивается шпаклевкой или гипсокартоном. По окончании подготовки комната оформляется обоями, например:
- флизелиновыми, виниловыми, акриловыми с вертикальным рисунком;
- фотообоями с городским пейзажем или природой;
- жидкими бесшовными обоями.
Цвет стен должен гармонировать с задуманным дизайном хрущевки, состоящей из 2 комнат. Правило “чем выше цена, тем лучше” работает не всегда. Даже самая дорогая шелкография подходит далеко не к каждому интерьеру.