4 планировки в кирпичной хрущевке. Планировки квартир-хрущевок: плюсы и минусы
- 4 планировки в кирпичной хрущевке. Планировки квартир-хрущевок: плюсы и минусы
- Планировка хрущевки 4 комнаты. Возможные перепланировки
- Планировка хрущевки 1 комната. Хрущевки. Типовые планировки
- План хрущевки 3 комнаты с размерами. Типичный проект 3-комнатной квартиры
- Планировка хрущевки 2 комнаты. Типы исходной планировки с вариантами улучшений
- Кирпичная хрущевка планировка. Хрущевки: описание, типовые планировки с фото
- Планировка хрущевки 2 комнаты угловая. Популярные варианты
- Планировка хрущевки 5 этажей. Планировка «хрущевка»: история «хрущевской» планировки квартир
4 планировки в кирпичной хрущевке. Планировки квартир-хрущевок: плюсы и минусы
Хрущевские малометражки можно встретить всюду: от мегаполисов до маленьких райцентров. Эти дома возводились на протяжении почти трех десятков лет и изначально планировались как временные дома для советских граждан. Но, как известно, нет ничего более постоянного, чем временное, и эти дома существуют на рынке недвижимости и сейчас. Несмотря на все минусы, это вполне конкурентноспособный вид жилья. И все это благодаря преимуществам, которые у них тоже есть.
Плюсы
- Существенный плюс — развитая инфраструктура. Поскольку эти дома возводились больше полувека назад, они уже успели как следует обрасти школами, садами, поликлиниками, парками и другими общественно-полезными объектами.
- Транспортная доступность. Да, возможно, новые ЖК комфортабельнее и просторнее, но советские малометражки обеспечены всеми видами транспорта, до них не надо добираться на метро с пересадкой на маршрутку и несколько километров идти пешком.
- Сегодня старые дома подлежат сносу, в первую очередь это касается Москвы и других крупных городов, а это значит, что, инвестировав в квартиру хрущевского типа, вы наверняка в будущем получите обновленное жилье или, как вариант, реконструкцию своего старого дома.
Минусы
- Слабая шумоизоляция — если вам попались шумные соседи, вы рискуете стать невольным свидетелем их разговоров. Чуть лучше дело обстояло в кирпичных домах.
Планировка хрущевки 4 комнаты. Возможные перепланировки
Хрущевка — это малогабаритная квартира с однотипной планировкой, в которой не совсем удобно расположены комнаты, присутствуют низкие потолки, узкие коридоры, маленькие кухни и ванные. Однако, за счет дизайнерских возможностей, учитывающих все особенности, неудобное жилище можно сделать максимально комфортным и уютным.
Варианты перепланировки 1-комнатной хрущевки
Несмотря на скромные габариты, существует ряд возможных примеров трансформации однушки.
Хрущевка с двумя окнами
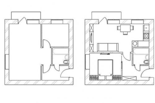
Квартира с балконом и двумя окнами, является угловой. Хрущевка с подобной планировкой может представлять собой не самый лучший вариант или наоборот, предоставить большое количество интересных идей перепланировки.



На фото пример перепланировки угловой хрущевки однушки с двумя окнами.
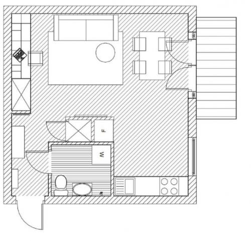
Хрущевка с одним окном
Однушки, имеющие одно окно и балкон, встречаются в кирпичных домах серии 1-511, в панельных застройках серии 1-515 и прочих. В таких квартирах присутствует раздельный санузел и коридор . В хрущевках с другой планировкой данное пространство представляет жилую комнату, что создает ограничение при переделке жилья.



На фото перепланировка однокомнатной квартиры хрущевки 30 кв с одним оконным проемом.
Перепланировка из 1-комнатной в двухкомнатную хрущевку
Самый простой и бюджетный способ перепланировки — установить гипсокартонную перегородку и сделать в ней дверной проем. Таким образом получится два небольших помещения с разным функциональным назначением.
Также трансформировать однокомнатную хрущевку в двушку или полуторку можно за счет раздвижных дверей, которые не займут много места и позволят обособить такие комнаты, как детская, спальня или зал.
Немалое значение в дизайне играет выбор мебельных конструкций. Например, сэкономить пространство поможет встроенная бытовая техника в виде уменьшенного холодильника или маленькой плиты.



На фото однокомнатная квартира хрущевка с перепланировкой в двушку.



Планировка хрущевки 1 комната. Хрущевки. Типовые планировки
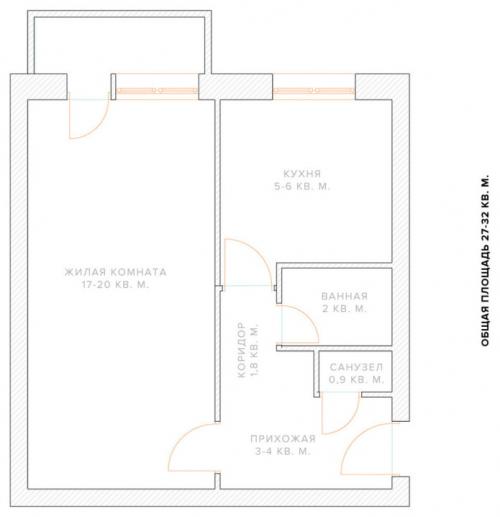
Массовое строительство хрущевок началось в 1958 году и длилось до 1985. В то время тысячи семей получили собственное жилье в 4-5-ти этажных панельных и кирпичных домах. Комнаты были очень маленькими и в большинстве случаев проходными, коридоры были узкими и темными, а санузлы сразу были совместными. Высота потолков составляла 2.48 м, в редких случаях – 2.7 м. Площадь однокомнатных квартир не превышала 29-33 кв.м. из которых 5.8-6.2 метра отводились под кухню, от 15.9 до 20.7 метров – под гостиную. Остальную площадь занимал коридор и ванная комната. Размеры помещений зависели от года постройки и серии и имели следующие типовые планировки:

Примечательно, что практически все однушки имели балкон и почти одинаковое расположение комнат. Прежде чем приступить к каким-то радикальным мерам , необходимо четко знать:
- Точное количество проживающих. Ведь одно дело проводить работы по организации комфортного проживания для одного человека, и совсем другое – для молодой семьи с ребенком. Требования будут кардинально отличаться, разделение площади будет совсем иным;
- Без каких функциональных зон вы точно не сможете прожить. Речь идет о таких «помещениях», как рабочий кабинет или полноценная изолированная спальня. Ведь некоторые люди запросто используют диван в гостиной для ежедневного сна и чувствуют себя при этом абсолютно нормально, а на других такая открытость действует угнетающе;

От двух вышеперечисленных факторов будет зависеть объем работ, которые нам предстоит распланировать, необходимость сноса межкомнатных перегородок или, наоборот, возведения дополнительных. Не удивляйтесь. Но действительно не все дизайнеры рекомендуют делать из однушки квартиру-студию . Для того, чтобы жилье отвечало всем требованиям хозяев, иногда устанавливаются полноценные глухие перестенки из легких материалов – гипсокартона или газобетона. Поэтому, предварительно рекомендуют составить список из обязательных пунктов, которые вы хотите иметь. Это может быть что угодно – раковина напротив окна в кухне, стеллаж под личную библиотеку, бытовая техника, от которой вы не в силах отказаться и т.д. На основании этого списка нужно планировать дизайн интерьера и перераспределять пространство между зонами.

План хрущевки 3 комнаты с размерами. Типичный проект 3-комнатной квартиры
В хрущевские времена сталинки сменили застройки нового типа, они стали появляться в конце 50-х и до 80-х гг. прошлого века. Высота 5 этажного дома, как правило, была 15-метровой. В это время архитекторы совершенствовали проекты и подгоняли их под современные требования. Изначально планировка 3 -шки была неудобной: маленькие комнаты, невысокие потолки, недостаточно освещенные и узкие прихожие.
Гостиная, как правило, находилась неподалеку от кладовки. В строениях панельного типа стены были плохо теплоизолированными.

Место, отведенное для кухни, тоже было небольшим. При ремонте мастера часто используют разные перегородки, чтобы визуально объединить или зонировать пространство. Типовая планировка 3 –комнатном жилье пространство распределяется по-разному, и отдельные варианты вполне комфортны (например, две маленьких комнаты и одна большая).

Одно пространство может быть изолированным, а два – смежными. Эта схема получила название «самолет» (окна выходят по обе стороны здания).
Оптимальный вариант – план хрущевки, в котором предусмотрены изолированные комнаты. Дизайнеры считают, что стандартная трехкомнатная квартира с кладовкой может быть переоборудована: здесь многие делают гардеробную. В семьях с детьми все распределяют следующим образом: делают детскую, спальню и гостиную. План трехкомнатной квартиры предусматривает наличие раздельного санузла. При этом ванная и туалет находятся от лестничной площадки и лифта на максимально удаленном расстоянии.

Источник: https://mdmstroyproekt.ru/novosti/razmery-komnat-v-hrushchevke-2-h-komnatnoy-varianty-planirovki
Планировка хрущевки 2 комнаты. Типы исходной планировки с вариантами улучшений
Базовая планировка 2-комнатной хрущевки определяется не только размером свободной площади, но еще и характером расположения жилых комнат. В этом плане есть несколько вариантов, и мы пробежимся по самым популярным из них — со вполне конкретным предложением по кардинальным преобразованиям к каждому.
«Распашонка»
Примерно одинаковые по площади жилые комнаты (16-17 кв.метров) расположены по левую и правую стороны от прихожей и изолированы друг от друга. Между ними располагается санузел и небольшая кухня примерно на 5 кв. метров.

Что можно сделать:
Самое слабое звено в этой схеме — скромная кухня, и ее можно увеличить за счет одной из комнат.

Планировка распашонкой для 2-комнатной хрущевки смотрится одним из самых удачных решений, так как позволяет обойтись минимумом потраченных усилий для придания квартирному пространству более современного вида.

«Книжка»
Две жилые комнаты является смежными — их разделяет одна длинная стена. Кухня на 4-5 кв.метра и санузел располагаются по левую-правую сторону от коридора.


Что можно сделать:
- увеличить кухню за счет объединения с прилегающей к ней комнатой;
- продлить коридор и сделать пространство при входе более свободным.



Мини-улучшенка
2 жилые комнаты изолированы друг от друга. Вход в каждую оформлен через прихожую. Выделяется гостиная с прилегающим балконом — примерно на 20 кв. метров. Вторая комната поменьше, на 10-11 квадратов: за ней расположена очень маленькая кухня. Такая планировка 2-комнатной хрущевки занимает в общей сложности 45 кв. метров и признается одной из лучших среди квартир советского типа.
Что можно сделать:
- сделать более просторной кухню за счет объединения с малой комнатой или прихожей;
- убрать перегородку между гостиной и балконом;
- объединить туалет и ванную комнату.

Трамвай
Прихожую в хрущевках такого типа венчает вход в большую гостиную, к которой примыкает вторая аналогичная по размеру смежная комната. Справа от прихожей располагается раздельный на туалет и ванную санузел.


Это очень выгодная планировка, так как кухня при такой схеме имеет вполне комфортные размеры.
Кирпичная хрущевка планировка. Хрущевки: описание, типовые планировки с фото

Введение
Сегодня существует множество многоярусных домов различной планировки, годов постройки и размера жилой площади. В данной статей Мы более подробно рассмотрим основные планировки популярных многоэтажных «Хрущовок», которые можно встретить в каждой стране бывшего СССР. Как правило, это 4-х или 5-ти этажные многоквартирные дома, которые возводились во времена руководства Хрущева Никиты Сергеевича.
«Хрущевки» возводились в период с 1958 до 1985 года, при этом стройка была современного на то время типа, и тысячи семей смогли получить комфортабельные квартиры с проходными комнатами. С 1958 года действует собственный СНиП.
Общие сведенья о хрущевках
Первое поколение 4-х или 5-ти этажных «хрущевок» отличалось небольшой жилой площадью, проходными комнатами. В таких апартаментах высота потолков достигала всего 2,48 метра, в домах блочного типа высота потолка могла достигать 2,7 метра. В «хрущевках» была достаточно слабая звукоизоляция помещений, совмещенный санузел и отсутствовали лифты.
Стоит отметить, что некоторые «хрущевки» относились к временному жилью, которые рассчитывали на эксплуатацию до 25 лет. Однако большая часть, все еще используется гражданами бывших стран СССР. К «хрущевкам» не сносимой серии применялись другие эксплуатационные нормы до 50 лет. В последствие эксперты заявили, что эксплуатационный период можно продлить до 150 лет (в случае капитальных ремонтов согласно нормам). На сегодняшний день «хрущевки» в Москве и Питере подлежат сносу. Однако в Минске, «хрущевкам» выполнили кап. ремонт и утеплили наружные стены.
Основные характеристики «хрущевок»:
- 3-комнатные с общей площадью 55-58 м²;
- 2-комнатные с общей площадью 30-46 м²;
- 1-комнатные с общей площадью 31-33 м².
Жилая площадь комнат:
- Гостиные комнаты – от 14 м²;
- Спальные комнаты – от 8 м²;
- Детские комнаты – от 6 м²;
- Кухни – от 4,5 м².
Виды типовых планировок, серии, фото, описания и годы постройки хрущевок
СЕРИЯ 1-464 – (год постройки 1960-1967)
Пяти ярусные дома панельного типа с четырьмя квартирами на одной площадке.
Особенности:
Высота помещений – 2,5 м;
Санузел совмещенный;
Кухня – 5,8 м²;
Особенности: кладовка, шкафы встроенного типа, балкон.
Площадь гостиной в 1-но комнатных «хрущевках» этого типа составляет 19 м², в 2-х и 3-х комнатных 17,3 м²; 19 м² и 20,4 м² в зависимости от планировки. Кладовая размещается в конце спальни или между 1 и 2 спальней. Выход на балкон из гостиной. Санузел совмещенный рядом с кухней.
СЕРИЯ 1-335 – (год постройки 1963-1967)
Панельные пяти ярусные дома с четырьмя квартирами на одной площадке.
Особенности:
Высота помещений – 2,5 м;
Санузел совмещенный;
Кухня – 6,2 м²;
Особенности: кладовка, шкафы встроенного типа, балкон.
Площадь гостиной в 1-но комнатных «хрущевках» этого типа составляет 18 м², в 2-х и 3-х комнатных 17,1 м²; 18,2 м² и 19,1 м² в зависимости от планировки. Кладовая размещается в конце гостиной или между 1 и 2 спальней. Выход на балкон из гостиной. Санузел совмещенный рядом с кухней.
СЕРИЯ 1-434 – (год постройки 1958-1964)
Панельные пяти ярусные дома с четырьмя квартирами на одной площадке.
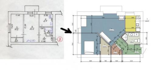
Планировка хрущевки 2 комнаты угловая. Популярные варианты
Практика показывает, что реконструкции хрущевок дают потрясающий результат – при совмещении санузла освобождается место для стиральной машинки; при сносе перегородки между комнатой и кухней появляется пространство для обеденного стола. На приведенных ниже схемах показано еще несколько способов повысить комфорт двухкомнатных хрущевок.
2 смежные комнаты в хрущевке
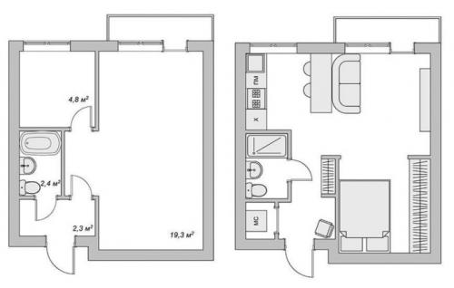
Смежными называются помещения, имеющие общую стену. Планировка со смежными комнатами и разными входами называется "мини-улучшенка". Если в квартире есть кладовка , за счет нее можно увеличить площадь кухни: кладовая разбирается, санузел переносится на ее место, а к площади кухни прибавляется 3 кв метра.

На фото увеличенная кухня в двухкомнатной хрущевке, где нашлось место обеденному столу.


Без перегородки между кухней хрущевка превратится в евродвушку, а владелец получит просторную кухню-гостиную. Если кухня газифицирована, проем необходимо оборудовать раздвижной перегородкой. Лоджию можно утеплить и использовать в качестве кабинета .



Планировка хрущевки 5 этажей. Планировка «хрущевка»: история «хрущевской» планировки квартир
Крупнопанельная планировка Хрущевки серии 1-335 самая распространенная планировка домов на территории России. Самое большое их количество было построено в Санкт-Петербурге, теперь же по количеству эксплуатируемых домов этой планировки лидирует Омск.
Данная планировка домов предусматривает также утепленные минватой дома, которые внешне отличаются отделкой фасада мелкой керамической плиткой и имеют сине-голубой цвет. Данное отличие делает их немного более привлекательнее внешне, но внутри они обычные «хрущевки».
Планировка дома «хрущевки» серии 1-335 имеет внешнее сходство с серией домов 1- 507, которые имеют народное наименование «брежневки», с более удачной планировкой квартир и кухней, площадью около 7 кв. метров.
Что примечательно, начавшееся в 1959 году строительство «хрущевок», которые были предназначены для Москвы и Питера, в 1966 году было приостановлено, в виду несоответствия климатическим условиям. Но как ни странно, это не помешало модернизировать эти серии домов (1-335АК и 1-335Д, 1-335К, 1-335А) и возводить их по всей стране, независимо от климатических условий вплоть до окончания 1980-ых годов.
В настоящее время в той же Москве, по мнениям некоторых экспертов снос домов «хрущевок» будет завершен примерно в 2015 или в 2017 гг. В соседнем Санкт-Петербурге производят капитальные ремонты домов этой серии, некоторые тоже отправляют под снос.
Что касается Хабаровска, то скорее всего планировка квартир данного типа останется актуальной еще достаточное количество времени, ведь сносить их дело невыгодное…
Расположение домов в Хабаровске с планировкой «хрущевка»
В планировке квартир «хрущевка» тоже присутствует и самая, пожалуй плотная застройка на территории 1-го Микрорайона. Имеются также на ДОСах, в районе Хабаровск-2, районе 38 и 51 школы, в Южном микрорайоне и других.
Источник: https://mdmstroyproekt.ru/novosti/razmery-komnat-v-hrushchevke-2-h-komnatnoy-varianty-planirovki