Новинки дизайна хрущевки 2023 года. Особенности
- Новинки дизайна хрущевки 2023 года. Особенности
- Дизайн хрущевки 1 комнатной. Дизайн однокомнатной хрущевки: размеры, ремонт, фото планировок однушки в 30, 40 и более квадратных метров (130 реальных проектов)
- Дизайн хрущевки 2 комнаты. Двухкомнатная хрущевка: 80+ фото, планировки, идеи дизайна
- Дизайн хрущевки ванная. Дизайн ванной комнаты в хрущевке (90 фото)
Новинки дизайна хрущевки 2023 года. Особенности
Квартиры, которые в народе называют «хрущевками», сегодня не являются редкостью. Такие жилые площади имеют ряд отличительных качеств, с помощью которых их можно узнать с первого взгляда. В таких пространствах, как правило, присутствуют низкие потолки. Однако данной особенности пугаться не стоит, так как ее можно эффектно обыграть подходящими отделочными материалами и освещением. Применяя различные дизайнерские приемы, высоту потолка удастся визуально увеличить.
Метраж таких комнат не отличается простором. Большинство помещений в подобных жилищах являются проходными. Для них так же можно подобрать соответствующие материалы отделки и некрупные предметы мебели, которые визуально сделают имеющееся пространство просторным и весьма привлекательным. К сожалению, проблема маленькой площади не обошла вниманием и кухни в таких квартирах. В этих строениях они нередко составляют всего лишь 4-5 кв. м, что крайне мало. Именно поэтому оформление этих важных и незаменимых комнат в подобных жилищах нельзя назвать простым и понятным.
Что касается прихожих, в таких квартирах они, как правило, являются весьма узкими.
Для подобных пространств необходимо осмотрительно и взвешенно подбирать мебель и осветительные приборы, чтобы пространство не казалось загроможденным. Кроме того, стоит быть максимально осторожными в выборе красок.
Санузел в квартире-хрущевке чаще всего является объединенным. Однако встречаются и раздельные планировки, но в них два помещения имеют минимальный метраж, в котором можно уместить только некрупные детали обустройства.
Стоит отметить еще одну характерную черту хрущевки: в такой квартире двери располагаются так: если открыта одна из них, вторую открыть уже не удастся. Данную характеристику владельцы подобных квартир относят к ощутимому недостатку. Все перечисленные характеристики и особенности хрущевок являются настоящими достояниями советского домостроительства. Они могут отличаться друг от друга по материалам, из которых состоят их основные конструкции (кирпичные и блочные).
Конструкции, построенные из кирпича, являются более просторными и свободными. В них имеется не столь маленькая высота потолков, да и выглядят они современнее. Поэтому эти «советские» квартиры в кирпичных домах пользуются большей популярностью и занимают не последнее место на рынке недвижимости. Но не стоит думать, что обустройство подобной квартиры будет простым.
Проектировать дизайн хрущевки – не самое легкое дело. В данном вопросе необходимо учитывать желания и предпочтения всех домочадцев. Делать это следует, максимально экономя жилое пространство. Похожие цели преследуют и в оформлении обычной однокомнатной квартиры, площадь которой заметно ограничена, но при этом в ней проживает семья из нескольких человек.
Дизайн хрущевки 1 комнатной. Дизайн однокомнатной хрущевки: размеры, ремонт, фото планировок однушки в 30, 40 и более квадратных метров (130 реальных проектов)
Новостройки на сегодняшний день являются очень популярными, однако большинство россиян проживает в квартирах, построенных еще при Хрущеве. Отличается подобное жилье малогабаритными кухнями, отдельными ваннами комнатами.
Площадь его, как правило, составляет от 30 до 32 квадратных метров. Это не так много, поэтому жильцам часто хочется как-то увеличить пространство. В данной статье вы узнаете о том, как обустроить однокомнатную хрущевку правильно.

Идеи для дизайна однокомнатной квартиры
Если жилье небольшое, прямо как однокомнатная хрущевка, то жильцы во время ремонта стараются сохранить все свободное место настолько, насколько это возможно.
Они прибегают к разнообразным приемам, позволяющим визуально увеличить пространство.

Помимо этого стоит также знать, какое стилевое направление лучше выбирать, как выполнять отделку и ремонт. При выборе любого материала и способа оформления старайтесь придерживаться как модных тенденций, так и собственных предпочтений и пожеланий.
Выбор стилевого направления
При оформлении небольшой хрущевки выбор стиля может показаться затруднительным. Ведь вам может нравиться какая-то часть от одного стилевого направления, и другая – от второго.
Кстати, воспользуйтесьоднокомнатных квартир для рассчёта стоимости работ. Большое портфолио, переходите!
Не стоит бояться смешивания понравившихся стилей, ведь это только придаст оригинальности интерьеру вашего жилища. В маленькой квартирке сложно поддерживать один определенный стиль, поэтому многие совмещают несколько.
Вот некоторые стилевые направления, которыми можно пользоваться при оформлении:
Новостройки на сегодняшний день являются очень популярными, однако большинство россиян проживает в квартирах, построенных еще при Хрущеве. Отличается подобное жилье малогабаритными кухнями, отдельными ваннами комнатами.
Площадь его, как правило, составляет от 30 до 32 квадратных метров. Это не так много, поэтому жильцам часто хочется как-то увеличить пространство. В данной статье вы узнаете о том, как обустроить однокомнатную хрущевку правильно.
Как обустроить однокомнатную хрущевку
Если жилье небольшое, прямо как однокомнатная хрущевка, то жильцы во время ремонта стараются сохранить все свободное место настолько, насколько это возможно. Они прибегают к разнообразным приемам, позволяющим визуально увеличить пространство.
Помимо этого стоит также знать, какое стилевое направление лучше выбирать, как выполнять отделку и ремонт. При выборе любого материала и способа оформления старайтесь придерживаться как модных тенденций, так и собственных предпочтений и пожеланий.
Выбор стиля
При оформлении небольшой хрущевки выбор стиля может показаться затруднительным. Ведь вам может нравиться какая-то часть от одного стилевого направления, и другая – от второго.
Кстати, воспользуйтесь однокомнатными квартирами для рассчёта стоимости работ. Большое портфолио, переходите!
Не стоит бояться смешивания понравившихся стилей, ведь это только придаст оригинальности интерьеру вашего жилища. В маленькой квартирке сложно поддерживать один определенный стиль, поэтому многие совмещают несколько.
Примеры планировок



В данной статье представлено 130 реальных проектов планировок однокомнатных хрущевок, размером от 30 до 50 квадратных метров.
- Классический. Здесь сочетаются традиции, солидность, дорогие и качественные материалы и изделия. Мебельные предметы изготовлены из натуральной древесины, а тканевые обивки состоят из дорогостоящей материи. Оттенки отличаются спокойствием и сдержанностью. Обычно они являются бежевыми, ярко-коричневыми и ярко-зелеными, пастельными. Отлично подходят многообразные картины, вставленные в золотые, дорогие рамки.
- Этнический. Смысл подобного направления заключается в воссоздании стиля какой-то определенной страны. Подобный способ оформления сильно любят путешественники и простые любители традиций других народов. Квартира может быть обустроена по-китайски, по-английски, по-африкански, по-египетски. Кто-то даже смешивает несколько стран в одном помещении. Получается довольно экзотично, необычно и самобытно.
- Современный. Сюда относятся ар-деко, кантри, модернизм, лофт, хай-тек и минималистичный стиль. Здесь отсутствует лишний комфорт, заметно проявляется контраст схожих цветов. В таком помещении присутствует большое количество искусственного освещения, мебель четких форм.
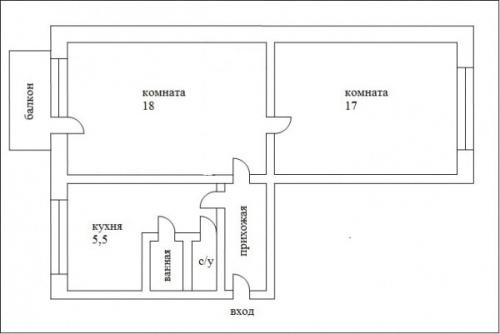
Дизайн хрущевки 2 комнаты. Двухкомнатная хрущевка: 80+ фото, планировки, идеи дизайна

Планировка 2х комнатной хрущевки
Типовая хрущевка имеет очень маленькую кухню – 5-6 квадратов. Ещё одна особенность – невысокие потолки до 2,7 метров. Двушки без перепланировки зачастую бывают неудобны, особенно, если вторая комната проходная.
Стандартная площадь двухкомнатной хрущевки – около 43-44 кв метров. Дома пятиэтажные. В большинстве своем комнаты смежные, окна выходят на одну сторону (за исключением угловой квартиры с двумя окнами). В качестве достоинств хрущевки можно выделить наличие кладовки и балкона.
Рассмотрим самые распространенные типы планировок подробней.
Книжка
Такая планировка считается самой неудачной: проходная комната с широким дверным проемом играет роль столовой, а в семье с детьми – ещё и спальни. Уединенности в таком пространстве добиться трудно. Чтобы разделить помещения, придется пожертвовать частью комнаты. Без перегородок, на снос которых необходимо получить разрешение, хрущевку можно превратить в просторную студию.



На фото маленькая угловая кухня со встроенным холодильником и столом, вписанным в подоконник.
Трамвайчик
Такое народное название (также употребляется слово «паровозик») планировка получила за расположенные друг за другом комнаты, напоминающие вагоны. Гостиная с балконом является проходной, но переделка решает эту проблему: если отсечь часть комнаты и превратить ее в коридор с двумя входами, в получившейся нише можно организовать систему хранения.



На фото комната в кремовых тонах с акцентной стеной в телевизионной зоне.
Дизайн хрущевки ванная. Дизайн ванной комнаты в хрущевке (90 фото)

Фото: neuesbad.de
«Посчастливилось» стать обладателем хрущевки со всеми вытекающими последствиями? Думаешь, удастся ли превратить ее во что-то удобное и красивое? Удастся, и мы готовы в этом помочь! Предлагаем не откладывать дело в долгий ящик и сразу начать с самого сложного: с ванной комнаты! Мы уже подобрали несколько идей и предложений по ее оформлению.
Общие рекомендации
Ванные комнаты в хрущевках имеют общие особенности:
- Совмещенный санузел маленькой площади. Так что сантехнику и мебель придется искать еще тщательнее;
- Проблемы с вентиляцией и сыростью. Значит, нужно избегать любых щелей и лишних швов, которые потенциально могут стать благоприятным местом для развития плесени и грибка. Старайся выбирать максимально монолитные конструкции, и не забывай об антисептической обработке;

- Все коммуникации хрущевок датируются в лучшем случае 80-ми годами. Если есть возможность полностью заменить трубы – не отказывайся от нее. Ремонтные работы в перспективе будут намного сложнее и дороже;
- Сложно найти место даже для нужных принадлежностей. Откажись от бесполезного декора. Вместо него выбери оригинальные мыльницы, стаканы, подставки, полотенцесушители и другие полезные мелочи.

Отделка и материалы
При выборе отделочных материалов для ванной в хрущевке придется учесть несколько особенностей. В том числе – технических.
Стены
Распространенная проблема хрущевок – кривые стены и углы. Бугры и впадины не страшны для декоративной штукатурки, а вот для отделки плиткой от них придется избавиться. Иначе никакая облицовка не будет держаться, а сантехника с зазорами окончательно испортит внешний вид.
Поэтому выравнивание стен – первый и главный шаг во время ремонта в хрущевке. Конечно, толстый слой штукатурки «съест» полезную площадь. Но если ты хочешь аккуратный и стильный дизайн, без этого не обойтись.
Не злоупотребляй сложной отделкой. Лучше не сочетать сразу несколько плиток на одной стене, потому что на такой маленькой площади высок риск перемудрить с орнаментами. Особенно осторожно работай со строгими горизонтальными и вертикальными линиями.

Пол
Интересный прием – выложить пол той же плиткой, что и стены. Так они сливаются в сплошное полотно, а это визуально увеличивает комнату. Как вариант – совместить близкие оттенки одного цвета.

Потолок
С потолком проще. Одноярусные натяжные конструкции занимают не так много места, прячут коммуникации и светильники, а также перекрывают все дефекты. Заодно и задержат воду в случае затопления сверху.

Освещение и подсветка
Освещение играет решающую роль в визуальном расширении маленького пространства. Сделай его в несколько уровней: точечные светильники на потолке, настенные бра у зеркала, подсветка полок или шкафа. Лучше брать лампы теплого спектра, иначе ванная комната становится слишком стерильной и напоминает лабораторию.

Дизайн ванной комнаты «Оттенки серого» 
Выбор сантехники
Современная сантехника радует разнообразием, в том числе – типоразмерами. Поэтому обустроить ванную комнату в хрущевке сейчас намного проще, чем при строительстве этих домов.
Ванна или душевая кабина?
Многие считают, что самая компактная ванна – чугунная. Но это не так, ведь акриловые модели есть куда изящнее и легче. А если акрил тебе не нравится, обрати внимание на долговечный и неприхотливый искусственный камень.
Не забывай о шторке для ванной. Ведь когда площадь санузла такая маленькая, не заляпать все стены водой довольно сложно, а она оставляет неаккуратные разводы после высыхания.
Подумай над тем, чтобы заменить чашу на современную душевую кабину. Самые компактные – модели, которые прилегают к одной или двум стенам. Фактически, это поддон и легкие перегородки.

Унитаз
Чтобы сэкономить пространство, покупай подвесные унитазы с инсталляцией. Основная часть конструкции убирается в стену. Поэтому такой вариант всегда компактнее и лучше традиционных напольных.
Место над инсталляцией задействуй с пользой для дела: размести там коммуникации, обустрой шкаф или полки, установи полотенцесушитель.

Раковина
Для повседневных нужд вполне достаточно небольшой аккуратной раковины-кувшинки. Совмести ее с тумбой, столешницей или даже стиральной машиной – классическое современное решение для маленьких ванных комнат.

Мебель для ванной в хрущевке
Изначально выбирай максимально функциональную мебель, ведь пространство ванной в хрущевке очень ограничено. Посмотри на традиционные угловые полки, узкие пеналы в потолок, всевозможные выдвижные коробы и накладные столешницы.
Небольшой полочки перед зеркалом хватит для косметических принадлежностей. Стаканы и емкости для зубной щетки, жидкого мыла и других мелочей крепи сразу на стену, чтобы они не занимали место на мойке.

Если под чашей ванны есть полезная площадь – ее тоже можно задействовать. Например, вставить туда бельевую корзину или протянуть длинные узкие полки.