Перепланировка 2-х комнатной квартиры хрущевки. Перепланировка 2-комнатной квартиры в хрущевке
- Перепланировка 2-х комнатной квартиры хрущевки. Перепланировка 2-комнатной квартиры в хрущевке
- Перепланировка двухкомнатной хрущевки в трехкомнатную. Нарезка комнат по-новому
- Планировка хрущевки 2 комнаты 44 м. Отличительные черты планировки хрущевок в кирпичных домах
- Перепланировка двухкомнатной хрущевки с проходными комнатами. Что нельзя делать в 2-комнатной хрущевке
- Перепланировка 2-х комнатной хрущевки вагончик. Внутри квартиры нет несущих стен.
- Перепланировка двухкомнатной хрущевки трамвайчика. Правовые аспекты перепланировки
Перепланировка 2-х комнатной квартиры хрущевки. Перепланировка 2-комнатной квартиры в хрущевке
Двухкомнатные хрущевки, в большинстве своем, имеют множество перегородок, ниш, кладовых, которые «крадут» квадратные метры полезной площади. При этом комнаты не могут похвастаться удобной планировкой и выгодным метражом. Зачастую перепланировать и расширить пространство не так уж просто. Одним из выгодных вариантов изначальной планировки квартиры остается так называемая «распашонка», где комнаты расположены по обе стороны от кухни и не являются проходными. Но и перестроить площадь таким образом, чтобы получить третью комнату, не удастся. Даже разделив одну из комнат перегородкой, мы получим два помещения, одно из которых будет без окон, а во второе нужно будет организовать вход с территории и без того маленькой кухни. Поэтому такие квартиры, чаще всего, оставляют в первозданном виде.
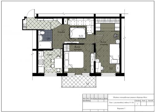
Проект 1
Как мы уже говорили, наличие ниш и кладовых вполне можно использовать для увеличения площади. Например, как показано на фото, владельцы одной из квартир решили вопрос расширения кухни за счет смещения санузла в сторону кладовой. При данной планировке можно запросто объединить кухню с прилежащей комнатой и даже прихожей, в результате чего получится просторный зал. Однако нужно учитывать, что, если в квартире проживает полноценная семья с детьми, такая перепланировка окажется не целесообразной, лишая кого-либо из домочадцев личного пространства.


Проект 2
Один из самых неудобных проектов двухкомнатных квартир, именуемый «книжкой», предполагает наличие двух небольших смежных комнат, одна из которых проходная. В данном случае перепланировать обстановку таким образом, чтобы получить две отдельные комнаты, не получится без потери полезной площади одной из них. Здесь оптимальным вариантом выступает продление коридора за счет уменьшения площади проходной комнаты. В то же время, в комнате остается балкон, который можно утеплить и присоединить к полезной площади.


Проект 3
Квартиры типа «трамвай» также подразумевают наличие смежных комнат, но здесь можно разделить их, сохранив большее количество жилой площади. Один из вариантов предлагает попросту продлить коридор, обустроив в тупике гардеробную или кладовую. В таком случае сооружается дополнительная перегородка с дверью, которая отделит комнату. Второй вариант – продлить коридор только до конца дверного проема, ведущего в правую комнату. В данном случае необходимо будет соорудить две небольшие перегородки – одна будет тупиком коридора, а вторая – отделять комнату справа.


Перепланировка двухкомнатной хрущевки в трехкомнатную. Нарезка комнат по-новому
Такую перепланировку требуется заверить в соответствующих инстанциях, так как по документам увеличится жилая площадь квартиры и изменится количество комнат. В противном случае придётся оплачивать штраф за незаконную перепланировку. Сумма его очень внушительная.
Есть несколько способов, чтобы сделать перепланировку двухкомнатной квартиры в трёхкомнатную.
Перед началом работ необходимо определить количество несущих стен в квартире. Если такие стены находятся только по «краям» жилища, то можно будет осуществлять совершенно новую планировку трёхкомнатной квартиры. С несущими конструкциями нельзя ничего делать.
Далее необходимо сосчитать количество окон и утвердить нужное количество комнат.
Варианты перепланировки квартиры с нарезкой комнат по-новому
Такой выбор разграничения пространства, как правило, встречается в квартирах со свободной планировкой. В них имеется 3-4 окна. Кухонная зона совмещена с гостиной. Для того чтобы в такой квартире сделать три комнаты, нужно таким образом распределить пространство, чтобы в каждой комнате было хотя бы одно окно.
Можно будет увеличить пространство за счёт балкона или лоджии. Для этого необходимо утеплить дополнительные помещения и снести разделительную стену между балконом или лоджией. В результате комната может увеличиться на несколько квадратов.
После того, как вы чётко определились, где именно должна находиться та или иная комната, можно смело переходить к планированию ее площади.
Совет. Как правило, удобной и очень уютной считается комната, которая имеет площадь от 10-15 квадратов. Если нужно сделать детскую, то её площадь должна быть не менее 12 квадратов.
В маленьком возрасте ребенок может жить и на меньшей площади, только со временем придётся заново пересмотреть планировку — ребенок растёт и ему может понадобиться большая комната.
Можно будет перенести гостиную в кухонную зону и сделать её немного меньше. За счёт этого увеличится используемая для перепланировки площадь. Такие действия также необходимо согласовать с соответствующими инстанциями, так как кухня считается опасной зоной для жизни человека.
Планировка и перенос гостиной в кухонную зону
После утверждения плана перепланировки нужно определиться с выбором строительного материала для перегородок. Если планируется делать основательную перепланировку, которая в ближайшее время не будет подвержена изменениям, то стоит остановить свой выбор на кирпиче. Если же со временем будет желание снова изменить количество комнат, то будет рационально использовать гипсокартон.
Такой строительный материал на сегодняшний день пользуется большой популярностью из-за своей универсальности. С его помощью можно сделать не только многоуровневые потолочные конструкции и выравнивание поверхностей, но и изготовить разделительные стенки. Крепится он на предварительно сооруженный металлический каркас из специальных профилей. Они монтируются в стену и потолок для придания большей прочности всей конструкции.
На металлический каркас гипсокартон крепится с двух сторон. Затем его штукатурят, шпаклюют. Только после этого осуществляют чистовые отделочные работы по оклеиванию или окрашиванию поверхности.
Планировка хрущевки 2 комнаты 44 м. Отличительные черты планировки хрущевок в кирпичных домах
При рационализации строительства панельных домов было принято решение заменить железобетонные панели, которые в то время использовались для строительства на силикатный кирпич. Его было удобно перевозить на место стройки. Был заново разработан новый проект, который немного отличался от разработанного до этого для панельных зданий.

Если в двухкомнатной хрущевке проживает пара или семья с ребенком, квартира нуждается в переделке.
Было разработано новое архитектурное новшество, которое подразумевало переделку комнат с использованием продольного расположения. Это уменьшало количество однокомнатных квартир в жилом доме. Изменились также габариты кухни – они стали меньше, но увеличилась площадь, которую занимают кладовки и добавились лоджии.

Если снести все стены (за исключением несущих), получится квартира со свободной планировкой.
Угловая 2 комнатная хрущевка отличается измененной планировкой, которая выводит окна на две стороны, и существует возможность обзора улицы с разных ракурсов. На этом плюсы этой жилплощади заканчиваются. При возведении панельных домов стены делались тонкими, что уменьшало их теплоизоляционные свойства.

Эти квартиры были холоднее по сравнению с другими, которые находились, например, внутри здания.
В кирпичных домах, где стены достаточно толстые (полметра и больше), такая проблема с промерзанием угловых стен не бывает такой актуальной. В таких помещениях намного теплее и комфортнее.
Перепланировка двухкомнатной хрущевки с проходными комнатами. Что нельзя делать в 2-комнатной хрущевке
Есть ряд запретов в перепланировке «двушек». Нельзя:
- сносить несущие стены. Можно сделать новый проем, но только после получения разрешения на это у авторов проекта дома или в ГБУ «Экспертный центр»;
- переносить радиаторы отопления на балконы;
- демонтировать или замуровывать вентиляционные каналы;
- обрезать и убирать сантехнические короба, делать в них полки и ниши. Максимум, что разрешено, это установить там проточный водонагреватель или спрятать оборудование для инсталляции;
- расширять санузел, ванную за счет жилой комнаты или кухни;
- переносить кухню в жилую комнату, а также в коридор или в кладовку, если у соседей ниже там находится жилая площадь;
- переносить газовые трубы;
- демонтировать канализационный стояк;
- самовольно пристраивать балконы.
Если вы задумали перепланировку в 2-комнатной хрущевке, но сомневаетесь, можно ли ее проводить, напишите нам. Мы точно скажем, согласуют ли ремонт в вашей квартире и, если да, то сколько это будет стоить:
Сколько будет стоить перепланировка двухкомнатной хрущёвки? Перепланировка 2-х комнатной хрущевки Перепланировка в хрущевке 2 комнатной смежной Как узаконить перепланировку в квартире если она уже сделана 2020
Здравствуйте! Вы можете задать мне любой интересующий вопрос в WhatsApp.
Получите консультацию специалиста или отправьте нам на предварительную оценку необходимые документы.
Частые вопросы нашим экспертам
Сколько будет стоить перепланировка двухкомнатной хрущёвки? Перепланировка 2-х комнатной хрущевки Перепланировка в хрущевке 2 комнатной смежной Как узаконить перепланировку в квартире если она уже сделана 2020
Чтобы задать вопрос в WhatsApp отсканируйте QR-код с телефона. Диалог с экспертом откроется в приложении.
Перепланировка 2-х комнатной хрущевки вагончик. Внутри квартиры нет несущих стен.
Расположение несущих стен в хрущевке.
В 90% случаев внутренние стены квартир в хрущевках являются не несущими перегородками, то есть их можно смело демонтировать при перепланировке без влияния на общее состояние здания. Правда, при этом не следует забывать о требованиях строительных, правовых и санитарно-гигиенических норм, которые необходимо соблюдать.
Даже при затрагивании только не несущих перегородок можно нарушить некоторые законы, о которых мы поговорим ниже. Обычно несущими в хрущевке являются ограждающие стены квартиры, все или только некоторые. Единственное, что может находиться из несущих конструкций внутри квартиры кирпичных домов- это балки, опирающиеся на наружные и внутренние межквартирные несущие стены. Справа на рисунке приведен типичный пример расположения несущих стен в реальной квартире-хрущевке (зелёным отмечены несущие стены и диафрагмы жесткости). Многие, как мы уже упоминали, ошибочно полагают, что если они не затрагивают несущих стен, то согласовывать такую перепланировку не надо. На самом деле, перепланировка квартиры-хрущевки с любым изменением конфигурации перегородок влечёт за собой обязанность внесения этих изменений в документы БТИ на квартиру, а, следовательно, требует и соответствующего согласования. Более того, большинство этих изменений согласовываются по проектам, выполняемых соответствующими организациями с разрешением. Ознакомиться с требованиями к проектам можно здесь .
Более подробно об определении несущих стен в хрущевках Вы можете почитать здесь .
Изменились пункты: Объединять газифицированную кухню с жилым помещением нельзя согласно п. 10.16 Приложения 1 к Постановлению Правительства Москвы № 508 (после введения ППМ №1335 от 19.08.2020, актуального и в 2022 году).
Изменение: теперь выход из помещения с унитазом можно делать в любую комнату, так как отменили СаНПиН, который раньше это запрещал.
Перепланировка двухкомнатной хрущевки трамвайчика. Правовые аспекты перепланировки
Если владельцы не планируют переносить несущие стены, то ничего оформлять не нужно. Перепланировка двухкомнатной хрущевки происходит в стандартном режиме согласно готовому плану. Однако стоит заранее учесть, не находится ли здание в предаварийном состоянии, не были ли нарушены законодательные акты предыдущими хозяевами.

Перед началом перепланировки квартиры необходимо позаботиться о её согласовании
В случаях, если планируется переносить несущие стены или были замечены грубые ошибки при прежних владельцах, необходимо сделать следующее:
- подготовить проект;
- предоставить его в местную архитектурную администрацию;
- далее документы попадают в суд, остается его только выиграть.
На всю процедуру может уйти несколько месяцев. Чтобы не тратить личное время на сбор, можно обратиться сразу в специализирующуюся на таких вопросах компанию. За небольшое вознаграждение сотрудники сами соберут все необходимые документы.
В панельном доме
Чаще всего в панельных домах расширяют санузел, кухню и коридор. Способов сделать это достаточно много. Для этого необходимо обратиться к специалисту, который занимается проектированием. Дополнительно может понадобиться разрешение со стороны управляющей компании, самовольный снос стен в таких домах может оказаться под запретом.

Раздельные ванна и туалет в хрущевках отличаются очень маленькой площадью, снос перегородки между ними позволяет получить довольно просторный санузел
В кирпичном доме
Из кирпича обычно строили дома до революции. Таких зданий осталось немного, большая часть из них является историческим достоянием. Говоря о хрущевках, стены из кирпича могут быть между комнатами. Сегодня достаточно часто встречаются такие объекты, в планировку которых уже было вмешательство. Работать с такими стенами необходимо крайне аккуратно, так как никогда не знаешь, чего ожидать. Желательно вызвать специалистов, которые смогут заранее предупредить о всех возможных проблемах. Как выглядит перепланировка 2 х комнатной хрущевки квартиры в кирпичном доме можно ознакомиться на фото.
