План типовой хрущевки 2 комнаты. Типовые планировки хрущевки 1,2,3,4 -комнатных квартир с размерами
- План типовой хрущевки 2 комнаты. Типовые планировки хрущевки 1,2,3,4 -комнатных квартир с размерами
- План квартиры хрущевка 2 комнатная. Типы исходной планировки с вариантами улучшений
- Размеры хрущевки 2 комнаты. Планировки квартир-хрущевок: плюсы и минусы
- Хрущевка планировка размеры. Планировка квартиры «хрущевка»
- Планировка хрущевки 2 комнаты с кладовкой. Варианты планировки
- План хрущевки 2 комнаты с размерами. Для сталинки
- Планировка хрущевки 2 комнаты 44 м. Отличительные черты планировки хрущевок в кирпичных домах
- Планировка хрущевки 2 комнаты угловая. Популярные варианты
План типовой хрущевки 2 комнаты. Типовые планировки хрущевки 1,2,3,4 -комнатных квартир с размерами
Особенности «хрущевок»
Строительство таких домов началось в 1958 году и продолжалось до 1985 года. В то время остро стояла проблема обеспечения жильем огромного количества людей по всей стране. Нужен был простой проект, который мог бы решить эту проблему в кратчайшие сроки.
Компактные жилые дома строились быстро и не требовали больших затрат. Впоследствии они получили прозвище «хрущевки», так как были построены в то время, когда главой государства был Никита Сергеевич Хрущев.
Квартиры в этих домах отличались небольшой площадью квадратных метров, проходными комнатами, низкими потолками, совмещенными санузлами и подъездами без лифта. Было несколько наборов типовых планировок квартир в хрущевских домах, отличавшихся:
- материал стен;
- расположение кладовой;
- варианты расположения комнат относительно гостиной;
- площади кухни и комнат.



Выделяют четыре серии типовых домов типа «хрущевки:
- 1-464 серия (годы постройки 1960—1967);
- 1-335 серии (1963—1967 годов постройки);
- 1-434 серии (1958—1964 годов постройки);
- серия 1-434С (1958—1964 годов постройки).

Изначально дома этого типа считались временным жильем. Они были построены для быстрого решения жилищной проблемы и рассчитаны на срок не более 25 лет. Впоследствии срок был увеличен до 50 лет и более.

На данный момент «хрущевки» столицы и Санкт-Петербурга сносят, но в других регионах продолжают активно эксплуатировать. Особой популярностью пользуются кирпичные постройки. У них толстые стены, удобные холодильники под подоконником, просторные кладовые.

Планировки кирпичных квартир «Хрущевки» легко меняются, превращая стандартные квартиры в современные и стильные.

Характеристика планировки
Планировка хрущевки очень неудобная и непропорциональная. В типовых панельных, кирпичных или блочных многоквартирных домах бывают узкие пролеты, узкие коридоры и тонкие стены, для которых характерна плохая звукоизоляция. Из-за ряда недостатков и небольших размеров современные постройки того времени получили другое название — Krusciobs.

Функции:
- На каждом этаже по 3 квартиры — однокомнатные, двухкомнатные и трехкомнатные.
- Также существует измененная конструкция с четырьмя планировками комнат.
Типовые серии хрущевок
В России представлены проекты многоэтажных кирпичных или панельных домов высотой от 2 до 5 этажей, которые были построены во времена правления Никиты Сергеевича Хрущева, а точнее в 1959-985 годах.
Источник: https://dom-na-vodah.ru/novosti/plan-tipovoy-hrushchevki-2-komnaty-uchityvaem-osobennosti-planirovki
План квартиры хрущевка 2 комнатная. Типы исходной планировки с вариантами улучшений
Базовая планировка 2-комнатной хрущевки определяется не только размером свободной площади, но еще и характером расположения жилых комнат. В этом плане есть несколько вариантов, и мы пробежимся по самым популярным из них — со вполне конкретным предложением по кардинальным преобразованиям к каждому.
«Распашонка»
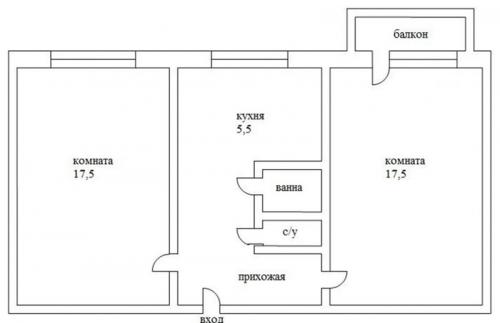
Примерно одинаковые по площади жилые комнаты (16-17 кв.метров) расположены по левую и правую стороны от прихожей и изолированы друг от друга. Между ними располагается санузел и небольшая кухня примерно на 5 кв. метров.

Что можно сделать:
Самое слабое звено в этой схеме — скромная кухня, и ее можно увеличить за счет одной из комнат.

Планировка распашонкой для 2-комнатной хрущевки смотрится одним из самых удачных решений, так как позволяет обойтись минимумом потраченных усилий для придания квартирному пространству более современного вида.

«Книжка»
Две жилые комнаты является смежными — их разделяет одна длинная стена. Кухня на 4-5 кв.метра и санузел располагаются по левую-правую сторону от коридора.


Что можно сделать:
- увеличить кухню за счет объединения с прилегающей к ней комнатой;
- продлить коридор и сделать пространство при входе более свободным.



Мини-улучшенка
2 жилые комнаты изолированы друг от друга. Вход в каждую оформлен через прихожую. Выделяется гостиная с прилегающим балконом — примерно на 20 кв. метров. Вторая комната поменьше, на 10-11 квадратов: за ней расположена очень маленькая кухня. Такая планировка 2-комнатной хрущевки занимает в общей сложности 45 кв. метров и признается одной из лучших среди квартир советского типа.
Что можно сделать:
- сделать более просторной кухню за счет объединения с малой комнатой или прихожей;
- убрать перегородку между гостиной и балконом;
- объединить туалет и ванную комнату.

Трамвай
Прихожую в хрущевках такого типа венчает вход в большую гостиную, к которой примыкает вторая аналогичная по размеру смежная комната. Справа от прихожей располагается раздельный на туалет и ванную санузел.


Это очень выгодная планировка, так как кухня при такой схеме имеет вполне комфортные размеры.
Размеры хрущевки 2 комнаты. Планировки квартир-хрущевок: плюсы и минусы
Хрущевские малометражки можно встретить всюду: от мегаполисов до маленьких райцентров. Эти дома возводились на протяжении почти трех десятков лет и изначально планировались как временные дома для советских граждан. Но, как известно, нет ничего более постоянного, чем временное, и эти дома существуют на рынке недвижимости и сейчас. Несмотря на все минусы, это вполне конкурентноспособный вид жилья. И все это благодаря преимуществам, которые у них тоже есть.
Плюсы
- Существенный плюс — развитая инфраструктура. Поскольку эти дома возводились больше полувека назад, они уже успели как следует обрасти школами, садами, поликлиниками, парками и другими общественно-полезными объектами.
- Транспортная доступность. Да, возможно, новые ЖК комфортабельнее и просторнее, но советские малометражки обеспечены всеми видами транспорта, до них не надо добираться на метро с пересадкой на маршрутку и несколько километров идти пешком.
- Сегодня старые дома подлежат сносу, в первую очередь это касается Москвы и других крупных городов, а это значит, что, инвестировав в квартиру хрущевского типа, вы наверняка в будущем получите обновленное жилье или, как вариант, реконструкцию своего старого дома.
Минусы
- Слабая шумоизоляция — если вам попались шумные соседи, вы рискуете стать невольным свидетелем их разговоров. Чуть лучше дело обстояло в кирпичных домах.
Хрущевка планировка размеры. Планировка квартиры «хрущевка»
Планировку «хрущевка» объявлениях популярных газет «Презент», «Рук в Руки» или журнале «Вся Недвижимость» квартиры и дома серии 1-335 обозначают, как планировка «хрущевка», «хрущ» или просто «хр» — ч то скрывается за этими названиями и сокращениями?
Планировка «хрущевка»: история «хрущевской» планировки квартир
Крупнопанельная планировка Хрущевки серии 1-335 самая распространенная планировка домов на территории России. Самое большое их количество было построено в Санкт-Петербурге, теперь же по количеству эксплуатируемых домов этой планировки лидирует Омск.
Данная планировка домов предусматривает также утепленные минватой дома, которые внешне отличаются отделкой фасада мелкой керамической плиткой и имеют сине-голубой цвет. Данное отличие делает их немного более привлекательнее внешне, но внутри они обычные «хрущевки».
Планировка дома «хрущевки» серии 1-335 имеет внешнее сходство с серией домов 1- 507, которые имеют народное наименование «брежневки», с более удачной планировкой квартир и кухней, площадью около 7 кв. метров.
Что примечательно, начавшееся в 1959 году строительство «хрущевок», которые были предназначены для Москвы и Питера, в 1966 году было приостановлено, в виду несоответствия климатическим условиям. Но как ни странно, это не помешало модернизировать эти серии домов (1-335АК и 1-335Д, 1-335К, 1-335А) и возводить их по всей стране, независимо от климатических условий вплоть до окончания 1980-ых годов.
В настоящее время в той же Москве, по мнениям некоторых экспертов снос домов «хрущевок» будет завершен примерно в 2015 или в 2017 гг. В соседнем Санкт-Петербурге производят капитальные ремонты домов этой серии, некоторые тоже отправляют под снос.
Что касается Хабаровска, то скорее всего планировка квартир данного типа останется актуальной еще достаточное количество времени, ведь сносить их дело невыгодное…
Расположение домов в Хабаровске с планировкой «хрущевка»
В планировке квартир «хрущевка» тоже присутствует и самая, пожалуй плотная застройка на территории 1-го Микрорайона. Имеются также на ДОСах, в районе Хабаровск-2, районе 38 и 51 школы, в Южном микрорайоне и других.
Характеристики планировки дома «хрущевка»
Широкие двухстворчатые, выглядящие квадратными окна квартир, железная 4-х скатная крыша (что-то вроде техэтажа), также она может быть вообще плоской и без чердака (техэтаж отсутствует), либо плоско-скатной (некий гибрид).
Окна на крайних торцевых панелях. Пожарная лестница, без общего противопожарного балкона, примыкает с торца дома «хрущевки». Планировка дома предусматривает на площадке расположение четырех квартир. Планировка квартир: 1-комнатные, 2-комнатные. 3-комнатные с высотой потолка около 2.55 метра.
Планировка квартиры предусмотрена так, что центральная комната «хрущевки» всегда проходная. Туалет и ванная комната в «хрущевке» совмещены. Теплоснабжение и подача воды — централизованное. Планировка дома не предусматривает наличия мусоропровода и лифта. Этажность «хрущевок» — помимо 5-ти этажей есть еще и 7-ми и 9-ти этажные, реже встречаются дома в 3 и 4 этажа.
В кухнях «хрущевок» установлены газовые плиты, иногда газовые колонки. Вентиляция, предусмотренная планировкой квартир в «хрущевках» естественная вытяжная. В планировке дома присутствуют балконы.
Как достоинство планировки квартиры, помимо балкона, можно считать кладовую. Теплоизоляция не очень хорошая, т.к. панели, из которых собран дом пустотные, заполненные стекловатой. Количество подъездов в доме, предусмотренных планировкой — от трех.
Все квартиры, кроме угловых, согласно планировке дома, выходят на одну сторону. Внешнее оформление дома либо облицовка мелкой керамической плиткой (варианты цветов: бело-голубой, светло-серый), либо не облицованные (варианты цвета: серый, белый, желтый, бежевый).
Внешний вид планировки дома серии 1-335 «хрущевка» фото:
В качестве справки
В советский период, в 1961 году себестоимость возведения крупнопанельных каркасных домов с планировкой «хрущевка» была самая низкая за всю историю и составляла 96 рублей за кв метр.
Планировка хрущевки 2 комнаты с кладовкой. Варианты планировки
Существуют варианты планировка хрущевки с размерами 2 комнат . Разновидности плана типовой хрущевки можно расположить следующим образом в порядке убывания удобства.
Для распашонки
Две изолированные комнаты приличной площади (чаще всего — одинаковой). Они расположены по разные стороны квартиры, между ними — прихожая, санузел, ванная и кухня. Этот проект во многом предпочтительнее и удобнее, чем распространенный трехкомнатный вариант с проходной комнатой.
Несмотря на преимущество планировки и выигрышную жилую площадь, площадь кухни типична для домов рассматриваемого типа и составляет 5,5 квадратных метров. При этом планировка практически не оставляет возможностей для ее увеличения. Чаще рассматривается вариант увеличения площади кухни за счет одной из комнат, но в этом случае уменьшаемая комната примет неправильную форму.

Комнаты в мини-улучшенке
Комнаты изолированные, одна — весьма неплохой площади, другая — довольно маленькая, расположены рядом, за маленькой комнатой расположена кухня. Общая площадь квартиры 44,6 квадратных метров. Главный недостаток — небольшая площадь кухни: 5,2 м2. В основном работы по перепланировке касаются увеличения площади кухни (есть возможность увеличить до 8 метров за счет прихожей и кладовки).

Трамвай
Комнаты в квартире такого типа смежные, стыкуются между собой узкими стенами. Общая площадь квартиры — 48 квадратных метров. Разделение комнат весьма удачно. В этом случае прихожая продлевается в глубину прилегающей к ней комнаты настолько, насколько это продиктовано интересами хозяина.
План хрущевки 2 комнаты с размерами. Для сталинки
В большинстве случаев первоначальная стандартная планировка сталинки устраивает всех жильцов. Но находятся и те, которые хотят что-то изменить на свой лад, сделать своё жильё уникальным и особенным.
Один из видов перепланировки в сталинке является изменение формы или размеров коридора. Да, такие квартиры оснащены слишком длинным коридором, пространство которого можно было бы применить с пользой, по мнению жильцов. А сэкономленные метры можно добавить к жилой комнате, кухне или санузлу.

Перепланировка в сталинке
В принципе, размеры комнат сталинок и так довольно большие, но лишние квадраты никогда не помешают. При перепланировке коридора не должно возникать проблем или трудностей. Но предварительно посоветоваться со специалистами всё-таки нужно для проведения точных расчётов и подтверждения безопасности сноса деревянных перегородок без ущерба конструкции здания.
Некоторые креативные жильцы, которые нуждаются в увеличении пространства даже в сталинке, подходят к решению этого вопроса с нестандартной стороны. Они не разделяют пространство на несколько комнат или не объединяет его, а пользуются высотой потолков.
На заметкуКак это происходит? Высота потолков от 3 метров позволяет создавать дополнительные этажи в некоторых комнатах при помощи бруса или досок. Плюс такой конструкции в том, что для неё не нужно получать разрешение на строительство, так как не происходит изменений в несущей конструкции.
Новоиспечённая двухэтажная комната обычно имеет высоту нижней части приблизительно 2 м, а верхней – 1 м. Да, полноценным этажом это назвать невозможно. Но зато можно оборудовать полноценное спальное место наверху даже для двоих человек, а под ним удачно разместить, к примеру, кабинет.
Планировка хрущевки 2 комнаты 44 м. Отличительные черты планировки хрущевок в кирпичных домах
При рационализации строительства панельных домов было принято решение заменить железобетонные панели, которые в то время использовались для строительства на силикатный кирпич. Его было удобно перевозить на место стройки. Был заново разработан новый проект, который немного отличался от разработанного до этого для панельных зданий.

Если в двухкомнатной хрущевке проживает пара или семья с ребенком, квартира нуждается в переделке.
Было разработано новое архитектурное новшество, которое подразумевало переделку комнат с использованием продольного расположения. Это уменьшало количество однокомнатных квартир в жилом доме. Изменились также габариты кухни – они стали меньше, но увеличилась площадь, которую занимают кладовки и добавились лоджии.

Если снести все стены (за исключением несущих), получится квартира со свободной планировкой.
Угловая 2 комнатная хрущевка отличается измененной планировкой, которая выводит окна на две стороны, и существует возможность обзора улицы с разных ракурсов. На этом плюсы этой жилплощади заканчиваются. При возведении панельных домов стены делались тонкими, что уменьшало их теплоизоляционные свойства.

Эти квартиры были холоднее по сравнению с другими, которые находились, например, внутри здания.
В кирпичных домах, где стены достаточно толстые (полметра и больше), такая проблема с промерзанием угловых стен не бывает такой актуальной. В таких помещениях намного теплее и комфортнее.
Планировка хрущевки 2 комнаты угловая. Популярные варианты
Практика показывает, что реконструкции хрущевок дают потрясающий результат – при совмещении санузла освобождается место для стиральной машинки; при сносе перегородки между комнатой и кухней появляется пространство для обеденного стола. На приведенных ниже схемах показано еще несколько способов повысить комфорт двухкомнатных хрущевок.
2 смежные комнаты в хрущевке
Смежными называются помещения, имеющие общую стену. Планировка со смежными комнатами и разными входами называется "мини-улучшенка". Если в квартире есть кладовка , за счет нее можно увеличить площадь кухни: кладовая разбирается, санузел переносится на ее место, а к площади кухни прибавляется 3 кв метра.

На фото увеличенная кухня в двухкомнатной хрущевке, где нашлось место обеденному столу.


Без перегородки между кухней хрущевка превратится в евродвушку, а владелец получит просторную кухню-гостиную. Если кухня газифицирована, проем необходимо оборудовать раздвижной перегородкой. Лоджию можно утеплить и использовать в качестве кабинета .

