План квартиры в пятиэтажке. Серия К-7 (1950-е)
- План квартиры в пятиэтажке. Серия К-7 (1950-е)
- Планировка хрущевки 3 комнаты. Типовые виды планировки хрущевок с тремя комнатами
- Планировка хрущевка 3 квартиры на этаже. Техническое описание 1-335
- Хрущевка планировка 2 комнатная. Особенности 2-комнатной «хрущевки»
- Планировка хрущевок 2 комнаты размеры. Типовые проекты
- Хрущевка планировка 1 комнатная угловая. Дизайн однокомнатной хрущевки: размеры, ремонт, фото планировок однушки в 30, 40 и более квадратных метров (130 реальных проектов)
- Длина и ширина комнат в хрущевке. Размер дома хрущевки 4 подъезда. Типовое строительство
- Планировка однокомнатной хрущевки с балконом. Особенности планировки и зонирования
- Хрущевка планировка 1 комнатная. Оформление и дизайн хрущевки 1-комнатной квартиры
План квартиры в пятиэтажке. Серия К-7 (1950-е)
Серия К-7 (К - каркасный) — одна из первых серий индустриального домостроения. Спроектирована В.П. Лагутенко на базе французской панельной 5-тиэтажки по каркасно-панельной схеме (части каркаса — колонны и ригели — являются неотъемлемой частью панели). Квартиры имеют достаточно крупные для "хрущёвок" кухни, раздельные санузлы и комнаты.
А. 1-й, 2-й и 3-й стереотипы разрушены - что все "хрущёвки" имеют совмещённый санузел и очень маленькую кухню, а все комнаты в многокомнатных квартирах - смежные, т.е., "трамвайчиком".
Отличались отсутствием балконов (предусмотренных проектом, например, на 4-этажных домах модификации К-7-3-3 в 1-м и 2-м микрорайонах Зеленограда, но в подавляющем большинстве от них отказались для удешевления конструкции) и глухими торцами домов. Дом представлял собой прямоугольный параллелепипед без выступающих деталей. Панели этих домов в большинстве случаев облицованы белым или красным квадратным неглазурованым кафелем со стороной около 5 см . Дома подобного и похожих типов получили в народе название «хрущобы». Выступающие элементы панелей (колонны и ригели) по углам комнат , низкие шумо- и теплоизоляция . В домах отсутствуют лифты , мусоропровод есть в 3-й (не всегда) и в 5-й модификациях серии. Отопление, холодное и горячее водоснабжение — централизованные . В основном, дома этой серии строили с 1-, 2- и 3-комнатными квартирами (небольшая часть - с 4-хкомнатными), по 3 квартиры на этаже. Высота потолка — 2,48 м (по другим сведениям 2,59 м). Вертикальный шаг — приблизительно 2,85 м.
Сейчас подлежат сносу. В Москве в Северо-Западном административном округе последний дом серии К-7 снесли 22 июня 2017 г., остались 3 дома в Новой Москве, в посёлке Знамя Октября (поселение Рязановское).
В Ленинграде дома этой серии строили под псевдонимом «ОД», 2 из них высотой 9 этажей.
Б. Вот и 4-му стереотипу конец - что все "хрущёвки" 5-этажные. На самом деле, были (хотя их было мало) и 9-тиэтажные.
Источник: https://360doma.ru/stati/plan-kvartiry-v-pyatietazhke-planirovki-seriy-domov-rannego-stroitelstva
Планировка хрущевки 3 комнаты. Типовые виды планировки хрущевок с тремя комнатами
То, каким будет проект перепланировки 3-комнатной хрущевки, зависит от ее исходного вида – характера расположения комнат и других помещений. В типовых домах встречается жилье, в котором одна большая и две маленькие комнаты, а также и такое, в котором все жилые помещения примерно равны по площади. Варианты, когда все комнаты полностью разделены и имеют отдельные входы, бывают очень редко и в основном в хрущевках самого позднего поколения.
Чаще всего встречаются такие типы планировки хрущевок с тремя комнатами:
Трамвай
Такая жилплощадь переоборудуется чаще всего, поскольку ее жилые помещения расположены симметрично и достаточно отдалены от входа. Трехкомнатная квартира в хрущевской пятиэтажке подобного типа имеет просторное общее помещение, являющееся проходным. Его площадь колеблется в пределах от 18 до 20 квадратных метров. Из него имеются входы в две разделенные кладовыми спальни, каждая из которых насчитывает от 8 до 11 квадратных метров.
Коридора как такового между комнатами нет – его своеобразной заменой служит просторный зал. Кухня в квартирах-“трамваях” отличается очень скромными размерами, а санузел, как правило, отделен от ванной.
Распашонка
Планировку такой квартиры лишь условно можно назвать удобной. Она очень сильно напоминает двухкомнатные хрущевки с аналогичным названием, в которых отдаленная от входа комната была разделена перегородкой и превращена в две отдельные.
Распашонка в общих чертах похожа на “трамвай”, за исключением того, что между спальнями отсутствуют кладовки, и они разделены только стеной. Самая большая комната, из которой есть выход на балкон – полностью проходная. Санузел также разделен, а кухня довольно тесная.
Книжка
Этот вариант плана 3-комнатной квартиры хрущевки считается самым неудобным и почти всегда перестраивается, но в это же время располагает множеством вариантов для реконструкции. Из явных минусов – все окна такого жилища выходят только на одну сторону дома. Если она окажется северной, жильцы рискуют столкнуться с целой чередой неудобств.
Из плюсов – здесь не одна, а целых две комнаты с выходом в общий коридор, наибольшая из которых – проходная. Жилые помещения также неоднородны по размеру – более крупная спальня и проходной зал имеют по 13-17 квадратных метров, тогда как меньшая – всего 8 или 9.
Кухня по площади лишь незначительно крупнее той же квартиры-“трамвая” и не дотягивает даже до 6 квадратных метров. Еще одно преимущество “книжки” – слегка удлиненный коридор, что достигается уменьшением площади одной из спален.
Хрущевка улучшенной планировки
Такие квартиры встречаются очень редко и только в домах, представляющих собой хрущевки последнего поколения. Обе спальни в них примерно равны по площади и просторны, насколько это вообще возможно в этом типе строений. Третья комната, как и в прежних видах планировки, больше, но уже не проходная.
Все жилые помещения, образующие условный полукруг, выходят в общий коридор. Кухня в хрущевках-“улучшенках” слегка расширена и достигает 6 квадратных метров.
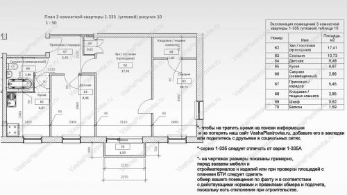
Планировка хрущевка 3 квартиры на этаже. Техническое описание 1-335
Здание серии i-335 — это многоэтажный многоквартирный крупнопанельный жилой дом. Несущими элементами являются колонны сечением 300х400мм в центре здания, установленные с шагом 2,6 и 3,2 метра, ригели и наружные стеновые панели, так называемые неполный каркас.
Ригели (длинной 5800, 4800 и 2600мм) расположенные поперек дома опираются с одной стороны на колонны, а с другой на опорные столики наружных стеновых панелей, но начиная с 1963 года из-за обнаруженных проблем в проект был добавлен ряд колон снаружи здания на которые опиралась вторая часть ригеля (полный несущий каркас). При этом наружные панели стали самонесущими и можно сделать их демонтаж при производстве реконструкции дома. Внутренних несущих стен в доме нет кроме диафрагм жесткости.
В литературе иногда встречается написание номера типового проекта в конце с буквой «С». Это означает, что эти дома проектировались для районов с сейсмичностью в 7-8 баллов.
Распространение получили следующие дома 335 й серии
| Номер типового проекта | Этажность (количество этажей) | Количество квартир |
| 1-335-1 | пять этажей | 80 |
| 1-335-1с | пятиэтажный | восемьдесят |
| 1-335-2 | 5 этажей | 60 |
| 1-335-2с | пять | шестьдесят |
| 1-335-3 | четыре этажа | 64 |
| 1-335-3с | Четырехэтажный | шестьдесят четыре |
| 1-335-4 | 4 этажа | 48 |
| 1-335-4с | четыре | сорок восемь |
| 1-335-5 | три этажа | 36 |
| 1-335-6 | трехэтажный | 24 |
| 1-335-7 | 3 этажа | 12 |
| 1-335-8 | двухэтажка | 16 |
| 1-335-9 | два | 8 |
| 1-335-10 | пять | 40 |
| 1-335-11 | четыре | 32 |
| 1-335-30 | Пятиэтажка | 100 |
В 1964г появился дом с эркерами, но в серийное производство не пошел.
В домах, построенных после 1962 с полным каркасом, исключились протечки и промерзания швом в наружных панелях.
Проектом серии i 335 предусмотрено по 4 квартиры на одном этаже.
В таком типе многосекционного дома проектировалось 1-на 2-х и трехкомнатное жилье. При том, что трешки в ряде случаев имели расположение комнат на обе стороны дома (распашонки / бабочки).
Балконы предусмотрены прямоугольной формы в плане. Балконы располагались на всех этажах здания, кроме первого и только по двум длинным сторонам здания серии i-335. На торцевой стене дома окна располагались ближе к углу.
Следует отличать серию домов 1-335 й от серии 1-335А. В них другие планировки и свои особенности.
Особенностью планов всех квартир в советском доме l-335 является наличие объединенного санузла и в угловых комнатах наличие двух окон в одной комнате.
Помещения квартир i-335 представляет собой прямоугольник, только проходная комната неправильной формы.
Наружные стены в здании строительной серии i-335 представляют собой двухслойные стеновые панели, состоящие из несущей железобетонной ребристой тонкостенной скорлупы толщиной 40мм, заполненной внутри пенобетоном 260мм. Общая толщина панели составляет 300 мм.
Толщина торцевых стен при полнокаркасной схеме увеличена до 350 мм.
Внутриквартирные перегородки в здании i-335 времен Советского Союза выполнены из гипсошлаковых панелей толщиной 8 см.
Межквартирные стены запроектированы из гипсобетонных перегородок, выполненных с воздушным зазором 40мм для улучшения шумоизоляции, общей толщиной 200мм.
Туалет и ванная комната в многоэтажном советском доме совмещенные, представляю собой сантехническую кабину, выполненную из железобетона.
Междуэтажные перекрытия — железобетонные панели толщиной 100мм.
Высота потолка — 2,54 метра. Высота этажа ровна 2,7м.
В некоторых квартирах есть антресоль.
Срок службы (эксплуатации) здания разный, не все здания сносятся, в некоторых делается капитальный ремонт.
Проект дома 1-335 й разрабатывался с уменьшением типоразмеров изделий. Их насчитывалось всего 27. Из них можно было собрать только 5 этажей без всяких угловых секций и никаких арок, декора и магазинов на первом этаже. Были также исключены из проекта пандусы, лестницы пожарные, мусоропроводы и лифты.
Помещения в таком типе жилья имеют следующий квадратуру:
- балкон 1,59-1,59м2;
- гостиная 17,12-17,13м. кв.;
- детская 8,48-13,78кв. м.;
- зал/гостиная (проходная) 17,12-19,4кв метр.;
- кладовая / тещина комната 1,59-2,85метр. кв. ;
- комната 18,36-18,37м2;
- комната (проходная) 21,66-22,83 метров;
- кухня 6,3-6,87 квадратов;
- прихожая / коридор 2,89-5,45м2;
- санузел (совмещенный) 2,86-2,95м. кв. ;
- спальня 9,99-13,78кв. м. ;
- шкаф 0,62-0,62 квадратов.
Метраж помещений по каждой отдельной квартире можно увидеть в таблице экспликации помещений 1-335 (на чертежах). Чертежи i-335 содержат длину и ширину помещений, и их квадратуру.













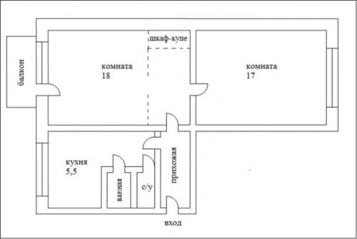
Хрущевка планировка 2 комнатная. Особенности 2-комнатной «хрущевки»
Узнать «хрущевку» можно по широким квадратным окнам, проходным комнатам, маленьким кухонькам. Совмещенный санузел – еще одна типовая деталь в плане-проекте таких квартир. Стандартная ванна в таком маленьком санузле даже поместиться не могла. Многие квартиры обустроены балконом и кладовкой.
Двухкомнатная «хрущевка» – очень компактная квартира. В новостройках даже «однушки» современной планировки располагают схожей площадью (40-45 кв. м) и даже больше. «Хрущевка» максимально имеет метраж в 46 квадратов, если это «двушка», но благодаря компактности зон тем не менее на них можно удобно разместить все. Просто от стандартных схем порой выгоднее отклониться, поискав новые решения.
Иногда это глобальная перепланировка, которая предполагает изменение геометрии квартиры. Естественно, чтобы не пострадали несущие стены, перепланировку требуется узаконить в соответствующих инстанциях.
Существует несколько вариантов стандартной планировки.
- «Книжка». Так принято называть квартиру, в которой комнаты идут друг за другом последовательно. Общий метраж такого жилища 42-43 квадрата.

- «Трамвай». А это «двушка», площадь которой 47 квадратов, комнаты в ней смежные, одна из них угловая.

- Улучшенная. Данная планировка не предполагает проходной комнаты, более того, в ней даже есть нетипичный для «хрущевки» раздельный санузел. Правда, кухня в таком жилище крошечная.

- «Бабочка» . В такой квартире кухня находится посередине, а по краям – жилые комнаты. Раздельный санузел тоже является выгодной стороной данной планировки.

Сказать, какая из этих планировок удобнее для перестройки, точно нельзя. Например, в «книжке» смежные комнаты легко объединить в одну (если это задумано), и тогда жилище превратится в полноправную студию. В любом случае подумать есть над чем.
Планировка хрущевок 2 комнаты размеры. Типовые проекты
Итак, у нас есть поэтажный план дома, и на нем мы нашли свою квартиру. Изучим возможности для модернизации. Наша двухкомнатная «хрущевка» имеет стандартный метраж от 30 («полуторка») до 43 кв. м. общей площади. Комнаты, как правило, смежные. Санузел и ванная объединены в одно помещение. Коридор не более 3 кв. м, туда выходит дверь кухни, большой комнаты и ванной. Балкон или лоджия в наличии, если это не первый этаж.


Смежные комнаты располагаются по типу «трамвай»: из зала ведет дверь в узкую и длинную комнату. Здесь удобно продлить коридор за счет большой комнаты, узкую комнату оставить без изменения, в конце коридора расположить шкаф – купе. Таким образом, мы получаем две небольшие изолированные комнаты для взрослых членов семьи и детей.
Для одиноких владельцев можно предложить вариант объединения кухни и зала.


Второй тип планировки: комнаты располагаются друг за другом, зал проходной, между кухней и залом коридор заменяет ниша. Тут уже наличествует объединение функциональных зон, и, однозначно, стена между кухней и смежной комнатой, в которой размещена ниша не является несущей. Здесь можно применить следующие методы переустройства: снести часть стены между кухней и залом, объединив эти две зоны, и оставить простенок, отделяющий входную дверь. Так пространство квартиры будет более уютным и камерным.


Более радикальный способ – сносится вся стена между кухней, залом, прихожей, остается нетронутым сантехнический блок. Современный минимализм в дизайне помещений опирается именно на такие полностью открытые пространства, И, наконец, противоположное решение для изоляции помещения. Ниша достраивается до полноценной стены, делается обычный дверной проем и получается изолированные коридор, кухня, зал. Такой вариант предпочтителен для семей с детьми, где нужно удовлетворить запросы нескольких домочадцев с различными режимами сна и бодрствования.


Третий тип – угловая квартира 2 х комнатной планировки , особенность угловых квартир в том, что в одной из комнат находится два окна. Это, с одной стороны, затрудняет расстановку мебели, а с другой, расширяет возможности для стильного дизайнерского оформления пространства. Если нет препятствий со стороны несущих конструкций, то из этой комнаты можно сделать две маленькие спальни или спальню и кабинет, спальню и детскую. А зал объединить в единое пространство с кухней и прихожей, где сможет собираться вся семья.


Сегодня в дизайне квартир модным направлением является наличие единого пространства без капитальных стен, но с функциональным зонированием с помощью мебели, трансформирующихся систем и отделочных материалов.


Хрущевка планировка 1 комнатная угловая. Дизайн однокомнатной хрущевки: размеры, ремонт, фото планировок однушки в 30, 40 и более квадратных метров (130 реальных проектов)
Новостройки на сегодняшний день являются очень популярными, однако большинство россиян проживает в квартирах, построенных еще при Хрущеве. Отличается подобное жилье малогабаритными кухнями, отдельными ваннами комнатами.
Площадь его, как правило, составляет от 30 до 32 квадратных метров. Это не так много, поэтому жильцам часто хочется как-то увеличить пространство. В данной статье вы узнаете о том, как обустроить однокомнатную хрущевку правильно.

Идеи для дизайна однокомнатной квартиры
Если жилье небольшое, прямо как однокомнатная хрущевка, то жильцы во время ремонта стараются сохранить все свободное место настолько, насколько это возможно.
Они прибегают к разнообразным приемам, позволяющим визуально увеличить пространство.

Помимо этого стоит также знать, какое стилевое направление лучше выбирать, как выполнять отделку и ремонт. При выборе любого материала и способа оформления старайтесь придерживаться как модных тенденций, так и собственных предпочтений и пожеланий.
Выбор стилевого направления
При оформлении небольшой хрущевки выбор стиля может показаться затруднительным. Ведь вам может нравиться какая-то часть от одного стилевого направления, и другая – от второго.
Не стоит бояться смешивания понравившихся стилей, ведь это только придаст оригинальности интерьеру вашего жилища. В маленькой квартирке сложно поддерживать один определенный стиль, поэтому многие совмещают несколько.
Вот некоторые стилевые направления, которыми можно пользоваться при оформлении:
- Классический. Здесь сочетаются традиции, солидность, дорогие и качественные материалы и изделия. Мебельные предметы изготовлены из натуральной древесины, а тканевые обивки состоят из дорогостоящей материи. Оттенки отличаются спокойствием и сдержанностью. Обычно они являются бежевыми, ярко-коричневыми и ярко-зелеными, пастельными. Отлично подходят многообразные картины, вставленные в золотые, дорогие рамки.
- Этнический. Смысл подобного направления заключается в воссоздании стиля какой-то определенной страны. Подобный способ оформления сильно любят путешественники и простые любители традиций других народов. Квартира может быть обустроена по-китайски, по-английски, по-африкански, по-египетски. Кто-то даже смешивает несколько стран в одном помещении. Получается довольно экзотично, необычно и самобытно.
- Современный. Сюда относятся ар-деко, кантри, модернизм, лофт, хай-тек и минималистичный стиль. Здесь отсутствует лишний комфорт, заметно проявляется контраст схожих цветов. В таком помещении присутствует большое количество искусственного освещения, мебель четких форм.
Длина и ширина комнат в хрущевке. Размер дома хрущевки 4 подъезда. Типовое строительство
Стиль постройки пятиэтажных панельных домов не случайно называют функционализмом. Из типового проекта удалены все индивидуальные особенности в виде фронтонов, лепнины и других архитектурных элементов. Тем не менее, называя такое строительство безликим, однозначно высчитать высоту пятиэтажки из панелей весьма проблематично.
Массовое скоротечное строительство не предусматривало размещение дополнительного декора на зданиях
Высота потолка в разных проектах достигала от 2,48 м, иногда – 2,6 или 2,64 м, в более позднее время начали строить высотой 2,7 м.
В пересчете на 5 этажей 20 см разницы – это уже метр дополнительной высоты.
На начальном этапе крыши были черепичные или шиферные, в эпоху борьбы с архитектурными излишествами их стали делать плоскими, потому что такие обходились дешевле. У битумных крыш было более низкое чердачное пространство, разной была высота первого этажа, заглубленность подвалов и так далее.

Летом в домах с плоской крышей жарко, а зимой — холодно
Определение вертикального размера
В определении высоты панельного типового дома имеет значение проект, его номер, параметры, предусмотренные разработчиками, и многое другое, пример на фото.

Для более точного определения конструктивных параметров следует обратиться к плану здания
В качестве классических расчетов можно привести следующие:
- Фундамент и крыша – это 1,5 + 5 = 6,5 м в совокупности и 15 м, если считать высоту трехметровой, а оно примерно так и есть, потому что кроме вертикального размера комнат надо учитывать перекрытия – все вместе получается 21,5 метра.
- Если считать, что дом без подвала, а вертикаль от земли равна 1,5 м, то можно легко выяснить, какова высота 5-этажного дома в метрах. Если размер каждого этажа вместе с перекрытием от 3 до 3,3 м, да еще добавляется крыша в 5 м (по стандартизированному параметру), то это в сумме не менее 22 м.
- Чтобы определиться в вертикальном размере, необходимо знать стандартный вертикальный размер этажа, а его как такового не было, потому что разрабатывались разные типы проектов. Какие-то были с подвалом и многоскатной крышей. Были варианты с полуподвалом и чердаком. Строились дома с цоколем или высоким первым этажом. Не стоит забывать и разработки, в которых был подвал 2,5 м, но зато крыша была плоской.
- Вертикальный размер самого стандартного проекта без цоколя, с плоской крышей и получердаком действительно составляет около 15 м. Но именно около, потому что необходимо знать дистанцию до потолков и ширину (толщину) перекрытия.
- Самые первые постройки, еще сооружаемые из кирпича, могли быть размером по вертикали до 14 метров. Это зависело от абсолютно небольшой тогда высоты, предполагаемой в здании для стандартной квартиры и составлявшей 2,48 м. Особенность «сталинок» состояла в том, что для них учитывалось количество воздуха на каждого человека в отдельности. Планировка хрущевок такими мелочами на ранних этапах не интересовалась.
- Современное строительство практически не использует подобных проектов с их маленькими габаритами и режимом экономии. На сегодняшний день определить, на каком удалении от земли находится квартира, расположенная на пятом этаже, просто невозможно, если не знать, по какому проекту строился таунхаус. Пятиэтажка, с учетом крыши, может быть от 22 до 28 метров по вертикали, и такие цифры вполне вероятны, если учесть, что на сегодняшний день практически не соблюдаются ГОСТы.
Планировка однокомнатной хрущевки с балконом. Особенности планировки и зонирования
Несмотря на то что «хрущевки» – это достаточно маленькие квартиры с низкими потолками, избавившись в них от всего лишнего и используя современные материалы, можно визуально сделать их просторнее и комфортабельнее с минимальными затратами.
Многие профессионалы сходятся во мнении, что в большинстве случаев однокомнатным квартирам может помочь только качественный ремонт и зонирование функциональных зон. Современные перегородки дают возможность расширить пространство жилой зоны , а в некоторых случаях даже создать полноценную квартиру-студию.
В квартире, в которой ей газ, может быть весьма проблематично совместить кухонную, столовую и спальную зону (или гостиную) без соответствующих документов. Как правило, это запрещено. Обычно студию создают только в тех домах, где на кухне плита не газовая, а электрическая.
Не несущие стены сносить можно, однако во многих «хрущевках» они именно таковыми как раз таки являются . Если стена, например, на балкон не несущая, то ее можно снести и расширить пространство кухни, присоединив к нему обеденную зону.
Выделять отдельные функциональные зоны можно при помощи разных настенных и напольных покрытий. Они могут отличаться по цвету и фактуре. В качестве перегородок в помещениях можно использовать ширмы, текстильные перегородки и варианты из стекла, а также шкафы и стеллажи.
Перед началом ремонтных работ неплохо иметь проект будущего интерьера. Его можно сделать на компьютере или просто нарисовать для наглядности на бумаге.

Хрущевка планировка 1 комнатная. Оформление и дизайн хрущевки 1-комнатной квартиры
Иметь 1-комнатную квартиру небольших размеров в доме, построенном в хрущевскую эпоху, гораздо лучше, чем не иметь совсем никакой жилплощади. Если есть небольшая квадратура, то и дизайн хрущевки 1-комнатной квартиры может стать самым современным и радовать владельца своим уютом. Чудесным преобразованиям устаревшего жилья способствует желание хозяев производить перемены и наличие материалов для превращения, например, неуютной маленькой хрущевки в квартиру — студию. За дверью прихожей получается общее пространство без кладовок.
Однокомнатная хрущевка – это не приговор
Есть особенности обустройства помещения с малой площадью:
- Грамотно создать проект.
- Определить способы зонирования.
Проект может представлять собой простую схему, на которой четко обозначено расположение мебели, размещение жизненно важных зон в квартире таким образом, чтобы жилое пространство визуально расширилось.
Пространство расширили за счет балкона
Проект, перепланировка, дизайн однокомнатной квартиры хрущевки, связанный со смещением стен, необходимо согласовать с компетентными органами и получить их разрешение на переоборудование.
Несколько советов по перепланировке
Не менее важным фактором является количество членов семьи, которым предстоит проживать в квартире:
- В семье с детьми нужно обязательно выделить детский уголок со спальным местом.
Проект гостиной с детской
- Квартира-хрущевка (однокомнатная), дизайн которой разрабатывается, может стать на несколько квадратных метров больше, если произвести объединение кухни с гостиной, а санузел совместить.
Соединение кухни-гостиной
- Дизайнеры предлагают интересное решение проблемы путем создания общего функционального пространства для спальни, гостиной зоны со столовой.
Гостиная-спальня
Таким образом, однокомнатная квартира и дизайн хрущевки изменится до неузнаваемости.
Глянцевый потолок в интерьере
Визуально расширить жилое пространство и повысить комфортность поможет дизайн-проект 1 комнатной хрущевки, в котором учтены такие нюансы, как светлые оттенки на стенных и потолочных поверхностях, а также использование зеркальных, стеклянных и глянцевых плоскостей.
Варианты по созданию комфортного жилья
Нельзя забывать о стиле, в данном случае самым подходящим является минимализм.
Простой лаконичный стиль
Элегантно будет выглядеть дизайн хрущевки однокомнатной квартиры при:
- минимальном наборе мебели и всевозможных аксессуаров;
- использовании простого отделочного материала и светлой цветовой палитре.
Когда планировка закончена, пора приступать к созданию функционального пространства:
- Приличный шкаф-купе получится из хрущевской кладовки, а замена ванной небольшой душевой кабиной немного расширит санитарную комнату.
Шкаф-купе из обычной кладовки
- Объединив зал и кухню посредством сноса внутренней стенки, можно выиграть в пользу кухни, где с удовольствием занимается любимым делом хозяйка.
Таким образом, дизайн для однокомнатной хрущевки становится удобным для всей семьи.
- Телевизор, с помощью которого разделили спальню и гостиную, теперь можно поворачивать в любую сторону, раздвижной обеденный стол небольших размеров – в случае необходимости легко разложить.
- В санузле вполне вмещается душевая, унитаз, стиральная машина и умывальник.
Для разделения на функциональные зоны нет необходимости возводить стены. Достаточно предметы мебели поставить в соответствии с задуманным планом.
Варианты оформления дизайна и интерьера в однокомнатной хрущевке
При грамотном подходе дизайн в однокомнатной хрущевке, где минимум пространства, может представлять максимум удобства жильцам этой малометражки.
Все под рукой и лаконично
Чтобы этого эффекта добиться, нужно знать некоторые общие правила:
- Визуально увеличить пространство.
- Правильно оформить потолок.
- Выбрать оптимальную цветовую палитру стен.
- Мебель и аксессуары.
- Каждой вещи – свое место.
Дизайн-проект 1 комнатной хрущевки наилучшим образом привлекает предметы средних пропорций, потому что предметы дизайна крупных размеров визуально создают атмосферу нагромождения.
Проект: спальня-гостиная-рабочий кабинет
Обратите внимание. Единственная в таком варианте комната исполняет различные функции (гостиная, спальня, рабочий кабинет).