Планировка 9 этажного панельного дома 3 комнаты. Техническое описание 1 515 9ш (9юл)
- Планировка 9 этажного панельного дома 3 комнаты. Техническое описание 1 515 9ш (9юл)
- Планировка 3-х комнатной квартиры в 9 этажном панельном доме. Типовые серии панельных домов
- Серии панельных домов 9 этажей 80 годов. Серия 447 (1957)
- План 3-комнатной квартиры в 9 этажке. Планировки трехкомнатных квартир Тольятти
- Планировка 3-комнатной квартиры в панельном доме. Проекты
- Планировка панельного дома 5 этажей. Серии 5-этажных панельных домов
- Планировка 3-х комнатной квартиры в 5 этажном панельном доме. Параметры кухонь
- Серии 9-этажных домов ссср. Особенности советских 9-этажек
- Планировка 9 этажного панельного дома ссср. Здания панельного типа
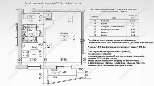
Планировка 9 этажного панельного дома 3 комнаты. Техническое описание 1 515 9ш (9юл)
Недвижимость серии i 515 9ш (9юл) — это 9 этажный многосекционный (многоподъездный) крупнопанельный дом. Обозначение «I или 1» в наименовании серии обозначает вид несущих стен, они продольные. Несущими стенами кроме продольных также являются и внешние поперечные (торцевые) и стены лестничных клеток.
Распространение получили дома на четыре секции с обозначением 1 515 04 9юл и 6 секций — 1 515 06 9юл. На 4 и 6 подъездов соответственно. Проект серии i 515 9ш (9юл) предусматривает одно-, двух- и трехкомнатные квартиры, по четыре на этаже. Высота потолка — 2,64 метра.
В этом типе дома проектировались одна двух и трехкомнатные квартиры. При том, что двух и трехкомнатные квартиры имели расположение комнат на обе стороны дома, так называемые (распашонки / бабочки). А также двушки с линейной схемой расположения комнат в квартире.
Балконы предусмотрены сдвоенные (спаренные), трапециевидной формы в плане. Вогнутые балконы располагались на всех этажах здания, но только по одной длинной стороне дома серии 1 515 9юл. (9ш). На торцевой стене здания окна отсутствуют.
Особенностью планов квартир в доме серии l-515-9ш является наличие изолированных комнат во всех квартирах. Все санузлы в жилье раздельные, кроме квартир с одной жилой комнатой. В ней совмещенный санузел. Все квартиры девятиэтажки имеют встроенный шкаф. Коридоры в большинстве случаев в плане представляю неправильную форму или в виде буквы «г»
Помещения квартир i-515 9юл в плане представляет собой, в большинстве случаев, прямоугольник скошенных углов ни в каких помещениях нет. Только балконы скошены.
Наружные стены в советском здании строительной серии i-515-9юл выполнялись из керамзитобетонных панелей толщиной 40 см с облицовкой мелкозернистой керамической плиткой.
Внутриквартирные перегородки в здании i515-9ш (9юл) времен СССР выполнены из гипсобетонных панелей толщиной 8 см.
Межквартирные стены выполнялись из гипсобетонных перегородок с воздушным зазором 40мм для увеличения звукоизоляции, общей толщиной 200мм
Санузлы в многоэтажке раздельные представляю собой сантехническую кабину марки У1П-1-32 (с правым расположением ванной комнаты) или У1Л-1-32 (с левым). Для совмещенного санузла была запроектирована сантехкабина с маркой У2Л -3-32
Сантехнические кабины начиная с третьего этажа отличались.
Внутренняя (центральная) стена имеет толщину 270мм.
Междуэтажные перекрытия предусмотрены из Железобетонных многопустотных плит толщиной 22см.
Балконы выполнены из сборных железобетонных плит. Ограждение балкона из асбестоцементных электроизоляционных досок.
Полы в помещениях представляют собой — паркет на деревянных лагах.
Срок службы (эксплуатации) здания неограничен, так как эта серия относится к «несносимым»
Помещения в данном типе жилья имеют следующий метраж:
- балкон 3,68-5,42м2;
- ванна 2,04-2,04м. кв.;
- детская 9,41-16,31кв. м.;
- зал/гостиная 16,67-20,11кв метр.;
- комната 17,87-20,75метр. кв.;
- коридор/прихожая 4,92-10,04м2;
- кухня 5,89-8,79кв. м.;
- санузел 0,85-0,89кв.м.;
- санузел (совмещенный) 2,59-2,6м2;
- спальня 12,07-12,07м. кв.;
- шкаф 0,44-0,88кв. м.
Площадь помещений по каждой квартире можно посмотреть в таблице экспликации помещений типовой 1-515-9ш (9юл) расположенной на чертежах. Чертежи i 515 9юл (9ш) имеют длину и ширину помещений и их квадратуру.





Планировка 3-х комнатной квартиры в 9 этажном панельном доме. Типовые серии панельных домов
В начале 60-х в стране повсеместно стали строить комбинаты, выпускающие железобетонные изделия для крупноблочного домостроения. На этой волне и появились некоторые весьма популярные серии панельных домов 9 этажей.
111-97
Эту серию разработали в 1971 году. Девятиэтажки по ней строят и сейчас. Собирают их из типовых панелей шириной 3 и 4,5 м, благодаря чему в одном подъезде можно расположить два варианта однокомнатных квартир – 34 и 43 кв. м.
На первых этажах балконов нет, в 4-комнатных квартирах их два. Санузел располагается через перегородку с кухней. Её размер в 1-комнатных квартирах – порядка 9 кв. м, в остальных – 13 квадратов. В подъезде есть мусоропровод и лифт, который ходит только до 8 этажа. На чердаке дома технический этаж.
Типы панельных домов 9 этажей: серия 111-97
Дома этой серии строят не только в 9-этажном исполнении. Пятиэтажка – не менее распространённый вариант, хотя встречаются и другие решения (6, 7, 10 и даже 11 этажей). Но в пяти- и шестиэтажках из-за отсутствия лифта планировка отличается.
Лифты были только в домах выше семи этажей.
Конфигурации здания
В девятиэтажках несколько вариаций расположения подъездов:
| Тип компоновки подъездов, фото | Особенности |
| Одноподъездный | Одноподъездный, секционного типа, с тремя квартирами на этаже: двух, трёх и четырёхкомнатными. |
| Угловой, с поворотом на 90 градусов | 4 квартиры на этаже. |
| Угловой, с поворотом на 30 градусов | 4 квартиры на этаже. |
| Малосемейка | На каждом этаже по 8 квартир, только на первом по 7. |
Модернизация серии: что изменилось в планировке
В нулевых годах нынешнего столетия серия 111-97 подверглась модернизации. Был существенно переработан конструктив наружных стеновых и кровельных панелей, плит перекрытия, увеличена высота чердака.
В результате серые непрезентабельные здания получили эстетичные фасады и более удобные планировки (оможете узнать из статьи на нашем сайте).
Правда, некоторые застройщики отказываются от квартир с четырьмя комнатами из-за трудностей с их продажей.
Тем не менее, в проекте они присутствуют: площадью 78-84 кв. м. А до 90-х годов для многодетных семей были предусмотрены и 5-комнатные по 93-95 квадратов. Площадь двухкомнатных квартир в среднем составляет 53 квадрата, трехкомнатных – 67-70.
Малосемейки обычно состояли из одного-двух подъездов, с несколькими вариантами 1-комнатных квартир: 28, 31 и 39 кв. м, и одним вариантом 2-комнатных – 42 кв. м. Кухни везде шестиметровые.
- схемы и чертежи кухни с учетом размеров
Обеденная зона у окна малосемейки
Дома этой серии, построенные в 70-80 и 90-х годах, не соответствуют нынешним нормам по расчётному сопротивлению ограждающих конструкций теплопередаче.
Именно поэтому проект и решено было модернизировать. Теперь кухни увеличились почти до 16 кв. м, балконы стали большими, расширилась и общая площадь квартир:
- с одной комнатой до 45 кв. м;
- с двумя – до 70 кв. м;
А вот 4-комнатные, если они вообще есть, по размеру остались прежними. В таких домах лифт ходит на последний этаж. Высота потолков в панельном доме 9 этажей после модернизации составляет 3 м, тогда как раньше была 2,64 м.
Серии панельных домов 9 этажей 80 годов. Серия 447 (1957)
1-447 — самая распространённая на всей территории СССР серия кирпичных "хрущёвок". Благодаря толстым стенам из силикатного или красного кирпича превосходит по тепло- и звукоизоляции панельные "хрущёвки" и более поздние панельные дома. Внутренние стены в квартирах не капитальные, позволяют перепланировку. В остальном это обычные хрущёвки с тесными квартирами.
Не относятся к «сносимым» сериям и обладают повышенным сроком службы по сравнению с панельными хрущёвками. На основе серии было создано много поздних модификаций с индексом 1-447С, которые относят уже к брежневским домам.
Узнаваемы по наружным стенам из необлицованного кирпича, 2-м рядам окон в торцевых сторонах (обычно без балконов) и прямоугольному корпусу без угловых секций и выступов. Дома - длиной от 2 до 8 секций, наиболее часто - 4-хсекционные (из торцевых и рядовых секций). Стены из кирпича, чаще белого силикатного, реже - красного. Штукатурки нет. Некоторые дома покрашены или применено сочетание красного и белого кирпича для декора. Несущие стены — продольные наружные и внутренняя центральная, поперечные межквартирные и стены лестничных клеток. Перегородки гипсобетонные, толщина — 80 мм; перекрытия — многопустотные железобетонные плиты толщиной 220 мм. Крыша у большинства домов 4-хскатная, покрыта асбоцементным шифером или кровельным железом. Водостоки — наружные водосточные трубы. Существуют дома с плоской крышей с битумным покрытием. Высота потолков 2,48 м. 1-й этаж, как правило, жилой. Балконы на всех этажах, кроме первого. Существуют дома без балконов в угловых квартирах или вообще без балконов (чаще в 4- и 6-секционных домах (модификации 1-447С-3, 5, 9, 10, 12, 29, 30, 31, 32) отсутствуют балконы в 1-комнатных квартирах, как угловых (1-я и 4-я либо 6-я секции), так и на стыке секций - 2-й и 3-й и, если есть, 4-й и 5-й).
План 3-комнатной квартиры в 9 этажке. Планировки трехкомнатных квартир Тольятти
Трехкомнатные квартиры не считаются самыми востребованными в Тольятти. При покупке такой недвижимости люди уже выбирают особенности под себя. Необходимо обращать внимание не только на ее техническое состояние (ремонт, насколько старые коммуникации, сколько лет кровли), но и на схему строительной планировки. Для вашего удобства мы собрали на этой странице основную информацию по конкретно по трёхкомнатным.
Основные отличия планировок
От планировки трехкомнатной квартиры зависит не только схема расположения помещений и их размеры, но и материал изготовления стен, высота потолков, возраст здания и многие другие параметры. Кроме того, опытный риелтор может посмотреть на план объекта и, не зная адреса, рассказать об инфраструктуре района, густонаселенности, его особенностях и отличиях.
Основные виды планировок
Московская
Произошла от «старомосковской». Практически не отличаются, очень схожи. На схемах это видно. Распространена в панельных домах Комсомольского Автозаводского районов. «Старая Москва» в Тольятти есть только в Автозаводском р-не. Комнаты располагаются по разные стороны строения (самолетом). Есть балкон или лоджия, пассажирский лифт в подъезде и мусоропровод.
Ленинградская
Встречается в высоких 16 этажных зданиях. Проект разработан ленинградскими архитекторами. Санузел раздельный, кухня большая (11 м2). Один из лучших вариантов отличается и стоимостью.

Ульяновская
Появилась в последнем десятилетии 20 века. Относительно не старые дома со средними размерами. В Тольятти строились панельными домами по 5 этажей, без лифта. Санузел всегда раздельный, а комнаты бывают все на одну сторону, и только кухня на другую. А бывают комнаты по обе стороны, более гармоничное решение.
Макаровская
Самое просторное жильё панельных домов. Здесь туалет и ванная – не просто раздельные, а располагаются вообще в разных местах квартиры. Потолки 2,7 метра, просторные коридор и комнаты, две лоджии. Общая площадь в среднем 90 кв. м.

Ташкентская
Трёхкомнатные квартиры отличается коридорным расположением комнат. Помещения большие и светлые, окна обычно выходят на одну сторону.
«Хрущёвка»
Из белого кирпича или панелей встречается в пятиэтажках. Одна из самых распространенных схем из-за доступности по цене, ведь капитальный ремонт в практически во всех «хрущёвках» Тольятти уже сделан и дома обещают стоять ещё более 50 лет. К примеру, в Москве такую планировку можно встретить все реже.

Улучшенная
Появилась при правлении Брежнева. На схемах видно довольно большие кухня, коридор и лоджия, но жилые комнаты остались маленькие. Старая застройка в Тольятти распространена в пятиэтажных домах 5ВСО п. Шлюзовой, и 14-тиэтажных домах из красного кирпича с 1 подъездом. При этом, под названием «Улучшенная» сегодня можно встретить схемы квартир в большинстве новых домов разной этажности и не имеет стандартов.
На выбор планировки может повлиять множество вещей
Наш опыт показывает, что при выборе планировки трехкомнатных квартир в Тольятти покупатель может руководствоваться не только стандартными мотивами: семейным положением, образом жизни, дизайном фасада, бюджетом, но и индивидуальными приоритетами – расположению к религиозным или образовательным учреждениям, работой на дому, модой на тот или иной вариант планировки или прочего. Если нужно, мы всё это учтем.
Наши преимущества:
- Предоставляем реальные фото недвижимости;
- Быстрая обратная связь, доступность риэлтора 24/7/365;
- Помогаем с оформлением и проверкой любых документов;
- Дополнительные услуги;
- По желанию клиента можем исключить угловые квартиры, трапеции или с определёнными признаками;
- Можем искать и на первичном рынке среди жилья с новыми вариантами.
Вы можете прямо сейчас заказать наши услуги. Просто свяжитесь с нами по телефону, в чате, по форме сайта или отправьте электронное письмо по указанному адресу.
Планировка 3-комнатной квартиры в панельном доме. Проекты
Кроме типа здания нужно учитывать и проект, по которому оно было выполнено. В хрущевских квартирах стандартные комнаты были проходными, крупнейшая из них находилась рядом с кладовой, из которой, в свою очередь, можно было выйти только в спальню. Серия 1-335, а также К-7 отличается малой величиной кухонного пространства, миниатюрностью прихожих. Высота потолков в домах 335-й группы составляет 255 см.
У К-7 она может достигать 259 см, балконы не предусматривались. В серии 1-447 план предусматривает балконы не всегда, часто без них оставлены угловые квартиры. Основной конструкционный материал – кирпич.
С 1960 по 1975 годы трехкомнатные квартиры в кирпичных пятиэтажках обычно имели общую площадь 44 кв. м, жилую – 32 м2, а на долю кухни оставалось 5,5 или 6 кв. м. Серия 1-464 подразумевала использование только совмещенных санузлов, общая площадь составляла от 55 до 58 кв. м, на долю жилых помещений приходилось от 39 до 45 кв. м.
В 3х-комнатных квартирах современных домов, в отличие от старых пятиэтажных, санитарные узлы раздельные. Жилые помещения, кухни и ванные комнаты стали больше. Редко можно встретить трехкомнатную квартиру, где не было бы балкона или лоджии. Встречаются самые разные размеры – и 70-76, и 80-100 кв. м и даже больше.
Квартиры в девятиэтажных домах 80-й серии, строившиеся с середины 1970-х годов, подразумевали наличие кухонь площадью от 7,5 кв. м, при этом только одна комната обособлена, две другие – проходные. С конца 1980-х годов площадь кухонного помещения достигает 9 кв. м, все комнаты становятся автономными друг от друга. Разница между 83 и 90-й сериями заключается исключительно в конфигурации балкона – треугольной в первом случае, прямой или чуть скошенной во втором.
Серия 90А, появившаяся уже в 2000-х, отличается кухнями площадью 14 кв. м, плюс оснащением сразу двумя лоджиями.
В старом жилом фонде довольно часто встречается чешская планировка 3-комнатной квартиры. Она свойственна для жилья, размещаемого в домах от 9 до 12 этажей высотой, построенных не раньше 1970 и не позже 1990 года. Потолки низкие, не достигают и 250 см, балконов два – прямой и косой. Строились такие здания и из кирпича, и из железобетона, и из керамзитобетона. Площадь квартиры составляет обычно 60-64 кв. м.
Планировка панельного дома 5 этажей. Серии 5-этажных панельных домов
Эти серии панельных пятиэтажек первого этапа индустриального домостроения вошли в историю под названием Хрущевки, по имени руководящего в тот момент страной Хрущева, хотя и строились в основном уже после его отставки. Первые серии таких домов стали появляться в конце 1950-х годов в Москве, а в 1960-х годах строились уже почти во всех крупных городах страны. Первые серии были блочными домами, у них внешняя стена комнаты формировалась из нескольких прямоугольных блоков, которые образовывали оконный проем, чуть позже перешли на большие панели, где вся стера состояла из одной панели в середине которой был оконный проем. Отличить блочный дом от панельного легко по внешнему виду, по расположению швов между панелями. Технология панельного строительства позволила быстро и дешево возвести большое количество жилья и переселить ютившихся в бараках людей в довольно комфортные по тем временам отдельные квартиры с горячей водой, ванной комнатой и отоплением, однако, эти дома изначально были временным решением и сразу предполагалось, что дешевые дома с ресурсом на 25 лет, будут заменены на более комфортабельные и долговечные. Поздние серии 5-этажек были сделаны уже из более качественных материалов и были рассчитаны на больший срок эксплуатации. Дома первых сносимых серий в Москве были снесены при первой волне сноса, которая продолжалась около двадцати лет и реально закончилась только в 2018 году, панельные дома несносимых серий включены в программу реновации 2017 года и будут также снесены в ближайшие годы.
Планировка 3-х комнатной квартиры в 5 этажном панельном доме. Параметры кухонь
Несмотря на то, что есть разные типы планировки квартир в 5 этажном доме, кухонное пространство в них всегда строили по общему принципу. Чтобы убедиться в этом, достаточно посмотреть на любой план хрущевки. Размер кухни в хрущевке и ее метраж здесь не первостепенен. Планировка 3 –шки с 5- или в 6-метровым кухонным пространством предусматривала установку плиты с правой либо с левой стороны от окна (место зависело от того, как расположен пятиэтажный дом).

Это условие было обязательным для соблюдения правил пожаробезопасности в 5 этажном доме, поскольку через окно огонь лучше видно с улицы. Возле плиты ставили газовую колонку, а в углу – раковину. Такое размещение связано с близким расположением ванной. Каковые размеры кухни в хрущевке? Сколько квадратных метров для хозяек выделили советские архитекторы? Чаще всего, эти значения составляли от 5,1 и до 6,8 м².

При этом в сталинках минимальные показатели были от 7 м². Например, в серии 1-464, построенной с 1960 по 1967 гг., метраж равен 5,8 м². Такие же цифры были и в 1-434 (период возведения – с 1958 по 1964 гг.).
При этом в 1960 г. в данной серии архитекторы предусмотрели кухни по 6,2 м², а в 1964 г. вернулись к предыдущему значению. По стандарту для 1-335 (1963-1967 гг.) определили площадь 6,2 м². При строительстве 1-434C (с 1958 по 1964 гг.) метраж достигал 5,2-6,1 м². Иными словами, в разные периоды разница не была значительной, и колебалась в пределах квадратного метра. И на это не оказывало влияние месторасположение жилья. Так, размер кухни в хрущевке, которая была в угловой части строения, был равен метражу той, что находилась в середине. Есть современное жилье, схожее с хрущевским по типу постройки, где площадь достигает от 7 м². Но эти параметры нетипичны для стандартной жилплощади такого типа.

Кроме того, при застройке предполагалось, что должно оставаться место для небольшого столика и шкафа-буфета, в котором хранится посуда, сервиз, бакалея и прочие мелочи. Других предметов мебели здесь не предусматривали. Поэтому пространство в панельных, кирпичных или комбинированных домах в наше время кажется настолько непрактичным. Но для того периода советской эпохи строительство так называемых хрущеб было настоящим прорывом, поскольку в них заселялись те, кто раньше жил в коммуналках с общим санузлом, а также люди, которые переезжали в города из сел и деревень. Наличие удобств, водопровода, системы центрального отопления и электричества кардинально изменило бытовые условия для граждан СССР.
Серии 9-этажных домов ссср. Особенности советских 9-этажек
Планировка первых панельных домов изначально преследовала только одну цель – обеспечить жилплощадью как можно большее количество граждан. Во время Второй мировой войны отечественное строительство пришло в упадок, а затем резко возросший дефицит квадратных метров принудил архитекторов искать более дешевые способы строительства.
Так появились первые типовые здания, названные впоследствии хрущевками. Они были лишены каких бы то ни было декоративных элементов, разработчики ориентировались только на их функциональность. Первые хрущевки, построенные по панельной технологии, в большинстве были 5-, реже 4-этажными.
Буквально через пару десятилетий оказалось, что пятиэтажек тоже мало, к тому же неоднократно подтверждалось их неудобство, теснота и другие недостатки. Выходом стали панельные девятиэтажки.
Очень любопытным является факт, почему в свое время было выбрано именно такое количество этажей для массовой застройки городов. Дело в том, что по существующим на тот момент стандартам, девять этажей – это предельное количество для наличия всего одного лифта. Если оно больше, то норма предусматривала уже два лифта.
Таким образом, повсеместное возведение именно девятиэтажек было обусловлено вопросами экономии. Хотя и в более высоких зданиях инженеры шли на некоторые ухищрения. Например, в 12-этажном доме единственный лифт мог ходить только до девятого этажа, или в 10-этажном здании подниматься со второго.
Планировка квартир в девятиэтажных панельных домах, хотя и не может конкурировать по комфорту с современными, была удобнее, чем в самых первых хрущевках. К тому же, если балкон для пятиэтажки – это редкость, то во многих сериях домов с девятью этажами появились лоджии.
Некоторые здания продолжали возводиться по панельной технологии, но также появились и качественные кирпичные дома. Самое же главное отличие девятиэтажек от зданий-предшественников – это их разнообразие.
Планировка 9 этажного панельного дома ссср. Здания панельного типа
Здания типа 1-464 — популярные сооружения панельного плана времен СССР. Их возводили в первый период строения хрущевок. Только с 1958 по 1964 гг. застройкой подобных конструкций занимались больше 200 домостроительных комбинатов во всех регионах.
Серии кирпичных домов 1-466 — типичные примеры жилых объектов в 1 5 этажа. Высота комнат — 3 м. Их строили исключительно в Москве (северной ее части). Стены кирпичных домов из непрочного виброкирпича. В торце установлено до 6 панелей. Такие дома недолговечны.
Дома серии 1-467 — первая панельная конструкция, которая имеет шаг несущих стен . Впервые проект таких зданий включал вариацию планировки 1,2,3-комнатной квартиры. Дома в 1-5 этажей подобного плана строили в Подмосковье и других частях страны.
Дома серии 1-510 — достаточно распространенные блочные 5-этажные дома. Их особенность в толщине наружных стен, которая составляет до 40 см. Это долговечные здания, но некоторые из них сносят в ходе всевозможных реконструкций кварталов города.
Сооружения типа 1-511 — многосекционная конструкция, кирпичная хрущевка Москвы. В таких домах предусмотрены квартиры на 1-2-3 комнаты. Существует несколько модификаций построек, которые различают по высоте квартир, качеству строительных материалов, типу крыши.
Виды объектов МГ
Дома 1МГ-300 или МГ-300 — панельные здания в 5 этажей. Их особенность заключается в наличии квадратных балконов, кубатура которых маленькая. На каждом этаже такого дома предусмотрено по 3 квартиры. Их строили до 1968 г. включительно.
Постройки вида 1Р-303-2 — панельное 5-этажное здание, второе по частоте застроек в Москве и области. Отличительная черта 5-этажных объектов — скошенные балконы, включая и торцевые. Сооружения типа 11-07 — одни из первых панельных домов в 5 этажей на территории Москвы (юго-западной ее части). Период строительства — 1958-1961 гг. Эти дома в аварийном состоянии, большинство из них уже снесено.
Постройки 11-07-19 — панельные здания с непрочными внешними стенами из виброкирпича. Зачастую дома облицованы плиткой, каждый из них имеет по 4 узких окна в торцах. Практически все сооружения такого формата в аварийном состоянии, но их снос осуществляют только в западных частях Москвы. Дома 11-17 — модификация серии 1-510. Имеют увеличенные площади однокомнатной квартиры и большую площадь 3-комнатной квартиры. Строились такие дома в 60-е гг. прошлого века в Измайлово, Нагатино.