Типовые серии домов 1-515. Типовая серия дома I-515 с планировками квартир
- Типовые серии домов 1-515. Типовая серия дома I-515 с планировками квартир
- 1-515/9ш. Серия дома I-515/9Ш
- 1-515/9м. Описание
- 1-515/5 планировка. Пятиэтажные панельные дома серии I-515/5 и I-515/37 - планировки квартир
- Планировка квартир I-515/5
- Планировка двухкомнатной квартиры в доме серии 1-515, вариант 1
- Планировка двухкомнатной квартиры в доме серии 1-515, вариант 2
- Планировка двухкомнатной квартиры в доме серии 1-515, вариант 3
- Планировка двухкомнатной квартиры в доме серии 1-515, вариант 4
- Планировка двухкомнатной квартиры в доме серии 1-515, вариант 5
- Серия дома 1-515 планировка. Типовая серия дома I-515/9М с планировками квартир
- 1-515 планировка с размерами. Техническое описание 1 515 9ш (9юл)
- Серия домов 1-515/9. 1-515/9М
- Серия дома 1-515/9 планировка.
Типовые серии домов 1-515. Типовая серия дома I-515 с планировками квартир
Серия отноcится к группе Серии 5-этажных панельных домов
Панельные дома серии I-515 протяженностью в высоту пятью этажами, являются лидерами распространения в 50ые года по вей России. Годы строительства с 1957 по 1973гг. Были случаи, когда дома данного типа отдавались под общежития. Во время прокладки линий метро, некоторые дома данной серии треснули, поэтому их снесли примерно в 70ые годы. Также существует серия I-515/9 , протяженностью в девять этажей.
Цветовая палитра внешних стен: белая, желтая, голубая, бывают случаи, когда дома окрашивали в произвольные цвета. Облицовка на домах в Московской области мелкой квадратной плиткой. В домах серии I-515 по пять этажей. Первый этаж в основном жилой. Подъездов в доме три. Во всех домах отсутствуют какие-либо лифты. На этаже находится по четыре квартиры. В однокомнатных квартирах жилая площадь 17-20 м², кухня 5 м²; в двухкомнатных жилая 27-34 м², кухня 5-6 м ²; в трехкомнатных жилая 37-43 м², кухня 5-7 м2.
Во всех квартирах, кроме торцевых однокомнатных, туалет и ванные раздельные. Вентиляция — естественная вытяжка через вентблоки в ванных комнатах и на кухне. Балконы имеются во всех квартирах, кроме тех, которые находятся на первом этаже. Мусоропровод отсутствует. Выход на лестницу без противопожарного балкона.
Внутренние стены из полностью бетонных панелей толщиной по 27 см. Наружные стены из керамзибетонна толщиной 40 см. Перегородки гипсобетонные толщенной 8 см. Перекрытиями служат многопустотные железобетонные панели объемом 22 см. Несущие стены продольные, те что с наружи, а также те, что идут по центру квартиры.
Достоинства: можно сделать проемы в стенах, раздельный санузел во многих квартирах, достаточно широкие отопительные батареи. Недостатки: отсутствие лифтов, маслопровода, очень маленькие кухни.
Серия домов I-515 вызывает бурю обсуждений в вопросе реновации , тем не мнение, часть домов точно внесена в список сносимых.
1-515/9ш. Серия дома I-515/9Ш
Многосекционные панельные 9-этажные дома с 1-, 2-,3-,комнатными квартирами.

- Высота потолков — 2,7 м.
- Стены: наружные-трехслойные железобетонные панели толщиной 300 мм. внутренние-гипсобетонные панели толщиной 160 мм, перекрытия — железобетонные плиты толщиной 140 мм., межкомнатные перегородки- гипсобетонные панели толщиной 120 мм.
- Один пассажирский лифт грузоподъемностью 400 кг.
- Отопление центральное.
- Вентиляция естественная вытяжная через вентиляционные блоки в санузле и на кухне.
- Горячая и холодная вода от городской сети.
- Мусоропровод на межэтажной лестничной площадке.
- Техподполье для размещения инженерных коммуникаций.
Узнать дом серии I-515/9Ш просто, балконы соединены по два и расположены под небольшим наклоном к плоскости фасада и к друг другу. Встроенные шкафы во всех квартирах, кроме 2-х комнатных. Данная серия домов, во многом аналогична другим панельным девятиэтажкам ( серий II-18/9, I-515/9М , II-49 , 1605/9 ) брежневского периода (1960-1980 гг.) Самый большой район застройки этой серии захватил район Чертаново. Стержнем планировки района стало Варшавское шоссе, вдоль которого и идет жилой сектор.
1-х комнатная квартира в доме серии I-515-9Ш
Общая площадь- 34,7 кв. м.,жилая площадь- 19,8 кв. м.,площадь кухни — 6,4 кв. м., совмещенный санузел, БАЛКОН.
2-х комнатная квартира в доме серии I-515-9Ш
Общая площадь- 45,1 кв. м.,жилая площадь- 29,5 кв. м.,площадь кухни — 6 кв. м., изолированные комнаты- 20,1 и 9,4 кв.м.,раздельный санузел, БАЛКОН.

3-х комнатная квартира в доме серии I-515-9Ш
Общая площадь- 60,3 кв. м.,жилая площадь- 39,1 кв. м.,площадь кухни — 8 кв. м., изолированные комнаты- 16,8; 9,4 и 12,9 кв.м.,раздельный санузел, БАЛКОН.

1-515/9м. Описание
Застройка домов серии 1-515/9М проводилась в период с 1957 по 1976 года. Внешне девятиэтажка похожа на свою прародительницу пятиэтажку 1-515/5. В квартире представлены 2-х, 3-х, 4-комнатные квартиры. 2-комнатных и 3-комнатных представлено несколько типов: 2-комнатных – 43 и 46 кв.м., 3-комнатных – 50, 53 и 58 кв.м.
В доме используются продольные капитальные стены, как это видно из названия (первая цифра 1 в названии дома). Меридиональная модель 1-515/9М в какой-то момент перестала использоваться в строительстве, поскольку была вытеснена моделью 1-515/9Ш.
3-комнатные и 4-комнатные квартиры имеют разную планировку в торцевых и рядовых секциях. Окна квартиры могут выходить на одну строну или сразу на две. Маленькие трехкомнатные помещения снабжены большим балконом на 2 комнаты, а двухкомнатные квартиры и большие трехкомнатные имеют маленький балкон. В доме предусмотрен только один пассажирский лифт. По внешнему виду и планировке квартир здание похоже на.
Описание дома
| Планировочное решение: | Многосекционный панельный жилой дом с рядовыми и торцевыми секциями. В доме 2, 3, 4 комнатные квартиры. |
| Этажность: | 9 |
| Высота жилых помещений: | 2,64 м |
| Технические помещения: | Техподполье для размещения инженерных коммуникаций. Лифты Пассажирский грузоподъемностью до 400 кг. |
| Строительные конструкции: | Наружные стены - керамзитобетонные панели (400 мм). Внутренние -бетонные панели (270 мм). Перегородки - гипсобетонные панели (80 мм). Перекрытия - железобетонные многопустотные панели (220 мм). |
| Отопление: | Центральное, водяное. |
| Вентиляция: | Естественная вытяжная через вентиляционные блоки в ванной комнате и туалете. |
| Водоснабжение: | Холодная, горячая вода от городской сети, возможно АГВ. |
| Мусороудаление: | Мусоропровод с загрузочным клапаном на межэтажной лестничной площадке. |
| Дополнительные сведения: | В домах данной серии не предусмотрены однокомнатные квартиры, однако представлено несколько типов двухкомнатных и трехкомнатных, а также в малом количестве - четырехкомнатных. Планировка трех- и четырехкомнатных квартир в торцевых и рядовых секциях разная: окна выходят или на одну, или на две стороны. В двухкомнатных и самой большой по площади трехкомнатной балконы небольшие, а в меньших трехкомнатных балкон располагается вдоль двух комнат. |
![]() |
1-515/5 планировка. Пятиэтажные панельные дома серии I-515/5 и I-515/37 - планировки квартир



фото: OleLukoe, ©zdanija.ru
Дома серии I-515/5 — серия пятиэтажных многосекционных панельных домов, разработанная МНИИТЭП в 1950-х годах. Дома данного типа широко распространены в Москве, городах и посёлках Подмосковья, в других городах России.
| Общая характеристика | Панельный дом, рядовые и торцевые секции, 1-2-3 комнатные квартиры, центральное отопление |
| Этажность | 5 этажей |
| Высота жилых помещений | 2,48 м |
| Лифты | нет |
| Мусоропровод | нет |
| Вентиляция | в санкабинах |
| Строительные конструкции | Наружные стены - керамзитобетонные панелeблоки толщиной 400 мм. Внутренние - бетонные панели толщиной 270 мм. Перегородки - гипсобетонные панели толщиной 80 мм. Перекрытия - ж/б многопустотные панели толщиной 220 мм. |
Планировка квартир I-515/5
примерная планировка этажа
Вариант 1

Вариант 2

Планировка двухкомнатной квартиры в доме серии 1-515, вариант 1

- Размер кухни 5,51 м2.
- Размер большой комнаты 18,82 м2.
- Размер маленькой комнаты 8,09 м2
- Балкон 2,5 м2.?
- Коридор 3,03 м2
- Санузел 1,22 м2
- Вання комната 2,08 м2
- Общая площадь квартиры: 40,45 м2
Планировка двухкомнатной квартиры в доме серии 1-515, вариант 2

- Размер кухни 5,46 м2.
- Размер большой комнаты 20,31 м2.
- Размер маленькой комнаты 13,68 м2
- Балкон 2,5 м2.?
- Коридор 3,4 м2
- Санузел 1,22 м2
- Вання комната 2,08 м2
- Общая площадь квартиры: 45,56 м2
Планировка двухкомнатной квартиры в доме серии 1-515, вариант 3

- Размер кухни 5,8 м2.
- Размер большой комнаты 18,94 м2.
- Размер маленькой комнаты 10,6 м2
- Балкон 2,5 м2.?
- Коридор 6,06 м2
- Санузел 1,22 м2
- Вання комната 2,08 м2
- Общая площадь квартиры: 44,68 м2
Планировка двухкомнатной квартиры в доме серии 1-515, вариант 4

- Размер кухни 5,51 м2.
- Размер большой комнаты 18,82 м2.
- Размер маленькой комнаты 8,09 м2
- Балкон 2,5 м2.?
- Коридор 3,03 м2
- Санузел 1,22 м2
- Вання комната 2,08 м2
- Общая площадь квартиры: 40,45 м2
Планировка двухкомнатной квартиры в доме серии 1-515, вариант 5

- Размер кухни 5,8 м2.
- Размер большой комнаты 18,94 м2.
- Размер маленькой комнаты 10,6 м2
- Балкон 2,5 м2.?

Серия дома 1-515 планировка. Типовая серия дома I-515/9М с планировками квартир
Серия отноcится к группе Серии 9-этажных домов
Панельные дома серии I-515/9 являются продолжением знаменитой хрущевской, распространенной в 50ые годы по всей России, панельной пятиэтажной серии I-515. В новую серию добавили пассажирский лифт и разместили на межэтажных площадках мусопровод. Годы строительства с 1957 по 1976гг.
Цветовая палитра внешних стен: белая, желтая, бледно-голубая. Облицовка на домах в Московской области мелкой квадратной плиткой. В домах серии I-515/9 по девять этажей. Первый этаж в основном жилой. Подъездов в доме четыре. Во всех домах есть пассажирский лифт. На этаже находится по четыре квартиры. В однокомнатных квартирах жилая площадь 30-31 м², кухня 6 м²; в двухкомнатных жилая 34-39 м², кухня 5-6 м ²; в трехкомнатных жилая 44-45 м², кухня 5-7 м2.
Во всех квартирах туалет и ванные раздельные. Вентиляция — естественная вытяжка через вентблоки в ванных комнатах и на кухне. Балконы имеются во всех квартирах, кроме тех, которые находятся на первом этаже. Мусоропровод с загрузочным клапаном на межэтажной лестничной площадке. Выход на лестницу без противопожарного балкона

Внутренние стены из полностью гипсобетонных панелей толщиной по 16 см. Наружные стены из многослойного керамзибетонна толщиной 30 см. Перегородки легкие толщенной 12 см, в случае перепланировки достаточно легко убираются. Перекрытиями служат железобетонные панели объемом 14 см. Несущие стены те что, находятся внутри квартир.
Достоинства: можно сделать проемы в стенах, раздельный санузел во многих квартирах, достаточно широкие отопительные батареи. Недостатки: отсутствие грузового лифта, очень маленькие кухни.
Серия домов I-515/9 вызывает бурю обсуждений в вопросе реновации , все же, часть домов может точно попасть в список сносимых .
Источник: https://360doma.ru/novosti/foto-pyatietazhnogo-doma-1-515-planirovkakvartirrf
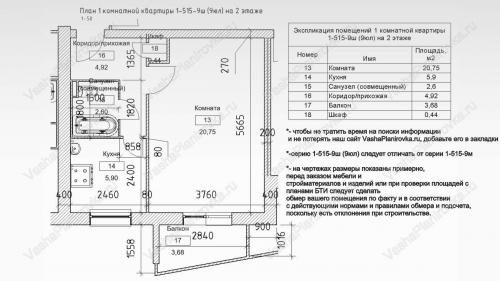
1-515 планировка с размерами. Техническое описание 1 515 9ш (9юл)
Недвижимость серии i 515 9ш (9юл) — это 9 этажный многосекционный (многоподъездный) крупнопанельный дом. Обозначение «I или 1» в наименовании серии обозначает вид несущих стен, они продольные. Несущими стенами кроме продольных также являются и внешние поперечные (торцевые) и стены лестничных клеток.
Распространение получили дома на четыре секции с обозначением 1 515 04 9юл и 6 секций — 1 515 06 9юл. На 4 и 6 подъездов соответственно. Проект серии i 515 9ш (9юл) предусматривает одно-, двух- и трехкомнатные квартиры, по четыре на этаже. Высота потолка — 2,64 метра.
В этом типе дома проектировались одна двух и трехкомнатные квартиры. При том, что двух и трехкомнатные квартиры имели расположение комнат на обе стороны дома, так называемые (распашонки / бабочки). А также двушки с линейной схемой расположения комнат в квартире.
Балконы предусмотрены сдвоенные (спаренные), трапециевидной формы в плане. Вогнутые балконы располагались на всех этажах здания, но только по одной длинной стороне дома серии 1 515 9юл. (9ш). На торцевой стене здания окна отсутствуют.
Особенностью планов квартир в доме серии l-515-9ш является наличие изолированных комнат во всех квартирах. Все санузлы в жилье раздельные, кроме квартир с одной жилой комнатой. В ней совмещенный санузел. Все квартиры девятиэтажки имеют встроенный шкаф. Коридоры в большинстве случаев в плане представляю неправильную форму или в виде буквы «г»
Помещения квартир i-515 9юл в плане представляет собой, в большинстве случаев, прямоугольник скошенных углов ни в каких помещениях нет. Только балконы скошены.
Наружные стены в советском здании строительной серии i-515-9юл выполнялись из керамзитобетонных панелей толщиной 40 см с облицовкой мелкозернистой керамической плиткой.
Внутриквартирные перегородки в здании i515-9ш (9юл) времен СССР выполнены из гипсобетонных панелей толщиной 8 см.
Межквартирные стены выполнялись из гипсобетонных перегородок с воздушным зазором 40мм для увеличения звукоизоляции, общей толщиной 200мм
Санузлы в многоэтажке раздельные представляю собой сантехническую кабину марки У1П-1-32 (с правым расположением ванной комнаты) или У1Л-1-32 (с левым). Для совмещенного санузла была запроектирована сантехкабина с маркой У2Л -3-32
Сантехнические кабины начиная с третьего этажа отличались.
Внутренняя (центральная) стена имеет толщину 270мм.
Междуэтажные перекрытия предусмотрены из Железобетонных многопустотных плит толщиной 22см.
Балконы выполнены из сборных железобетонных плит. Ограждение балкона из асбестоцементных электроизоляционных досок.
Полы в помещениях представляют собой — паркет на деревянных лагах.
Срок службы (эксплуатации) здания неограничен, так как эта серия относится к «несносимым»
Помещения в данном типе жилья имеют следующий метраж:
- балкон 3,68-5,42м2;
- ванна 2,04-2,04м. кв.;
- детская 9,41-16,31кв. м.;
- зал/гостиная 16,67-20,11кв метр.;
- комната 17,87-20,75метр. кв.;
- коридор/прихожая 4,92-10,04м2;
- кухня 5,89-8,79кв. м.;
- санузел 0,85-0,89кв.м.;
- санузел (совмещенный) 2,59-2,6м2;
- спальня 12,07-12,07м. кв.;
- шкаф 0,44-0,88кв. м.
Площадь помещений по каждой квартире можно посмотреть в таблице экспликации помещений типовой 1-515-9ш (9юл) расположенной на чертежах. Чертежи i 515 9юл (9ш) имеют длину и ширину помещений и их квадратуру.





Источник: https://360doma.ru/novosti/foto-pyatietazhnogo-doma-1-515-planirovkakvartirrf
Серия домов 1-515/9. 1-515/9М

Краткое описание
В Москве панельные дома серии I-515/9М присутствуют во многих обжитых районах, застройка которых велась с 1957 по 1976 годы.
По внешнему виду они аналогичны широко распространенной серии пятиэтажек.
В домах данной серии не предусмотрены однокомнатные квартиры, однако представлено несколько типов двухкомнатных и трехкомнатных, а также совсем немного четырехкомнатных.
Планировка трех- и четырехкомнатных квартир в торцевых и рядовых секциях разная: окна выходят или на одну, или на две стороны. В двухкомнатных и самой большой по площади трехкомнатной балконы небольшие, а в меньших трехкомнатных балкон располагается вдоль двух комнат.
Расположение в Москве и Московской области
В Москве дома серии I-515/9М находятся в районах: Зеленоград, Северное и Южное Тушино, Можайский, Войковский, Головинский, Покровское-Стрешнево, Капотня, Дмитровский, Бескудниковский, Хорошёво-Мневники, Гольяново, Выхино-Жулебино, Солнцево, Щукино, Кунцево, Чертаново, Ивановское, Рязанский, Коньково, Нагатино-Садовники и многих других
В Московской области дома серии I-515/9М находятся в городах: Ликино-Дулёво, Солнечногорск, Подольск, Дзержинский, Железнодорожный, Троицк
Подробные характеристики
| Количество секций (подъездов) | от 4 |
| Количество этажей | 9. Первый этаж жилой |
| Высота потолков | 2.64 м |
| Лифты | пассажирский 400 кг |
| Балконы | во всех квартирах, начиная с 2-го этажа |
| Количество квартир на этаже | 4 |
| Годы строительства | 1957-1976 |
| Перспектива сноса | Перспектива массового сноса в дальнейшем возможнаЧто и где сносится можно уточнить |
| Санузлы | раздельные, ванны: стандартные 170 см |
| Лестницы | без общего противопожарного балкона, ширина лестничного узла – 240 см. |
| Мусоропровод | с загрузочным клапаном на межэтажной лестничной площадке |
| Вентиляция | естественная вытяжная, блоки в кухне и в сантехкабине (санузле) |
| Стены и облицовка | Наружные стены – трехслойные панели толщиной 30 см. Внутренние гипсобетонные панели толщиной 16 см. Перегородки - гипсобетонные панели толщиной 12 см. Перекрытия - железобетонные панели толщиной 14 см. Несущие стены - все межквартирные. |
Серия дома 1-515/9 планировка.
Многосекционные панельные 9-этажные дома с 2-,3-,4-комнатными квартирами. Строительство с 1957-1976 гг.

- Высота потолков — 2,64 м.
- Стены: наружные-трехс
лойные панели толщиной 300 мм. внутренние-гипсобетонные панели толщиной 160 мм, перекрытия — железобетонные плиты толщиной 140 мм., межкомнатные перегородки- толщиной 120 мм. - Один грузопассажирский лифт грузоподъемностью 400 кг.
- Отопление центральное.
- Вентиляция естественная вытяжная на кухне и санузле.
- Горячая и холодная вода от городской сети, возможно АГВ.
- Мусоропровод нп этажной лестничной площадке.
- Техподполье для размещения инженерных коммуникаций.
2-х комнатная квартира в доме серии I-515-9М (вариант А)
Общая площадь- 47 кв. м.,жилая площадь- 30,5 кв. м.,площадь кухни — 6,1 кв. м., изолированные комнаты — 11,6 и 18,9 кв.м.,раздельный санузел санузел, БАЛКОН.
2-х комнатная квартира в доме серии I-515-9М (вариант В)
Общая площадь- 44,5 кв. м.,жилая площадь- 29,4 кв. м.,площадь кухни — 6,2 кв. м., изолированные комнаты — 10,4 и 18,9 кв.м.,раздельный санузел санузел, БАЛКОН.
3-х комнатная квартира в доме серии I-515-9М (вариант А)
Общая площадь- 53,2 кв. м.,жилая площадь- 35,5 кв. м.,площадь кухни — 6,1 кв. м., смежно-изолированные комнаты — 11,2; 16,2 и 8 кв.м.,раздельный санузел санузел, БАЛКОН
3-х комнатная квартира в доме серии I-515-9М (вариант В)
Общая площадь- 57,4 кв. м.,жилая площадь- 38,5 кв. м.,площадь кухни — 6 кв. м., изолированные комнаты — 18,9; 11,5 и 8 кв.м.,раздельный санузел санузел, БАЛКОН.

4-х комнатная квартира в доме серии I-515-9М
Общая площадь- 63,9 кв. м.,жилая площадь- 43,6 кв. м.,площадь кухни — 6 кв. м., смежно-изолированные комнаты — 18,3; 10,8; 8 и 8 кв.м.,раздельный санузел санузел, 2 балкона.
Серия этого дома относится к жилью эконом-класса, поэтому цены на эти квартиры считаются самыми умеренными и продаваемыми. Из недостатков можно считать — низкие потолки, маленькая кухня, смежно-изолированные комнаты. Все квартиры линейные, поэтому окна выходят в одну сторону.Отсутствие грузового лифта, узкие лестничные пролеты, а так же маленькие балконы, считаются минусом этой серии. В тоже время. к положительным сторонам этой серии относятся железобетонные перекрытия, трехслойные наружние стены и гипсобетонные внутренние панели.
