Хрущевка 3 квартиры на этаже. Самые популярные типовые планировки 1,2,3,4-комнатных хрущевок
- Хрущевка 3 квартиры на этаже. Самые популярные типовые планировки 1,2,3,4-комнатных хрущевок
- Планировка хрущевки 3 комнаты. Типичный проект 3-комнатной квартиры
- Планировка хрущевки 2 комнаты 44 м. Возможные варианты перепланировки
- Площадь хрущевки 3 комнаты. Размеры жилплощади
- Планировка хрущевки 4 квартиры на этаже. Достоинства и недостатки
- Длина и ширина комнат в хрущевке. Отличительные черты планировки хрущевок в кирпичных домах
Хрущевка 3 квартиры на этаже. Самые популярные типовые планировки 1,2,3,4-комнатных хрущевок
Дизайн хрущевки очень непрактичный и непропорциональный. В типовых многоквартирных панельных, кирпичных или блочных домах узкие пролеты, узкие коридоры и тонкие стены, для которых характерна плохая звукоизоляция. Из-за ряда недостатков и малых габаритов современные постройки того времени получили другое название — хрущевки.

Серия К-7
Каркасный 5-ти этажный многосекционный жилой дом. От этих пристроек отказались, чтобы снизить затраты на строительство. В строительстве использовались панели, которые в основном были покрыты красной или белой неглазурованной плиткой.
Характеристика планировки
Характеристики:
- На каждом этаже по 3 квартиры — однокомнатные, двухкомнатные и трехкомнатные.
- Есть и модифицированный проект, предполагающий четырехкомнатную планировку.
Схемы планировки хрущевки
Одной из конструктивных особенностей такого здания является то, что оно часто не имеет балконов. Из-за этого хрущевка серии К-7 имеет форму прямоугольного параллелепипеда без выступов. Ниже приведены примеры планировок интерьеров с фотографиями сверху.

На снимке пятиэтажная хрущевка серии К-7.

На фото типичная планировка.


Первые здания, построенные во времена Хрущева, имели смежные изолированные помещения, в более поздних зданиях помещения стали изолированными.


Плюсы и минусы
Положительные и отрицательные черты Хрущева.
| Преимущества | Ошибка |
|---|---|
Наличие раздельных санузлов даже в однушке.
| Внутренние стены сносить нельзя, так как они несущие. Это ограничивает решения по реконструкции. |
Плохие звукоизоляционные свойства. | |
| Кухни более просторные, около 7 квадратных метров, в отличие от планировок других хрущевок. | Некачественная крыша, которая собирает конденсат. |
Наружные стены и фундаменты имеют низкую прочность. |
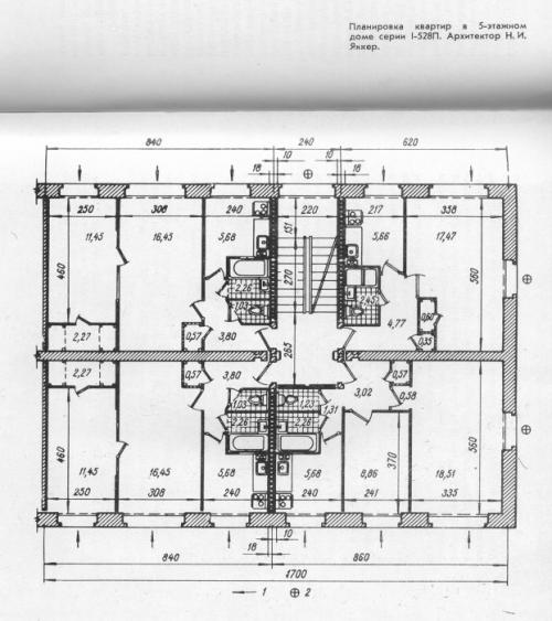
Серия 528
Эта серия 1-528 разработана специально для северной климатической зоны, такие дома можно увидеть практически во всех районах Санкт-Петербурга. Переходная модель между сталинистами и хрущевцами. Есть несколько модификаций с эркерами и простыми балконами.
Характеристики
- Этажи — 2–5
- Наружные стены — кирпич или крупные блоки кирпича
- Высота потолка – 270–280 см
Схемы
Примерную компоновку можно увидеть на рисунке ниже.


Плюсы и минусы
Серия 335
Пятиэтажные, реже четырех- и трехэтажные дома. В конце здания есть два ряда окон. У входа сплошной линией расположены четырехстворчатые оконные проемы.
Для отделки фасада хрущевки 335-й серии использовалась мелкая керамическая плитка голубого или голубого оттенка.
Характеристика планировки
Ключевая особенность:
- Планировка дома предполагает три входа.
- На каждом этаже по четыре квартиры.
- Окна квартир выходят на одну сторону дома, за исключением углового дома.
- Комнаты высотой 2,5 метра.
- В квартирах есть балкон, шкафы и встроенные шкафы.
Схемы планировки хрущевки
В такой хрущевке есть совмещенные санузлы и вполне свободные кладовки. Площадь кухни составляет примерно 6,2 квадратных метра. Перегородки между квартирами имеют толщину несколько сантиметров, поэтому их нельзя оборудовать тяжелыми навесными полками или кухонными шкафами.

На снимке 335 серия хрущевки.
Планировка хрущевки 3 комнаты. Типичный проект 3-комнатной квартиры
В хрущевские времена сталинки сменили застройки нового типа, они стали появляться в конце 50-х и до 80-х гг. прошлого века. Высота 5 этажного дома, как правило, была 15-метровой. В это время архитекторы совершенствовали проекты и подгоняли их под современные требования. Изначально планировка 3 -шки была неудобной: маленькие комнаты, невысокие потолки, недостаточно освещенные и узкие прихожие.
Гостиная, как правило, находилась неподалеку от кладовки. В строениях панельного типа стены были плохо теплоизолированными.

Место, отведенное для кухни, тоже было небольшим. При ремонте мастера часто используют разные перегородки, чтобы визуально объединить или зонировать пространство. Типовая планировка 3 –комнатном жилье пространство распределяется по-разному, и отдельные варианты вполне комфортны (например, две маленьких комнаты и одна большая).

Одно пространство может быть изолированным, а два – смежными. Эта схема получила название «самолет» (окна выходят по обе стороны здания).
Оптимальный вариант – план хрущевки, в котором предусмотрены изолированные комнаты. Дизайнеры считают, что стандартная трехкомнатная квартира с кладовкой может быть переоборудована: здесь многие делают гардеробную. В семьях с детьми все распределяют следующим образом: делают детскую, спальню и гостиную. План трехкомнатной квартиры предусматривает наличие раздельного санузла. При этом ванная и туалет находятся от лестничной площадки и лифта на максимально удаленном расстоянии.
В хрущевские времена сталинки сменили застройки нового типа, они стали появляться в конце 50-х и до 80-х гг. прошлого века. Высота 5-этажного дома, как правило, была 15-метровой. В это время архитекторы совершенствовали проекты и подгоняли их под современные требования.
Изначально планировка 3-шки была неудобной: маленькие комнаты, невысокие потолки, недостаточно освещенные и узкие прихожие. Гостиная, как правило, находилась неподалеку от кладовки. В строениях панельного типа стены были плохо теплоизолированными.
Место, отведенное для кухни, тоже было небольшим. При ремонте мастера часто используют разные перегородки, чтобы визуально объединить или зонировать пространство. Типовая планировка 3 –комнатного жилья пространство распределяется по-разному, и отдельные варианты вполне комфортны (например, две маленьких комнаты и одна большая).
Одно пространство может быть изолированным, а два – смежными. Эта схема получила название «самолет» (окна выходят по обе стороны здания).
Оптимальный вариант – план хрущевки, в котором предусмотрены изолированные комнаты. Дизайнеры считают, что стандартная трехкомнатная квартира с кладовкой может быть переоборудована: здесь многие делают гардеробную. В семьях с детьми все распределяют следующим образом: делают детскую, спальню и гостиную.
План трехкомнатной квартиры предусматривает наличие раздельного санузла. При этом ванная и туалет находятся от лестничной площадки и лифта на максимально удаленном расстоянии.
Варианты планировки
- «Самолет» (окна выходят по обе стороны здания)
- Исходящий план (комнаты расположены вдоль коридора)
- Монументальный план (комнаты расположены в глубине здания)
Практические советы
При планировке хрущевки 3 комнаты рекомендуется учитывать следующие факторы:
- Применение перегородок для визуального объединения или зонирования пространства
- Учет освещения и вентиляции
- Выбор подходящего материала для отделки стен и пола
- Учет расстояния до лестничной площадки и лифта

Планировка хрущевки 2 комнаты 44 м. Возможные варианты перепланировки
При выборе проекта преобразования хрущёвки стоит отталкиваться от исходной планировки квартиры.
- Распашонка. В центральной части находятся кухня и санузел, по краям комнаты одинаковой площади. Плюс – спальня и гостиная изолированы друг от друга, имеют отдельные входы из прихожей.
- Улучшенная планировка в мини формате. Напротив входа − небольшая спальня, слева − просторная гостиная, справа – санузел и кухня. Иногда в квартире присутствует кладовка.
- Книжка. Этот тип имеет смежные комнаты разного размера, узкий коридор, в который выходят кухня и санузел.
- Трамвайчик. Здесь также присутствуют смежные комнаты, но их площадь примерно одинаковая. Из прихожей одна дверь ведёт в гостиную, а другая на кухню. Рядом с последней находится совмещённый санузел.
Вариант №1: объединяем кухню с гостиной
В этом случае демонтируют стену между названными помещениями полностью или частично. Часто в общее пространство включают часть коридора. Если на кухне используется газовая плита, то потребуется её замена на электрический агрегат.
Второй способ выхода из данной ситуации – новая перегородка из стекла и дерева, оснащённая дверью раздвижного типа. За счёт прозрачности помещение будет выглядеть большим, единым и светлым.
Вариант №1 можно реализовать при перепланировке 2-х комнатной хрущёвки любого типа. В обновлённой квартире будет удобно одному человеку или семейной паре без детей.
Площадь хрущевки 3 комнаты. Размеры жилплощади
Количество комнат не является показателем их параметров. Если вы посмотрите на обустройство 3-х комнатной квартиры в панельном пятиэтажном доме, то увидите, что иногда жилая комната бывает маленькой или сплошной. План Хрущева влияет на компоновку и дизайн. Многие старые постройки можно перепланировать, так как не все жилые помещения в хрущевках имеют несущие стены. Внутри трех- или двухкомнатных квартир большинство внутренних стен не являются несущими. Благодаря этому две комнаты можно объединить в одну и сделать жилище более просторным.

Но перед тем, как приступить к работе, важно учитывать, сколько метров составляют общие размеры. В 1960-1975 годах общая площадь трешек равнялась 44 м², при этом 32 м² из них занимала жилая площадь. Во второй половине 1970-х гг. В метрах стали появляться девятиэтажные дома, площадь трехкомнатных квартир в них была увеличена до 53 м².

Высота потолков
Как показывает практика строительства и ремонта, даже в малогабаритных жилищах можно работать над созданием красивых кровельных покрытий. Причем сделать это можно даже на стандартной высоте. Но при этом от установки навесной или натяжной конструкции лучше отказаться, так как это уменьшит пространство. Дизайнеры рекомендуют оклеить потолок обоями или уложить специальные полимерные листы. В разных типовых сериях план типового этажа и высота потолка в хрущевке могут различаться.

Ниже приведены примеры:
- К-7 — 2,48-2,5 м;
- 1-335 — 2,54 м;
- 1-434, 1-447, 1-438, 1-464 — 2,5 м;
- 1-528 — 2,70-2,80 м;
- 1-480, 1-510 — 2,48 м.

Если вы хотите установить натяжные потолки, то можете ограничиться одноуровневой конструкцией. Таким образом, мастера могут изменить даже стандартный квартирный потолок (2,5 м). Чтобы не уменьшить жилую площадь, соблюдайте расстояние между натяжной конструкцией и основной поверхностью (оно не должно быть более 3 см). Кроме того, стоит отказаться от вставки светильников.

Параметры кухонь
Несмотря на то, что планировки квартир в 5-этажке бывают разные, кухонное пространство в них всегда строилось по общему принципу. Чтобы убедиться в этом, достаточно взглянуть на любой хрущевский план. Размер кухни в хрущевке и ее пропускная способность здесь не имеют решающего значения. Конструкция 3-шки с 5- или 6-метровым кухонным пространством предусматривала установку печи справа или слева от окна (место расположения зависело от того, как расположен пятиэтажный дом).

Это условие было обязательным для соблюдения правил пожарной безопасности в 5-этажном доме, так как огонь лучше виден через окно с улицы. Возле плиты разместили газовую колонку, а в углу расположили мойку. Это место связано с близким расположением ванной комнаты. Какие размеры кухни в хрущевке? Сколько квадратных метров отводили домохозяйкам советские архитекторы? Чаще всего эти значения колебались от 5,1 до 6,8 м².

При этом в сталинках минимальные показатели были от 7 м². Например, в серии 1-464, построенной с 1960 по 1967 год, метраж составляет 5,8 м². Такие же номера были у 1-434 (период постройки с 1958 по 1964 гг.).

При этом в 1960 году в этой серии архитекторы предусмотрели кухни площадью 6,2 м², а в 1964 году вернулись к прежнему значению. По стандарту 1-335 (1963-1967 гг.) определена площадь 6,2 м². При строительстве 1-434С (с 1958 по 1964 год) метраж достигал 5,2-6,1 м². Иными словами, в разные периоды разница была незначительной и колебалась в пределах одного квадратного метра. И на это не повлияло расположение дома. Так что размер кухни в хрущевке, которая находилась в углу здания, равнялся метражу той, что посередине. Есть современные дома, похожие на хрущевки по типу постройки, где площадь достигает от 7 м². Но эти параметры не характерны для стандартной жилплощади такого типа.

Кроме того, при строительстве предполагалось, что должно быть место для небольшого столика и шкафа, в котором можно будет хранить посуду, посуду, бакалею и другие мелочи. Никакой другой мебели сюда не доставляли. Именно поэтому пространство в панельных, кирпичных или комбинированных домах кажется в наше время таким непрактичным. Но для того периода советской эпохи строительство так называемых хрущевок было настоящим прорывом, так как их заселяли те, кто раньше жил в коммуналках с общим санузлом, а также люди, переехавшие в города из сел и деревень. Наличие удобств, водопровода, центрального отопления и электричества коренным образом изменило условия жизни граждан СССР.


Планировка хрущевки 4 квартиры на этаже. Достоинства и недостатки
При выборе квартир в домах «хрущевках» предпочтение отдается строениям из кирпича. За счет толстых стен они не нагреваются летом, что дает возможность экономить на кондиционерах, и не промерзают зимой. Небольшая площадь квартир легко прогревается чугунными радиаторами.
В отличие от современных монолитно-каркасных и панельных домов, кирпичные пятиэтажки имеют толстые несущие стены, что создает хорошую звукоизоляцию между квартирами. Качество вентиляции «хрущевок» тоже достаточно велико — из нижних квартир не поступают посторонние запахи.

Несмотря на типовые жилые помещения в таких домах, можно подобрать варианты на любой кошелек и вкус. На представленных фото планировок квартир «хрущевок» можно увидеть, что в пределах одного подъезда могут быть представлены и однокомнатные, и двухкомнатные, и трехкомнатные жилища.

Почти во всех квартирах предусмотрен балкон, который, при желании, можно превратить в дополнительное функциональное помещение.

Конструкция зданий предполагает хорошую устойчивость и прочность. Дома надежно стоят на любой почве и не боятся сейсмической активности.

Еще один плюс — квартиру «хрущевского» типа легко перестроить. Любые работы в плане перепланировки можно произвести в короткие сроки и недорого.
Существует немало интересных проектов изменения планировки однокомнатной квартиры в хрущевке и превращения ее в студию. Также есть варианты, при которых планировка двухкомнатной квартиры «хрущевки» превращается в проект современной евро-двушки.

Однако помимо достоинств жилища такого типа имеют и свои недостатки. К их числу относятся слишком низкие потолки, маленькие кухни и тесные прихожие. Чаще всего мебель для этих помещений приходится изготавливать на заказ. Санузел всегда совмещенный, но благодаря этому — достаточно просторный, позволяющий установить стиральную машину.

Гостиная в «хрущевке» всегда проходная, поэтому не может быть превращена в спальню или детскую.
Длина и ширина комнат в хрущевке. Отличительные черты планировки хрущевок в кирпичных домах
При рационализации строительства панельных домов было принято решение заменить железобетонные панели, которые в то время использовались для строительства на силикатный кирпич. Его было удобно перевозить на место стройки. Был заново разработан новый проект, который немного отличался от разработанного до этого для панельных зданий.
Если в двухкомнатной хрущевке проживает пара или семья с ребенком, квартира нуждается в переделке.
Было разработано новое архитектурное новшество, которое подразумевало переделку комнат с использованием продольного расположения. Это уменьшало количество однокомнатных квартир в жилом доме. Изменились также габариты кухни – они стали меньше, но увеличилась площадь, которую занимают кладовки и добавились лоджии.
Если снести все стены (за исключением несущих), получится квартира со свободной планировкой.
Угловая 2 комнатная хрущевка отличается измененной планировкой, которая выводит окна на две стороны, и существует возможность обзора улицы с разных ракурсов. На этом плюсы этой жилплощади заканчиваются. При возведении панельных домов стены делались тонкими, что уменьшало их теплоизоляционные свойства.
Эти квартиры были холоднее по сравнению с другими, которые находились, например, внутри здания.
В кирпичных домах, где стены достаточно толстые (полметра и больше), такая проблема с промерзанием угловых стен не бывает такой актуальной. В таких помещениях намного теплее и комфортнее.
Источник: https://360doma.ru/novosti/planirovka-hrushchevki-4-kvartiry-na-etazhe-seriya-k-7-1950-e