Схема квартиры хрущевки 2 комнаты. Особенности планировки
- Схема квартиры хрущевки 2 комнаты. Особенности планировки
- Дизайн двухкомнатной хрущевки трамвайчика. Правовые аспекты перепланировки
- Планировка хрущевки 2 комнаты раздельные. Отличительные черты планировки хрущевок в кирпичных домах
- Перепланировка 2-х комнатной хрущевки вагончик. Внутри квартиры нет несущих стен.
- Планировка хрущевки 2 комнаты смежные. Допустимые и запрещенные действия при перепланировке квартир
- Планировка хрущевки 2 комнаты без балкона. Варианты расположения комнат
Схема квартиры хрущевки 2 комнаты. Особенности планировки
Жилые дома, построенные по установке Никиты Хрущева начиная с 1958 года, предназначались в основном для решения острой жилищной проблемы. Первоочередная задача — предоставление как можно большему числу семей пусть небольшой, но отдельной квартиры. «Хрущевки» многих серий замышлялись как временное жилье. Поэтому значительным комфортом они не отличаются.
Основные характеристики жилых зданий этого типа:
- высота потолков чаще всего — 2,48-2,5 метра; в домах некоторых серий и спецпроектов — 2,7 метра;
- в большинстве квартир — проходные комнаты;
- общая площадь квартир небольшая, самые распространенные размеры — от 30 до 46 метров;
- кухня немногим более 5 метров или меньше;
- в большинстве квартир санузел совмещенный;
- тепло- и звукоизоляция — невысокого качества.
Спустя много лет после строительства зданий этого типа специалисты по строительству объявили, что срок их службы можно продлить с 25 (для панельных домов) и 50 лет (для кирпичных) до 150.
В настоящее время в Москве и Санкт-Петербурге «хрущевки» массово сносятся, а во многих городах и бывших республиках СССР реализуются программы по их реновации и продлению срока службы. Семьи, которые в обозримом будущем останутся жить в этих домах, на сегодняшний день располагают возможностями повышения комфортности своего жилья.

Правила перепланировки двухкомнатной квартиры
В части домов хрущевского периода внутренние перегородки не являются несущими. Это не стена, а именно перегородка. Она сооружена чаще всего из гипсоволоконных, гипсоцементных и гипсовых плит. Поэтому может быть предусмотрена такая схема перепланировки, при которой перегородки сносятся.
По существующим правилам запрещено:
- сносить внутренние перегородки, если они являются несущими, а так бывает в панельных домах некоторых серий;
- увеличивать площадь санузла за счет жилого помещения;
- существенно увеличивать нагрузку на основание балкона при его объединении с внутренним помещением;
- объединять внутреннее помещение с балконом или лоджией путем полного сноса несущей стены между ними;
- переносить батареи центрального отопления на балкон или лоджию;
- демонтировать и замуровывать вентиляционные каналы и отдушины;
- переносить санузел в другое место квартиры;
- объединять кухню и гостиную в случае, если кухня оборудована газовой плитой или газовой водонагревательной колонкой;
- сооружать межкомнатные перегородки из бетона, железобетона и других тяжелых материалов, которые усиливают нагрузку на общую конструкцию здания;
- перекрывать доступ к центральным коммуникациям.
Определить, является ли внутренняя перегородка несущей, и допустимую нагрузку для основания балкона может только квалифицированный строительный инженер. Замена газовой плиты на электрическую позволит объединить кухню с гостиной.

Преимущества перепланировки
Существует несколько вариантов перепланировки двушки в хрущевских домах в зависимости от серии и материала постройки.
Основные преимущества перепланировки:
- доступ из одного помещения в другое становится более простым и удобным;
- планировка жилища становится свободнее;
- пространство визуально увеличивается.
Самый распространенный вариант перепланировки — квартира типа студия. Она отличается полностью свободной планировкой. Фактически получается однокомнатный вариант, но при этом квартира больше и удобнее стандартной однокомнатной.

Недостатки
Небольшие размеры квартир в домах рассматриваемого типа могут проявляться и после перепланировки. Ими и обусловлены ее недостатки.
Они заключаются в следующем:
- прихожая будет совсем небольшой площади, на которой свободно передвигаться сможет лишь один человек;
- в объединенной кухне и гостиной из-за малых размеров помещения зона отдыха будет находиться в тесном контакте с бытовой техникой и кухонной утварью.
Чтобы не пришлось жалеть о произведенных работах, лучше всего руководствоваться рациональными соображениями и прежде всего тем, сколько членов семьи нуждаются в изолированных помещениях.
Дизайн двухкомнатной хрущевки трамвайчика. Правовые аспекты перепланировки
Если владельцы не планируют переносить несущие стены, то ничего оформлять не нужно. Перепланировка двухкомнатной хрущевки происходит в стандартном режиме согласно готовому плану. Однако стоит заранее учесть, не находится ли здание в предаварийном состоянии, не были ли нарушены законодательные акты предыдущими хозяевами.

Перед началом перепланировки квартиры необходимо позаботиться о её согласовании
В случаях, если планируется переносить несущие стены или были замечены грубые ошибки при прежних владельцах, необходимо сделать следующее:
- подготовить проект;
- предоставить его в местную архитектурную администрацию;
- далее документы попадают в суд, остается его только выиграть.
На всю процедуру может уйти несколько месяцев. Чтобы не тратить личное время на сбор, можно обратиться сразу в специализирующуюся на таких вопросах компанию. За небольшое вознаграждение сотрудники сами соберут все необходимые документы.
В панельном доме
Чаще всего в панельных домах расширяют санузел, кухню и коридор. Способов сделать это достаточно много. Для этого необходимо обратиться к специалисту, который занимается проектированием. Дополнительно может понадобиться разрешение со стороны управляющей компании, самовольный снос стен в таких домах может оказаться под запретом.

Раздельные ванна и туалет в хрущевках отличаются очень маленькой площадью, снос перегородки между ними позволяет получить довольно просторный санузел
В кирпичном доме
Из кирпича обычно строили дома до революции. Таких зданий осталось немного, большая часть из них является историческим достоянием. Говоря о хрущевках, стены из кирпича могут быть между комнатами. Сегодня достаточно часто встречаются такие объекты, в планировку которых уже было вмешательство. Работать с такими стенами необходимо крайне аккуратно, так как никогда не знаешь, чего ожидать. Желательно вызвать специалистов, которые смогут заранее предупредить о всех возможных проблемах. Как выглядит перепланировка 2 х комнатной хрущевки квартиры в кирпичном доме можно ознакомиться на фото.

Планировка хрущевки 2 комнаты раздельные. Отличительные черты планировки хрущевок в кирпичных домах
При рационализации строительства панельных домов было принято решение заменить железобетонные панели, которые в то время использовались для строительства на силикатный кирпич. Его было удобно перевозить на место стройки. Был заново разработан новый проект, который немного отличался от разработанного до этого для панельных зданий.

Если в двухкомнатной хрущевке проживает пара или семья с ребенком, квартира нуждается в переделке.
Было разработано новое архитектурное новшество, которое подразумевало переделку комнат с использованием продольного расположения. Это уменьшало количество однокомнатных квартир в жилом доме. Изменились также габариты кухни – они стали меньше, но увеличилась площадь, которую занимают кладовки и добавились лоджии.

Если снести все стены (за исключением несущих), получится квартира со свободной планировкой.
Угловая 2 комнатная хрущевка отличается измененной планировкой, которая выводит окна на две стороны, и существует возможность обзора улицы с разных ракурсов. На этом плюсы этой жилплощади заканчиваются. При возведении панельных домов стены делались тонкими, что уменьшало их теплоизоляционные свойства.

Эти квартиры были холоднее по сравнению с другими, которые находились, например, внутри здания.
В кирпичных домах, где стены достаточно толстые (полметра и больше), такая проблема с промерзанием угловых стен не бывает такой актуальной. В таких помещениях намного теплее и комфортнее.
Перепланировка 2-х комнатной хрущевки вагончик. Внутри квартиры нет несущих стен.
Расположение несущих стен в хрущевке.
В 90% случаев внутренние стены квартир в хрущевках являются не несущими перегородками, то есть их можно смело демонтировать при перепланировке без влияния на общее состояние здания. Правда, при этом не следует забывать о требованиях строительных, правовых и санитарно-гигиенических норм, которые необходимо соблюдать.
Даже при затрагивании только не несущих перегородок можно нарушить некоторые законы, о которых мы поговорим ниже. Обычно несущими в хрущевке являются ограждающие стены квартиры, все или только некоторые. Единственное, что может находиться из несущих конструкций внутри квартиры кирпичных домов- это балки, опирающиеся на наружные и внутренние межквартирные несущие стены. Справа на рисунке приведен типичный пример расположения несущих стен в реальной квартире-хрущевке (зелёным отмечены несущие стены и диафрагмы жесткости). Многие, как мы уже упоминали, ошибочно полагают, что если они не затрагивают несущих стен, то согласовывать такую перепланировку не надо. На самом деле, перепланировка квартиры-хрущевки с любым изменением конфигурации перегородок влечёт за собой обязанность внесения этих изменений в документы БТИ на квартиру, а, следовательно, требует и соответствующего согласования. Более того, большинство этих изменений согласовываются по проектам, выполняемых соответствующими организациями с разрешением. Ознакомиться с требованиями к проектам можно здесь .
Более подробно об определении несущих стен в хрущевках Вы можете почитать здесь .
Изменились пункты: Объединять газифицированную кухню с жилым помещением нельзя согласно п. 10.16 Приложения 1 к Постановлению Правительства Москвы № 508 (после введения ППМ №1335 от 19.08.2020, актуального и в 2022 году).
Изменение: теперь выход из помещения с унитазом можно делать в любую комнату, так как отменили СаНПиН, который раньше это запрещал.
Планировка хрущевки 2 комнаты смежные. Допустимые и запрещенные действия при перепланировке квартир
Хотя так называемые «хрущевки» и отличаются небольшой площадью комнат, у них есть свои положительные стороны, которые можно использовать при перепланировке. Это связано с тем, что все внутренние стены в квартирах этой серии не являются несущими, и их скорее можно назвать перегородками. При постройке домов подобного типа возведение внутренних стен осуществлялось из различных, относительно легких материалов – чаще всего это были гипсоволоконные, гипсоцементные или гипсовые плиты. Иногда перегородки даже сооружались из бруса, выступающего в качестве каркасной конструкции, которая обшивалась затем с двух сторон обычными досками. Чтобы на дощатой стене лучше держалась штукатурка, на доски прибивалась дранка.

Нередко под слоем штукатурки на внутренних перегородках «хрущевки» скрывается вот такая картина – демонтаж не должен составить особых сложностей
Удаление таких стен никак не отразится на общей конструкции дома, так как они, по сути, не выполняют никакой несущей функции. Однако, это вовсе не означает, что подобные перегородки можно переставлять как угодно. На этот счет имеются действующие установленные требования, которых следует придерживаться.
Чтобы избежать проблем, любые переделки в квартире многоэтажного дома необходимо узаконить в жилищной инспекции, и чтобы не терять время на походы и очереди, лучше всего отправляться туда с готовым проектом перепланировки.

Исходным документом для дальнейших «походов по инстанциям» должен служить продуманный план желаемой перепланировки квартиры
Предварительные наброски такого проекта можно составить и самостоятельно, опираясь на план квартиры, который входит в кадастровый паспорт. Сделав с этого документа ксерокопии, на них указывают, какие стены планируется удалить, и в каких местах установить новые перегородки.
1. К действиям, которые возможны при перепланировке «хрущевки», можно отнести:
- Демонтаж перегородки между ванной комнатой и туалетом , то есть их объединение, а при необходимости – даже расширение получившегося помещения за счет коридора.

Уборная и ванная объединены в один санузел, который даже получил дополнительную площадь за счет коридора
- Расширение или удлинение жилой комнаты за счет ее соединения с коридором или его частью.
- Соединение кухонного помещения и смежную с ней жилой комнаты проходом, то есть превращение их в общую кухню-столовую, но лишь в том случае, если на кухне установлена электрическая плита.
- Проделывание дверных проемов в удобном для хозяев месте – допускается на стенах, не являющихся несущими, какими обычно оказываются все внутренние перегородки в квартирах-«хрущевках».
- Демонтаж антресолей, ниш, кладовых и иных подсобных помещений, за счет которых есть возможность увеличить помещения квартиры.
- Установка второй входной двери, с обустройством тамбура между ними, при условии, если сделать это позволяет площадь коридора.
- При утеплении и объединении комнаты с балконом — демонтаж части внешней стены, расположенной под оконным проемом.
2. Недопустимые действия при переделке планировки квартиры, которые не могут быть утверждены жилищной инспекцией:
- Объединение кухни, оснащенной газовой плитой, котлом или проточным водонагревателем – колонкой, с жилым помещением.

Кухня с установленными на ней газовыми приборами обязательно должна иметь закрывающуюся дверь в жилую зону
Если все же планируется произвести такой вариант объединения, то придется сделать между помещениями, по крайней мере, раздвижную перегородку, или же заменить газовую плиту электрическим вариантом, а колонку перенести в санузел. Перенос водонагревателя, кстати, будет возможен, если позволяет конструкция и пропускающая способность вентиляционных каналов. Но с этим параметром смогут определиться только специалисты.

Для переноса газового водонагревателя в санузел потребуется отдельный проект, с учетом возможностей надлежащего оборудования систем отвода продуктов сгорания и вентиляции
- Расширение кухни и санузла за счет жилых помещений.
- Расширение жилых комнат, а также объединение кухни с балконом или лоджией, путем полного демонтажа несущей стены между ними.
- Перепланировка, которая предполагает перекрытие доступа к центральным коммуникациям.
- Объединение санузла с жилыми помещениями или кухней.
- Перенос радиаторов центрального отопления на балкон или лоджию.
- Демонтаж вентиляционных каналов или коробов, замуровывание вентиляционных отдушин.
- Если квартира оборудована автономным отоплением – самовольная смена места установки газового котла.
- Объединение квартир, расположенных на смежных этажах, с демонтажем, частичным или полностью, межэтажного перекрытия.
- Самовольное возведение пристроек к квартирам, расположенным на первых этажах и обустройство в них жилых комнаты, подвалов и погребов.
- Демонтаж или переустановка стояков коммуникаций общего пользования и газовых труб.
- Возведение межкомнатных перегородок из тяжелых строительных материалов, например, из бетона или железобетона.
- Однозначно не будет утвержден план перепланировки в жилье, которое официально признано аварийным.
Планировка хрущевки 2 комнаты без балкона. Варианты расположения комнат

Светлые оттенки в декоре
Несмотря на сотни отстроенных квартир, планировка в них всегда одинаковая с площадью от 40 до 48 м². Единожды утвержденные планы применялись по всему СССР на территории 16 государств. Все хрущевки объединяют маленькая площадь кухни (6-8 м²), санузлов (2-3 м²), узкие коридоры, небольшие комнаты (либо одна большая, вторая крошечная) и низкие потолки (2,5-2,7 м).
Выделяют несколько видов планировок, причем народ для каждой из них придумал «бытовое» название.
«Распашонка»
Чертеж плана напоминает детскую рубашку, где рукава – это одинаковые по размеру комнаты, а в центре располагаются кухня и санузлы. Вход в комнаты осуществляется из прихожей, из нее же попадают в ванную и туалет, а в кухню ведет узкий коридор. Это самый удачный вариант расположения спальни и гостиной, которые полностью изолированы друг от друга;

Зонирование кухонной зоны в студии
Самым распространенным вариантом перепланировки в такой квартирке является создание кухни-студии. В результате получается просторная гостиная-столовая без узкого коридорчика и лишних стенок. Также востребовано объединение санузлов, что делает их площадь более просторной и избавляет небольшой коридор от обилия дверей.
«Мини-улучшенка»
Это квартира с узким горизонтальным коридором в который выходят все двери остальных помещений. Обычно вход налево (или направо) приводит в большой и просторный зал, а прямо напротив входной двери располагается небольшая спальня. Правее по этой же стенке находится вход в кухню, а справа, напротив зала, располагаются кладовка, туалет и ванная.

«Мини-улучшенка»
В такой квартире обычно увеличивают площадь кухни за счет демонтажа кладовой и сдвига на ее место санузлов с их объединением. Комнаты итак изолированные, что очень удобно для семей с детьми. Любители больших пространств сносят перегородку между кухней и спальней, превращая эту площадь в огромную гостиную.
Все внутренние перегородки в хрущевках обычно не являются несущими конструкциями. Это позволяет безжалостно сносить их и переносить в другое место. Правда присутствуют другие запрещающие аспекты, но об этом ниже.
«Книжка»
Это самый неудачный вид планировки с небольшой площадью и смежными комнатами, одна из которых проходная. Из маленькой прихожей вы попадаете в небольшой зал, а из него ведет вход в примыкающую комнату, которая по площади совсем крошечная. Направо из прихожей ведет узкий коридор в кухню, с дверями в туалет и ванную.

«Книжка» с кухней-студией
В спальне иногда присутствует встроенный шкаф, который многие предпочитают демонтировать, чтобы увеличить размер комнатки. Чтобы изолировать это помещение, многие жертвуют метрами зала, продлевая прихожую вплоть до спальной стены, где прорубается проход.
В такой квартире тоже можно сделать кухню-студию, или объединить санузлы. Если плита газовая, тогда потребуется установить раздвижные перегородки с плотным притвором.
Требование относится ко всем типам хрущевок и любых других квартир. Согласно технике безопасности, запрещается объединять жилую площадь с кухней , в которой находится газопровод. Это связано с тем, что в большом помещении в случае детонации или утечки газа ущерб для здания будет намного выше, чем в небольшом.
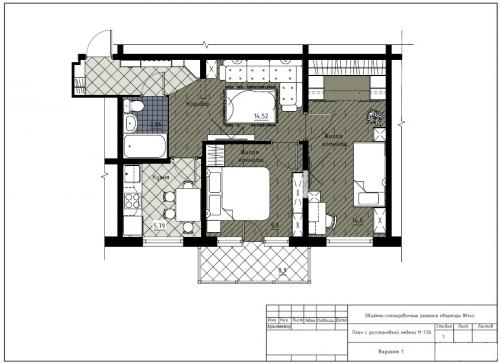
«Трамвай»
В такой квартире обычно обе комнаты достаточно большие, что дает простор и почву для фантазии дизайнерам. Если из прихожки повернуть налево (или направо), вы попадаете в коридор до кухни, из которого ведут двери в санузлы. Напротив входной двери находится вход в гостиную, а из нее направо (налево) в спальню.

Квартира типа “трамвай”
Одинаковые прямоугольные жилые комнаты при взгляде сверху напоминают вагоны трамвая. Как и в предыдущем варианте, здесь можно возвести перегородку, продлив коридор на всю ширину зала, завершив его шкафом-купе. Так помещения станут изолированными, а в квартире появится вместительная кладовая.