Интересные варианты планировок 2-х и 3-х комнатных хрущевок. Варианты планировок 2-х комнатных хрущевок
- Интересные варианты планировок 2-х и 3-х комнатных хрущевок. Варианты планировок 2-х комнатных хрущевок
- Хрущевка планировка 2-х комнатная угловая. Двухкомнатная хрущевка: 80+ фото, планировки, идеи дизайна
- Хрущевка планировка 2 комнатная. Особенности 2-комнатной «хрущевки»
- Хрущевка планировка 1 комнатная. Дизайн однокомнатной хрущевки: размеры, ремонт, фото планировок однушки в 30, 40 и более квадратных метров (130 реальных проектов)
- Перепланировка хрущевки 2 комнаты. Дизайн хрущевки 2 комнаты: проекты, оформление, перепланировка, идеи по созданию (часть 1)
- Размеры хрущевки 2 комнаты. Особенности «хрущевок»
- Планировка хрущевки 2 комнаты 44 м. Дизайн двухкомнатной «хрущевки»: интересные идеи
Интересные варианты планировок 2-х и 3-х комнатных хрущевок. Варианты планировок 2-х комнатных хрущевок
планировка 2-х комнатной квартиры в хрущевке
варианты планировки 2-х комнатной квартиры в хрущевке
Наибольшие различия в планировке 2-х комнатных хрущевок все равно присутствовали. Это случилось из-за того, что проектировались они различными по общей площади от 30 кв м до 46. Жильцы придумали свои названия для планировки 2-х комнатных хрущевок. Появились такие названия: «вагончиком», «трамвайчиком», «распашонкой».
В разных сериях были довольно большие различия. Встречались варианты с одной проходной комнатой, были полностью изолированные. Большой интерес представляют варианты с большой кладовкой пристроенной к помещению, за счет которой можно было увеличить и жилое пространство, и сделать целую гардеробную.
ЧИТАТЬ ПО ТЕМЕ:
Дизайн гардеробных с фото готовых примеров – выбирайте вариант для себя!
Например, 2-х комнатная планировка в хрущевке «вагончиком» – это квартира, в которой окна разведены на разные стороны дома. Помещения здесь смежные, расположены друг за другом ( как вагончики поезда). Однако, если убрать весь негатив связанный с серией, то это довольно удобно. В любом случае, это, конечно, полноценное жилье, в котором есть спальня и гостиная.
Второй вариант — это распашонка. В такой квартире окна выходят на одну сторону. А одна комната обязательно проходная. Основное отличие заключается в том, что одна комната существенно меньше другой. Аналогичный вариант называется «книжка» — в ней комнаты одинаковые по площади, одна из них проходная.
Варианты с более большими площадями имели изолированные помещения. Была т.н. «миниулучшенная» вариация. Такая квартира похожа на аналогичные квартиры в 9-этажках, кроме очень маленькой хрущевской кухоньки. Эти проекты имеют даже раздельный санузел.
И еще одну вариацию можно отметить. Не особенно часто встречается, так называемая, «бабочка». Раздельные одинаковые по площади большие комнаты разделены по центру маленькой кухней, санузлом и крохотным коридорчиком.
Хрущевка планировка 2-х комнатная угловая. Двухкомнатная хрущевка: 80+ фото, планировки, идеи дизайна

Планировка 2х комнатной хрущевки
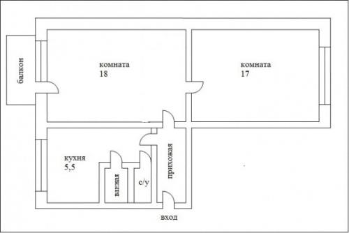
Типовая хрущевка имеет очень маленькую кухню – 5-6 квадратов. Ещё одна особенность – невысокие потолки до 2,7 метров. Двушки без перепланировки зачастую бывают неудобны, особенно, если вторая комната проходная.
Стандартная площадь двухкомнатной хрущевки – около 43-44 кв метров. Дома пятиэтажные. В большинстве своем комнаты смежные, окна выходят на одну сторону (за исключением угловой квартиры с двумя окнами). В качестве достоинств хрущевки можно выделить наличие кладовки и балкона.
Рассмотрим самые распространенные типы планировок подробней.
Книжка
Такая планировка считается самой неудачной: проходная комната с широким дверным проемом играет роль столовой, а в семье с детьми – ещё и спальни. Уединенности в таком пространстве добиться трудно. Чтобы разделить помещения, придется пожертвовать частью комнаты. Без перегородок, на снос которых необходимо получить разрешение, хрущевку можно превратить в просторную студию.



На фото маленькая угловая кухня со встроенным холодильником и столом, вписанным в подоконник.
Трамвайчик
Такое народное название (также употребляется слово «паровозик») планировка получила за расположенные друг за другом комнаты, напоминающие вагоны. Гостиная с балконом является проходной, но переделка решает эту проблему: если отсечь часть комнаты и превратить ее в коридор с двумя входами, в получившейся нише можно организовать систему хранения.



На фото комната в кремовых тонах с акцентной стеной в телевизионной зоне.
Хрущевка планировка 2 комнатная. Особенности 2-комнатной «хрущевки»
Узнать «хрущевку» можно по широким квадратным окнам, проходным комнатам, маленьким кухонькам. Совмещенный санузел – еще одна типовая деталь в плане-проекте таких квартир. Стандартная ванна в таком маленьком санузле даже поместиться не могла. Многие квартиры обустроены балконом и кладовкой.
Двухкомнатная «хрущевка» – очень компактная квартира. В новостройках даже «однушки» современной планировки располагают схожей площадью (40-45 кв. м) и даже больше. «Хрущевка» максимально имеет метраж в 46 квадратов, если это «двушка», но благодаря компактности зон тем не менее на них можно удобно разместить все. Просто от стандартных схем порой выгоднее отклониться, поискав новые решения.
Иногда это глобальная перепланировка, которая предполагает изменение геометрии квартиры. Естественно, чтобы не пострадали несущие стены, перепланировку требуется узаконить в соответствующих инстанциях.
Существует несколько вариантов стандартной планировки.
- «Книжка». Так принято называть квартиру, в которой комнаты идут друг за другом последовательно. Общий метраж такого жилища 42-43 квадрата.
- «Трамвай». А это «двушка», площадь которой 47 квадратов, комнаты в ней смежные, одна из них угловая.
- Улучшенная. Данная планировка не предполагает проходной комнаты, более того, в ней даже есть нетипичный для «хрущевки» раздельный санузел. Правда, кухня в таком жилище крошечная.
- «Бабочка» . В такой квартире кухня находится посередине, а по краям – жилые комнаты. Раздельный санузел тоже является выгодной стороной данной планировки.
Сказать, какая из этих планировок удобнее для перестройки, точно нельзя. Например, в «книжке» смежные комнаты легко объединить в одну (если это задумано), и тогда жилище превратится в полноправную студию. В любом случае подумать есть над чем.
Хрущевка планировка 1 комнатная. Дизайн однокомнатной хрущевки: размеры, ремонт, фото планировок однушки в 30, 40 и более квадратных метров (130 реальных проектов)
Новостройки на сегодняшний день являются очень популярными, однако большинство россиян проживает в квартирах, построенных еще при Хрущеве. Отличается подобное жилье малогабаритными кухнями, отдельными ваннами комнатами.
Площадь его, как правило, составляет от 30 до 32 квадратных метров. Это не так много, поэтому жильцам часто хочется как-то увеличить пространство. В данной статье вы узнаете о том, как обустроить однокомнатную хрущевку правильно.

Идеи для дизайна однокомнатной квартиры
Если жилье небольшое, прямо как однокомнатная хрущевка, то жильцы во время ремонта стараются сохранить все свободное место настолько, насколько это возможно.
Они прибегают к разнообразным приемам, позволяющим визуально увеличить пространство.

Помимо этого стоит также знать, какое стилевое направление лучше выбирать, как выполнять отделку и ремонт. При выборе любого материала и способа оформления старайтесь придерживаться как модных тенденций, так и собственных предпочтений и пожеланий.
Выбор стилевого направления
При оформлении небольшой хрущевки выбор стиля может показаться затруднительным. Ведь вам может нравиться какая-то часть от одного стилевого направления, и другая – от второго.
Кстати, воспользуйтесьоднокомнатных квартир для рассчёта стоимости работ. Большое портфолио, переходите!
Не стоит бояться смешивания понравившихся стилей, ведь это только придаст оригинальности интерьеру вашего жилища. В маленькой квартирке сложно поддерживать один определенный стиль, поэтому многие совмещают несколько.
Вот некоторые стилевые направления, которыми можно пользоваться при оформлении:
- Классический. Здесь сочетаются традиции, солидность, дорогие и качественные материалы и изделия. Мебельные предметы изготовлены из натуральной древесины, а тканевые обивки состоят из дорогостоящей материи. Оттенки отличаются спокойствием и сдержанностью. Обычно они являются бежевыми, ярко-коричневыми и ярко-зелеными, пастельными. Отлично подходят многообразные картины, вставленные в золотые, дорогие рамки.
- Этнический. Смысл подобного направления заключается в воссоздании стиля какой-то определенной страны. Подобный способ оформления сильно любят путешественники и простые любители традиций других народов. Квартира может быть обустроена по-китайски, по-английски, по-африкански, по-египетски. Кто-то даже смешивает несколько стран в одном помещении. Получается довольно экзотично, необычно и самобытно.
- Современный. Сюда относятся ар-деко, кантри, модернизм, лофт, хай-тек и минималистичный стиль. Здесь отсутствует лишний комфорт, заметно проявляется контраст схожих цветов. В таком помещении присутствует большое количество искусственного освещения, мебель четких форм.
Перепланировка хрущевки 2 комнаты. Дизайн хрущевки 2 комнаты: проекты, оформление, перепланировка, идеи по созданию (часть 1)
Еще в старые советские времена, построенные хрущевки использовались для решения острого жилищного вопроса, то на сегодняшний день воспринимаются просто, как дешевое жилье, которое требует перевоплощения. Маленькие помещения и низкие потолки выглядят удручающе. Но многих это не пугает, так как современные технологии позволяют выполнить качественный дизайн хрущевки (2 комнаты), как при помощи планировки, так и без нее, благодаря дизайнерским хитростям.
Как можно оформить дизайн в двухкомнатной квартире
- Семья без детей.
- Один человек.
- Семья с одним ребенком.
- Семья с 2-мя и более детьми.

Хрущевка с перепланировкой
От выбора нужной модели зависит полная перестройка и дизайн 2 комнатной квартиры в хрущевке:
- Если есть ребенок, то в обязательном порядке можно выполнить планировку детская-спальня-гостиная.
- Для семьи без ребенка можно использовать только две функциональные зоны: зал и спальная зона.
Какие встречаются квартиры старой планировки?
Перед тем, как начать оформлять дизайн хрущевки 2 комнатной квартиры, рассмотрим детально все существующие планировки и что именно придется улучшать.
Книжка или №1-335 | Это самый распространенный проект еще с 58 года. В народе планировку называют книжкой, квартира имеет площадь 41 м2. |
Трамвай или №К-7 | Это самый первый проект из ряда старых планировок, спланирована на базе французских пятиэтажных домов. В народе такие планировки называют «трамваем». Комнаты смежные, общая площадь 2-комнатных квартир 48 м2. |
Мини-улучшенка или серия №1-464 | Такая планировка чем-то похожа на 9-этажные проекты. Кухонная зона маленькая, а комнаты изолированы. Общая площадь имеет 44,6 м2, а внешние стены имеют толщину 350 мм. |
Распашонка или №438 | Площадь квартиры имеет 46 кв.м и в народе называется бабочкой. Комнаты изолированы и имеют приличную площадь. |
Как сделать дизайн без перепланировки и сохранить первозданный вид?
Перед тем, как сделать дизайн-проект хрущевки 2 комнаты рассмотрим, как можно детально охарактеризовать устаревшие проекты.
2-комнатная старой планировки до ремонта
Особенности старой планировки:
- Комнатные помещения, смежные между собой, что очень неудобно.
- Маленькая кухонная зона, в районе 6м2.
- Небольшой коридор.
- Маленькая площадь туалета и ванной, совмещенные между собой.
- Площадью помещения не похвастаешься, не более 46 квадратов.
- Потолок низкий, не более 2,60 метров.
- Большая часть планировок имеет маленький балкон.
- Толщина перегородок 70-90 мм.
- Внутренние стены, толщиной 320 мм.

Помещение после проведения перепланировки и работ
Учитывая новые технологии, владельцы имеют огромное желание оформить дизайн проекты 2 х комнатной хрущевки. Такие варианты возможны в нескольких интерпретациях изменения квартиры для возможности расширения и благоустройства пространства.
Радикальная перестройка
Такой вариант предусматривает снос всех стен и создается единое пространство. На финише получаем квартиру-студию, путем сноса всех внутренних перегородок.

Дизайн квартиры хрущевка, 2 комнатная, переделанная в студию
Это сложный путь, который соприкасается необходимостью согласования планирования с соответствующими органами.
Частичная перепланировка
В этом случае, устраняются только перегородки или кладовки. Здесь можно просто совместить несколько помещений, к примеру, кухня-гостиная или коридор-комната.

Оформление, без применения сноса
Обратите внимание. Дизайн-проекты 2 х комнатной хрущевки можно воспроизвести и без перестроек, опираясь на современные стили и хитрые варианты зонирования.
Как найти оптимальное решение без сноса перегородок?
Если снос стен по каким-то причинам невозможен, то можно применить визуальное расширение пространства. Вот некоторые советы по этому поводу.

Как можно преобразовать без сноса стен?
Организовать полезную площадь при помощи дополнительных декоративных элементов:
- Полки.
- Стеллажи.
- Ниши.
Если увеличить дверные и оконные полотна при помощи арок, можно «визуально» расширить пространство почти на четверть площади.

Как арка влияет на общий интерьер
Формируя дизайн, 2 комнатная хрущевка предусматривает использование раздвижных дверей между проходными комнатами.

Матовые двери, как вариант зонирования
Привлечение зеркального декорирования в интерьер также позволит облагородить и увеличить объем малой площади и создать красивый интерьер.
Оформление зеркалами
Дополнительные советы
В некоторых случаях, дизайн 2х комнатной хрущевки можно выполнит при помощи простого ремонта и отбросить в сторону идею с перепланировкой. Рассмотрим некоторые моменты:
Использование цветовой палитры для стен и мебели. Ни для кого не секрет, что темные тона поглощают пространство, а светлые визуально увеличивают.

Светлые стены, темная мебель и аксессуары

Гостиная в светлой цветовой палитре
Простой совет: навести генеральную уборку во время ремонта и избавиться от всех ненужных вещей.
Еще в старые советские времена, построенные хрущевки использовались для решения острого жилищного вопроса, то на сегодняшний день воспринимаются просто, как дешевое жилье, которое требует перевоплощения. Маленькие помещения и низкие потолки выглядят удручающе. Но многие это не пугает, так как современные технологии позволяют выполнить качественный дизайн хрущевки (2 комнаты), как при помощи планировки, так и без нее, благодаря дизайнерским хитростям.
Как можно оформить дизайн в двухкомнатной квартире
Хрущевка с перепланировкой
От выбора нужной модели зависит полная перестройка и дизайн 2 комнатной квартиры в хрущевке:
- Книжка или №1-335
- Трамвай или №К-7
- Мини-улучшенка или серия №1-464
- Распашонка или №438
Перед тем, как сделать дизайн-проект хрущевки 2 комнаты рассмотрим, как можно детально охарактеризовать устаревшие проекты.
2-комнатная старой планировки до ремонта
Особенности старой планировки:
- Помещение после проведения перепланировки и работ
Учитывая новые технологии, владельцы имеют огромное желание оформить дизайн проекты 2 х комнатной хрущевки. Такие варианты возможны в нескольких интерпретациях изменения квартиры для возможности расширения и благоустройства пространства.
Вариант 1: снос всех стен и создание единого пространства
На финише получаем квартиру-студию, путем сноса всех внутренних перегородок.
Размеры хрущевки 2 комнаты. Особенности «хрущевок»
Строительство таких домов началось в 1958 году и продолжалось до 1985 года. В то время остро стояла проблема обеспечения жильем огромного количества людей по всей стране. Нужен был простой проект, который мог бы решить эту проблему в кратчайшие сроки.
Компактные жилые дома строились быстро и не требовали больших затрат. Впоследствии они получили прозвище «хрущевки», так как были построены в то время, когда главой государства был Никита Сергеевич Хрущев.
Квартиры в этих домах отличались небольшой площадью квадратных метров, проходными комнатами, низкими потолками, совмещенными санузлами и подъездами без лифта. Было несколько наборов типовых планировок квартир в хрущевских домах, отличавшихся:
- материал стен;
- расположение кладовой;
- варианты расположения комнат относительно гостиной;
- площади кухни и комнат.



Выделяют четыре серии типовых домов типа «хрущевки:
- 1-464 серия (годы постройки 1960—1967);
- 1-335 серии (1963—1967 годов постройки);
- 1-434 серии (1958—1964 годов постройки);
- серия 1-434С (1958—1964 годов постройки).

Изначально дома этого типа считались временным жильем. Они были построены для быстрого решения жилищной проблемы и рассчитаны на срок не более 25 лет. Впоследствии срок был увеличен до 50 лет и более.

На данный момент «хрущевки» столицы и Санкт-Петербурга сносят, но в других регионах продолжают активно эксплуатировать. Особой популярностью пользуются кирпичные постройки. У них толстые стены, удобные холодильники под подоконником, просторные кладовые.

Планировки кирпичных квартир «Хрущевки» легко меняются, превращая стандартные квартиры в современные и стильные.
Планировка хрущевки 2 комнаты 44 м. Дизайн двухкомнатной «хрущевки»: интересные идеи
Ремонт «хрущевки» – настоящее испытание, особенно если из старой квартиры неудачной планировки хочется сделать современную и удобную. Главный враг старых квартир – узкий коридор, маленькая кухня, неудачное расположение дверей, проходные комнаты и, конечно, небольшая квадратура. Но на сегодняшний день можно реализовать даже самый смелый и необычный проект, и для этого совсем не обязательно быть профессиональным дизайнером. Достаточно проанализировать особенности квартиры, изучить ранее реализованные проекты и составить дизайн-проект.
Особенности
Построенные в середине прошлого столетия дома до сих пор остаются единственным жильем для миллионов семей. И на сегодняшний день кирпичные и крупнопанельные дома до пяти этажей считаются наихудшим архитектурным решением. Зачастую самым простым способом усовершенствовать удручающую планировку квартиры является снос межкомнатных перегородок. При некоторых планировках возможно объединить кухню и комнаты, прихожую и комнату, ванну и туалет. Это позволит расширить площадь квартиры, добавить несколько необходимых метров. Также в некоторых квартирах есть кладовая, которую можно объединить с жилой комнатой.
Размеры коридора обычно наводят тоску. Узкая и темная прихожая в редких случаях может вместить шкаф-купе, поэтому необходимо делать акцент на функциональности, по возможности избавиться от не несущих стен. Если санузел изначально раздельный, его стоит объединить. Тогда можно будет выделить место для стиральной машины и большой угловой ванны. Чтобы сэкономить пространство, можно отказаться от раковины или от ванны в пользу душевой кабины. Любая перестройка стен должна быть согласована со специалистом, независимо от того, в каком доме она проводится: крупнопанельном или кирпичном.
Особенности квартиры не дают возможности перенести кухню в другое место, но зато можно вынести обеденную зону в гостиную. Для этого можно снести перегородку между кухней и комнатой или сделать арочный проем. Такой широкий проход визуально разделит пространство и создаст эффект увеличения площади. Вместо большого вместительного стола можно оставить место на кухне для барной стойки, за которой могут комфортно разместиться до 4 человек.



