Баня из клееного бруса. Строительство бань из клееного бруса
Баня из клееного бруса. Строительство бань из клееного бруса
Вы решили построить баню, но какой материал выбрать для возведения стен? Прежде всего надо определиться с условиями строительства. В Москве или Московской области хорошие условия для возведения бани из дерева, но какую технологию выбрать спросите вы? Для строительства бани под ключ, с минимальным последующим уходом, советуем выбрать клееный брус. Плюсы такого выбора:
Экологичность. Клей применяемый при склейке ламелей не содержит фенолов. Весь остальной материал – это массив дерева, откалиброванный механическим способом;
Скорость строительства. На стройплощадку приходит готовый домокомплект, который надо собрать согласно схеме. Опытной бригаде для сборки бани 100 м2 понадобится не более трех недель;
Строительство под ключ. После возведения стен и крыши можно сразу приступать к прокладке инженерных коммуникаций или отделочным работам, т.к. усадка не превышает 1-2%;
Экстерьер и интерьер. Баня из клееного бруса выглядит дорого, не нуждается в дополнительных отделочных материалах. Достаточно просто обеспечить защиту от воздействия окружающей среды при помощи лака или специальных пропиток на основе воска;
Микроклимат. Хорошая баня – это баня из дерева. Так считают все любители банных процедур. А приятный запах натурального дерева никого не оставит равнодушным;
Долговечность. Для изготовления клееного бруса используется древесина без дефектов с предварительной сушкой. На выходе получается идеальный брус с максимальным сроком эксплуатации.
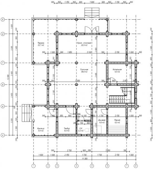
Баня из клееного бруса проект. Проектирование бань из клееного бруса
Пример проекта бани из клеёного бруса | Договор на проектирование бани
Клееный брус весит меньше массива, выглядит аккуратно и обладает отличными техническими характеристиками. Происходит это за счет того, что пиломатериал сортируют и вырезают из него дефектные участки. Отобранные доски называют ламелями, из них потом и набирают брус.
Самые прочные конструкции из клееного бруса получают из северных пород. Для постройки бань наша компания использует только высшие сорта, которые прессуются в брус на современном оборудовании.
Стоимоть проектирования всегда обсуждается индивидуально и зависит от многих факторов. Начинается стоимость проектирования от 100 руб. за квадратный метр.
Особенности услуги
При создании проектной документации для бань из клееного бруса сотрудники «СтройПроектБани» учитывают:
- Особенности почвы и расположение будущей бани. Это нужно, чтобы правильно рассчитать нагрузку и сделать прочный фундамент.
- Тип фундамента. Он может быть ленточным, на сваях или по технологии ТИСЭ, которая совмещает в себе сваи и ленточные конструкции.
- Высотность. Вы можете выбрать баню в несколько этажей, а также дополнить ее пристройками.
- Тип кровли. Это может быть рубероид, утепленная или холодная кровля и многие другие варианты.
- Дизайнерское исполнение фасада.
- Решения для внутренней отделки отделку.
- Общую площадь. Квадратура будет рассчитываться исходя из количества человек, которые планируют регулярно посещать баню.
Размер бруса подбирается с учетом общей площади помещения. Ламели могут быть 200×185 см или 160×185 см.
На плане будущей бани вы увидите не только основные помещения, их размеры и расположение, но и вспомогательные комнаты: душевые, санузлы и так далее. Сумма, указанная в смете, не будет увеличиваться в процессе постройки, так как мы учтем точное количество материалов и их стоимость.
Разновидности проектов
В нашей компании доступно два варианта:
- Типовая баня. Такой проект сэкономит вам деньги и не заставит долго думать над дизайном. Готовые решения бань вы найдете в нашем каталоге.
- Оригинальная баня. Специалисты «СтройПроектБани» учтут все ваши пожелания и разработают индивидуальный проект. Изменения можно вносить на любом этапе составления документации. Такой гибкий подход позволит получить именно ту баню, о которой вы мечтаете.
Наши достоинства
Заказать баню из клееного бруса у нас стоит, поскольку:
- Чертеж проекта будет готов через неделю. После согласования всех деталей можно будет начать строительство бани.
- В проектах мы используем клееный брус из высших сортов древесины (лиственница, кедр, сосна и т. д.), в отделке – только качественные материалы.
- Специалисты, которые будут составлять для вас чертежи и эскизы, хорошо разбираются в дизайне и архитектуре, имеют большой опыт работы в своей сфере.
- Мы предлагаем демократичные цены на все услуги и материалы.
Остались вопросы? Звоните нам или оставляйте заявку на сайте. Расскажем об особенностях, сроках и стоимости проектирования бани из клееного бруса и согласуем время визита инженера.
При заказе строительства — проектирование БЕСПЛАТНО!
Баня из клееного бруса: плюсы и минусы. Клееный брус или бревно

Хорошие бани из клееного бруса обустраиваются значительно реже по сравнению с обычной древесиной. Обе разновидности материалов имеют свои положительные и отрицательные качества, поэтому следует провести сравнение обычного бревна и клееного бруса.
К достоинствам строительства бани из бруса нужно изначально отнести скорость возможного возведения и простоту выполнения работ. При необходимости все виды работ могут выполняться самостоятельно домовладельцем без помощи специалистов в анной области. Профилированные материалы в таком случае будут максимально подходящими.
Бани из бруса, оборудованные при помощи пиломатериалов с профильным вырезом, могут иметь некоторые уязвимые места в области межвенцовых швов. Поэтому стены нужно будет отделывать с двух сторон. Одновременно можно решить проблему внешнего оформления и вопрос улучшения внешних характеристик здания.
В бане из бруса многие домовладельцы находят трещины, которые появляются даже на стенах из профилированных клееных материалов. Поэтому большинство домовладельцев предпочитают устанавливать оцилиндрованные бревна, отличающихся намного меньшим растрескиванием и не таким интенсивным образованием дефектов на поверхности. Следовательно, обычные бревна отличаются более высокими эксплуатационными характеристиками.
Следует отметить, что при возведении строительных объектов с использованием клееного бруса придется ждать на протяжении нескольких месяцев для того, чтобы завершился процесс усадки и окончательного высыхания установленных пиломатериалов.
Поскольку в состав клея входят сравнительно агрессивные химические соединения, разогрев бани способствует выделению определенного объема нехороших паров. Натуральность используемых строительных материалов напрямую обуславливает возможность безвредной для здоровья эксплуатации строительного объекта.
Зачастую домовладельцы, которые отдают предпочтение клееному брусу, будут всегда оставаться довольны имеющимися результатами. Клееный брус позволяет строить баню быстрее. Баня может быть введена в эксплуатацию значительно быстрее. Для начала отделки не нужно дожидаться полной усадки сруба.