С чего начать капитальный ремонт в квартире: полное руководство для новичков
- С чего начать капитальный ремонт в квартире: полное руководство для новичков
- Связанные вопросы и ответы
- С чего обычно начинается капитальный ремонт в квартире
- Какие документы необходимы перед началом капитального ремонта
- Как составить план ремонта и какие этапы в него входят
- Как определить бюджет для капитального ремонта и не превысить его
- Как выбрать подрядчика или решить, делать ремонт самостоятельно
- Какие материалы и инструменты необходимы для начала ремонта
- Как подготовить квартиру к началу капитального ремонта
С чего начать капитальный ремонт в квартире: полное руководство для новичков
Планирование ремонта
Капитальный ремонт в квартире – это сложный и ответственный процесс, который требует тщательного планирования. Прежде чем приступить к работам, необходимо четко определить свои цели и ожидания.
Определение целей и задач
Первым делом стоит ответить на вопросы: что именно вы хотите изменить в своей квартире? Может быть, вы хотите увеличить жилую площадь, изменить планировку или обновить интерьер? Также важно определить, какие комнаты будут подвергаться ремонту и в какой степени.
Создание дизайн-проекта
После того как цели определены, можно приступить к созданию дизайн-проекта. Это может сделать профессиональный дизайнер или вы можете попробовать силы, используя специальные программы или онлайн-сервисы. Дизайн-проект должен включать:
- План квартиры с новой планировкой
- Выбор материалов и цветов
- Макет интерьера
Смета и бюджет
Одним из ключевых этапов планирования является составление сметы и определение бюджета. Стоит учитывать, что капитальный ремонт – это значительные вложения, и важно заранее знать, на что вы тратите деньги.
| Вид работ | Оценочная стоимость |
|---|---|
| Демонтажные работы | от 50 000 рублей |
| Установка коммуникаций | от 100 000 рублей |
| Отделочные работы | от 150 000 рублей |
Подготовка к ремонту
После того как план действий готов, можно приступать к подготовке к ремонту. Этот этап включает несколько важных шагов.
Получение разрешений
Если вы планируете какие-либо изменения в планировке или внешнем виде квартиры, необходимо получить соответствующие разрешения. Это особенно важно, если вы живете в многоквартирном доме.
Выбор подрядчика
Если вы не имеете опыта в проведении ремонта, лучше доверить работы профессионалам. Выбор подрядчика – это ответственный шаг, поэтому стоит:
- Проверить отзывы и рекомендации
- Получить несколько предложений и сравнить цены
- Заключить официальный договор
Подготовка квартиры
Перед началом работ необходимо подготовить квартиру:
- Убрать вещи и мебель
- Закрыть окна и двери
- Обезопасить электрические сети
Проведение работ
Самый ответственный этап ремонта – это проведение работ. Он включает несколько стадий.
Демонтажные работы
Первым делом проводятся демонтажные работы. Это может включать:
- Снос стен
- Демонтаж пола и потолка
- Удаление старых коммуникаций
Установка коммуникаций
После демонтажа приступают к установке новых коммуникаций:
- Электрическая сеть
- Сантехника
- Отопление
Отделочные работы
Финальный этап – это отделочные работы. Они включают:
- Штукатурку и покраску стен
- Установку напольных покрытий
- Монтаж дверей и окон
Контроль качества и сдача объекта
После завершения работ необходимо провести проверку качества выполненных работ. Для этого можно составить проверочный список:
- Проверить герметичность сантехники
- Проверить работу электрической сети
- Осмотреть отделочные работы
Если все работы выполнены качественно, можно подписать акт сдачи объекта и приступать к заселению.
Связанные вопросы и ответы:
Вопрос 1: С чего начать капитальный ремонт в квартире
Капитальный ремонт в квартире лучше начинать с планирования. Для этого необходимо определить, какие изменения вы хотите внести в пространство, и составить подробный план действий. Также важно составить смету расходов, чтобы знать, сколько средств потребуется. Затем следует обратиться к специалистам, таким как архитектор или проектный менеджер, чтобы получить профессиональные рекомендации. Наконец, нужно подать заявку на получение разрешения на проведение ремонтных работ, если это требуется по местным строительным нормам.
Вопрос 2: Какие разрешения и согласования нужны для капитального ремонта
Для проведения капитального ремонта в квартире могут потребоваться различные разрешения и согласования. Во-первых, необходимо согласовать проектную документацию с управляющей компанией или жилищным кооперативом. Если вы планируете перепланировку, то нужно получить разрешение от местных властей или БТИ. Также может потребоваться согласование с соседями, особенно если ремонт связан с шумом или изменениями, которые могут их затронуть. Кроме того, если вы живете в доме, признанном объектом культурного наследия, могут быть дополнительные требования. Всегда лучше проконсультироваться с юристом или специалистом по строительству, чтобы убедиться, что все необходимые документы на месте.
Вопрос 3: Как правильно снять старые коммуникации перед началом ремонта
Перед началом капитального ремонта важно правильно снять старые коммуникации. Для этого необходимо пригласить специалистов, таких как сантехники и электрики, чтобы они отключили подачу воды, газа и электроэнергии. После отключения можно приступать к демонтажу труб, проводки и других элементов. Все работы должны проводиться в соответствии сными нормами, чтобы избежать аварий или травм. Также важно сохранить старые коммуникации, если они будут использоваться снова, или правильно утилизировать их, если они больше не нужны. Не забудьте сделать фотографии и схемы старой проводки и труб, чтобы облегчить монтаж новых коммуникаций.
Вопрос 4: С чего начать демонтажные работы в квартире
Демонтажные работы в квартире следует начинать с освобождения пространства. Уберите все мебель, бытовую технику и личные вещи, чтобы они не мешали работе и не пострадали. Затем необходимо определить, какие конструкции будут разрушаться, а какие останутся. Если вы не уверены в своих силах, лучше пригласить профессиональных демонтажников. Начинайте с потолков и стен, постепенно переходя к полу. Не забудьте выключить электричество и воду перед началом работ. Также важно использовать защитное оборудование, такое как перчатки и маски, чтобы избежать травм и вдыхания пыли.
Вопрос 5: Как приступить к работе со стенами и перегородками
Приступая к работе со стенами и перегородками, важно сначала определить, какие стены являются несущими, а какие можно демонтировать. Если вы не уверены, лучше проконсультироваться с инженером-строителем. Если вы хотите разобрать перегородку, начните с удаления облицовки, такой как штукатурка или гипсокартон. Затем аккуратно демонтируйте саму конструкцию, стараясь не повредить соседние стены. Если вы хотите построить новую перегородку, начните с установки каркаса, используя металлический или деревянный профиль. Не забудьте про звукоизоляцию и электрическую проводку, если она будет проходить через новую стену.
Вопрос 6: Как выбрать материалы для капитального ремонта
Выбор материалов для капитального ремонта зависит от ваших потребностей и бюджета. Начните с определения, какие материалы вам нужны: стены, пол, потолок, окна, двери и т.д. Посоветуйтесь с специалистами, чтобы они порекомендовали подходящие варианты. Посетите строительные магазины или онлайн-платформы, чтобы сравнить цены и качество. Обратите внимание на экологичность и долговечность материалов. Также важно учитывать эстетическую составляющую, чтобы материалы соответствовали вашему интерьерному стилю. Не забудьте проверить сертификаты качества и гарантийные сроки на выбранные материалы.
С чего обычно начинается капитальный ремонт в квартире

Собственники жилья многоквартирного дома, где открыт специальный счет, могут провести работы по капитальному ремонту раньше запланированных сроков. Для этого собственникам жилья необходимо самостоятельно определить подрядную организацию, организовать общее собрание по вопросу проведения капитального ремонта дома, а также обязательно собрать пакет документов, который подлежит отправке в Фонд для рассмотрения.
Рассмотрение документов о проведении капитального ремонта дома на специальном счете регионального оператора осуществляют непосредственно специалисты Регионального Фонда капитального ремонта МКД.
Для удобства граждан в оформлении пакета документов о проведении капремонта на специальном счете специалисты Фонда разработали образцы протоколов и приложений к ним. С образцами заявлений можно ознакомиться и скачать их на сайте Фонда в разделе «Собственникам» => "Образцы документов и заявлений".
Отметим, что собственники для рассмотрения вопроса о проведении капитального ремонта дома на специальном счете в Фонд должны предоставить в оригинале следующие документы:
- протокол общего собрания собственников жилья дома;
- договор об оказании услуг и (или) о выполнении работ по капитальному ремонту общего имущества в многоквартирном доме;
- локальный сметный расчет (расчеты) к договору;
- заявление на предоставление 30% аванса на выполнение работ по капитальному ремонту дома;
- акт приемки оказанных услуг и (или) выполненных работ по договору, составленный по форме КС-2. Данный акт предоставляется только после завершения работ по договору;
- справка о стоимости выполненных работ по форме КС-3.
Дополнительно специалисты Фонда отмечают, что в пакете документов следующие приложения к протоколу могут быть направлены в копиях или на электронных носителях:
- уведомление о принятии решения о проведении капитального ремонта общего имущества в многоквартирном доме;
- сообщение о проведении общего собрания собственников;
- реестр вручения сообщений о проведении общего собрания собственников
- реестры присутствующих собственников на общем собрании.

Напомним, что с введенным режимом повышенной готовности и принятии дополнительных мер по защите населения от новой коронавирусной инфекции (2019-nCov) с 23 марта Фонд капитального ремонта Свердловской области временно приостановил приём граждан.
Документы о проведении капитального ремонта дома в период самоизоляции можно направить в адрес Фонда по Почте России по адресу: 620014, г. Екатеринбург, ул. Бориса Ельцина, 3.
Какие документы необходимы перед началом капитального ремонта
Вы проводите капитальный ремонт и хотите претендовать на государственную денежную поддержку. Выдаётся она на одну из двух целей:
- возмещение части расходов на уплату процентов за займ или кредит, взятый в целях оплаты услуг и работ по капитальному ремонту ОИ в МКД. Исключение – неустойка за нарушение условий договора займа или кредитного договора,
- возмещение части расходов на оплату услуг и работ по энергосбережению и повышению энергетической эффективности, выполненных в ходе работ по капитальному ремонту.
Если вы хотите получить деньги на вторую цель, помните, что работы по энергосбережению должны соответствовать следующим требованиям:
- входить в перечень мероприятий по энергосбережению и повышению энергетической эффективности,
- в результате их проведения расходы на оплату коммунальных ресурсов должны уменьшиться не менее чем на 10 % по каждому МКД.
Государственная поддержка капитального ремонта не безлимитная, для одного МКД она не может превышать 50 % общей стоимости услуг и работ по капитальному ремонту этого дома, при этом быть не более 5 миллионов рублей.
Фонд содействия реформированию ЖКХ (далее – Фонд) размер денежной поддержки определяет индивидуально для каждого МКД. При этом учитывает расход на оплату:
- тепла и ГВС (по показаниям ОДПУ),
- электричества (разницу между объёмом потребления по показаниям ОДПУ и суммой объёмов потребления по показаниям ИПУ и ОДПУ в доме).
Деньги на возмещение части расходов на оплату процентов выдаются в размере прогнозных расходов за весь срок действия кредитного договора, но не более чем за 5 лет. Расчёт ведётся по 100% ключевой ставке ЦБ РФ, действующей на дату принятия решения о предоставлении финансовой поддержки. При этом берётся в расчёт ограничение размера помощи для одного МКД.
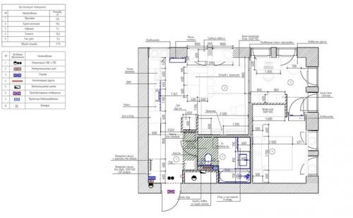
Как составить план ремонта и какие этапы в него входят

Базовый дизайн-проект для небольшой квартиры стоит в среднем от 20 тыс. рублей
До начала ремонта в квартире важно понять, к какой конечной цели мы стремимся. Для этого нужно определиться: каким должен быть стиль интерьера, цвета, материалы для отделки полов, стен и потолков? Какую мебель, сантехнику и декоративные элементы использовать?
Дизайн-проект как раз и создает четкий образ будущего интерьера квартиры.
Помимо «картинки» дизайн-проект — это техническая документация и детальная инструкция для мастеров.
Техническая документация описывает:
- пошаговые этапы технических работ;
- черновые и чистовые материалы;
- размеры отступов для мебели;
- расположение розеток, сантехники, выключателей, вентиляционных решеток;
- схемы раскладки напольных покрытий в комнатах;
- организацию освещения и эргономики пространства.
«Когда делаете ремонт, нужно заранее посчитать, сколько материалов понадобится. Это поможет сэкономить деньги. Даже если вы опытны в ремонте, сложно угадать, сколько нужно купить плитки для кухни или ламината для комнат. Идеально иметь запас чистовых материалов — примерно плюс 10%. Больше не нужно, это лишняя трата денег».
Как определить бюджет для капитального ремонта и не превысить его
Соблюдение временных сроков и договоренностей – одна из самых важных составляющих любого успешного бизнеса. Нередко заказчику нужно переехать в его новый дом к определенному времени: например, встретить Новый год в долгожданной квартире или закончить ремонт к началу учебного года. Как сделать так, чтобы строительные работы шли без задержек? А ремонт закончился точно к оговоренному сроку?
Сохранить фото
Делаем график работ
И раньше, и сейчас нам помогает сводный график работ и закупок (пример на скриншоте). Это документ — основа будущего взаимодействия сотрудников студии и строительной бригады. Со сводного графика работ и закупок мы начинаем реализацию любого дизайн-проекта, созданного в студии.
График создает руководитель строительства. Использует для этого обычную таблицу в Excel.
Luna White Art Сохранить фото
Основа графика — работы, разделенные по типам операций: возведение перегородок, штукатурные, малярные, плиточные и т д. Так мы понимаем все необходимые шаги, которые должны быть выполнены на объекте. И главное, в какой последовательности они будут сделаны.
Artisan électricien Didier SASSOLI Sté AEG Сохранить фото
Добавляем график работ подрядчиков
На этом этапе в график встраиваются сторонние подрядчики: монтажи вентиляции, прокладка слаботочных систем, сварочные работы. Так мы понимаем, в какой именно момент стройки нужно пригласить подрядчика на объект (компаниям также важно планировать время своих сотрудников).
Mon Concept Habitation Сохранить фото
Добавляем привязку материалов
Исходя из времени старта определенного этапа отделочных работ идет привязка доставки необходимых материалов. К примеру, вся плитка должна приехать на объект строго к началу работ по ее укладке, не раньше и не позже, а все скрытые элементы сантехники — к началу гипсокартонных работ.
График закупок всегда увязывается с план-графиком строительных работ. Мы хорошо ориентируемся в этапах стройки и заранее знаем, что и когда потребуется рабочим на объекте.
User Сохранить фото
План выездных консультаций
По составленной таблице работ и материалов наглядно, когда стоит планировать выезды на шоппинг с заказчиком. Ведь невозможно утвердить за одну поездку в ТЦ и всю плитку, и все обои, и всю мебель. Разбивка по этапам помогает планировать время — наше и клиента.
TB.Design Сохранить фото
План проплат
Наглядность этапов, в том числе, позволяет клиенту детально спланировать свои финансы на весь период строительно-отделочных работ на объекте. Как следствие, он абсолютно четко ориентируется в сроках сдачи каждого этапа работ.
Важно: Все контролирует один человек. За сведение технической и «закупочной» стороны в нашей студии всегда отвечает Руководитель проекта. Именно этот человек ведет и контролирует проект с самого его начала, держит руку на пульсе всех изменений, общается с заказчиком и доводит наше взаимодействие до логического завершения – сдачи объекта. Именно во многом благодаря такому сотруднику в проектной команде мы ручаемся за четкое выполнение сроков.
Студия современного дизайна интерьера Royal Fusion Сохранить фото
А если будет форс-мажор?..
Никто не может подстраховаться на случай возможной нестабильности рынка. Мы рассказали про свой опыт реализации проекта в срок в предсказуемых условиях.
Безусловно, форс-мажоры случаются. Но потому термин и переводится как «непреодолимая сила» — непредсказуемое событие. Предугадать локдаун 2020 года было невозможно. А по итогу на один из наших проектов плитка ехала аж пол года! Ничего, мы изменили процессы так, чтобы уложить именно этот фрагмент на финишном этапе стройки.
Сохранить товар
Складовка- склады индивидуального хранения вещей в МосквеПокупайте на склад
У нас есть свой склад на балансе студии. Нам выгодно его содержать, мы храним там товары, выкупленные заранее для всех объектов. Это позволяет не беспокоиться, если материал приедет раньше срока.
Ольга Шангина | Photography Сохранить фото
Если склада нет, можно договориться с заказчиками и снять любой бокс в складе временного хранения. Это в текущих условиях — это оптимально: перекрывает все риски поставок и возможный рост цен. Например, имеет смысл закупить всю бытовую технику сразу, как только определились габаритными размерами под проект. Сейчас мы даже черновые материалы по одному объекту храним в боксе (не влезли на наш склад). Клиент не против — это дешевле и надежнее чем покупать “в моменте”
ПО ТЕМЕ…
Как правильно: Выбрать склад для вещей
Ольга Шангина | Photography Сохранить фото
ШКОЛА ДЛЯ ДИЗАЙНЕРОВ
► Остались вопросы? — Приходите с ними в школу бизнеса TB.Education , которую организовала Татьяна, автор статьи.
Как выбрать подрядчика или решить, делать ремонт самостоятельно
Во время ремонта мы контактируем со строительными материалами и агрессивными химическими веществами, работаем с электропроводкой, используем сложные электроинструменты. Если не соблюдать правила безопасности, все это может стать опасным для здоровья.
- Строительная пыль, например, попадая в нос, рот и глаза, может вызвать аллергическую реакцию. Регулярное вдыхание этой пыли может привести к силикозу и хронической обструктивной болезни легких.
- Во время сварки или при работе с болгаркой раскаленные частицы металла могут обжечь руки или глаза.
- Если вдыхать пары химических веществ (например, уайт-спирита или ацетона), то это приведет к головокружению, слабости, потере сознания, тошноте и рвоте.
- Невнимательность при работе с электросетью может привести к удару током и, как следствие, к сбою в работе нервной системы, потере сознания и даже остановке сердца.
- Если уронить на себя тяжелый предмет, например кувалду, то можно получить ушиб или сотрясение мозга.
- От постоянного шума работающего электроинструмента (например, штрабореза или перфоратора ) может болеть голова.
Урал Абдуллин
Если не соблюдать правила индивидуальной защиты при ремонте, то можно заработать заболевания дыхательной системы, снижение иммунитета и даже онкологию. Это только кажется, что при кратковременном вдыхании строительная пыль, химические испарения от краски или лака не так опасны. На самом деле даже 2–3 часа работы в помещении с лакокрасочными материалами могут привести к проблемам со здоровьем.
Какие материалы и инструменты необходимы для начала ремонта
При выборе определенного направления дизайна интерьера следует ориентироваться на свой образ жизни и привычки. Целеустремленные молодые люди нередко предпочитают оформлять помещения в стиле минимализм или хай-тек. В такой обстановке отсутствуют лишние детали, отвлекающие внимание.
Тем, кто ценит комфорт и роскошь, следует обратить внимание на классику. Интерьеры в стиле барокко подчеркнут статус владельцев помещения. Однако их не следует выбирать тем, кто не любит уборку. Большое количество резных элементов и деталей нередко скапливают пыль, которую достаточно трудно удалить.
Любителям уютных простых интерьеров стоит посмотреть на особенности отделки в стиле шебби-шик или прованс. Для них используются светлые пастельные тона, мебель под старину и растительные мотивы. Деревенские стили отлично подойдут и для загородных домов, и для современных квартир. С их помощью создается теплая и уютная атмосфера, где можно расслабиться и отвлечься от городской суеты. Шебби-шик подходит для оформления женской спальни. В интерьере в стиле прованс комфортно будут чувствовать себя и мужчины.
Творческие личности нередко выбирают авангард или бохо. Эти яркие стили хорошо отражают внутренний мир человека, который мыслит нестандартно. Авангард часто противопоставляется классике. Он позволяет проявить индивидуальность и рекомендуется тем, кто не боится смелых решений. Для него характерны необычные формы, абстракция, яркие цвета.
Как подготовить квартиру к началу капитального ремонта
Согласно федеральному законодательству, капитальный ремонт здания предназначен для восстановления технических характеристик строительных конструкций. В рамках капремонта может производиться частичная или полная замена конструктивных элементов, за исключением несущих, либо исправление повреждений без замены. Сюда же относят обновление и реконструкцию коммуникационных сетей.
Когда нужно разрешение?
Фактически, капремонт подразумевает полное или частичное восстановление прочности объекта капитальной застройки. Регламентом на проведение восстановительных работ в отношении частного и многоквартирного фонда является Градостроительный Кодекс и федеральное законодательство. Согласовать капремонт с районной администрацией и/или обслуживающей организацией (в т.ч. профильными инстанциями) необходимо, если будет производиться:
- переоборудование старых помещений или образование новых,
- плановый ремонт всего здания либо отдельных фрагментов, напрямую влияющих на прочность постройки (например, несущих стен);
- ремонт или замена элементов, отвечающих за безопасность строения и его инженерное оснащение.
Если работы, которые планируется произвести, не повлекут вышеперечисленных изменений и не нарушают требования безопасной эксплуатации зданий, то получать разрешение на проведение капитального ремонта не требуется. Однако, для грамотного восстановления объекта все же нужно получить экспертную оценку повреждений, амортизации и износа здания, а также подготовить проект.
Проект капремонта
Для корректной оценки объема работ проводят предварительное комплексное обследование постройки. Это помогает определить физико-механические и прочностные характеристики конструктивных элементов. Здесь также предусмотрено послабление: в случае замены конструктивного элемента на аналогичный (с теми же техническими параметрами), технический анализ может и не потребоваться.
Проект капитального ремонта должен составляться в соответствие с законодательными нормами и включать в себя схемы:
- расположения земельного участка под домом на градостроительном плане;
- инженерных систем и коммуникаций, подведенных к зданию;
- существенных изменений, который будут произведены (пристройки, снос отдельных помещений и т.п.) при необходимости;
- проект поэтапного восстановления прочностных и иных характеристик постройки.
Помимо этого, обязательно обозначают материалы и технологию проведения капремонта.
Какие документы?
Даже если не требуется получать отдельное разрешение на проведение капитального ремонта здания , местные органы самоуправления должны быть извещены о планируемых работах до их начала. Перечень документов для утверждения на собрании или в администрации содержит:
- Дефектный акт, составленный экспертной комиссией с указанием метода проведения ремонта (полное восстановление, замена, частичное исправление технических недостатков и пр.);
- Полное описание ремонтных работ и услуг, необходимых для капремонта;
- Срок выполнения, календарный план;
- План расходов на закупку материалов и оплату услуг подрядчиков.
Список проводимых работ составляется исходя из конкретных параметров восстановления. Здесь же определяют источник оплаты и назначают лицо, ответственное за проведение капремонта.